賃貸マンション
レオパレスル・コントワールIIの賃貸物件情報(1K/2階)
| 家賃 | 管理費等 | 敷金 | 礼金 | 間取り | 専有面積 |
|---|---|---|---|---|---|
| 6.4万円 | 5,000円 | なし | なし | 1K | 19.87m2 |
入居決定でお祝い金最大100,000円
- 保証金
- -
- 償却・敷引
- -
- 築年数
- 築25年
- 所在階
- 2階
- 向き
- 西
- 交通
- 阪神本線 御影駅(阪神) 徒歩11分
阪神本線 魚崎駅 徒歩20分
JR東海道本線 住吉駅(JR・六甲ライナー) 徒歩24分
- 所在地
- 兵庫県神戸市東灘区御影本町
レオパレスル・コントワールII
[地図を表示]
Point
クレジットカードでのお支払い(初期費用)OK。悪天候時やお急ぎの方には写真やパノラマ・動画などでもご内覧可能ですのでお気軽にご相談ください!
提供:ミニミニFC阪神甲子園店シティネット(株)(SUUMO経由)

詳細情報 レオパレスル・コントワールII
物件紹介
レオパレスル・コントワールIIは阪神本線御影駅から徒歩11分にあるマンションです。
このお部屋は2階以上に位置しているので、通行人や周囲の住人からの視線が気になりにくく、防犯面でも安心です。
人気の角部屋。周囲の居住者の生活音も気になりにくい場所です。バス・トイレ別の仕様で、のんびりお風呂タイムも楽しめます。また、浴室乾燥機を使えば、雨の日でもお洗濯は問題ありません。
通信設備面では、インターネット接続が可能です。また、CATVにも対応しているので、おうち時間も充実するでしょう(別途工事、契約料が必要な場合あり)。
このお部屋は2階以上に位置しているので、通行人や周囲の住人からの視線が気になりにくく、防犯面でも安心です。
人気の角部屋。周囲の居住者の生活音も気になりにくい場所です。バス・トイレ別の仕様で、のんびりお風呂タイムも楽しめます。また、浴室乾燥機を使えば、雨の日でもお洗濯は問題ありません。
通信設備面では、インターネット接続が可能です。また、CATVにも対応しているので、おうち時間も充実するでしょう(別途工事、契約料が必要な場合あり)。
お金・契約の情報
※「-」と表示されているものは、実際は料金が発生するものもございます。詳細はお問い合わせください。
| 家賃 | 6.4万円 | 管理費・共益費 | 5,000円 |
|---|---|---|---|
| 敷金 | なし | 礼金 | なし |
| 入居決定でお祝い金最大100,000円 | |||
| 保証金 | - | 償却・敷引 | - |
| 住宅保険料 | - | 更新料 | - |
| 保証会社利用 | 必須 | 保証会社名 | - |
| 保証会社費用 | - | 保証会社備考 | 保証会社利用必 プラザ賃貸管理保証株式会社利用必須 契約時:利用料の100%~120%・2年目以降10,000円/年 |
| 契約形態 | - | 契約期間 | - |
| 入居・引渡期間 | 即時 | 現況 | - |
| 契約備考 | LEONET(インターネット使い放題等)(任意):3630円/月、環境維持費:550円/月、鍵交換費/Smartlockシステム登録手数料:16500円/初回、抗菌施工(任意):23760円/初回、更新料(2年毎):16500円/年、入居者サポートシステムプラス(任意):18975円/初回退去時清掃費41,800円(税込) 1K 損保【1.32万円2年】 バストイレ別、バルコニー、エアコン、浴室乾燥機、室内洗濯置、シューズボックス、角住戸、2口コンロ、駐輪場、IHクッキングヒーター、CATVインターネット、2沿線利用可、家電付、家具付、2駅利用可、3駅以上利用可、プロパンガス、IT重説対応物件、初期費用カード決済可 | ||
部屋の情報
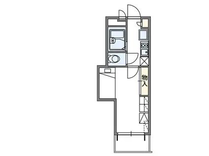
| 間取り | 1K | 専有面積 | 19.87m2 |
|---|---|---|---|
| 所在階 / 向き | 2階 / 西 | バルコニー面積 | - |
| 水道 / ガス | - | ||
| 設備 | バス・トイレ別、2階以上、浴室乾燥機、インターネット対応、エアコン、角部屋、バルコニー、2口コンロ、コンロ:IH、CATV、洗濯機:室内 | ||
| 当社物件ID | 116816000 | ||
建物の情報
| 建物名 | レオパレスル・コントワールII | ||
|---|---|---|---|
| 所在地 | 兵庫県神戸市東灘区御影本町 | ||
| 交通 | 阪神本線 御影駅(阪神) 徒歩11分 阪神本線 魚崎駅 徒歩20分 JR東海道本線 住吉駅(JR・六甲ライナー) 徒歩24分 | ||
| 階数 | 4階建 | 総戸数 | 18戸 |
| 築年月 | 2001年03月 / 築25年 | エレベーター | - |
| 駐車場 | 近隣 300m18700円 | バイク置き場 | - |
| 駐輪場 | あり | 管理人/管理会社 | - |
| 周辺環境 | その他 神戸市立御影小学校(小学校)まで900m その他 神戸市立御影中学校(中学校)まで800m その他 御影浜中郵便局(郵便局)まで320m その他 御影クラッセ(ショッピングセンター)まで863m | ||
| 建物種別 | マンション | 建物構造 | 鉄骨造 |
この部屋の取扱い不動産会社
| 会社名 | ミニミニFC阪神御影店シティネット(株)(SUUMO経由) | ||
|---|---|---|---|
| 所在地 | 兵庫県神戸市東灘区御影中町1-9-5 | 交通 | - |
| 営業時間 | 10:00~18:00 | 定休日 | - |
| 免許番号 | 兵庫県知事10417 | 取引態様 | 仲介 |
| 不動産会社管理番号 | 100382624861 | 当社管理番号 | 89 |
| 所属団体 | (公社)全日本不動産協会兵庫県本部会員 | ||
| 公正取引協議会 | (公社)近畿地区不動産公正取引協議会加盟 | ||
| 取扱い物件情報 | 物件詳細へ | ||
※各種情報と現状に差異がある場合は、現状優先となります。問い合わせをすることで、より詳しい条件、情報を確認する事ができます。
提供:ミニミニFC阪神御影店シティネット(株)(SUUMO経由)
この物件が気になったら掲載期限まであと11日
レオパレスル・コントワールIIに条件(家賃・エリア)が近い物件一覧
| 写真 | 家賃 管理費等 | 敷金 礼金 | 間取り 専有面積 | 築年数 | 最寄り駅 所在地 | キープ | 詳細 |
|---|---|---|---|---|---|---|---|
アパート ルーエンハイム(2LDK/1階) | |||||||
![]() | 6万円 5,500円 | 6万円 なし | 2LDK 57m2 | 築20年 | JR山陽本線 魚住駅 徒歩22分 JR山陽本線 土山駅 徒歩32分 山陽電鉄本線 東二見駅 徒歩33分 兵庫県明石市魚住町清水 | 詳細を見る | |
アパート べアーレ(ワンルーム/1階) | |||||||
![]() | 4.4万円 3,000円 | なし 5万円 | ワンルーム 21.73m2 | 築20年 | 神戸電鉄粟生線 緑が丘駅(兵庫) 徒歩9分 神戸電鉄粟生線 広野ゴルフ場前駅 徒歩15分 神戸電鉄粟生線 押部谷駅 徒歩30分 兵庫県三木市緑が丘町中 | 詳細を見る | |
マンション ビレッジハウス朝日ヶ丘(2K/2階) | |||||||
![]() | 3.84万円 なし | なし なし | 2K 28.98m2 | 築61年 | 神戸電鉄粟生線 三木駅(神戸電鉄) 徒歩31分 神戸電鉄粟生線 三木上の丸駅 徒歩41分 兵庫県三木市別所町朝日ケ丘 | 詳細を見る | |
アパート サニーハイツ青山B棟(1LDK/3階) | |||||||
![]() | 7.2万円 5,000円 | なし 14.4万円 | 1LDK 40.68m2 | 築14年 | 兵庫県三木市志染町青山5 | 詳細を見る | |
アパート SHAMAISON雅あさぎり(1LDK/1階) | |||||||
![]() | 8.7万円 6,500円 | 3万円 なし | 1LDK 47.2m2 | 築1年 | 山陽電鉄本線 大蔵谷駅 徒歩17分 JR山陽本線 朝霧駅 徒歩17分 JR山陽本線 明石駅 徒歩35分 兵庫県明石市朝霧町 | 詳細を見る | |
マンション ビレッジハウス志染(3K/2階) | |||||||
![]() | 5.29万円 なし | なし なし | 3K 43.5m2 | 築46年 | 神戸電鉄粟生線 志染駅 徒歩12分 神戸電鉄粟生線 恵比須駅 徒歩29分 神戸電鉄粟生線 広野ゴルフ場前駅 徒歩29分 兵庫県三木市志染町西自由が丘 | 詳細を見る | |
マンション 三木グリーンハイツ(2DK/3階) | |||||||
![]() | 7万円 3,300円 | 7万円 7万円 | 2DK 46.28m2 | 築43年 | 神戸電鉄粟生線 緑が丘駅(兵庫) 徒歩5分 神戸電鉄粟生線 広野ゴルフ場前駅 徒歩16分 兵庫県三木市緑が丘町本町 | 詳細を見る | |
アパート 山陽電気鉄道本線 大蔵谷駅 徒歩6分 築8年(ワンルーム/1階) | |||||||
![]() | 5.4万円 3,000円 | なし 10.8万円 | ワンルーム 28.57m2 | 築8年 | 山陽電気鉄道本線 大蔵谷駅 徒歩6分 山陽本線 朝霧駅 徒歩12分 山陽電気鉄道本線 人丸前駅 徒歩15分 兵庫県明石市朝霧町2丁目 | 詳細を見る | |








