賃貸マンション
エヌステージ久米川の賃貸物件情報(1K/14階)
| 家賃 | 管理費等 | 敷金 | 礼金 | 間取り | 専有面積 |
|---|---|---|---|---|---|
| 7.35万円 | 1.4万円 | なし | 7.35万円 | 1K | 21.96m2 |
入居決定でお祝い金最大100,000円
- 保証金
- -
- 償却・敷引
- -
- 築年数
- 築8年
- 所在階
- 14階
- 向き
- 南西
Point
当店掲載物件以外の物件もエリア・沿線問わず契約受付を承ります!内見不要のお客様は仲介手数料が家賃の33%(税込)!当店は初期費用の全額(または一部)の分割払いも可能です。
提供:(株)新井産業シンビアホーム(SUUMO経由)

詳細情報 エヌステージ久米川
物件紹介
エヌステージ久米川は西武新宿線久米川駅から徒歩4分にあり、駅近で通勤通学に便利なマンションです。
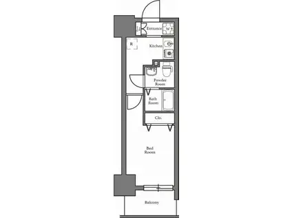
このお部屋は2階以上に位置しているので、通行人や周囲の住人からの視線が気になりにくく、防犯面でも安心。建物のエントランスはオートロックがついており、インターホンにはTVモニタもついているため、相手の顔を確認してから来客対応することができます。
人気の南向きのお部屋。また、フローリングなのでお掃除もラクラク。キッチンはシステムキッチン仕様になっていますので、お料理好きの方にもぴったり。バス・トイレは別なので、のんびりお風呂タイムも楽しめるでしょう。また、雨の日でも浴室乾燥機を使えば、お洗濯も問題ありません。
通信設備面では、インターネット接続が可能です。また、BSアンテナ・CSアンテナがありCATVにも対応しているので、おうち時間も充実するでしょう(別途工事、契約料が必要な場合あり)。
建物にはエレベーターがついているので、重い荷物があっても安心。共用部には宅配ボックスが設定されているので、不在の時にも荷物を受け取ることができます。
このお部屋は2階以上に位置しているので、通行人や周囲の住人からの視線が気になりにくく、防犯面でも安心。建物のエントランスはオートロックがついており、インターホンにはTVモニタもついているため、相手の顔を確認してから来客対応することができます。
人気の南向きのお部屋。また、フローリングなのでお掃除もラクラク。キッチンはシステムキッチン仕様になっていますので、お料理好きの方にもぴったり。バス・トイレは別なので、のんびりお風呂タイムも楽しめるでしょう。また、雨の日でも浴室乾燥機を使えば、お洗濯も問題ありません。
通信設備面では、インターネット接続が可能です。また、BSアンテナ・CSアンテナがありCATVにも対応しているので、おうち時間も充実するでしょう(別途工事、契約料が必要な場合あり)。
建物にはエレベーターがついているので、重い荷物があっても安心。共用部には宅配ボックスが設定されているので、不在の時にも荷物を受け取ることができます。
お金・契約の情報
※「-」と表示されているものは、実際は料金が発生するものもございます。詳細はお問い合わせください。
| 家賃 | 7.35万円 | 管理費・共益費 | 1.4万円 |
|---|---|---|---|
| 敷金 | なし | 礼金 | 7.35万円 |
| 入居決定でお祝い金最大100,000円 | |||
| 保証金 | - | 償却・敷引 | - |
| 住宅保険料 | - | 更新料 | - |
| 保証会社利用 | 必須 | 保証会社名 | - |
| 保証会社費用 | - | 保証会社備考 | 保証会社利用必 初回保証料:総賃料の30% |
| 契約形態 | - | 契約期間 | - |
| 入居・引渡期間 | 相談 | 現況 | - |
| 契約備考 | 巡回管理/リフォーム:2026/2内装室内クリーニング/1年未満の解約は違約金として賃料1ヶ月分/内見を行っての契約の場合、仲介手数料は家賃の55%(消費税込)となります。 合計2.2万円(内訳:鍵交換代2.2万円) 更新料 新賃料1.00ヶ月分 1K 二人入居可 普通借家2年 損保【2.3万円2年】 バストイレ別、バルコニー、エアコン、ガスコンロ対応、クロゼット、フローリング、TVインターホン、浴室乾燥機、オートロック、室内洗濯置、陽当り良好、シューズボックス、システムキッチン、温水洗浄便座、脱衣所、エレベーター、洗面所独立、洗面化粧台、駐輪場、宅配ボックス、CATV、光ファイバー、外壁タイル張り、最上階、BS・CS、敷金不要、防犯カメラ、全居室収納、全居室洋室、保証人不要、二人入居相談、全居室フローリング、2沿線利用可、CS、眺望良好、24時間換気システム、2駅利用可、3駅以上利用可、3沿線以上利用可、駅徒歩5分以内、駅徒歩10分以内、高層階、上階無し、24時間ゴミ出し可、敷地内ごみ置き場、南西向き、都市ガス、洗面所にドア、南面バルコニー、玄関収納、BS、保証会社利用可 | ||
部屋の情報
| 間取り | 1K | 専有面積 | 21.96m2 |
|---|---|---|---|
| 所在階 / 向き | 14階 / 南西 | バルコニー面積 | - |
| 水道 / ガス | - | ||
| 設備 | バス・トイレ別、2階以上、オートロック、テレビドアホン、宅配ボックス、浴室乾燥機、インターネット対応、システムキッチン、エアコン、エレベーター、温水洗浄便座、南向き、バルコニー、フローリング、洗髪洗面化粧台、コンロ:ガス、CATV、CSアンテナ、BSアンテナ、洗濯機:室内 | ||
| 当社物件ID | 160449054 | ||
建物の情報
| 建物名 | エヌステージ久米川 | ||
|---|---|---|---|
| 所在地 | 東京都東村山市栄町 | ||
| 交通 | 西武新宿線 久米川駅 徒歩4分 西武多摩湖線 八坂駅(東京) 徒歩8分 西武拝島線 萩山駅 徒歩16分 | ||
| 階数 | 14階建 | 総戸数 | - |
| 築年月 | 2018年12月 / 築8年 | エレベーター | あり |
| 駐車場 | なし | バイク置き場 | - |
| 駐輪場 | あり | 管理人/管理会社 | - |
| 周辺環境 | その他 セブンイレブン東村山栄町店(コンビニ)まで289m その他 西友久米川店(スーパー)まで221m その他 不二家久米川店(飲食店)まで322m その他 日高屋久米川南口店(飲食店)まで290m その他 マツモトキヨシ久米川南口駅前店(ドラッグストア)まで270m その他 すき家久米川駅前店(飲食店)まで306m | ||
| 建物種別 | マンション | 建物構造 | RC(鉄筋コンクリート) |
この部屋の取扱い不動産会社
| 会社名 | (株)新井産業シンビアホーム(SUUMO経由) | ||
|---|---|---|---|
| 所在地 | 東京都西東京市ひばりが丘北3-3-20 石田ビル201 | 交通 | - |
| 営業時間 | 9:30~17:30 | 定休日 | 水曜日・日曜日 |
| 免許番号 | 国土交通大臣9412 | 取引態様 | 仲介 |
| 不動産会社管理番号 | 100489864981 | 当社管理番号 | 89 |
| 所属団体 | (公社)全日本不動産協会東京都本部会員 | ||
| 公正取引協議会 | (公社)首都圏不動産公正取引協議会加盟 | ||
| 取扱い物件情報 | 物件詳細へ | ||
※各種情報と現状に差異がある場合は、現状優先となります。問い合わせをすることで、より詳しい条件、情報を確認する事ができます。
提供:(株)新井産業シンビアホーム(SUUMO経由)
この物件が気になったら掲載期限まであと11日
エヌステージ久米川に条件(家賃・エリア)が近い物件一覧
| 写真 | 家賃 管理費等 | 敷金 礼金 | 間取り 専有面積 | 築年数 | 最寄り駅 所在地 | キープ | 詳細 |
|---|---|---|---|---|---|---|---|
アパート レオパレスJUNE(1K/1階) | |||||||
![]() | 6万円 5,000円 | なし なし | 1K 22.35m2 | 築18年 | 西武拝島線 東大和市駅 徒歩23分 西武多摩湖線 武蔵大和駅 徒歩25分 多摩都市モノレール 桜街道駅 徒歩29分 東京都東大和市仲原 | 詳細を見る | |
マンション 秋山マンション(2DK/3階) | |||||||
![]() | 7万円 3,000円 | 7万円 7万円 | 2DK 35.1m2 | 築47年 | 西武新宿線 花小金井駅 徒歩15分 西武新宿線 小平駅 徒歩36分 西武新宿線 田無駅 徒歩42分 東京都小平市花小金井 | 詳細を見る | |
アパート オーランジェ(1LDK/1階) | |||||||
![]() | 6.65万円 3,500円 | なし 6.65万円 | 1LDK 41.33m2 | 築12年 | 多摩都市モノレール 上北台駅 徒歩22分 東京都東大和市奈良橋 | 詳細を見る | |
アパート EST VILLAGE(2LDK/2階) | |||||||
![]() | 11万円 7,000円 | なし 22万円 | 2LDK 64.59m2 | 築13年 | 西武多摩湖線 武蔵大和駅 徒歩12分 西武新宿線 東村山駅 徒歩20分 東京都東村山市廻田町 | 詳細を見る | |
マンション コーポ聖(2K/1階) | |||||||
![]() | 6.7万円 なし | 6.7万円 なし | 2K 41.4m2 | 築50年 | 西武多摩湖線 一橋学園駅 徒歩17分 JR中央線 国分寺駅 徒歩20分 西武国分寺線 恋ケ窪駅 徒歩30分 東京都小平市上水南町 | 詳細を見る | |
アパート サニーウェル(1LDK/1階) | |||||||
![]() | 8.9万円 2,000円 | 8.9万円 なし | 1LDK 43.61m2 | 築7年 | 西武池袋線 秋津駅 徒歩15分 西武池袋線 清瀬駅 徒歩15分 東京都清瀬市野塩 | 詳細を見る | |
アパート MELDIAノイエ(1K/2階) | |||||||
![]() | 6.5万円 3,000円 | なし なし | 1K 25m2 | 築1年 | 西武新宿線 小平駅 徒歩5分 西武拝島線 小平駅 徒歩5分 東京都東村山市萩山町 | 詳細を見る | |
アパート シティハイム・シェモアIII(3DK/1階) | |||||||
![]() | 6.8万円 3,000円 | 6.8万円 なし | 3DK 48.53m2 | 築33年 | 多摩都市モノレール 上北台駅 徒歩9分 多摩都市モノレール 桜街道駅 徒歩20分 西武拝島線 玉川上水駅 徒歩29分 東京都東大和市蔵敷 | 詳細を見る | |









