賃貸マンション
トライネットの賃貸物件情報(3LDK/2階)
| 家賃 | 管理費等 | 敷金 | 礼金 | 間取り | 専有面積 |
|---|---|---|---|---|---|
| 5.3万円 | なし | 10.6万円 | なし | 3LDK | 63.87m2 |
入居決定でお祝い金最大100,000円
Point
公園や飲食店も近く、ファミリーにお勧めの物件です♪
提供:ハウスメイトネットワーク(有)マルゼン商事(SUUMO経由)

詳細情報 トライネット
物件紹介
トライネットはJR鹿児島本線川内駅から徒歩13分にあるマンションです。
このお部屋は2階以上に位置しているので、通行人や周囲の住人からの視線が気になりにくく、防犯面でも安心です。
人気の角部屋で周囲の居住者の生活音も気になりにくく、また、フローリングのお部屋なのでお掃除もラクラク。バス・トイレ別の仕様で、のんびりお風呂タイムも楽しめます。
通信設備面ではBSアンテナがありますので、おうち時間も充実するでしょう(別途工事、契約料が必要な場合あり)。
建物にはエレベーターがついているので、重い荷物があっても安心。
このお部屋は2階以上に位置しているので、通行人や周囲の住人からの視線が気になりにくく、防犯面でも安心です。
人気の角部屋で周囲の居住者の生活音も気になりにくく、また、フローリングのお部屋なのでお掃除もラクラク。バス・トイレ別の仕様で、のんびりお風呂タイムも楽しめます。
通信設備面ではBSアンテナがありますので、おうち時間も充実するでしょう(別途工事、契約料が必要な場合あり)。
建物にはエレベーターがついているので、重い荷物があっても安心。
お金・契約の情報
※「-」と表示されているものは、実際は料金が発生するものもございます。詳細はお問い合わせください。
| 家賃 | 5.3万円 | 管理費・共益費 | なし |
|---|---|---|---|
| 敷金 | 10.6万円 | 礼金 | なし |
| 入居決定でお祝い金最大100,000円 | |||
| 保証金 | - | 償却・敷引 | - |
| 住宅保険料 | - | 更新料 | - |
| 保証会社利用 | 必須 | 保証会社名 | - |
| 保証会社費用 | - | 保証会社備考 | 保証会社利用必 初回保証委託料:月額賃料総額の50% |
| 契約形態 | - | 契約期間 | - |
| 入居・引渡期間 | 即時 | 現況 | - |
| 契約備考 | 飲食店や市役所、公園など徒歩圏内♪3LDKのマンションです! 3LDK 損保【1.9万円2年】 バストイレ別、エアコン、クロゼット、室内洗濯置、シューズボックス、角住戸、温水洗浄便座、エレベーター、洗面所独立、洗面化粧台、押入、即入居可、礼金不要、照明付、仲手0.55ヶ月、敷金2ヶ月、一部フローリング、平面駐車場、和室、都市ガス、BS | ||
部屋の情報
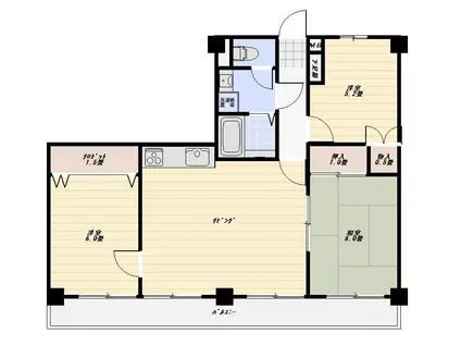
| 間取り | 3LDK | 専有面積 | 63.87m2 |
|---|---|---|---|
| 所在階 / 向き | 2階 / - | バルコニー面積 | - |
| 水道 / ガス | - | ||
| 設備 | バス・トイレ別、2階以上、エアコン、エレベーター、温水洗浄便座、角部屋、フローリング、洗髪洗面化粧台、BSアンテナ、洗濯機:室内 | ||
| 当社物件ID | 158574765 | ||
建物の情報
| 建物名 | トライネット | ||
|---|---|---|---|
| 所在地 | 鹿児島県薩摩川内市神田町 | ||
| 交通 | JR鹿児島本線 川内駅(鹿児島) 徒歩13分 | ||
| 階数 | 7階建 | 総戸数 | 42戸 |
| 築年月 | 1997年03月 / 築29年 | エレベーター | あり |
| 駐車場 | 空有 5500円 | バイク置き場 | - |
| 駐輪場 | - | 管理人/管理会社 | - |
| 周辺環境 | その他 川内小学校(小学校)まで650m その他 川内中央中学校(中学校)まで2200m | ||
| 建物種別 | マンション | 建物構造 | RC(鉄筋コンクリート) |
この部屋の取扱い不動産会社
| 会社名 | ハウスメイトネットワーク(有)マルゼン商事(SUUMO経由) | ||
|---|---|---|---|
| 所在地 | 鹿児島県薩摩川内市大小路町 19-8 | 交通 | - |
| 営業時間 | 9:30~18:30 | 定休日 | 毎週水曜日(繁忙期を除く) |
| 免許番号 | 鹿児島県知事1883 | 取引態様 | 仲介 |
| 不動産会社管理番号 | 100427463603 | 当社管理番号 | 89 |
| 所属団体 | (公社)鹿児島県宅地建物取引業協会会員 | ||
| 公正取引協議会 | (一社)九州不動産公正取引協議会加盟 | ||
| 取扱い物件情報 | 物件詳細へ | ||
※各種情報と現状に差異がある場合は、現状優先となります。問い合わせをすることで、より詳しい条件、情報を確認する事ができます。
提供:ハウスメイトネットワーク(有)マルゼン商事(SUUMO経由)
この物件が気になったら掲載期限まであと11日
トライネットに条件(家賃・エリア)が近い物件一覧
| 写真 | 家賃 管理費等 | 敷金 礼金 | 間取り 専有面積 | 築年数 | 最寄り駅 所在地 | キープ | 詳細 |
|---|---|---|---|---|---|---|---|
マンション 城西コーポ(2K/3階) | |||||||
![]() | 4.8万円 なし | 9.6万円 なし | 2K 37.26m2 | 築39年 | JR鹿児島本線 鹿児島中央駅 徒歩13分 鹿児島市電唐湊線 鹿児島中央駅前駅 徒歩15分 鹿児島県鹿児島市城西 | 詳細を見る | |
マンション フォレストテラス(1LDK/5階) | |||||||
![]() | 8.5万円 5,000円 | 12.75万円 8.5万円 | 1LDK 40.28m2 | 新築 | 鹿児島市電谷山線 甲東中学校前駅 徒歩5分 鹿児島市電唐湊線 天文館通駅 徒歩6分 鹿児島県鹿児島市樋之口町 | 詳細を見る | |
アパート コンフォートヴィラ(1LDK/1階) | |||||||
![]() | 5.8万円 2,300円 | なし 5.8万円 | 1LDK 46.49m2 | 築19年 | 鹿児島市電唐湊線 加治屋町駅 徒歩62分 鹿児島市電唐湊線 水族館口駅 徒歩67分 鹿児島市電唐湊線 市役所前駅(鹿児島) 徒歩74分 鹿児島県鹿児島市伊敷 | 詳細を見る | |
マンション エントピア鴨池第11(1K/6階) | |||||||
![]() | 3.5万円 2,000円 | なし なし | 1K 20m2 | 築29年 | 鹿児島市電谷山線 騎射場駅 徒歩3分 鹿児島市電唐湊線 郡元駅(JR) 徒歩5分 鹿児島県鹿児島市鴨池 | 詳細を見る | |
マンション アルカザールA(3DK/2階) | |||||||
![]() | 6.5万円 2,000円 | 13万円 なし | 3DK 56m2 | 築28年 | 鹿児島市電唐湊線 加治屋町駅 徒歩52分 JR鹿児島本線 鹿児島中央駅 徒歩57分 鹿児島県鹿児島市伊敷 | 詳細を見る | |
アパート リュミエール(2LDK/2階) | |||||||
![]() | 6.9万円 5,000円 | なし なし | 2LDK 59.58m2 | 築1年 | JR鹿児島本線 川内駅(鹿児島) 徒歩14分 JR鹿児島本線 隈之城駅 徒歩33分 肥薩おれんじ鉄道 上川内駅 徒歩57分 鹿児島県薩摩川内市宮崎町 | 詳細を見る | |
アパート ベル フルール GII(2DK/1階) | |||||||
![]() | 4.8万円 3,500円 | なし 4.8万円 | 2DK 50.94m2 | 築8年 | JR鹿児島本線 隈之城駅 徒歩21分 JR鹿児島本線 川内駅(鹿児島) 徒歩34分 JR鹿児島本線 木場茶屋駅 徒歩60分 鹿児島県薩摩川内市宮崎町 | 詳細を見る | |
アパート 城西ロイヤルハイム(1K/3階) | |||||||
![]() | 3.7万円 なし | なし なし | 1K 23.1m2 | 築45年 | JR指宿枕崎線 鹿児島中央駅 徒歩18分 鹿児島市電唐湊線 高見橋駅 徒歩18分 鹿児島県鹿児島市薬師 | 詳細を見る | |









