賃貸マンション
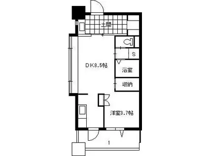
レインボー新栄の賃貸物件情報(1DK/3階)
| 家賃 | 管理費等 | 敷金 | 礼金 | 間取り | 専有面積 |
|---|---|---|---|---|---|
| 5.7万円 | 3,000円 | 11.4万円 | なし | 1DK | 31.48m2 |
入居決定でお祝い金最大100,000円
- 保証金
- -
- 償却・敷引
- 8.55万円
- 築年数
- 築11年
- 所在階
- 3階
- 向き
- 南
- 交通
- 鹿児島市電谷山線 二軒茶屋駅(鹿児島) 徒歩5分
鹿児島市電谷山線 南鹿児島駅前駅 徒歩10分
JR指宿枕崎線 南鹿児島駅 徒歩12分
- 所在地
- 鹿児島県鹿児島市新栄町
レインボー新栄
[地図を表示]
Point
鹿児島市新栄町にある1DKのお部屋(^^)南鹿児島駅徒歩9分で通勤便利♪スーパーや商業施設も近く、オートロック・ネット無料付きの一人暮らし向け物件です(^^)/詳しくはユーミーネットまで☆
提供:ユーミーネット鹿児島南店ユーミーコーポレーション(株)(SUUMO経由)

詳細情報 レインボー新栄
物件紹介
レインボー新栄は鹿児島市電谷山線二軒茶屋駅から徒歩5分にあり、駅近で通勤通学に便利なマンションです。
このお部屋は2階以上に位置しているので、通行人や周囲の住人からの視線が気になりにくく、防犯面でも安心。建物のエントランスはオートロックがついており、インターホンにはTVモニタもついているため、相手の顔を確認してから来客対応することができます。
人気の南向き・フローリングのお部屋。角部屋でもあるため、周囲の居住者の生活音も気になりにくい場所です。バス・トイレ別の仕様で、のんびりお風呂タイムも楽しめます。また、浴室乾燥機を使えば、雨の日でもお洗濯は問題ありません。
通信設備面では、インターネットが無料で使えるので、月々の出費を抑えられるのも魅力です。また、BSアンテナもありますので、おうち時間も充実するでしょう(別途工事、BSの契約料等が必要な場合あり)。
建物にはエレベーターがついているので、重い荷物があっても安心。
このお部屋は2階以上に位置しているので、通行人や周囲の住人からの視線が気になりにくく、防犯面でも安心。建物のエントランスはオートロックがついており、インターホンにはTVモニタもついているため、相手の顔を確認してから来客対応することができます。
人気の南向き・フローリングのお部屋。角部屋でもあるため、周囲の居住者の生活音も気になりにくい場所です。バス・トイレ別の仕様で、のんびりお風呂タイムも楽しめます。また、浴室乾燥機を使えば、雨の日でもお洗濯は問題ありません。
通信設備面では、インターネットが無料で使えるので、月々の出費を抑えられるのも魅力です。また、BSアンテナもありますので、おうち時間も充実するでしょう(別途工事、BSの契約料等が必要な場合あり)。
建物にはエレベーターがついているので、重い荷物があっても安心。
お金・契約の情報
※「-」と表示されているものは、実際は料金が発生するものもございます。詳細はお問い合わせください。
| 家賃 | 5.7万円 | 管理費・共益費 | 3,000円 |
|---|---|---|---|
| 敷金 | 11.4万円 | 礼金 | なし |
| 入居決定でお祝い金最大100,000円 | |||
| 保証金 | - | 償却・敷引 | 8.55万円 |
| 住宅保険料 | - | 更新料 | - |
| 保証会社利用 | 必須 | 保証会社名 | - |
| 保証会社費用 | - | 保証会社備考 | 保証会社利用必 加入要要確認 |
| 契約形態 | - | 契約期間 | - |
| 入居・引渡期間 | 相談 | 現況 | - |
| 契約備考 | ネット初期登録料2,000 合計2.62万円(内訳:鍵交換費用18700円/ネット登録料2000円/クラサポ登録料5500円) 定額水道料2500円/月 1DK 単身者可 普通借家2年 損保【1.8万円2年】 バストイレ別、エアコン、フローリング、TVインターホン、浴室乾燥機、オートロック、室内洗濯置、南向き、角住戸、エレベーター、駐輪場、光ファイバー、礼金不要、出窓、2沿線利用可、ネット使用料不要、3駅以上利用可、駅徒歩5分以内、プロパンガス、BS、IT重説対応物件、初期費用カード決済可 | ||
部屋の情報
| 間取り | 1DK | 専有面積 | 31.48m2 |
|---|---|---|---|
| 所在階 / 向き | 3階 / 南 | バルコニー面積 | - |
| 水道 / ガス | - | ||
| 設備 | バス・トイレ別、2階以上、オートロック、テレビドアホン、浴室乾燥機、インターネット対応、エアコン、エレベーター、南向き、角部屋、フローリング、BSアンテナ、インターネット使用料無料、洗濯機:室内 | ||
| 当社物件ID | 15814495 | ||
建物の情報
| 建物名 | レインボー新栄 | ||
|---|---|---|---|
| 所在地 | 鹿児島県鹿児島市新栄町 | ||
| 交通 | 鹿児島市電谷山線 二軒茶屋駅(鹿児島) 徒歩5分 鹿児島市電谷山線 南鹿児島駅前駅 徒歩10分 JR指宿枕崎線 南鹿児島駅 徒歩12分 | ||
| 階数 | 8階建 | 総戸数 | 49戸 |
| 築年月 | 2015年03月 / 築11年 | エレベーター | あり |
| 駐車場 | 空有 7000円 | バイク置き場 | - |
| 駐輪場 | あり | 管理人/管理会社 | - |
| 周辺環境 | その他 鹿児島市立南小学校(小学校)まで494m その他 鹿児島市立南中学校(中学校)まで575m その他 ファミリーマート 宇宿一丁目店(コンビニ)まで59m その他 宮崎太陽銀行南鹿児島支店(銀行)まで245m その他 ファミリーマート 鹿児島南港店(コンビニ)まで387m その他 100円ショップセリアサンキュー新栄店(スーパー)まで352m | ||
| 建物種別 | マンション | 建物構造 | RC(鉄筋コンクリート) |
この部屋の取扱い不動産会社
| 会社名 | ユーミーネット鹿児島南店ユーミーコーポレーション(株)(SUUMO経由) | ||
|---|---|---|---|
| 所在地 | 鹿児島県鹿児島市宇宿2-15-14 | 交通 | - |
| 営業時間 | 10:00~18:00 | 定休日 | 水曜 祝日 |
| 免許番号 | 国土交通大臣9190 | 取引態様 | 仲介 |
| 不動産会社管理番号 | 100480700528 | 当社管理番号 | 89 |
| 所属団体 | (公社)鹿児島県宅地建物取引業協会会員 | ||
| 公正取引協議会 | (一社)九州不動産公正取引協議会加盟 | ||
| 取扱い物件情報 | 物件詳細へ | ||
※各種情報と現状に差異がある場合は、現状優先となります。問い合わせをすることで、より詳しい条件、情報を確認する事ができます。
提供:ユーミーネット鹿児島南店ユーミーコーポレーション(株)(SUUMO経由)
この物件が気になったら掲載期限まであと11日
レインボー新栄に条件(家賃・エリア)が近い物件一覧
| 写真 | 家賃 管理費等 | 敷金 礼金 | 間取り 専有面積 | 築年数 | 最寄り駅 所在地 | キープ | 詳細 |
|---|---|---|---|---|---|---|---|
マンション 前野ビル(1LDK/3階) | |||||||
![]() | 6.3万円 なし | 12.6万円 なし | 1LDK 30.87m2 | 築7年 | JR鹿児島本線 鹿児島中央駅 徒歩8分 鹿児島市電唐湊線 鹿児島中央駅前駅 徒歩12分 鹿児島県鹿児島市薬師 | 詳細を見る | |
アパート ヴィラサンパティークF棟(2LDK/2階) | |||||||
![]() | 5.5万円 2,500円 | なし なし | 2LDK 66.72m2 | 築12年 | 鹿児島県薩摩川内市宮崎町 | 詳細を見る | |
マンション 福元ビル(ワンルーム/2階) | |||||||
![]() | 3.5万円 なし | 5万円 なし | ワンルーム 21.24m2 | 築32年 | 鹿児島市電唐湊線 唐湊駅 徒歩1分 鹿児島市電谷山線 騎射場駅 徒歩13分 鹿児島県鹿児島市郡元 | 詳細を見る | |
アパート レオパレスうおみ(1K/2階) | |||||||
![]() | 3.8万円 5,500円 | なし なし | 1K 20.28m2 | 築21年 | 鹿児島県鹿児島市魚見町 | 詳細を見る | |
マンション ドリーム・S(2LDK/1階) | |||||||
![]() | 6.1万円 なし | なし なし | 2LDK 60.21m2 | 築18年 | JR指宿枕崎線 坂之上駅 徒歩6分 鹿児島県鹿児島市坂之上 | 詳細を見る | |
アパート ネフリ上塩屋(1LDK/2階) | |||||||
![]() | 6.7万円 5,000円 | なし 9万円 | 1LDK 46.98m2 | 築6年 | 鹿児島市谷山線 上塩屋駅 徒歩1分 鹿児島県鹿児島市東谷山1丁目 | 詳細を見る | |
アパート サンリットK(1LDK/1階) | |||||||
![]() | 4.35万円 1,800円 | なし 4.35万円 | 1LDK 35.18m2 | 築14年 | JR指宿枕崎線 宇宿駅 徒歩15分 鹿児島市電谷山線 宇宿一丁目駅 徒歩17分 鹿児島県鹿児島市紫原 | 詳細を見る | |
マンション ピュアコート(ワンルーム/7階) | |||||||
![]() | 5.3万円 3,000円 | 10.6万円 なし | ワンルーム 29.61m2 | 築15年 | 鹿児島市唐湊線 天文館通駅 徒歩7分 鹿児島県鹿児島市松原町 | 詳細を見る | |









