賃貸マンション
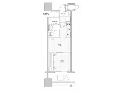
TOPAZ本厚木の賃貸物件情報(1DK/15階)
| 家賃 | 管理費等 | 敷金 | 礼金 | 間取り | 専有面積 |
|---|---|---|---|---|---|
| 10.7万円 | なし | なし | 10.7万円 | 1DK | 25.19m2 |
入居決定でお祝い金最大100,000円
- 保証金
- -
- 償却・敷引
- -
- 築年数
- 築3年
- 所在階
- 15階
- 向き
- 南
Point
お部屋探しはタウンハウジング神奈川本厚木店までぜひご来店ください。お客様のご希望のお部屋をとことんお探し致します。お部屋探しのご相談やご質問などお気軽に当社までご連絡ください。
提供:(株)タウンハウジング神奈川 本厚木店(SUUMO経由)

詳細情報 TOPAZ本厚木
物件紹介
TOPAZ本厚木は小田急小田原線本厚木駅から徒歩5分にあり、駅近で通勤通学に便利なマンションです。
このお部屋は2階以上に位置しているので、通行人や周囲の住人からの視線が気になりにくく、防犯面でも安心。インターホンにはTVモニタもついているため、相手の顔を確認してから来客対応することができます。
人気の南向きのお部屋。また、フローリングなのでお掃除もラクラク。キッチンはシステムキッチン仕様になっていますので、お料理好きの方にもぴったり。バス・トイレは別なので、のんびりお風呂タイムも楽しめるでしょう。また、雨の日でも浴室乾燥機を使えば、お洗濯も問題ありません。
通信設備面では、インターネットが無料で使えるので、月々の出費を抑えられるのも魅力です。また、BSアンテナ・CSアンテナもありますので、おうち時間も充実するでしょう(別途工事、BS・CSの契約料等が必要な場合あり)。
建物にはエレベーターがついているので、重い荷物があっても安心。共用部には宅配ボックスが設定されているので、不在の時にも荷物を受け取ることができます。
このお部屋は2階以上に位置しているので、通行人や周囲の住人からの視線が気になりにくく、防犯面でも安心。インターホンにはTVモニタもついているため、相手の顔を確認してから来客対応することができます。
人気の南向きのお部屋。また、フローリングなのでお掃除もラクラク。キッチンはシステムキッチン仕様になっていますので、お料理好きの方にもぴったり。バス・トイレは別なので、のんびりお風呂タイムも楽しめるでしょう。また、雨の日でも浴室乾燥機を使えば、お洗濯も問題ありません。
通信設備面では、インターネットが無料で使えるので、月々の出費を抑えられるのも魅力です。また、BSアンテナ・CSアンテナもありますので、おうち時間も充実するでしょう(別途工事、BS・CSの契約料等が必要な場合あり)。
建物にはエレベーターがついているので、重い荷物があっても安心。共用部には宅配ボックスが設定されているので、不在の時にも荷物を受け取ることができます。
お金・契約の情報
※「-」と表示されているものは、実際は料金が発生するものもございます。詳細はお問い合わせください。
| 家賃 | 10.7万円 | 管理費・共益費 | なし |
|---|---|---|---|
| 敷金 | なし | 礼金 | 10.7万円 |
| 入居決定でお祝い金最大100,000円 | |||
| 保証金 | - | 償却・敷引 | - |
| 住宅保険料 | - | 更新料 | - |
| 保証会社利用 | 必須 | 保証会社名 | - |
| 保証会社費用 | - | 保証会社備考 | 保証会社利用必 賃貸保証料:0.30ヶ月 |
| 契約形態 | - | 契約期間 | - |
| 入居・引渡期間 | 即時 | 現況 | - |
| 契約備考 | 黄色い看板が目印の当社タウンハウジング本厚木店は、地域に馴染み、近隣業者様ともネットワークも生かして、お客様にあったお部屋をとことんお探し致します。住みたい街ランキング1位の本厚木周辺でのお部屋探しはぜひタウンハウジング本厚木店まで宜しくお願い致します。 合計2.42万円(内訳:鍵交換代:24200円) 1DK 単身者可 普通借家2年 損保【2.42万円2年】 バストイレ別、バルコニー、エアコン、クロゼット、フローリング、TVインターホン、浴室乾燥機、室内洗濯置、陽当り良好、シューズボックス、システムキッチン、南向き、温水洗浄便座、脱衣所、エレベーター、洗面所独立、洗面化粧台、駐輪場、宅配ボックス、押入、即入居可、閑静な住宅地、最上階、BS・CS、敷金不要、独立型キッチン、全居室収納、全居室洋室、保証人不要、単身者相談、バイク置場、全居室フローリング、2沿線利用可、ネット専用回線、駅まで平坦、ネット使用料不要、眺望良好、保証金不要、築2年以内、平坦地、南面リビング、学生相談、一部フローリング、前面棟無、始発駅、2駅利用可、駅前、駅徒歩5分以内、駅徒歩10分以内、高層階、上階無し、敷地内ごみ置き場、都市ガス、洗面所にドア、南面バルコニー、室内物干機、礼金1ヶ月、IT重説対応物件、初期費用カード決済可、通風良好 | ||
部屋の情報
| 間取り | 1DK | 専有面積 | 25.19m2 |
|---|---|---|---|
| 所在階 / 向き | 15階 / 南 | バルコニー面積 | - |
| 水道 / ガス | - | ||
| 設備 | バス・トイレ別、2階以上、テレビドアホン、宅配ボックス、浴室乾燥機、インターネット対応、システムキッチン、エアコン、エレベーター、温水洗浄便座、南向き、バルコニー、フローリング、洗髪洗面化粧台、CSアンテナ、BSアンテナ、インターネット使用料無料、洗濯機:室内 | ||
| 当社物件ID | 143074634 | ||
建物の情報
| 建物名 | TOPAZ本厚木 | ||
|---|---|---|---|
| 所在地 | 神奈川県厚木市中町 | ||
| 交通 | 小田急小田原線 本厚木駅 徒歩5分 小田急小田原線 厚木駅 徒歩27分 JR相模線 社家駅 車で9分 | ||
| 階数 | 15階建 | 総戸数 | - |
| 築年月 | 2023年10月 / 築3年 | エレベーター | あり |
| 駐車場 | 近隣 300m19800円 | バイク置き場 | あり |
| 駐輪場 | あり | 管理人/管理会社 | - |
| 周辺環境 | その他 セブンイレブン(飲食店)まで130m その他 ファミリーマート(コンビニ)まで380m その他 業務スーパー 本厚木店(コンビニ)まで130m その他 本厚木ミロード2(ショッピングセンター)まで320m | ||
| 建物種別 | マンション | 建物構造 | RC(鉄筋コンクリート) |
この部屋の取扱い不動産会社
| 会社名 | (株)タウンハウジング神奈川 本厚木店(SUUMO経由) | ||
|---|---|---|---|
| 所在地 | 神奈川県厚木市旭町1-27-8 エバーズ第3本厚木1階 | 交通 | - |
| 営業時間 | AM10:00~PM7:00 | 定休日 | 水曜日 |
| 免許番号 | 国土交通大臣9928 | 取引態様 | 仲介 |
| 不動産会社管理番号 | 100492394971 | 当社管理番号 | 89 |
| 所属団体 | (公社)神奈川県宅地建物取引業協会会員 | ||
| 公正取引協議会 | (公社)首都圏不動産公正取引協議会加盟 | ||
| 取扱い物件情報 | 物件詳細へ | ||
※各種情報と現状に差異がある場合は、現状優先となります。問い合わせをすることで、より詳しい条件、情報を確認する事ができます。
提供:(株)タウンハウジング神奈川 本厚木店(SUUMO経由)
この物件が気になったら掲載期限まであと11日
TOPAZ本厚木に条件(家賃・エリア)が近い物件一覧
| 写真 | 家賃 管理費等 | 敷金 礼金 | 間取り 専有面積 | 築年数 | 最寄り駅 所在地 | キープ | 詳細 |
|---|---|---|---|---|---|---|---|
マンション グレーシアさがみ野テラス(1LDK/5階) | |||||||
![]() | 9.4万円 8,000円 | 9.4万円 18.8万円 | 1LDK 44.4m2 | 築1年 | 相鉄本線 かしわ台駅 徒歩5分 相鉄本線 さがみ野駅 徒歩6分 相鉄本線 相模大塚駅 徒歩22分 神奈川県海老名市柏ケ谷 | 詳細を見る | |
アパート HAKハウス(2DK/1階) | |||||||
![]() | 6.8万円 2,000円 | なし なし | 2DK 50.22m2 | 築36年 | 小田急江ノ島線 東林間駅 徒歩8分 小田急小田原線 相模大野駅 徒歩13分 神奈川県相模原市南区東林間 | 詳細を見る | |
マンション メゾンアゼリア(3DK/1階) | |||||||
![]() | 8万円 なし | 12万円 なし | 3DK 54.44m2 | 築37年 | 横浜線 矢部駅 徒歩8分 横浜線 淵野辺駅 徒歩19分 神奈川県相模原市中央区矢部2丁目 | 詳細を見る | |
アパート エスペリア相模が丘5丁目(1LDK/1階) | |||||||
![]() | 11.2万円 6,000円 | なし 11.2万円 | 1LDK 43.8m2 | 築1年 | 小田急小田原線 小田急相模原駅 徒歩6分 小田急江ノ島線 東林間駅 徒歩25分 小田急小田原線 相武台前駅 徒歩30分 神奈川県座間市相模が丘 | 詳細を見る | |
一戸建て 相模鉄道本線 相模大塚駅 徒歩9分 築46年(3DK) | |||||||
![]() | 8.7万円 なし | 8.7万円 なし | 3DK 58.78m2 | 築46年 | 相模鉄道本線 相模大塚駅 徒歩9分 相模鉄道本線 さがみ野駅 徒歩12分 神奈川県海老名市東柏ケ谷4丁目 | 詳細を見る | |
アパート ククナSO(1LDK/1階) | |||||||
![]() | 7.7万円 4,000円 | 7.7万円 なし | 1LDK 34.81m2 | 築1年 | 相鉄本線 海老名駅 徒歩39分 神奈川県海老名市国分寺台 | 詳細を見る | |
マンション N-STAGE 平塚Ⅱ(1K/5階) | |||||||
![]() | 7.1万円 5,000円 | なし 7.1万円 | 1K 23.33m2 | 築3年 | 東海道本線 平塚駅 徒歩9分 湘南新宿ライン高海 平塚駅 徒歩9分 神奈川県平塚市明石町 | 詳細を見る | |
マンション ベルフルール(1LDK/1階) | |||||||
![]() | 7.9万円 3,000円 | 7.9万円 なし | 1LDK 50.89m2 | 築19年 | 小田急電鉄小田原線 伊勢原駅 徒歩7分 神奈川県伊勢原市伊勢原4丁目 | 詳細を見る | |








