賃貸マンション
日神パレステージ護国寺の賃貸物件情報(1K/5階)
| 家賃 | 管理費等 | 敷金 | 礼金 | 間取り | 専有面積 |
|---|---|---|---|---|---|
| 7万円 | 5,000円 | 7万円 | 7万円 | 1K | 18.02m2 |
入居決定でお祝い金最大100,000円
- 保証金
- -
- 償却・敷引
- -
- 築年数
- 築31年
- 所在階
- 5階
- 向き
- 西
Point
オーナー様と直接取引している物件を10万戸以上保有しているため、賃料、初期費用、賃料発生日など諸条件を何でもご相談くださいませ
提供:オレンジルーム(株)(SUUMO経由)

詳細情報 日神パレステージ護国寺
物件紹介
日神パレステージ護国寺は東京メトロ有楽町線護国寺駅から徒歩5分にあり、駅近で通勤通学に便利なマンションです。
このお部屋は2階以上に位置しているので、通行人や周囲の住人からの視線が気になりにくく、防犯面でも安心。建物のエントランスはオートロックがついており、インターホンにはTVモニタもついているため、相手の顔を確認してから来客対応することができます。
人気の角部屋で周囲の居住者の生活音も気になりにくく、また、フローリングのお部屋なのでお掃除もラクラク。キッチンはシステムキッチン仕様になっていますので、お料理好きの方にもぴったり。
通信設備面では、インターネット接続が可能です。また、BSアンテナもありますので、おうち時間も充実するでしょう(別途工事、契約料が必要な場合あり)。
建物にはエレベーターがついているので、重い荷物があっても安心。
このお部屋は2階以上に位置しているので、通行人や周囲の住人からの視線が気になりにくく、防犯面でも安心。建物のエントランスはオートロックがついており、インターホンにはTVモニタもついているため、相手の顔を確認してから来客対応することができます。
人気の角部屋で周囲の居住者の生活音も気になりにくく、また、フローリングのお部屋なのでお掃除もラクラク。キッチンはシステムキッチン仕様になっていますので、お料理好きの方にもぴったり。
通信設備面では、インターネット接続が可能です。また、BSアンテナもありますので、おうち時間も充実するでしょう(別途工事、契約料が必要な場合あり)。
建物にはエレベーターがついているので、重い荷物があっても安心。
お金・契約の情報
※「-」と表示されているものは、実際は料金が発生するものもございます。詳細はお問い合わせください。
| 家賃 | 7万円 | 管理費・共益費 | 5,000円 |
|---|---|---|---|
| 敷金 | 7万円 | 礼金 | 7万円 |
| 入居決定でお祝い金最大100,000円 | |||
| 保証金 | - | 償却・敷引 | - |
| 住宅保険料 | - | 更新料 | - |
| 保証会社利用 | 必須 | 保証会社名 | - |
| 保証会社費用 | - | 保証会社備考 | 保証会社利用必 初回保証料:総賃料の50%、月額保証料:800円 |
| 契約形態 | - | 契約期間 | - |
| 入居・引渡期間 | 即時 | 現況 | - |
| 契約備考 | ■2ヶ月前解約(個人契約)■更新事務手数料:41250円(税込) 合計6.05万円(内訳:設備補償会費(税込)/2年間1.65万円24時間サポート1.65万円鍵交換代2.75万円) 更新料 新賃料1.00ヶ月分 室内清掃費用 49500円 賃料等振替料(税込) 月額330円 1K 二人入居可 普通借家2年 損保【2.3万円2年】 バルコニー、エアコン、クロゼット、フローリング、TVインターホン、オートロック、室内洗濯置、シューズボックス、角住戸、エレベーター、駐輪場、IHクッキングヒーター、照明付、分譲賃貸、24時間ゴミ出し可、敷地内ごみ置き場、都市ガス、BS、高速ネット対応、IT重説対応物件、初期費用カード決済可 | ||
部屋の情報
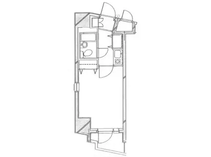
| 間取り | 1K | 専有面積 | 18.02m2 |
|---|---|---|---|
| 所在階 / 向き | 5階 / 西 | バルコニー面積 | 2m2 |
| 水道 / ガス | - | ||
| 設備 | 2階以上、オートロック、テレビドアホン、インターネット対応、エアコン、エレベーター、角部屋、バルコニー、フローリング、コンロ:IH、BSアンテナ、洗濯機:室内 | ||
| 当社物件ID | 7646006 | ||
建物の情報
| 建物名 | 日神パレステージ護国寺 | ||
|---|---|---|---|
| 所在地 | 東京都文京区大塚 | ||
| 交通 | 東京メトロ有楽町線 護国寺駅 徒歩5分 東京メトロ丸ノ内線 新大塚駅 徒歩8分 東京メトロ丸ノ内線 茗荷谷駅 徒歩11分 | ||
| 階数 | 地下1地上12階建 | 総戸数 | 43戸 |
| 築年月 | 1995年08月 / 築31年 | エレベーター | あり |
| 駐車場 | なし | バイク置き場 | - |
| 駐輪場 | あり | 管理人/管理会社 | - |
| 周辺環境 | その他 まいばすけっと 大塚5丁目店(スーパー)まで337m その他 maruetsu(マルエツ) プチ 護国寺駅前店(スーパー)まで466m その他 アトレヴィ大塚(ショッピングセンター)まで1195m その他 東京都立大塚病院(病院)まで744m その他 護国寺(その他)まで522m その他 大塚公園(公園)まで515m | ||
| 建物種別 | マンション | 建物構造 | SRC(鉄骨鉄筋コンクリート) |
この部屋の取扱い不動産会社
| 会社名 | ハウス・トゥ・ハウス・ネットサービス(株)西日暮里店(SUUMO経由) | ||
|---|---|---|---|
| 所在地 | 東京都荒川区西日暮里5-21-5 | 交通 | - |
| 営業時間 | 9:30~18:30 | 定休日 | 水曜日 (1月~3月無休) |
| 免許番号 | 国土交通大臣7400 | 取引態様 | 仲介 |
| 不動産会社管理番号 | 100412479452 | 当社管理番号 | 89 |
| 所属団体 | (公社)全日本不動産協会東京都本部会員 | ||
| 公正取引協議会 | (公社)首都圏不動産公正取引協議会加盟 | ||
| 取扱い物件情報 | 物件詳細へ | ||
※各種情報と現状に差異がある場合は、現状優先となります。問い合わせをすることで、より詳しい条件、情報を確認する事ができます。
提供:ハウス・トゥ・ハウス・ネットサービス(株)西日暮里店(SUUMO経由)
この物件が気になったら掲載期限まであと10日
日神パレステージ護国寺に条件(家賃・エリア)が近い物件一覧
| 写真 | 家賃 管理費等 | 敷金 礼金 | 間取り 専有面積 | 築年数 | 最寄り駅 所在地 | キープ | 詳細 |
|---|---|---|---|---|---|---|---|
マンション カルム浅草今戸(1K/6階) | |||||||
![]() | 11万円 1万円 | 11万円 11万円 | 1K 27.14m2 | 築5年 | 東京地下鉄銀座線 浅草駅(東武・都営・メトロ) 徒歩16分 東京都浅草線 本所吾妻橋駅 徒歩20分 東京都台東区今戸1丁目 | 詳細を見る | |
マンション プレール・ドゥーク東京イースト Ⅳ RIVER SIDE(1K/9階) | |||||||
![]() | 7.5万円 1万円 | なし 7.5万円 | 1K 21.73m2 | 築18年 | 東京地下鉄日比谷線 南千住駅 徒歩10分 つくばエクスプレス 南千住駅 徒歩10分 常磐線 南千住駅 徒歩10分 東京都荒川区南千住7丁目 | 詳細を見る | |
マンション 菱和パレス御茶ノ水駿河台(1K/9階) | |||||||
![]() | 10.5万円 9,000円 | 10.5万円 10.5万円 | 1K 22.41m2 | 築26年 | 東京都新宿線 神保町駅 徒歩5分 東京都新宿線 小川町駅(東京) 徒歩5分 東京地下鉄丸ノ内線 淡路町駅 徒歩5分 東京都千代田区神田錦町3丁目 | 詳細を見る | |
マンション 大野第一ビル(ワンルーム/7階) | |||||||
![]() | 6.3万円 5,000円 | 12.6万円 6.3万円 | ワンルーム 13.38m2 | 築39年 | 東京都大江戸線 新御徒町駅 徒歩3分 東京都浅草線 蔵前駅 徒歩9分 山手線 御徒町駅 徒歩12分 東京都台東区三筋2丁目 | 詳細を見る | |
マンション AQUAGARDEN今戸(1K/6階) | |||||||
![]() | 8.3万円 5,800円 | なし 9.7万円 | 1K 25.25m2 | 築16年 | 東京地下鉄日比谷線 南千住駅 徒歩17分 東武伊勢崎・大師線 浅草駅(東武・都営・メトロ) 徒歩19分 東京地下鉄日比谷線 三ノ輪駅 徒歩19分 東京都台東区今戸2丁目 | 詳細を見る | |
マンション バージュアル新御徒町(1K/2階) | |||||||
![]() | 10.9万円 1万円 | なし なし | 1K 28.81m2 | 築18年 | 東京都大江戸線 新御徒町駅 徒歩6分 東京都浅草線 蔵前駅 徒歩7分 東京地下鉄銀座線 田原町駅(東京) 徒歩11分 東京都台東区三筋2丁目 | 詳細を見る | |
マンション ガラ・シティ茗荷谷(1K/10階) | |||||||
![]() | 8.8万円 9,000円 | 8.8万円 17.6万円 | 1K 22.41m2 | 築25年 | 東京地下鉄丸ノ内線 茗荷谷駅 徒歩6分 東京地下鉄丸ノ内線 新大塚駅 徒歩9分 東京地下鉄有楽町線 護国寺駅 徒歩9分 東京都文京区大塚3丁目 | 詳細を見る | |







