賃貸アパート
KSコーポの賃貸物件情報(2K/2階)
| 家賃 | 管理費等 | 敷金 | 礼金 | 間取り | 専有面積 |
|---|---|---|---|---|---|
| 5.3万円 | 2,000円 | なし | なし | 2K | 32.13m2 |
入居決定でお祝い金最大100,000円
Point
洗面化粧台を採用しているので、歯ブラシやドライヤーなどをまとめて収納できます。
提供:(株)All Round(SUUMO経由)

詳細情報 KSコーポ
物件紹介
KSコーポは京浜東北・根岸線石川町駅から徒歩12分にあるアパートです。
このお部屋は2階以上に位置しているので、通行人や周囲の住人からの視線が気になりにくく、防犯面でも安心です。
人気の南向き・フローリングのお部屋。角部屋でもあるため、周囲の居住者の生活音も気になりにくい場所です。バス・トイレ別の仕様で、のんびりお風呂タイムも楽しめます。
このお部屋は2階以上に位置しているので、通行人や周囲の住人からの視線が気になりにくく、防犯面でも安心です。
人気の南向き・フローリングのお部屋。角部屋でもあるため、周囲の居住者の生活音も気になりにくい場所です。バス・トイレ別の仕様で、のんびりお風呂タイムも楽しめます。
お金・契約の情報
※「-」と表示されているものは、実際は料金が発生するものもございます。詳細はお問い合わせください。
| 家賃 | 5.3万円 | 管理費・共益費 | 2,000円 |
|---|---|---|---|
| 敷金 | なし | 礼金 | なし |
| 入居決定でお祝い金最大100,000円 | |||
| 保証金 | - | 償却・敷引 | - |
| 住宅保険料 | 1円 | 更新料 | - |
| その他費用 | くらしーど24円:1.65万円 | ||
| 保証会社利用 | 必須 | 保証会社名 | 日本セーフティー |
| 保証会社費用 | - | 保証会社備考 | 初回保証料:総賃料の60%〜、月額保証料:800円/月、口振手数料:440円/月 |
| 契約形態 | - | 契約期間 | 2年 |
| 入居・引渡期間 | 2026年04月上旬 | 現況 | - |
| 入居可能条件 | 事務所可、2人入居可 | ||
| 契約備考 | 鍵交換費用:22000 室内清掃費用:53000 その他設備/条件:室内洗濯機置き場、クローゼット | ||
部屋の情報
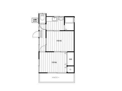
| 間取り | 2K | 専有面積 | 32.13m2 |
|---|---|---|---|
| 間取り詳細 | 洋室(6帖)、洋室(6帖) | ||
| 所在階 / 向き | 2階 / 南 | バルコニー面積 | - |
| 水道 / ガス | 水道【公営】、ガス【都市】 | ||
| 設備 | バス・トイレ別、追い焚き、エアコン、角部屋、バルコニー、フローリング、シャワー、給湯 | ||
| 当社物件ID | 22782395 | ||
建物の情報
| 建物名 | KSコーポ | ||
|---|---|---|---|
| 所在地 | 神奈川県横浜市中区柏葉 | ||
| 交通 | 京浜東北・根岸線 石川町駅 徒歩12分 京浜東北・根岸線 山手駅 徒歩14分 | ||
| 階数 | 2階建 | 総戸数 | - |
| 築年月 | 1985年07月 / 築41年 | エレベーター | - |
| 駐車場 | なし | バイク置き場 | - |
| 駐輪場 | - | 管理人/管理会社 | - |
| 周辺環境 | その他 ドラッグストア その他 公園 その他 銀行 その他 * | ||
| 建物種別 | アパート | 建物構造 | 木造 |
この部屋の取扱い不動産会社
| 会社名 | ハウスコム東神奈川株式会社 上大岡店 | ||
|---|---|---|---|
| 所在地 | 神奈川県横浜市港南区11-7第10オーヴァルビル1階 | 交通 | - |
| 営業時間 | 10:00~18:00 | 定休日 | - |
| 免許番号 | 神奈川県知事(1)第31769号 | 取引態様 | 仲介 |
| 不動産会社管理番号 | HC2-5413593-201-0017 | 当社管理番号 | 468 |
| 所属団体 | 、 | ||
| 取扱い物件情報 | 物件詳細へ | ||
※各種情報と現状に差異がある場合は、現状優先となります。問い合わせをすることで、より詳しい条件、情報を確認する事ができます。
提供:ハウスコム東神奈川株式会社 上大岡店
この物件が気になったら掲載期限まであと5日
KSコーポに条件(家賃・エリア)が近い物件一覧
| 写真 | 家賃 管理費等 | 敷金 礼金 | 間取り 専有面積 | 築年数 | 最寄り駅 所在地 | キープ | 詳細 |
|---|---|---|---|---|---|---|---|
アパート キュービック湘南壱番館(ワンルーム/3階) | |||||||
![]() | 4.9万円 3,500円 | なし なし | ワンルーム 20.12m2 | 築32年 | JR東海道本線 藤沢駅 徒歩25分 湘南モノレール 湘南深沢駅 徒歩29分 湘南モノレール 湘南町屋駅 徒歩37分 神奈川県藤沢市村岡東 | 詳細を見る | |
マンション 森島ビルII(ワンルーム/4階) | |||||||
![]() | 5.2万円 3,000円 | なし なし | ワンルーム 16m2 | 築33年 | JR京浜東北線 石川町駅 徒歩8分 JR根岸線 石川町駅 徒歩8分 ブルーライン 伊勢佐木長者町駅 徒歩8分 神奈川県横浜市中区長者町 | 詳細を見る | |
マンション KADOIE TSUJIDO(1K/1階) | |||||||
![]() | 7.5万円 5,000円 | なし なし | 1K 25.05m2 | 築12年 | 東海道本線 辻堂駅 徒歩11分 神奈川県藤沢市辻堂神台2丁目 | 詳細を見る | |
アパート パレット南生田(1LDK/2階) | |||||||
![]() | 5.15万円 2,500円 | 5.15万円 5.15万円 | 1LDK 26.82m2 | 築38年 | 小田急線 生田駅(神奈川) 徒歩12分 小田急線 読売ランド前駅 徒歩29分 小田急線 百合ケ丘駅 徒歩35分 神奈川県川崎市多摩区南生田 | 詳細を見る | |
アパート ユナイト追浜ブルターニュ(ワンルーム/2階) | |||||||
![]() | 4.1万円 4,500円 | なし なし | ワンルーム 12.5m2 | 築3年 | 京浜急行電鉄本線 追浜駅 徒歩12分 神奈川県横須賀市追浜本町1丁目 | 詳細を見る | |
アパート クレスト湘南(2DK/2階) | |||||||
![]() | 4.8万円 2,000円 | 4.8万円 なし | 2DK 39.74m2 | 築35年 | 神奈川県藤沢市大庭 | 詳細を見る | |
アパート コーポ山口(1LDK/1階) | |||||||
![]() | 5万円 なし | 5万円 なし | 1LDK 40.09m2 | 築60年 | 京急久里浜線 北久里浜駅 徒歩11分 神奈川県横須賀市池田町4丁目 | 詳細を見る | |
アパート レオパレスエポカ3(1K/2階) | |||||||
![]() | 5.3万円 5,000円 | なし 5.3万円 | 1K 19.87m2 | 築23年 | 神奈川県藤沢市大庭 | 詳細を見る | |








