賃貸マンション
オーヴィジョンクラス下関駅前の賃貸物件情報(2LDK/2階)
| 家賃 | 管理費等 | 敷金 | 礼金 | 間取り | 専有面積 |
|---|---|---|---|---|---|
| 7.8万円 | 5,000円 | 7.8万円 | 7.8万円 | 2LDK | 43m2 |
入居決定でお祝い金最大100,000円
Point
2026年2月完成予定。全住戸インターネット無料。カラーモニターインターホン付オートロック物件。
提供:(株)エストラスト不動産販売(SUUMO経由)

詳細情報 オーヴィジョンクラス下関駅前
物件紹介
オーヴィジョンクラス下関駅前はJR山陽本線下関駅から徒歩2分にあり、駅近で通勤通学に便利なマンションです。
このお部屋は2階以上に位置しているので通行人や周囲の住人からの視線が気になりにくく、建物のエントランスはオートロックがついているので防犯性が高くなっています。
人気の南向きのお部屋。また、フローリングなのでお掃除もラクラク。キッチンはシステムキッチン仕様になっていますので、お料理好きの方にもぴったり。また、バス・トイレは別で、のんびりお風呂タイムも楽しめるでしょう。
通信設備面では、インターネットが無料で使えるので、月々の出費を抑えられるのも魅力です。また、BSアンテナ・CSアンテナがありCATVにも対応しているので、おうち時間も充実するでしょう(別途工事、BS・CS・CATVの契約料等が必要な場合あり)。
建物にはエレベーターがついているので、重い荷物があっても安心。共用部には宅配ボックスが設定されているので、不在の時にも荷物を受け取ることができます。
このお部屋は2階以上に位置しているので通行人や周囲の住人からの視線が気になりにくく、建物のエントランスはオートロックがついているので防犯性が高くなっています。
人気の南向きのお部屋。また、フローリングなのでお掃除もラクラク。キッチンはシステムキッチン仕様になっていますので、お料理好きの方にもぴったり。また、バス・トイレは別で、のんびりお風呂タイムも楽しめるでしょう。
通信設備面では、インターネットが無料で使えるので、月々の出費を抑えられるのも魅力です。また、BSアンテナ・CSアンテナがありCATVにも対応しているので、おうち時間も充実するでしょう(別途工事、BS・CS・CATVの契約料等が必要な場合あり)。
建物にはエレベーターがついているので、重い荷物があっても安心。共用部には宅配ボックスが設定されているので、不在の時にも荷物を受け取ることができます。
お金・契約の情報
※「-」と表示されているものは、実際は料金が発生するものもございます。詳細はお問い合わせください。
| 家賃 | 7.8万円 | 管理費・共益費 | 5,000円 |
|---|---|---|---|
| 敷金 | 7.8万円 | 礼金 | 7.8万円 |
| 入居決定でお祝い金最大100,000円 | |||
| 保証金 | - | 償却・敷引 | - |
| 住宅保険料 | - | 更新料 | - |
| 保証会社利用 | 必須 | 保証会社名 | - |
| 保証会社費用 | - | 保証会社備考 | 保証会社利用必 保証会社利用必要 初回保証料:総賃料の50%、月額保証料:800円 |
| 契約形態 | - | 契約期間 | - |
| 入居・引渡期間 | - | 現況 | - |
| 契約備考 | 巡回管理/火災保険加入要/家賃保証会社加入要/ペット飼育不可/タバコ不可 ホームアシスト24:770円退去時ハウスクリーニング 66000円 2LDK 事務所利用不可 普通借家2年 損保【要】 バストイレ別、エアコン、フローリング、オートロック、室内洗濯置、シューズボックス、システムキッチン、温水洗浄便座、エレベーター、洗面所独立、2口コンロ、駐輪場、宅配ボックス、CATV、BS・CS、対面式キッチン、防犯カメラ、グリル付、敷金1ヶ月、バイク置場、全居室フローリング、駅まで平坦、ネット使用料不要、バリアフリー、浴室未使用、トイレ未使用、未入居、始発駅、駅前、風除室、敷地内ごみ置き場、平面駐車場、東南向き、当社管理物件、キッチン未使用、都市ガス、礼金1ヶ月 入居日:'26年3月上旬 | ||
部屋の情報
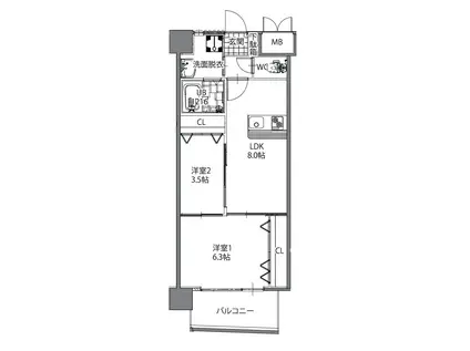
| 間取り | 2LDK | 専有面積 | 43m2 |
|---|---|---|---|
| 所在階 / 向き | 2階 / 南東 | バルコニー面積 | - |
| 水道 / ガス | - | ||
| 設備 | バス・トイレ別、2階以上、オートロック、宅配ボックス、インターネット対応、システムキッチン、エアコン、エレベーター、温水洗浄便座、南向き、フローリング、洗髪洗面化粧台、2口コンロ、CATV、CSアンテナ、BSアンテナ、インターネット使用料無料、洗濯機:室内 | ||
| 当社物件ID | 159711837 | ||
建物の情報
| 建物名 | オーヴィジョンクラス下関駅前 | ||
|---|---|---|---|
| 所在地 | 山口県下関市大和町 | ||
| 交通 | JR山陽本線 下関駅 徒歩2分 | ||
| 階数 | 10階建 | 総戸数 | 60戸 |
| 築年月 | 2026年02月 / 新築 | エレベーター | あり |
| 駐車場 | 空有 12000円 | バイク置き場 | あり |
| 駐輪場 | あり | 管理人/管理会社 | - |
| 周辺環境 | その他 リピエ下関(ショッピングセンター)まで262m その他 ゆめマート下関駅(スーパー)まで245m その他 マックスバリュシーモール店(スーパー)まで628m その他 セブンイレブンハートインJR下関駅東口店(コンビニ)まで220m その他 ココカラファインリピエ下関店(ドラッグストア)まで262m | ||
| 建物種別 | マンション | 建物構造 | RC(鉄筋コンクリート) |
この部屋の取扱い不動産会社
| 会社名 | (株)エストラスト不動産販売(SUUMO経由) | ||
|---|---|---|---|
| 所在地 | 山口県下関市竹崎町4-1-22 エストラストビル1階 | 交通 | - |
| 営業時間 | 9:00~18:00 | 定休日 | 水曜 |
| 免許番号 | 山口県知事3769 | 取引態様 | 代理 |
| 不動産会社管理番号 | 100458969665 | 当社管理番号 | 89 |
| 所属団体 | (公社)山口県宅地建物取引業協会会員 | ||
| 公正取引協議会 | 中国地区不動産公正取引協議会加盟 | ||
| 取扱い物件情報 | 物件詳細へ | ||
※各種情報と現状に差異がある場合は、現状優先となります。問い合わせをすることで、より詳しい条件、情報を確認する事ができます。
提供:(株)エストラスト不動産販売(SUUMO経由)
この物件が気になったら掲載期限まであと2日
オーヴィジョンクラス下関駅前の空き部屋一覧
全部で23の空き部屋があります。
オーヴィジョンクラス下関駅前に条件(家賃・エリア)が近い物件一覧
| 写真 | 家賃 管理費等 | 敷金 礼金 | 間取り 専有面積 | 築年数 | 最寄り駅 所在地 | キープ | 詳細 |
|---|---|---|---|---|---|---|---|
アパート アルカディア / インペリアル アルカディア(1LDK/1階) | |||||||
![]() | 5.9万円 4,500円 | なし 3万円 | 1LDK 45.84m2 | 築10年 | JR山陽本線 長府駅 徒歩21分 山口県下関市長府才川 | 詳細を見る | |
アパート クルム綾羅木(1LDK/1階) | |||||||
![]() | 6万円 3,000円 | なし 12万円 | 1LDK 35.21m2 | 新築 | 山陰本線 綾羅木駅 徒歩2分 山口県下関市綾羅木本町1丁目 | 詳細を見る | |
アパート カサブランカオアシスII(2LDK/1階) | |||||||
![]() | 5.2万円 2,000円 | なし 6.2万円 | 2LDK 57.26m2 | 築8年 | JR山陽本線 小月駅 徒歩13分 JR山陽本線 埴生駅 徒歩77分 JR山陽本線 長府駅 徒歩94分 山口県下関市小月西の台 | 詳細を見る | |
アパート 第三山下ビル(2LDK/2階) | |||||||
![]() | 4.8万円 2,000円 | なし なし | 2LDK 53.41m2 | 築32年 | JR小野田線 南中川駅 徒歩15分 山口県山陽小野田市中川 | 詳細を見る | |
アパート ジュリアス山の田(1LDK/1階) | |||||||
![]() | 6.09万円 4,500円 | なし 6.09万円 | 1LDK 41.01m2 | 築8年 | JR山陽本線 幡生駅 徒歩20分 山口県下関市山の田西町 | 詳細を見る | |
アパート グランディール コート(1LDK/1階) | |||||||
![]() | 5.98万円 5,500円 | なし 3万円 | 1LDK 40.14m2 | 築9年 | JR山陰本線 梶栗郷台地駅 徒歩8分 JR山陰本線 綾羅木駅 徒歩15分 JR山陽本線 新下関駅 徒歩46分 山口県下関市綾羅木新町 | 詳細を見る | |
アパート サニー・レジデンスA(2LDK/2階) | |||||||
![]() | 5.35万円 2,300円 | なし 6.35万円 | 2LDK 57.02m2 | 築19年 | JR小野田線 小野田駅 徒歩25分 JR山陽本線 小野田駅 徒歩26分 JR小野田線 目出駅 徒歩27分 山口県山陽小野田市大字西高泊 | 詳細を見る | |
アパート ハーフムーン(2DK/2階) | |||||||
![]() | 4.9万円 2,000円 | なし なし | 2DK 48.76m2 | 築28年 | 東海道・山陽新幹線 新下関駅 徒歩39分 山口県下関市大字田倉 | 詳細を見る | |









