賃貸マンション
SYFORME OMIYAの賃貸物件情報(1LDK/13階)
| 家賃 | 管理費等 | 敷金 | 礼金 | 間取り | 専有面積 |
|---|---|---|---|---|---|
| 13.05万円 | 1.2万円 | 13.05万円 | 13.05万円 | 1LDK | 30.37m2 |
入居決定でお祝い金最大100,000円
- 保証金
- -
- 償却・敷引
- -
- 築年数
- 新築(築1年)
- 所在階
- 13階
- 向き
- 南
Point
まずはお問い合わせ!
不動産会社は街のプロ、あなたに合った物件がきっと見つかります。
提供:ハウスコム埼玉株式会社 大宮東口店

詳細情報 SYFORME OMIYA
物件紹介
SYFORME OMIYAは京浜東北・根岸線大宮駅から徒歩8分にあり、駅近で通勤通学に便利なマンションです。
このお部屋は2階以上に位置しているので、通行人や周囲の住人からの視線が気になりにくく、防犯面でも安心。建物のエントランスはオートロックがついており、インターホンにはTVモニタもついているため、相手の顔を確認してから来客対応することができます。
人気の南向き・フローリングのお部屋。角部屋でもあるため、周囲の居住者の生活音も気になりにくい場所です。キッチンはシステムキッチン仕様になっていますので、お料理好きの方にもぴったり。バス・トイレは別なので、のんびりお風呂タイムも楽しめるでしょう。また、雨の日でも浴室乾燥機を使えば、お洗濯も問題ありません。
通信設備面では、インターネットが無料で使えるので、月々の出費を抑えられるのも魅力です。また、BSアンテナ・CSアンテナがありCATVにも対応しているので、おうち時間も充実するでしょう(別途工事、BS・CS・CATVの契約料等が必要な場合あり)。
建物にはエレベーターがついているので、重い荷物があっても安心。共用部には宅配ボックスが設定されているので、不在の時にも荷物を受け取ることができます。また、ペット飼育の相談ができますので、あなたの大切な家族の一員も快適に暮らせるか、ぜひ確認してみてください。
コンビニまで徒歩7分の場所にあり、日用品や食料品のお買い物にも便利です。
このお部屋は2階以上に位置しているので、通行人や周囲の住人からの視線が気になりにくく、防犯面でも安心。建物のエントランスはオートロックがついており、インターホンにはTVモニタもついているため、相手の顔を確認してから来客対応することができます。
人気の南向き・フローリングのお部屋。角部屋でもあるため、周囲の居住者の生活音も気になりにくい場所です。キッチンはシステムキッチン仕様になっていますので、お料理好きの方にもぴったり。バス・トイレは別なので、のんびりお風呂タイムも楽しめるでしょう。また、雨の日でも浴室乾燥機を使えば、お洗濯も問題ありません。
通信設備面では、インターネットが無料で使えるので、月々の出費を抑えられるのも魅力です。また、BSアンテナ・CSアンテナがありCATVにも対応しているので、おうち時間も充実するでしょう(別途工事、BS・CS・CATVの契約料等が必要な場合あり)。
建物にはエレベーターがついているので、重い荷物があっても安心。共用部には宅配ボックスが設定されているので、不在の時にも荷物を受け取ることができます。また、ペット飼育の相談ができますので、あなたの大切な家族の一員も快適に暮らせるか、ぜひ確認してみてください。
コンビニまで徒歩7分の場所にあり、日用品や食料品のお買い物にも便利です。
お金・契約の情報
※「-」と表示されているものは、実際は料金が発生するものもございます。詳細はお問い合わせください。
| 家賃 | 13.05万円 | 管理費・共益費 | 1.2万円 |
|---|---|---|---|
| 敷金 | 13.05万円 | 礼金 | 13.05万円 |
| 入居決定でお祝い金最大100,000円 | |||
| 保証金 | - | 償却・敷引 | - |
| 住宅保険料 | 1円 | 更新料 | - |
| その他費用 | SYLAプレミアムクラブ:2.42万円 | ||
| 保証会社利用 | 必須 | 保証会社名 | クレディセゾン |
| 保証会社費用 | - | 保証会社備考 | 初回40%、以降10,000円/年(総賃料15万円以上:14,000円/年)〜 外国籍の方:GTNを利用。初回保証料100%(最低保証料40,000円)、月額保証料1,000円 |
| 契約形態 | - | 契約期間 | 2年 |
| 入居・引渡期間 | 即時 | 現況 | - |
| 入居可能条件 | 2人入居可、ペット可 | ||
| 契約備考 | 室内清掃費用:59400 その他設備/条件:室内洗濯機置き場、ごみ出し24時間OK、独立洗面台、防犯カメラ、クローゼット、シューズボックス、分譲賃貸 | ||
部屋の情報
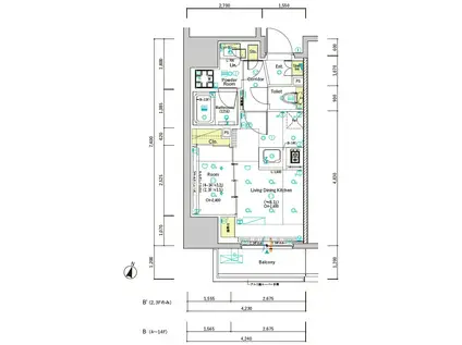
| 間取り | 1LDK | 専有面積 | 30.37m2 |
|---|---|---|---|
| 間取り詳細 | LDK(8.1帖)、洋室(3.1帖) | ||
| 所在階 / 向き | 13階 / 南 | バルコニー面積 | 3m2 |
| 水道 / ガス | 水道【公営】、ガス【都市】 | ||
| 設備 | バス・トイレ別、オートロック、宅配ボックス、浴室乾燥機、追い焚き、インターネット対応、システムキッチン、カウンターキッチン、エアコン、エレベーター、温水洗浄便座、角部屋、バルコニー、フローリング、2口コンロ、コンロ:ガス、CATV、CSアンテナ、BSアンテナ、インターネット使用料無料 | ||
| 当社物件ID | 160267201 | ||
建物の情報
| 建物名 | SYFORME OMIYA | ||
|---|---|---|---|
| 所在地 | 埼玉県さいたま市大宮区仲町3丁目 | ||
| 交通 | 京浜東北・根岸線 大宮駅(埼玉) 徒歩8分 埼京線 大宮駅(埼玉) 徒歩8分 | ||
| 階数 | 14階建 | 総戸数 | 41戸 |
| 築年月 | 2025年12月 / 新築(築1年) | エレベーター | あり |
| 駐車場 | - | バイク置き場 | - |
| 駐輪場 | あり | 管理人/管理会社 | - |
| 周辺環境 | その他 ドラッグストア その他 公園 その他 銀行 その他 * | ||
| 建物種別 | マンション | 建物構造 | RC(鉄筋コンクリート) |
この部屋の取扱い不動産会社
| 会社名 | ハウスコム埼玉株式会社 大宮東口店 | ||
|---|---|---|---|
| 所在地 | 埼玉県さいたま市大宮区92-7ハイカラ堂ビル2階 | 交通 | - |
| 営業時間 | 10:00~18:00 | 定休日 | 水曜定休 |
| 免許番号 | 埼玉県知事(1)第24888号 | 取引態様 | 仲介 |
| 不動産会社管理番号 | HC5-5294177-1302-0221 | 当社管理番号 | 468 |
| 所属団体 | 、 | ||
| 取扱い物件情報 | 物件詳細へ | ||
※各種情報と現状に差異がある場合は、現状優先となります。問い合わせをすることで、より詳しい条件、情報を確認する事ができます。
提供:ハウスコム埼玉株式会社 大宮東口店
この物件が気になったら掲載期限まであと5日
SYFORME OMIYAに条件(家賃・エリア)が近い物件一覧
| 写真 | 家賃 管理費等 | 敷金 礼金 | 間取り 専有面積 | 築年数 | 最寄り駅 所在地 | キープ | 詳細 |
|---|---|---|---|---|---|---|---|
アパート D-SERENO東田町Ⅱ(2LDK/3階) | |||||||
![]() | 12.6万円 7,000円 | なし なし | 2LDK 50.17m2 | 築1年 | 東武鉄道東上線 川越駅 徒歩12分 東武鉄道東上線 川越市駅 徒歩12分 西武鉄道新宿線 本川越駅 徒歩13分 埼玉県川越市東田町 | 詳細を見る | |
マンション ライオンズマンション本川越駅前(3LDK/11階) | |||||||
![]() | 12.9万円 5,000円 | 12.9万円 12.9万円 | 3LDK 60.9m2 | 築30年 | 西武鉄道新宿線 本川越駅 徒歩3分 東武鉄道東上線 川越駅 徒歩13分 埼玉県川越市新富町1丁目 | 詳細を見る | |
アパート ノーススターガーデン(2LDK/3階) | |||||||
![]() | 10.75万円 3,900円 | なし 10.75万円 | 2LDK 71.07m2 | 新築 | 西武鉄道新宿線 南大塚駅 徒歩23分 川越線 川越駅 徒歩39分 東武鉄道東上線 新河岸駅 徒歩43分 埼玉県川越市中台南1丁目 | 詳細を見る | |
マンション レクセルマンション川越大手町(4LDK/5階) | |||||||
![]() | 14.5万円 1万円 | 14.5万円 なし | 4LDK 90.78m2 | 築27年 | 西武鉄道新宿線 本川越駅 徒歩15分 東武鉄道東上線 川越市駅 徒歩20分 埼玉県川越市大手町 | 詳細を見る | |
マンション ライオンズ川越グランフォート(3LDK/8階) | |||||||
![]() | 18万円 なし | 18万円 18万円 | 3LDK 65.44m2 | 築16年 | 東武鉄道東上線 川越駅 徒歩5分 川越線 川越駅 徒歩5分 埼玉県川越市菅原町 | 詳細を見る | |
マンション カルミネ仙波(2LDK/1階) | |||||||
![]() | 15.4万円 1万円 | 15.4万円 15.4万円 | 2LDK 65.87m2 | 築1年 | 東武鉄道東上線 川越駅 徒歩9分 西武鉄道新宿線 本川越駅 徒歩18分 東武鉄道東上線 川越市駅 徒歩19分 埼玉県川越市仙波町2丁目 | 詳細を見る | |
マンション セラード川越(3LDK/3階) | |||||||
![]() | 14万円 5,000円 | 14万円 14万円 | 3LDK 74.44m2 | 築29年 | 東武鉄道東上線 川越駅 徒歩6分 西武鉄道新宿線 本川越駅 徒歩12分 埼玉県川越市脇田本町 | 詳細を見る | |
アパート レスポワールⅠ(2LDK/2階) | |||||||
![]() | 8.1万円 7,000円 | なし 16.2万円 | 2LDK 59.5m2 | 築23年 | 川越線 的場駅 徒歩7分 川越線 笠幡駅 徒歩35分 西武鉄道新宿線 南大塚駅 徒歩50分 埼玉県川越市 | 詳細を見る | |








