賃貸マンション
朝日プラザ高津IIIの賃貸物件情報(2DK/5階)
| 家賃 | 管理費等 | 敷金 | 礼金 | 間取り | 専有面積 |
|---|---|---|---|---|---|
| 8万円 | 1.9万円 | なし | 16万円 | 2DK | 44.92m2 |
入居決定でお祝い金最大100,000円
- 保証金
- -
- 償却・敷引
- -
- 築年数
- 築43年
- 所在階
- 5階
- 向き
- 南
Point
ご来店者様全員に、クオカード2000円プレゼント!※1グループ1名様、期限3月31日まで。
提供:(株)SumoSumo大阪心斎橋店(SUUMO経由)

詳細情報 朝日プラザ高津III
物件紹介
朝日プラザ高津IIIは地下鉄谷町線谷町九丁目駅から徒歩5分にあり、駅近で通勤通学に便利なマンションです。
このお部屋は2階以上に位置しているので、通行人や周囲の住人からの視線が気になりにくく、防犯面でも安心です。
人気の南向き・フローリングのお部屋。角部屋でもあるため、周囲の居住者の生活音も気になりにくい場所です。キッチンはシステムキッチン仕様になっていますので、お料理好きの方にもぴったり。また、バス・トイレは別で、のんびりお風呂タイムも楽しめるでしょう。
通信設備面では、インターネット接続が可能です。また、BSアンテナ・CSアンテナがありCATVにも対応しているので、おうち時間も充実するでしょう(別途工事、契約料が必要な場合あり)。
建物にはエレベーターがついているので、重い荷物があっても安心。
このお部屋は2階以上に位置しているので、通行人や周囲の住人からの視線が気になりにくく、防犯面でも安心です。
人気の南向き・フローリングのお部屋。角部屋でもあるため、周囲の居住者の生活音も気になりにくい場所です。キッチンはシステムキッチン仕様になっていますので、お料理好きの方にもぴったり。また、バス・トイレは別で、のんびりお風呂タイムも楽しめるでしょう。
通信設備面では、インターネット接続が可能です。また、BSアンテナ・CSアンテナがありCATVにも対応しているので、おうち時間も充実するでしょう(別途工事、契約料が必要な場合あり)。
建物にはエレベーターがついているので、重い荷物があっても安心。
お金・契約の情報
※「-」と表示されているものは、実際は料金が発生するものもございます。詳細はお問い合わせください。
| 家賃 | 8万円 | 管理費・共益費 | 1.9万円 |
|---|---|---|---|
| 敷金 | なし | 礼金 | 16万円 |
| 入居決定でお祝い金最大100,000円 | |||
| 保証金 | - | 償却・敷引 | - |
| 住宅保険料 | - | 更新料 | - |
| 契約形態 | - | 契約期間 | - |
| 入居・引渡期間 | 即時 | 現況 | - |
| 契約備考 | 巡回管理/初期費用、入居審査の不安など、その他お困りごと是非SumoSumoにご相談下さい★女性スタッフ対応も可能☆ 合計2.75万円(内訳:鍵交換代2.75万円) 2DK 二人入居可 普通借家1年 損保【2万円2年】 バストイレ別、バルコニー、ガスコンロ対応、クロゼット、フローリング、室内洗濯置、陽当り良好、システムキッチン、南向き、角住戸、脱衣所、エレベーター、洗面所独立、洗面化粧台、駐輪場、押入、CATV、外壁タイル張り、即入居可、閑静な住宅地、BS・CS、敷金不要、防犯カメラ、2沿線利用可、CS、ネット専用回線、内装リフォーム済、眺望良好、24時間換気システム、平坦地、学生相談、3沿線以上利用可、駅前、駅徒歩5分以内、高層階、和室、都市ガス、洗面所にドア、BS、IT重説対応物件、通風良好 | ||
部屋の情報
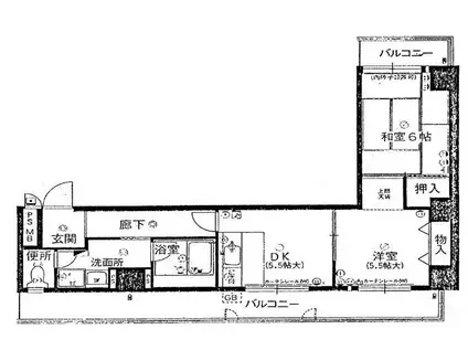
| 間取り | 2DK | 専有面積 | 44.92m2 |
|---|---|---|---|
| 所在階 / 向き | 5階 / 南 | バルコニー面積 | - |
| 水道 / ガス | - | ||
| 設備 | バス・トイレ別、2階以上、インターネット対応、システムキッチン、エレベーター、南向き、角部屋、バルコニー、フローリング、洗髪洗面化粧台、コンロ:ガス、CATV、CSアンテナ、BSアンテナ、洗濯機:室内 | ||
| 当社物件ID | 117898836 | ||
建物の情報
| 建物名 | 朝日プラザ高津III | ||
|---|---|---|---|
| 所在地 | 大阪府大阪市天王寺区生玉町 | ||
| 交通 | 地下鉄谷町線 谷町九丁目駅 徒歩5分 地下鉄堺筋線 日本橋駅(大阪) 徒歩5分 近鉄奈良線 大阪上本町駅 徒歩14分 | ||
| 階数 | 14階建 | 総戸数 | - |
| 築年月 | 1983年07月 / 築43年 | エレベーター | あり |
| 駐車場 | 近隣 100m25000円 | バイク置き場 | - |
| 駐輪場 | あり | 管理人/管理会社 | - |
| 周辺環境 | その他 ローソン 千日前通高津店(コンビニ)まで133m その他 スーパー玉出 日本橋店(スーパー)まで215m その他 業務スーパー 高津店(スーパー)まで514m その他 ジャパン 松屋町店(ドラッグストア)まで358m その他 大阪高津郵便局(郵便局)まで453m その他 南警察署高津交番(警察署・交番)まで152m | ||
| 建物種別 | マンション | 建物構造 | RC(鉄筋コンクリート) |
この部屋の取扱い不動産会社
| 会社名 | (株)SumoSumo大阪心斎橋店(SUUMO経由) | ||
|---|---|---|---|
| 所在地 | 大阪府大阪市中央区南船場3-3-23-102 | 交通 | - |
| 営業時間 | 10:00~19:00 | 定休日 | 年中無休 |
| 免許番号 | 大阪府知事62697 | 取引態様 | 仲介 |
| 不動産会社管理番号 | 100481077753 | 当社管理番号 | 89 |
| 所属団体 | (公社)全日本不動産協会大阪府本部会員 | ||
| 公正取引協議会 | (公社)近畿地区不動産公正取引協議会加盟 | ||
| 取扱い物件情報 | 物件詳細へ | ||
※各種情報と現状に差異がある場合は、現状優先となります。問い合わせをすることで、より詳しい条件、情報を確認する事ができます。
提供:(株)SumoSumo大阪心斎橋店(SUUMO経由)
この物件が気になったら掲載期限まであと11日
朝日プラザ高津IIIに条件(家賃・エリア)が近い物件一覧
| 写真 | 家賃 管理費等 | 敷金 礼金 | 間取り 専有面積 | 築年数 | 最寄り駅 所在地 | キープ | 詳細 |
|---|---|---|---|---|---|---|---|
アパート フロントリバーレジデンス(1LDK/1階) | |||||||
| 6.5万円 3,500円 | なし 6.5万円 | 1LDK 45.39m2 | 築15年 | 大阪モノレール本線 南摂津駅 徒歩27分 大阪モノレール本線 摂津駅 徒歩36分 大阪モノレール本線 沢良宜駅 徒歩38分 大阪府摂津市鳥飼本町4丁目2-42 | 詳細を見る | ||
マンション セレニテ江坂エクラ(1LDK/3階) | |||||||
| 9.8万円 1.02万円 | なし なし | 1LDK 29.68m2 | 築1年 | 北大阪急行南北線 江坂駅 徒歩12分 おおさか東線 南吹田駅 徒歩17分 阪急電鉄千里線 豊津駅(大阪) 徒歩19分 大阪府吹田市南金田2丁目27-4 | 詳細を見る | ||
マンション ディームス江坂(1K/13階) | |||||||
| 8.8万円 1万円 | なし なし | 1K 24.8m2 | 築9年 | 北大阪急行南北線 江坂駅 徒歩9分 阪急電鉄宝塚線 庄内駅(大阪) 徒歩27分 阪急電鉄千里線 豊津駅(大阪) 徒歩28分 大阪府吹田市江の木町10-3 | 詳細を見る | ||
マンション ヒーローマンション(1LDK/3階) | |||||||
![]() | 6万円 8,000円 | なし なし | 1LDK 40.04m2 | 築26年 | 近鉄南大阪線 高見ノ里駅 徒歩5分 近鉄南大阪線 布忍駅 徒歩14分 近鉄南大阪線 河内松原駅 徒歩15分 大阪府松原市田井城4丁目 | 詳細を見る | |
アパート アルマグラータ(1K/2階) | |||||||
![]() | 7.25万円 4,400円 | なし 10.9万円 | 1K 27.95m2 | 新築 | 京阪本線 門真市駅 徒歩7分 京阪本線 西三荘駅 徒歩10分 京阪本線 古川橋駅 徒歩20分 大阪府門真市栄町 | 詳細を見る | |
アパート 南海電鉄南海本線 諏訪ノ森駅 徒歩5分 築10年(1DK/3階) | |||||||
![]() | 6.25万円 4,100円 | なし なし | 1DK 33.18m2 | 築10年 | 南海電鉄南海本線 諏訪ノ森駅 徒歩5分 南海電鉄南海本線 石津川駅 徒歩12分 阪和線 津久野駅 徒歩33分 大阪府堺市西区浜寺諏訪森町西1丁 | 詳細を見る | |
マンション メゾンパルクス(2LDK/3階) | |||||||
![]() | 11.2万円 7,000円 | 3万円 なし | 2LDK 58.83m2 | 築6年 | 近鉄奈良線 若江岩田駅 徒歩4分 近鉄奈良線 河内花園駅 徒歩15分 近鉄奈良線 八戸ノ里駅 徒歩24分 大阪府東大阪市岩田町 | 詳細を見る | |
マンション プレジオ江坂Ⅱ(1DK/6階) | |||||||
| 10.6万円 1.1万円 | なし 10.6万円 | 1DK 27.72m2 | 築7年 | 北大阪急行南北線 江坂駅 徒歩12分 おおさか東線 南吹田駅 徒歩16分 大阪市御堂筋線 東三国駅 徒歩24分 大阪府吹田市南吹田5丁目14-20 | 詳細を見る | ||





