賃貸アパート
ユングフラウの賃貸物件情報(2LDK/1階)
| 家賃 | 管理費等 | 敷金 | 礼金 | 間取り | 専有面積 |
|---|---|---|---|---|---|
| 7.5万円 | 2,000円 | なし | 15万円 | 2LDK | 68.66m2 |
入居決定でお祝い金最大100,000円
Point
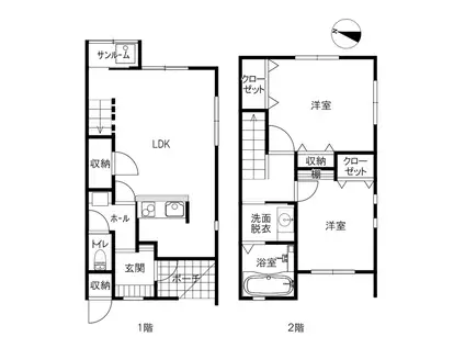
建物正面に駐車場2台完備です。メゾネットタイプのため上下階の音は気になりません。ウッドフロアやダウンライト照明などオシャレな設備がいっぱい。お子さまも一緒にお住まい出来ます!
提供:(株)のうか不動産もりの里店(SUUMO経由)

詳細情報 ユングフラウ
物件紹介
このお部屋のインターホンにはTVモニタがついているため、相手の顔を確認してから来客対応することができます。
フローリングのお部屋なのでお掃除もラクラク。キッチンはシステムキッチン仕様になっていますので、お料理好きの方にもぴったり。また、バス・トイレは別で、のんびりお風呂タイムも楽しめるでしょう。
通信設備面では、インターネットが無料で使えるので、月々の出費を抑えられるのも魅力です。また、BSアンテナもありますので、おうち時間も充実するでしょう(別途工事、BSの契約料等が必要な場合あり)。
フローリングのお部屋なのでお掃除もラクラク。キッチンはシステムキッチン仕様になっていますので、お料理好きの方にもぴったり。また、バス・トイレは別で、のんびりお風呂タイムも楽しめるでしょう。
通信設備面では、インターネットが無料で使えるので、月々の出費を抑えられるのも魅力です。また、BSアンテナもありますので、おうち時間も充実するでしょう(別途工事、BSの契約料等が必要な場合あり)。
お金・契約の情報
※「-」と表示されているものは、実際は料金が発生するものもございます。詳細はお問い合わせください。
| 家賃 | 7.5万円 | 管理費・共益費 | 2,000円 |
|---|---|---|---|
| 敷金 | なし | 礼金 | 15万円 |
| 入居決定でお祝い金最大100,000円 | |||
| 保証金 | - | 償却・敷引 | - |
| 住宅保険料 | - | 更新料 | - |
| 保証会社利用 | 必須 | 保証会社名 | - |
| 保証会社費用 | - | 保証会社備考 | 保証会社利用必 株式会社エポスカード マメックス会費に含む |
| 契約形態 | - | 契約期間 | - |
| 入居・引渡期間 | - | 現況 | - |
| 契約備考 | ●マメックスメンバーズクラブ入会必須●保証料・火災保険料・24時間365日の安心かけつけサポートを含む。【入会金:24,200円(税込)、会費:3,300円/月(税込)】 合計10.58万円(内訳:退去修繕負担金:75000円/インターネット初期費用:11000円/鍵代:19800円) 町費:600円 2LDK 二人入居可/子供可 バストイレ別、エアコン、クロゼット、フローリング、TVインターホン、室内洗濯置、シューズボックス、システムキッチン、追焚機能浴室、温水洗浄便座、脱衣所、洗面所独立、2口コンロ、光ファイバー、敷金不要、IHクッキングヒーター、照明付、駐車2台可、カードキー、ネット使用料不要、浄水器、トランクルーム、ガス暖房、サンルーム、バス停徒歩3分以内、LDK12畳以上、オープンキッチン、プロパンガス、BS、保証会社利用可、IT重説対応物件 入居日:'26年5月下旬 | ||
部屋の情報
| 間取り | 2LDK | 専有面積 | 68.66m2 |
|---|---|---|---|
| 所在階 / 向き | 1階 / 東 | バルコニー面積 | - |
| 水道 / ガス | - | ||
| 設備 | バス・トイレ別、テレビドアホン、追い焚き、インターネット対応、システムキッチン、エアコン、温水洗浄便座、フローリング、トランクルーム、洗髪洗面化粧台、2口コンロ、コンロ:IH、BSアンテナ、インターネット使用料無料、洗濯機:室内 | ||
| 当社物件ID | 159955294 | ||
建物の情報
| 建物名 | ユングフラウ | ||
|---|---|---|---|
| 所在地 | 石川県金沢市朝霧台 | ||
| 交通 | 北陸新幹線 金沢駅 バス乗車時間:33分 最寄りバス停で下車 徒歩3分 | ||
| 階数 | 2階建 | 総戸数 | 6戸 |
| 築年月 | 2012年12月 / 築14年 | エレベーター | - |
| 駐車場 | 空有 付無料 | バイク置き場 | - |
| 駐輪場 | - | 管理人/管理会社 | - |
| 周辺環境 | その他 土清水北小緑地(公園)まで1495m その他 JA金沢市金浦支店(銀行)まで1444m その他 ファミリーマート金沢朝霧台店(コンビニ)まで471m その他 ゆうちょ銀行金沢支店イオンもりの(銀行)まで2073m その他 albis田上店(スーパー)まで1708m その他 バロー大桑店(スーパー)まで2445m | ||
| 建物種別 | アパート | 建物構造 | 木造 |
この部屋の取扱い不動産会社
| 会社名 | (株)のうか不動産もりの里店(SUUMO経由) | ||
|---|---|---|---|
| 所在地 | 石川県金沢市もりの里2-21 | 交通 | - |
| 営業時間 | 10:00~18:00 | 定休日 | なし |
| 免許番号 | 石川県知事3529 | 取引態様 | 代理 |
| 不動産会社管理番号 | 100475220898 | 当社管理番号 | 89 |
| 所属団体 | (公社)石川県宅地建物取引業協会会員 | ||
| 公正取引協議会 | 北陸不動産公正取引協議会加盟 | ||
| 取扱い物件情報 | 物件詳細へ | ||
※各種情報と現状に差異がある場合は、現状優先となります。問い合わせをすることで、より詳しい条件、情報を確認する事ができます。
提供:(株)のうか不動産もりの里店(SUUMO経由)
この物件が気になったら掲載期限まであと10日
ユングフラウに条件(家賃・エリア)が近い物件一覧
| 写真 | 家賃 管理費等 | 敷金 礼金 | 間取り 専有面積 | 築年数 | 最寄り駅 所在地 | キープ | 詳細 |
|---|---|---|---|---|---|---|---|
マンション リバ-サイド豆田(2LDK/7階) | |||||||
![]() | 7.5万円 5,000円 | 15万円 なし | 2LDK 61.28m2 | 築25年 | IRいしかわ鉄道 金沢駅 徒歩26分 石川県金沢市大豆田本町甲 | 詳細を見る | |
アパート フライハイト・ラウムII(1LDK/2階) | |||||||
![]() | 8.4万円 5,200円 | なし 8.4万円 | 1LDK 50.52m2 | 築2年 | 北陸鉄道石川線 野町駅 徒歩47分 石川県金沢市野田 | 詳細を見る | |
マンション ファーストレーベン彦三Ⅱ(1LDK/4階) | |||||||
![]() | 7.7万円 8,900円 | 19.25万円 15.4万円 | 1LDK 44.7m2 | 築21年 | 北陸鉄道浅野川線 北鉄金沢駅 徒歩12分 石川県金沢市彦三町2丁目 | 詳細を見る | |
アパート プレジールJUNE(2LDK/2階) | |||||||
![]() | 4.5万円 3,000円 | なし なし | 2LDK 53.56m2 | 築33年 | 石川県野々市市粟田4丁目 | 詳細を見る | |
アパート 石川県金沢市 新築(2LDK/1階) | |||||||
![]() | 9万円 4,500円 | なし 18万円 | 2LDK 57.78m2 | 新築 | 石川県金沢市三馬2丁目 | 詳細を見る | |
アパート GLANZ(1LDK/2階) | |||||||
![]() | 7.5万円 6,500円 | なし 8万円 | 1LDK 40.04m2 | 築12年 | 石川県金沢市若宮町ヲ | 詳細を見る | |
アパート IRいしかわ鉄道 東金沢駅 徒歩12分 築8年(1LDK/2階) | |||||||
![]() | 6.6万円 3,000円 | なし 7.6万円 | 1LDK 52.86m2 | 築8年 | IRいしかわ鉄道 東金沢駅 徒歩12分 石川県金沢市小坂町中 | 詳細を見る | |
アパート ペリプエスト・ルガール(1LDK/2階) | |||||||
![]() | 6.4万円 5,000円 | なし 6.4万円 | 1LDK 45.29m2 | 築22年 | 北陸鉄道石川線 西泉駅 徒歩15分 石川県金沢市神田1丁目 | 詳細を見る | |









