賃貸マンション
カナルフロント芝浦の賃貸物件情報(1K/11階)
| 家賃 | 管理費等 | 敷金 | 礼金 | 間取り | 専有面積 |
|---|---|---|---|---|---|
| 16.1万円 | 1.5万円 | なし | なし | 1K | 25m2 |
入居決定でお祝い金最大100,000円
Point
室内設備は洗面所独立・浴室乾燥機など大変充実しております。駐輪場付きのマンションです。
提供:ハウスコム西東京株式会社 大井町店

詳細情報 カナルフロント芝浦
物件紹介
カナルフロント芝浦はゆりかもめ日の出駅から徒歩5分にあり、駅近で通勤通学に便利なマンションです。
このお部屋は2階以上に位置しているので通行人や周囲の住人からの視線が気になりにくく、建物のエントランスはオートロックがついているので防犯性が高くなっています。
フローリングのお部屋なのでお掃除もラクラク。キッチンはシステムキッチン仕様になっていますので、お料理好きの方にもぴったり。バス・トイレは別なので、のんびりお風呂タイムも楽しめるでしょう。また、雨の日でも浴室乾燥機を使えば、お洗濯も問題ありません。
通信設備面では、インターネットが無料で使えるので、月々の出費を抑えられるのも魅力です。また、BSアンテナ・CSアンテナもありますので、おうち時間も充実するでしょう(別途工事、BS・CSの契約料等が必要な場合あり)。
建物にはエレベーターがついているので、重い荷物があっても安心。共用部には宅配ボックスが設定されているので、不在の時にも荷物を受け取ることができます。
このお部屋は2階以上に位置しているので通行人や周囲の住人からの視線が気になりにくく、建物のエントランスはオートロックがついているので防犯性が高くなっています。
フローリングのお部屋なのでお掃除もラクラク。キッチンはシステムキッチン仕様になっていますので、お料理好きの方にもぴったり。バス・トイレは別なので、のんびりお風呂タイムも楽しめるでしょう。また、雨の日でも浴室乾燥機を使えば、お洗濯も問題ありません。
通信設備面では、インターネットが無料で使えるので、月々の出費を抑えられるのも魅力です。また、BSアンテナ・CSアンテナもありますので、おうち時間も充実するでしょう(別途工事、BS・CSの契約料等が必要な場合あり)。
建物にはエレベーターがついているので、重い荷物があっても安心。共用部には宅配ボックスが設定されているので、不在の時にも荷物を受け取ることができます。
お金・契約の情報
※「-」と表示されているものは、実際は料金が発生するものもございます。詳細はお問い合わせください。
| 家賃 | 16.1万円 | 管理費・共益費 | 1.5万円 |
|---|---|---|---|
| 敷金 | なし | 礼金 | なし |
| 入居決定でお祝い金最大100,000円 | |||
| 保証金 | - | 償却・敷引 | - |
| 住宅保険料 | 1円 | 更新料 | - |
| 保証会社利用 | 必須 | 保証会社名 | - |
| 保証会社費用 | - | 保証会社備考 | 初回保証料:賃料の50% 年間保証委託料:10000円/年 手数料:1%/月 |
| 契約形態 | - | 契約期間 | 2年 |
| 入居・引渡期間 | 即時 | 現況 | - |
| 入居可能条件 | 楽器不可、ペット不可 | ||
| 契約備考 | 火災保険:22000円/2年 鍵交換代:22000円 その他設備/条件:室内洗濯機置き場、ごみ出し24時間OK、独立洗面台、防犯カメラ、クローゼット、シューズボックス | ||
部屋の情報
| 間取り | 1K | 専有面積 | 25m2 |
|---|---|---|---|
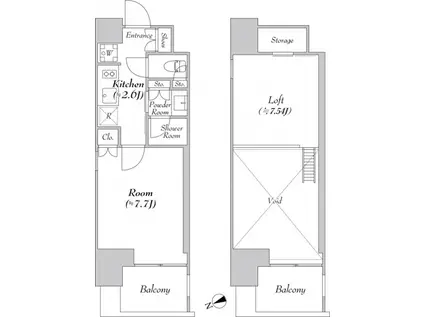
| 間取り詳細 | K(2帖)、洋室(7.7帖) | ||
| 所在階 / 向き | 11階 / 北西 | バルコニー面積 | - |
| 水道 / ガス | 水道【公営】、ガス【都市】 | ||
| 設備 | バス・トイレ別、オートロック、宅配ボックス、浴室乾燥機、インターネット対応、システムキッチン、エアコン、エレベーター、温水洗浄便座、バルコニー、フローリング、2口コンロ、コンロ:ガス、CSアンテナ、BSアンテナ、インターネット使用料無料、シャワー、給湯 | ||
| 当社物件ID | 27639012 | ||
建物の情報
| 建物名 | カナルフロント芝浦 | ||
|---|---|---|---|
| 所在地 | 東京都港区海岸2丁目 | ||
| 交通 | ゆりかもめ 日の出駅 徒歩5分 山手線 浜松町駅 徒歩14分 | ||
| 階数 | 12階建 | 総戸数 | - |
| 築年月 | 2018年03月 / 築8年 | エレベーター | あり |
| 駐車場 | - | バイク置き場 | - |
| 駐輪場 | あり | 管理人/管理会社 | - |
| 周辺環境 | 販売店 徒歩12分(889m) その他 ドラッグストア その他 公園 その他 銀行 その他 * | ||
| 建物種別 | マンション | 建物構造 | RC(鉄筋コンクリート) |
この部屋の取扱い不動産会社
| 会社名 | ハウスコム西東京株式会社 大井町店 | ||
|---|---|---|---|
| 所在地 | 東京都品川区2-19 | 交通 | - |
| 営業時間 | 10:00~18:00 | 定休日 | 水曜定休 |
| 免許番号 | 東京都知事(1)第108225号 | 取引態様 | 仲介 |
| 不動産会社管理番号 | HC2-1178527-1102-0268 | 当社管理番号 | 468 |
| 所属団体 | 、 | ||
| 取扱い物件情報 | 物件詳細へ | ||
※各種情報と現状に差異がある場合は、現状優先となります。問い合わせをすることで、より詳しい条件、情報を確認する事ができます。
提供:ハウスコム西東京株式会社 大井町店
この物件が気になったら掲載期限まであと4日
カナルフロント芝浦に条件(家賃・エリア)が近い物件一覧
| 写真 | 家賃 管理費等 | 敷金 礼金 | 間取り 専有面積 | 築年数 | 最寄り駅 所在地 | キープ | 詳細 |
|---|---|---|---|---|---|---|---|
マンション プラウドフラット東神田(1K/2階) | |||||||
![]() | 12.2万円 8,000円 | 12.2万円 12.2万円 | 1K 25.15m2 | 築11年 | 総武本線 馬喰町駅 徒歩3分 東京都新宿線 馬喰横山駅 徒歩4分 東京地下鉄日比谷線 小伝馬町駅 徒歩6分 東京都千代田区東神田1丁目 | 詳細を見る | |
マンション フロリス オーランティウム3(ワンルーム/5階) | |||||||
![]() | 18.2万円 1.1万円 | なし 18.2万円 | ワンルーム 45.6m2 | 築55年 | 東京地下鉄有楽町線 月島駅 徒歩2分 東京都大江戸線 月島駅 徒歩2分 東京都大江戸線 勝どき駅 徒歩7分 東京都中央区月島1丁目 | 詳細を見る | |
マンション CASA KEITO カーサ ケイト(1LDK/9階) | |||||||
![]() | 17.7万円 1.3万円 | 17.7万円 17.7万円 | 1LDK 40.47m2 | 築8年 | 東京都浅草線 東日本橋駅 徒歩3分 東京都新宿線 浜町駅 徒歩4分 総武本線 馬喰町駅 徒歩8分 東京都中央区東日本橋1丁目 | 詳細を見る | |
マンション クレストコート門前仲町(1DK/10階) | |||||||
![]() | 15.5万円 1.2万円 | 15.5万円 なし | 1DK 26.06m2 | 築1年 | 東京地下鉄東西線 門前仲町駅 徒歩7分 東京都江東区永代1丁目 | 詳細を見る | |
マンション デュオスカーラ東日本橋(ワンルーム/11階) | |||||||
![]() | 12万円 1万円 | 12万円 12万円 | ワンルーム 26.35m2 | 築22年 | JR総武線快速 馬喰町駅 徒歩1分 JR総武線 浅草橋駅 徒歩6分 東京メトロ日比谷線 小伝馬町駅 徒歩10分 東京都中央区日本橋馬喰町 | 詳細を見る | |
マンション ALTERNA亀戸(1K/9階) | |||||||
![]() | 12.3万円 1万円 | なし なし | 1K 25.49m2 | 築4年 | JR総武線 亀戸駅 徒歩4分 東武亀戸線 亀戸水神駅 徒歩16分 JR総武線 錦糸町駅 徒歩17分 東京都江東区亀戸 | 詳細を見る | |
マンション プラウドフラット三越前(1K/8階) | |||||||
![]() | 13.8万円 8,000円 | 13.8万円 13.8万円 | 1K 25.12m2 | 築11年 | 総武本線 新日本橋駅 徒歩2分 東京地下鉄銀座線 三越前駅 徒歩4分 山手線 神田駅(東京) 徒歩5分 東京都中央区日本橋本町4丁目 | 詳細を見る | |








