賃貸マンション
プラウドフラット東神田の賃貸物件情報(1K/2階)
| 家賃 | 管理費等 | 敷金 | 礼金 | 間取り | 専有面積 |
|---|---|---|---|---|---|
| 12.2万円 | 8,000円 | 12.2万円 | 12.2万円 | 1K | 25.15m2 |
入居決定でお祝い金最大100,000円
- 保証金
- -
- 償却・敷引
- -
- 築年数
- 築11年
- 所在階
- 2階
- 向き
- 南東
Point
仲手0 駅近くの便利な立地 角部屋二面採光です
提供:株式会社サンコーホーム(賃貸スモッカ経由)

詳細情報 プラウドフラット東神田
物件紹介
プラウドフラット東神田は総武本線馬喰町駅から徒歩3分にあり、駅近で通勤通学に便利なマンションです。
このお部屋は2階以上に位置しているので通行人や周囲の住人からの視線が気になりにくく、建物のエントランスはオートロックがついているので防犯性が高くなっています。
フローリングのお部屋なのでお掃除もラクラク。キッチンはシステムキッチン仕様になっていますので、お料理好きの方にもぴったり。バス・トイレは別なので、のんびりお風呂タイムも楽しめるでしょう。また、雨の日でも浴室乾燥機を使えば、お洗濯も問題ありません。
通信設備面では、インターネット接続が可能です。また、BSアンテナ・CSアンテナがありCATVにも対応しているので、おうち時間も充実するでしょう(別途工事、契約料が必要な場合あり)。
建物にはエレベーターがついているので、重い荷物があっても安心。共用部には宅配ボックスが設定されているので、不在の時にも荷物を受け取ることができます。
このお部屋は2階以上に位置しているので通行人や周囲の住人からの視線が気になりにくく、建物のエントランスはオートロックがついているので防犯性が高くなっています。
フローリングのお部屋なのでお掃除もラクラク。キッチンはシステムキッチン仕様になっていますので、お料理好きの方にもぴったり。バス・トイレは別なので、のんびりお風呂タイムも楽しめるでしょう。また、雨の日でも浴室乾燥機を使えば、お洗濯も問題ありません。
通信設備面では、インターネット接続が可能です。また、BSアンテナ・CSアンテナがありCATVにも対応しているので、おうち時間も充実するでしょう(別途工事、契約料が必要な場合あり)。
建物にはエレベーターがついているので、重い荷物があっても安心。共用部には宅配ボックスが設定されているので、不在の時にも荷物を受け取ることができます。
お金・契約の情報
※「-」と表示されているものは、実際は料金が発生するものもございます。詳細はお問い合わせください。
| 家賃 | 12.2万円 | 管理費・共益費 | 8,000円 |
|---|---|---|---|
| 敷金 | 12.2万円 | 礼金 | 12.2万円 |
| 入居決定でお祝い金最大100,000円 | |||
| 保証金 | - | 償却・敷引 | - |
| 住宅保険料 | 住宅保険料あり | 更新料 | - |
| 契約形態 | - | 契約期間 | 2年 |
| 入居・引渡期間 | 2025年12月下旬 | 現況 | 空室 |
| 契約備考 | 初期費用のクレジットカード払いや各種分割払い可能です。諸条件ご相談ください。その他インターネット掲載物件は当店で併せてご紹介可能です 更新料:1ヶ月 保証会社:利用必須 B賃料総額40%/月額800円賃料総額50%/月額2,000円 「法人」利用できません / 最低保証料:15,000円 GTN※外国籍 留学生 キャンパス初期費用: その他設備/条件:セキュリティ会社加入済、防犯カメラ、コンロ2口以上、独立洗面台、TVドアホン、エアコン複数 | ||
部屋の情報
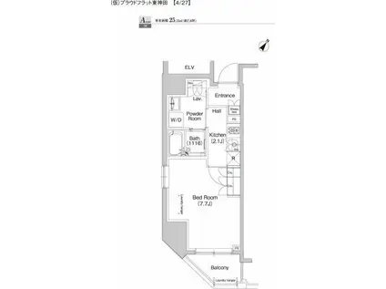
| 間取り | 1K | 専有面積 | 25.15m2 |
|---|---|---|---|
| 間取り詳細 | 洋室(7.7帖)、K(2.1帖) | ||
| 所在階 / 向き | 2階 / 南東 | バルコニー面積 | - |
| 水道 / ガス | ガス【都市】 | ||
| 設備 | バス・トイレ別、2階以上、オートロック、宅配ボックス、浴室乾燥機、インターネット対応、システムキッチン、エアコン、エレベーター、温水洗浄便座、バルコニー、フローリング、コンロ:ガス、CATV、CSアンテナ、BSアンテナ、洗濯機:室内 | ||
| 当社物件ID | 101799363 | ||
建物の情報
| 建物名 | プラウドフラット東神田 | ||
|---|---|---|---|
| 所在地 | 東京都千代田区東神田1丁目 | ||
| 交通 | 総武本線 馬喰町駅 徒歩3分 東京都新宿線 馬喰横山駅 徒歩4分 東京地下鉄日比谷線 小伝馬町駅 徒歩6分 | ||
| 階数 | 13階建 | 総戸数 | - |
| 築年月 | 2015年04月 / 築11年 | エレベーター | あり |
| 駐車場 | - | バイク置き場 | あり |
| 駐輪場 | あり | 管理人/管理会社 | - |
| 建物種別 | マンション | 建物構造 | RC(鉄筋コンクリート) |
この部屋の取扱い不動産会社
| 会社名 | 株式会社サンコーホーム(賃貸スモッカ経由) | ||
|---|---|---|---|
| 所在地 | 東京都台東区上野5丁目23-8 キューアス御徒町ビル3F | 交通 | - |
| 営業時間 | - | 定休日 | - |
| 免許番号 | 東京都知事免許(2)第96594号 | 取引態様 | 仲介 |
| 不動産会社管理番号 | sankohome_120160010077269 | 当社管理番号 | 463 |
| 所属団体 | (公社)全国宅地建物取引業協会連合会\n公益社団法人首都圏不動産公正取引協議会 | ||
| 公正取引協議会 | (公社)全国宅地建物取引業保証協会 | ||
| 取扱い物件情報 | 物件詳細へ | ||
※各種情報と現状に差異がある場合は、現状優先となります。問い合わせをすることで、より詳しい条件、情報を確認する事ができます。
提供:株式会社サンコーホーム(賃貸スモッカ経由)
この物件が気になったら掲載期限まであと6日
プラウドフラット東神田に条件(家賃・エリア)が近い物件一覧
| 写真 | 家賃 管理費等 | 敷金 礼金 | 間取り 専有面積 | 築年数 | 最寄り駅 所在地 | キープ | 詳細 |
|---|---|---|---|---|---|---|---|
マンション プレール・ドゥーク銀座イースト 6階(1K/6階) | |||||||
![]() | 10万円 1万円 | なし 10万円 | 1K 23.35m2 | 築22年 | 東京地下鉄有楽町線 新富町駅(東京) 徒歩6分 京葉線 八丁堀駅(東京) 徒歩11分 東京地下鉄日比谷線 八丁堀駅(東京) 徒歩11分 東京都中央区湊3丁目 | 詳細を見る | |
マンション エクセリア九段(ワンルーム/10階) | |||||||
![]() | 9.4万円 7,000円 | 9.4万円 9.4万円 | ワンルーム 22.32m2 | 築25年 | 東京地下鉄東西線 九段下駅 徒歩4分 東京都三田線 神保町駅 徒歩5分 東京都千代田区西神田3丁目 | 詳細を見る | |
マンション カーサブリリア(1DK/6階) | |||||||
![]() | 13.9万円 7,000円 | 13.9万円 13.9万円 | 1DK 40.22m2 | 築20年 | 東京地下鉄日比谷線 入谷駅(東京) 徒歩4分 東京都台東区竜泉1丁目 | 詳細を見る | |
マンション 銀座レジデンス参番館(1DK/12階) | |||||||
![]() | 14.9万円 1万円 | 15.9万円 15.9万円 | 1DK 41.52m2 | 築23年 | 東京メトロ有楽町線 新富町駅(東京) 徒歩4分 東京メトロ日比谷線 築地駅 徒歩6分 JR京葉線 八丁堀駅(東京) 徒歩6分 東京都中央区入船 | 詳細を見る | |
マンション トーシンフェニックス日本橋蛎殻町弐番館(1K/6階) | |||||||
![]() | 9万円 7,000円 | 9万円 9万円 | 1K 19.33m2 | 築22年 | 東京地下鉄半蔵門線 水天宮前駅 徒歩2分 東京地下鉄日比谷線 人形町駅 徒歩7分 東京地下鉄東西線 茅場町駅 徒歩9分 東京都中央区日本橋蛎殻町1丁目 | 詳細を見る | |
マンション プレール・ドゥーク浅草Ⅴ(1K/3階) | |||||||
![]() | 10.1万円 1万円 | なし 10.1万円 | 1K 25.74m2 | 築5年 | 東武伊勢崎・大師線 浅草駅(東武・都営・メトロ) 徒歩10分 東京地下鉄銀座線 浅草駅(東武・都営・メトロ) 徒歩12分 東京都浅草線 浅草駅(東武・都営・メトロ) 徒歩14分 東京都台東区浅草6丁目 | 詳細を見る | |
マンション ZOOM飯田橋(ワンルーム/4階) | |||||||
![]() | 14.9万円 9,000円 | 14.9万円 なし | ワンルーム 25.44m2 | 築13年 | 東京都大江戸線 飯田橋駅 徒歩9分 総武・中央緩行線 飯田橋駅 徒歩10分 東京地下鉄丸ノ内線 後楽園駅 徒歩10分 東京都文京区水道1丁目 | 詳細を見る | |








