賃貸マンション
阪急電鉄京都線 大宮駅(京都) 徒歩5分 10階建 築27年の賃貸物件情報(3LDK/9階)
| 家賃 | 管理費等 | 敷金 | 礼金 | 間取り | 専有面積 |
|---|---|---|---|---|---|
| 13.8万円 | 1.1万円 | 5万円 | 15万円 | 3LDK | 69.08m2 |
入居決定でお祝い金最大100,000円
Point
阪急「大宮」徒歩5分。ファミリータイプ。
提供:株式会社 京都ライフ 三条烏丸店(賃貸スモッカ経由)

詳細情報 阪急電鉄京都線 大宮駅(京都) 徒歩5分 10階建 築27年
物件紹介
阪急電鉄京都線大宮駅から徒歩5分にあり、駅近で通勤通学に便利なマンションです。
このお部屋は2階以上に位置しているので、通行人や周囲の住人からの視線が気になりにくく、防犯面でも安心です。
人気の角部屋で周囲の居住者の生活音も気になりにくく、また、フローリングのお部屋なのでお掃除もラクラク。バス・トイレ別の仕様で、のんびりお風呂タイムも楽しめます。
通信設備面では、インターネット接続が可能です。また、BSアンテナ・CSアンテナもありますので、おうち時間も充実するでしょう(別途工事、契約料が必要な場合あり)。
建物にはエレベーターがついているので、重い荷物があっても安心。
このお部屋は2階以上に位置しているので、通行人や周囲の住人からの視線が気になりにくく、防犯面でも安心です。
人気の角部屋で周囲の居住者の生活音も気になりにくく、また、フローリングのお部屋なのでお掃除もラクラク。バス・トイレ別の仕様で、のんびりお風呂タイムも楽しめます。
通信設備面では、インターネット接続が可能です。また、BSアンテナ・CSアンテナもありますので、おうち時間も充実するでしょう(別途工事、契約料が必要な場合あり)。
建物にはエレベーターがついているので、重い荷物があっても安心。
お金・契約の情報
※「-」と表示されているものは、実際は料金が発生するものもございます。詳細はお問い合わせください。
| 家賃 | 13.8万円 | 管理費・共益費 | 1.1万円 |
|---|---|---|---|
| 敷金 | 5万円 | 礼金 | 15万円 |
| 入居決定でお祝い金最大100,000円 | |||
| 保証金 | - | 償却・敷引 | - |
| 住宅保険料 | 住宅保険料あり | 更新料 | - |
| 契約形態 | - | 契約期間 | 2年 |
| 入居・引渡期間 | 相談 | 現況 | 空室 |
| 契約備考 | 阪急「大宮」徒歩5分。ファミリータイプ。3WAYアクセス。交通、買物も大変便利です。 町会費:500円 更新料:1ヶ月 保証会社:利用必須 初回:月額賃料等の50%、更新時:1万円/1年 その他設備/条件:独立洗面台 | ||
部屋の情報
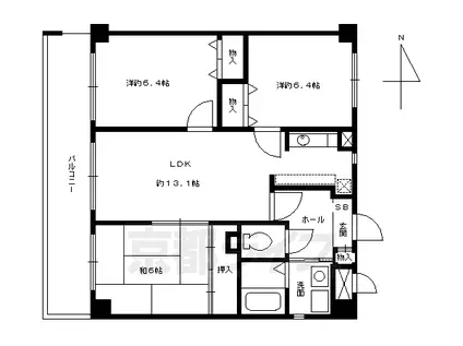
| 間取り | 3LDK | 専有面積 | 69.08m2 |
|---|---|---|---|
| 間取り詳細 | 洋室(6.4帖)、洋室(6.4帖)、和室(6帖)、LDK(13.1帖) | ||
| 所在階 / 向き | 9階 / 西 | バルコニー面積 | - |
| 水道 / ガス | ガス【都市】 | ||
| 設備 | バス・トイレ別、2階以上、インターネット対応、エレベーター、角部屋、バルコニー、フローリング、CSアンテナ、BSアンテナ、洗濯機:室内 | ||
| 当社物件ID | 160542861 | ||
建物の情報
| 建物名 | 阪急電鉄京都線 大宮駅(京都) 徒歩5分 10階建 築27年 | ||
|---|---|---|---|
| 所在地 | 京都府京都市下京区石井筒町 | ||
| 交通 | 阪急電鉄京都線 大宮駅(京都) 徒歩5分 京都市烏丸線 四条駅(京都市営) 徒歩8分 | ||
| 階数 | 10階建 | 総戸数 | - |
| 築年月 | 1999年09月 / 築27年 | エレベーター | あり |
| 駐車場 | - | バイク置き場 | - |
| 駐輪場 | あり | 管理人/管理会社 | - |
| 建物種別 | マンション | 建物構造 | SRC(鉄骨鉄筋コンクリート) |
この部屋の取扱い不動産会社
| 会社名 | 株式会社 京都ライフ 三条烏丸店(賃貸スモッカ経由) | ||
|---|---|---|---|
| 所在地 | 京都市中京区三条通烏丸東入梅忠町24 三条COHJUBLDG 1F | 交通 | - |
| 営業時間 | - | 定休日 | - |
| 免許番号 | 京都府知事(11)第6353号 | 取引態様 | 仲介 |
| 不動産会社管理番号 | kyotolife_09237-902-21 | 当社管理番号 | 463 |
| 所属団体 | 京都府宅地建物取引業協会\n公益社団法人近畿地区不動産公正取引協議会 | ||
| 公正取引協議会 | 全国宅地建物取引業保証協会 | ||
| 取扱い物件情報 | 物件詳細へ | ||
※各種情報と現状に差異がある場合は、現状優先となります。問い合わせをすることで、より詳しい条件、情報を確認する事ができます。
提供:株式会社 京都ライフ 三条烏丸店(賃貸スモッカ経由)
この物件が気になったら掲載期限まであと6日
阪急電鉄京都線 大宮駅(京都) 徒歩5分 10階建 築27年に条件(家賃・エリア)が近い物件一覧
| 写真 | 家賃 管理費等 | 敷金 礼金 | 間取り 専有面積 | 築年数 | 最寄り駅 所在地 | キープ | 詳細 |
|---|---|---|---|---|---|---|---|
マンション 阪急電鉄京都線 洛西口駅 徒歩7分 築51年(1LDK/1階) | |||||||
![]() | 9.7万円 3,000円 | 5万円 10万円 | 1LDK 54m2 | 築51年 | 阪急電鉄京都線 洛西口駅 徒歩7分 東海道本線 桂川駅(京都) 徒歩18分 京都府向日市物集女町五ノ坪 | 詳細を見る | |
マンション 京阪電気鉄道京阪線 清水五条駅 徒歩4分 築2年(2LDK/9階) | |||||||
![]() | 21.9万円 1.2万円 | 10.95万円 なし | 2LDK 57.71m2 | 築2年 | 京阪電気鉄道京阪線 清水五条駅 徒歩4分 京都市烏丸線 五条駅(京都市営) 徒歩7分 京都府京都市下京区本覚寺前町 | 詳細を見る | |
マンション 阪急電鉄京都線 大宮駅(京都) 徒歩7分 築32年(2DK/5階) | |||||||
![]() | 8.7万円 8,000円 | なし 8.7万円 | 2DK 45.36m2 | 築32年 | 阪急電鉄京都線 大宮駅(京都) 徒歩7分 山陰本線 丹波口駅 徒歩10分 京都府京都市中京区壬生相合町 | 詳細を見る | |
マンション 東海道本線 西大路駅 徒歩14分 築1年(1LDK/6階) | |||||||
![]() | 10.1万円 8,910円 | なし なし | 1LDK 34.67m2 | 築1年 | 東海道本線 西大路駅 徒歩14分 阪急電鉄京都線 西院駅(阪急) 徒歩20分 京都府京都市下京区西七条北衣田町 | 詳細を見る | |
マンション 京都市烏丸線 烏丸御池駅 徒歩5分 築37年(2K/3階) | |||||||
![]() | 11.5万円 1.1万円 | 11.5万円 10万円 | 2K 31.68m2 | 築37年 | 京都市烏丸線 烏丸御池駅 徒歩5分 京都市烏丸線 四条駅(京都市営) 徒歩7分 京都府京都市中京区丸屋町 | 詳細を見る | |
マンション 山陰本線 丹波口駅 徒歩5分 築1年(2LDK/2階) | |||||||
![]() | 12.9万円 8,000円 | なし 12.9万円 | 2LDK 42.52m2 | 築1年 | 山陰本線 丹波口駅 徒歩5分 東海道本線 京都駅 徒歩27分 京都府京都市下京区朱雀分木町 | 詳細を見る | |
マンション 東海道本線 西大路駅 徒歩10分 築2年(1LDK/4階) | |||||||
![]() | 13.9万円 1.1万円 | なし なし | 1LDK 48.19m2 | 築2年 | 東海道本線 西大路駅 徒歩10分 阪急電鉄京都線 西院駅(阪急) 徒歩20分 京都府京都市下京区西七条北衣田町 | 詳細を見る | |
マンション パデシオン六角堀川東(3LDK/11階) | |||||||
![]() | 21.5万円 1.5万円 | 43万円 43万円 | 3LDK 75.22m2 | 築19年 | 京都市東西線 二条城前駅 徒歩6分 京都府京都市中京区橋浦町堀川通三条下る | 詳細を見る | |









