賃貸マンション
ドゥミメゾンの賃貸物件情報(2K/4階)
| 家賃 | 管理費等 | 敷金 | 礼金 | 間取り | 専有面積 |
|---|---|---|---|---|---|
| 7.5万円 | 8,000円 | 5万円 | 15万円 | 2K | 40.56m2 |
入居決定でお祝い金最大100,000円
- 保証金
- -
- 償却・敷引
- -
- 築年数
- 築30年
- 所在階
- 4階
- 向き
- 東
Point
阪急新伊丹駅徒歩3分/エレベーター/鉄筋コンクリート造5階建ての4階/温水洗浄便座/モニターホン
提供:光栄住宅(株)(SUUMO経由)

詳細情報 ドゥミメゾン
物件紹介
ドゥミメゾンは阪急伊丹線新伊丹駅から徒歩3分にあり、駅近で通勤通学に便利なマンションです。
このお部屋は2階以上に位置しているので、通行人や周囲の住人からの視線が気になりにくく、防犯面でも安心。インターホンにはTVモニタもついているため、相手の顔を確認してから来客対応することができます。
人気の角部屋。周囲の居住者の生活音も気になりにくい場所です。バス・トイレ別の仕様で、のんびりお風呂タイムも楽しめます。
建物にはエレベーターがついているので、重い荷物があっても安心。
このお部屋は2階以上に位置しているので、通行人や周囲の住人からの視線が気になりにくく、防犯面でも安心。インターホンにはTVモニタもついているため、相手の顔を確認してから来客対応することができます。
人気の角部屋。周囲の居住者の生活音も気になりにくい場所です。バス・トイレ別の仕様で、のんびりお風呂タイムも楽しめます。
建物にはエレベーターがついているので、重い荷物があっても安心。
お金・契約の情報
※「-」と表示されているものは、実際は料金が発生するものもございます。詳細はお問い合わせください。
| 家賃 | 7.5万円 | 管理費・共益費 | 8,000円 |
|---|---|---|---|
| 敷金 | 5万円 | 礼金 | 15万円 |
| 入居決定でお祝い金最大100,000円 | |||
| 保証金 | - | 償却・敷引 | - |
| 住宅保険料 | - | 更新料 | - |
| 保証会社利用 | 必須 | 保証会社名 | 日本セーフティー |
| 保証会社費用 | - | 保証会社備考 | 日本セーフティー利用必 初回:月額総賃料等50%、 月額保証料:800円、 口座振替手数料:440円 |
| 契約形態 | - | 契約期間 | - |
| 入居・引渡期間 | 相談 | 現況 | - |
| 契約備考 | 駐車場は軽自動車またはコンパクトカーのみ可現地要確認のこと 合計1.65万円(内訳:鍵交換費:1.65万) 町内会費:月額150円(入居時期により当該年度末分まで前払い) 2K 事務所利用不可/ルームシェア不可 普通借家2年 損保【1.5万円2年】 バストイレ別、バルコニー、ガスコンロ対応、TVインターホン、室内洗濯置、シューズボックス、角住戸、温水洗浄便座、脱衣所、エレベーター、洗面所独立、洗面化粧台、駐輪場、2面採光、2面バルコニー、2沿線利用可、クッションフロア、仲手0.55ヶ月、眺望良好、平坦地、3方角住戸、耐震構造、2駅利用可、3駅以上利用可、駅徒歩5分以内、敷地内ごみ置き場、全居室6畳以上、都市ガス、洗面所にドア、年度内入居可、IT重説対応物件、通風良好 | ||
部屋の情報
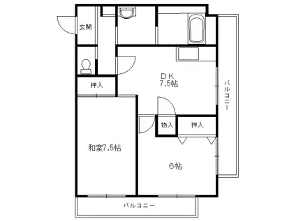
| 間取り | 2K | 専有面積 | 40.56m2 |
|---|---|---|---|
| 所在階 / 向き | 4階 / 東 | バルコニー面積 | - |
| 水道 / ガス | - | ||
| 設備 | バス・トイレ別、2階以上、テレビドアホン、エレベーター、温水洗浄便座、角部屋、バルコニー、洗髪洗面化粧台、コンロ:ガス、洗濯機:室内 | ||
| 当社物件ID | 160292333 | ||
建物の情報
| 建物名 | ドゥミメゾン | ||
|---|---|---|---|
| 所在地 | 兵庫県伊丹市平松 | ||
| 交通 | 阪急伊丹線 新伊丹駅 徒歩3分 阪急伊丹線 伊丹駅(阪急) 徒歩14分 JR福知山線 猪名寺駅 徒歩17分 | ||
| 階数 | 5階建 | 総戸数 | - |
| 築年月 | 1996年07月 / 築30年 | エレベーター | あり |
| 駐車場 | 空有 15000円/平置駐 | バイク置き場 | - |
| 駐輪場 | あり | 管理人/管理会社 | - |
| 周辺環境 | その他 セブンイレブン阪急新伊丹駅前店(コンビニ)まで251m その他 コープ伊丹(スーパー)まで178m その他 関西スーパー中央店(スーパー)まで709m その他 ツルハドラッグ伊丹中央店(ドラッグストア)まで734m その他 伊丹市立南中学校(中学校)まで752m その他 伊丹市立南小学校(小学校)まで801m | ||
| 建物種別 | マンション | 建物構造 | RC(鉄筋コンクリート) |
この部屋の取扱い不動産会社
| 会社名 | 光栄住宅(株)(SUUMO経由) | ||
|---|---|---|---|
| 所在地 | 兵庫県伊丹市中央1-9-14 | 交通 | - |
| 営業時間 | 9:30~18:00 | 定休日 | 火曜・水曜・一部の祝日 |
| 免許番号 | 兵庫県知事4183 | 取引態様 | 仲介 |
| 不動産会社管理番号 | 100485194786 | 当社管理番号 | 89 |
| 所属団体 | (一社)兵庫県宅地建物取引業協会会員 | ||
| 公正取引協議会 | (公社)近畿地区不動産公正取引協議会加盟 | ||
| 取扱い物件情報 | 物件詳細へ | ||
※各種情報と現状に差異がある場合は、現状優先となります。問い合わせをすることで、より詳しい条件、情報を確認する事ができます。
提供:光栄住宅(株)(SUUMO経由)
この物件が気になったら掲載期限まであと8日
ドゥミメゾンに条件(家賃・エリア)が近い物件一覧
| 写真 | 家賃 管理費等 | 敷金 礼金 | 間取り 専有面積 | 築年数 | 最寄り駅 所在地 | キープ | 詳細 |
|---|---|---|---|---|---|---|---|
アパート クレイノ大物(1K/2階) | |||||||
![]() | 6.2万円 5,000円 | なし 6.2万円 | 1K 24.84m2 | 築9年 | 阪神本線 大物駅 徒歩9分 阪神本線 尼崎駅(阪神) 徒歩15分 阪神本線 杭瀬駅 徒歩27分 兵庫県尼崎市東本町 | 詳細を見る | |
アパート D-ROOM南塚口(1LDK/1階) | |||||||
![]() | 12万円 6,000円 | なし 24万円 | 1LDK 46.12m2 | 築3年 | 阪急神戸線 塚口駅(阪急) 徒歩6分 JR福知山線 塚口駅(JR) 徒歩13分 兵庫県尼崎市南塚口町 | 詳細を見る | |
アパート ディアンサス立花(1K/3階) | |||||||
![]() | 6.5万円 5,000円 | なし 6.5万円 | 1K 25m2 | 築4年 | JR東海道本線 立花駅 徒歩7分 阪神本線 尼崎センタープール前駅 徒歩29分 阪神本線 出屋敷駅 徒歩30分 兵庫県尼崎市七松町 | 詳細を見る | |
アパート E-BONHEUR尼崎(1LDK/4階) | |||||||
![]() | 7.4万円 9,000円 | なし 10万円 | 1LDK 28.5m2 | 新築 | 阪神本線 大物駅 徒歩9分 阪神本線 尼崎駅(阪神) 徒歩20分 JR東海道本線 尼崎駅(JR) 徒歩21分 兵庫県尼崎市杭瀬南新町 | 詳細を見る | |
アパート ケイズスクエア尼崎(1K/3階) | |||||||
![]() | 6万円 5,000円 | なし 6万円 | 1K 25.03m2 | 築5年 | 阪神本線 尼崎駅(阪神) 徒歩6分 阪神本線 大物駅 徒歩8分 JR東海道本線 尼崎駅(JR) 徒歩25分 兵庫県尼崎市西大物町 | 詳細を見る | |
アパート MUKO7-SKT(1LDK/1階) | |||||||
![]() | 8.9万円 4,600円 | なし 11万円 | 1LDK 44.55m2 | 築4年 | 阪急電鉄神戸線 武庫之荘駅 徒歩19分 阪急電鉄伊丹線 稲野駅 徒歩35分 兵庫県尼崎市武庫之荘7丁目 | 詳細を見る | |







