賃貸マンション
SIERRA GARDENSデザイナーズ・バルコニ付・快適設計の賃貸物件情報(1LDK/4階)
| 家賃 | 管理費等 | 敷金 | 礼金 | 間取り | 専有面積 |
|---|---|---|---|---|---|
| 22.8万円 | 1.2万円 | 22.8万円 | 22.8万円 | 1LDK | 51.09m2 |
入居決定でお祝い金最大100,000円
- 保証金
- -
- 償却・敷引
- -
- 築年数
- 新築
- 所在階
- 4階
- 向き
- 北東
Point
2026年3月下旬完成予定■新築●デザイナーズ★Wi-Fi無料●眺望良◎心地よい隣緑地●安心快適設備!・複層ガラス/断熱遮熱性能有・エアコン2・浴室乾燥暖房・24H換気・防犯カメラ・EV有・CATV…
提供:(株)Rバンク(SUUMO経由)

詳細情報 SIERRA GARDENSデザイナーズ・バルコニ付・快適設計
物件紹介
SIERRA GARDENSデザイナーズ・バルコニ付・快適設計は小田急線千歳船橋駅から徒歩15分にあるマンションです。
このお部屋は2階以上に位置しているので通行人や周囲の住人からの視線が気になりにくく、建物のエントランスはオートロックがついているので防犯性が高くなっています。
おしゃれなデザイナーズ物件!人気の角部屋で周囲の居住者の生活音も気になりにくく、また、フローリングのお部屋なのでお掃除もラクラク。室内にはウォークインクローゼットがありますので、たくさんの荷物も効率的に収納ができます。キッチンはシステムキッチン仕様になっていますので、お料理好きの方にもぴったり。バス・トイレは別なので、のんびりお風呂タイムも楽しめるでしょう。また、雨の日でも浴室乾燥機を使えば、お洗濯も問題ありません。
通信設備面では、インターネットが無料で使えるので、月々の出費を抑えられるのも魅力です。また、BSアンテナもありますので、おうち時間も充実するでしょう(別途工事、BSの契約料等が必要な場合あり)。
ペット飼育の相談ができますので、あなたの大切な家族の一員も快適に暮らせるか、ぜひ確認してみてください。
このお部屋は2階以上に位置しているので通行人や周囲の住人からの視線が気になりにくく、建物のエントランスはオートロックがついているので防犯性が高くなっています。
おしゃれなデザイナーズ物件!人気の角部屋で周囲の居住者の生活音も気になりにくく、また、フローリングのお部屋なのでお掃除もラクラク。室内にはウォークインクローゼットがありますので、たくさんの荷物も効率的に収納ができます。キッチンはシステムキッチン仕様になっていますので、お料理好きの方にもぴったり。バス・トイレは別なので、のんびりお風呂タイムも楽しめるでしょう。また、雨の日でも浴室乾燥機を使えば、お洗濯も問題ありません。
通信設備面では、インターネットが無料で使えるので、月々の出費を抑えられるのも魅力です。また、BSアンテナもありますので、おうち時間も充実するでしょう(別途工事、BSの契約料等が必要な場合あり)。
ペット飼育の相談ができますので、あなたの大切な家族の一員も快適に暮らせるか、ぜひ確認してみてください。
お金・契約の情報
※「-」と表示されているものは、実際は料金が発生するものもございます。詳細はお問い合わせください。
| 家賃 | 22.8万円 | 管理費・共益費 | 1.2万円 |
|---|---|---|---|
| 敷金 | 22.8万円 | 礼金 | 22.8万円 |
| 入居決定でお祝い金最大100,000円 | |||
| 保証金 | - | 償却・敷引 | - |
| 住宅保険料 | - | 更新料 | - |
| 保証会社利用 | 必須 | 保証会社名 | - |
| 保証会社費用 | - | 保証会社備考 | 保証会社利用必 【保証会社加入必須】新日本信用保証 1年目:総賃料×50%、2年目以降:1万円/年、引落手数料330円/月 |
| 契約形態 | - | 契約期間 | - |
| 入居・引渡期間 | - | 現況 | - |
| 入居可能条件 | 事務所可、ペット相談 | ||
| 契約備考 | 巡回管理/新築デザイナーズ★Wi-Fi無料●バルコニー●ガス3口グリル・複層ガラス(断熱遮熱性能)・エアコン2・浴室乾燥暖房・24H換気・CATV・防犯カメラ・宅配BOX・モニターホン・EV有・暖房洗浄便座・収納他。・駐輪場・バイク置場・駐車場:先着有※ペット可(要相談。小型犬のみ)ペット飼育:敷金2か月/1か月分は償却+退去時清掃費支払※短期解約違約2年未満1か月、1年未満2か月※禁煙・現況有姿 合計1.98万円(内訳:24時間緊急サポート19800円(2年・税込)) (更新料:新賃料1.5ヶ月) 1LDK 二人入居可/子供可/ペット相談/事務所利用相談 普通借家2年 損保【1.8万円2年】 バストイレ別、バルコニー、エアコン、フローリング、浴室乾燥機、オートロック、室内洗濯置、シューズボックス、システムキッチン、追焚機能浴室、角住戸、温水洗浄便座、洗面所独立、2口コンロ、駐輪場、2面採光、ペット相談、照明付、オートバス、ウォークインクロゼット、敷金1ヶ月、二人入居相談、全居室フローリング、デザイナーズ、駅まで平坦、ネット使用料不要、2駅利用可、敷地内ごみ置き場、都市ガス、BS、礼金1ヶ月、IT重説対応物件 入居日:'26年4月上旬 | ||
部屋の情報
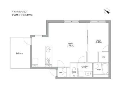
| 間取り | 1LDK | 専有面積 | 51.09m2 |
|---|---|---|---|
| 所在階 / 向き | 4階 / 北東 | バルコニー面積 | - |
| 水道 / ガス | - | ||
| 設備 | バス・トイレ別、2階以上、オートロック、浴室乾燥機、ウォークインクローゼット、追い焚き、インターネット対応、システムキッチン、エアコン、温水洗浄便座、角部屋、バルコニー、フローリング、洗髪洗面化粧台、2口コンロ、デザイナーズ、BSアンテナ、インターネット使用料無料、洗濯機:室内 | ||
| 当社物件ID | 160282178 | ||
建物の情報
| 建物名 | SIERRA GARDENSデザイナーズ・バルコニ付・快適設計 | ||
|---|---|---|---|
| 所在地 | 東京都世田谷区千歳台 | ||
| 交通 | 小田急線 千歳船橋駅 徒歩15分 小田急線 祖師ケ谷大蔵駅 徒歩19分 京王線 八幡山駅 徒歩30分 | ||
| 階数 | 4階建 | 総戸数 | - |
| 築年月 | 2026年04月 / 新築 | エレベーター | - |
| 駐車場 | 空有 27500円/平置駐 | バイク置き場 | - |
| 駐輪場 | あり | 管理人/管理会社 | - |
| 周辺環境 | その他 UNIQLO(ショッピングセンター)まで386m その他 サミットストア祖師谷店(スーパー)まで612m その他 ファミリーマート世田谷廻沢店(コンビニ)まで112m その他 ウエルシア世田谷千歳台二丁目店(ドラッグストア)まで600m その他 THE SPA成城 ( 成城温泉 )(その他)まで386m その他 セントラルウェルネスクラブ成城 ( セントラルスポーツ )(その他)まで390m | ||
| 建物種別 | マンション | 建物構造 | RC(鉄筋コンクリート) |
この部屋の取扱い不動産会社
| 会社名 | (株)Rバンク(SUUMO経由) | ||
|---|---|---|---|
| 所在地 | 東京都目黒区上目黒2-6-11 | 交通 | - |
| 営業時間 | 10:00~19:00 | 定休日 | 水 |
| 免許番号 | 東京都知事88663 | 取引態様 | 仲介 |
| 不動産会社管理番号 | 100478346147 | 当社管理番号 | 89 |
| 所属団体 | (公社)東京都宅地建物取引業協会会員 | ||
| 公正取引協議会 | (公社)首都圏不動産公正取引協議会加盟 | ||
| 取扱い物件情報 | 物件詳細へ | ||
※各種情報と現状に差異がある場合は、現状優先となります。問い合わせをすることで、より詳しい条件、情報を確認する事ができます。
提供:(株)Rバンク(SUUMO経由)
この物件が気になったら掲載期限まであと8日
SIERRA GARDENSデザイナーズ・バルコニ付・快適設計に条件(家賃・エリア)が近い物件一覧
| 写真 | 家賃 管理費等 | 敷金 礼金 | 間取り 専有面積 | 築年数 | 最寄り駅 所在地 | キープ | 詳細 |
|---|---|---|---|---|---|---|---|
アパート フォレスタ世田谷(2LDK/2階) | |||||||
![]() | 16.9万円 1,000円 | 16.9万円 16.9万円 | 2LDK 47.7m2 | 築55年 | 東急池上線 雪が谷大塚駅 徒歩6分 東急東横線 田園調布駅 徒歩16分 東急目黒線 多摩川駅 徒歩16分 東京都世田谷区東玉川 | 詳細を見る | |
一戸建て 京浜急行電鉄本線 大森町駅 徒歩14分 築38年(3LDK) | |||||||
![]() | 14.8万円 なし | 14.8万円 14.8万円 | 3LDK 62.09m2 | 築38年 | 京浜急行電鉄本線 大森町駅 徒歩14分 京浜急行電鉄本線 平和島駅 徒歩19分 東京都大田区大森東3丁目 | 詳細を見る | |
アパート ノリアセット(2LDK/3階) | |||||||
![]() | 18.6万円 3,000円 | 18.6万円 18.6万円 | 2LDK 62.72m2 | 新築 | 京浜急行電鉄本線 大森町駅 徒歩9分 京浜急行電鉄本線 梅屋敷駅(東京) 徒歩16分 東京都大田区大森東3丁目 | 詳細を見る | |
マンション アトラス池尻レジデンス(1DK/9階) | |||||||
![]() | 20万円 なし | 20万円 40万円 | 1DK 31.2m2 | 築13年 | 東急田園都市線 池尻大橋駅 徒歩6分 東急田園都市線 三軒茶屋駅 徒歩16分 東急世田谷線 西太子堂駅 徒歩22分 東京都世田谷区池尻 | 詳細を見る | |
マンション ラフィーネ大森(3LDK/3階) | |||||||
![]() | 28.8万円 2,000円 | 28.8万円 28.8万円 | 3LDK 116.22m2 | 築22年 | 京急本線 平和島駅 徒歩14分 京急本線 大森町駅 徒歩16分 JR京浜東北線 大森駅(東京) 徒歩16分 東京都大田区大森西 | 詳細を見る | |
マンション 京浜急行電鉄本線 梅屋敷駅(東京) 徒歩4分 築37年(3LDK/2階) | |||||||
![]() | 19.3万円 7,000円 | 19.3万円 19.3万円 | 3LDK 84.68m2 | 築37年 | 京浜急行電鉄本線 梅屋敷駅(東京) 徒歩4分 京浜急行電鉄本線 大森町駅 徒歩12分 東京都大田区大森西6丁目 | 詳細を見る | |
マンション サンライズマンション(2LDK/2階) | |||||||
![]() | 16.5万円 3,000円 | 12.7万円 なし | 2LDK 55.31m2 | 築26年 | 京急本線 梅屋敷駅(東京) 徒歩13分 京急本線 大森町駅 徒歩14分 東京モノレール 昭和島駅 徒歩16分 東京都大田区大森南 | 詳細を見る | |
タウンハウス 大田菜園長屋(2LDK) | |||||||
![]() | 15.2万円 5,000円 | 15.2万円 15.2万円 | 2LDK 52.17m2 | 築10年 | 京浜急行電鉄本線 雑色駅 徒歩8分 京浜急行電鉄本線 六郷土手駅 徒歩13分 東京都大田区東六郷3丁目 | 詳細を見る | |









