賃貸マンション
ニューシティ東戸塚南の街5号棟の賃貸物件情報(3LDK/3階)
| 家賃 | 管理費等 | 敷金 | 礼金 | 間取り | 専有面積 |
|---|---|---|---|---|---|
| 17.8万円 | 1万円 | 17.8万円 | 17.8万円 | 3LDK | 74.59m2 |
入居決定でお祝い金最大100,000円
- 保証金
- -
- 償却・敷引
- -
- 築年数
- 築44年
- 所在階
- 3階
- 向き
- 南西
Point
東戸塚駅から徒歩6分!■陽光あふれる南向き■140m先の品濃小学校で安心の通学■コンビニやスーパーも身近に揃い、家族の毎日を支える快適な住環境です。
提供:(株)東京都心ハウジング(SUUMO経由)

詳細情報 ニューシティ東戸塚南の街5号棟
物件紹介
ニューシティ東戸塚南の街5号棟はJR横須賀線東戸塚駅から徒歩6分にあり、駅近で通勤通学に便利なマンションです。
このお部屋は2階以上に位置しているので、通行人や周囲の住人からの視線が気になりにくく、防犯面でも安心です。
人気の南向き・フローリングのお部屋。室内にはウォークインクローゼットがありますので、たくさんの荷物も効率的に収納ができます。キッチンはシステムキッチン仕様になっていますので、お料理好きの方にもぴったり。また、バス・トイレは別で、のんびりお風呂タイムも楽しめるでしょう。
建物にはエレベーターがついているので、重い荷物があっても安心。
このお部屋は2階以上に位置しているので、通行人や周囲の住人からの視線が気になりにくく、防犯面でも安心です。
人気の南向き・フローリングのお部屋。室内にはウォークインクローゼットがありますので、たくさんの荷物も効率的に収納ができます。キッチンはシステムキッチン仕様になっていますので、お料理好きの方にもぴったり。また、バス・トイレは別で、のんびりお風呂タイムも楽しめるでしょう。
建物にはエレベーターがついているので、重い荷物があっても安心。
お金・契約の情報
※「-」と表示されているものは、実際は料金が発生するものもございます。詳細はお問い合わせください。
| 家賃 | 17.8万円 | 管理費・共益費 | 1万円 |
|---|---|---|---|
| 敷金 | 17.8万円 | 礼金 | 17.8万円 |
| 入居決定でお祝い金最大100,000円 | |||
| 保証金 | - | 償却・敷引 | - |
| 住宅保険料 | - | 更新料 | - |
| 保証会社利用 | 必須 | 保証会社名 | - |
| 保証会社費用 | - | 保証会社備考 | 保証会社利用必 ジェイリース等 初回保証料:賃料総額の50%~ 継続保証料:10,000/年(別途消費税)~ |
| 契約形態 | - | 契約期間 | - |
| 入居・引渡期間 | 即時 | 現況 | - |
| 契約備考 | 通勤管理 合計1.1万円(内訳:事務手数料) 退去時のルームクリーニングは退去者負担 10万円(別途税) 入居中の使用状態によっては超過する場合がございます 3LDK 事務所利用不可/ルームシェア不可 損保【要】 バストイレ別、バルコニー、エアコン、クロゼット、フローリング、室内洗濯置、陽当り良好、シューズボックス、システムキッチン、南向き、温水洗浄便座、エレベーター、洗面所独立、即入居可、3口以上コンロ、IHクッキングヒーター、分譲賃貸、グリル付、ウォークインクロゼット、保証人不要、敷金1ヶ月、全居室フローリング、2沿線利用可、エアコン2台、ディンプルキー、ダブルロックキー、L字型キッチン、エアコン3台、南面2室、駅徒歩10分以内、敷地内ごみ置き場、南西向き、日勤管理、LDK12畳以上、南面バルコニー、礼金1ヶ月 | ||
部屋の情報
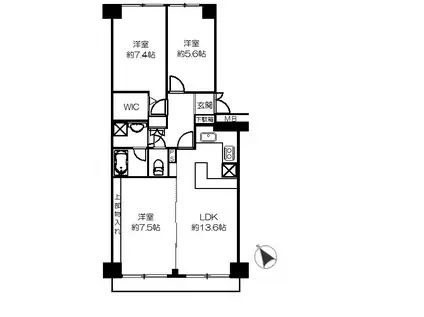
| 間取り | 3LDK | 専有面積 | 74.59m2 |
|---|---|---|---|
| 所在階 / 向き | 3階 / 南西 | バルコニー面積 | 9m2 |
| 水道 / ガス | - | ||
| 設備 | バス・トイレ別、2階以上、ウォークインクローゼット、システムキッチン、エアコン、エレベーター、温水洗浄便座、南向き、バルコニー、フローリング、洗髪洗面化粧台、2口コンロ、コンロ:IH、洗濯機:室内 | ||
| 当社物件ID | 160375141 | ||
建物の情報
| 建物名 | ニューシティ東戸塚南の街5号棟 | ||
|---|---|---|---|
| 所在地 | 神奈川県横浜市戸塚区品濃町 | ||
| 交通 | JR横須賀線 東戸塚駅 徒歩6分 湘南新宿ライン宇須 東戸塚駅 徒歩6分 | ||
| 階数 | 10階建 | 総戸数 | - |
| 築年月 | 1982年10月 / 築44年 | エレベーター | あり |
| 駐車場 | なし | バイク置き場 | - |
| 駐輪場 | - | 管理人/管理会社 | - |
| 周辺環境 | その他 Fit Care Express東戸塚店(ドラッグストア)まで291m その他 Olympicおりーぶ東戸塚店(スーパー)まで335m その他 ニトリデコホーム西武東戸塚S.C.店(ホームセンター)まで663m その他 ローソン戸塚品濃町店(コンビニ)まで152m その他 東急ストアモレラ東戸塚店(スーパー)まで703m その他 横浜市立品濃小学校(小学校)まで71m | ||
| 建物種別 | マンション | 建物構造 | SRC(鉄骨鉄筋コンクリート) |
この部屋の取扱い不動産会社
| 会社名 | (株)東京都心ハウジング(SUUMO経由) | ||
|---|---|---|---|
| 所在地 | 東京都渋谷区元代々木町 52-5 | 交通 | - |
| 営業時間 | - | 定休日 | - |
| 免許番号 | 国土交通大臣8839 | 取引態様 | 代理 |
| 不動産会社管理番号 | 100487725398 | 当社管理番号 | 89 |
| 所属団体 | (公社)全日本不動産協会東京都本部会員 | ||
| 公正取引協議会 | (公社)首都圏不動産公正取引協議会加盟 | ||
| 取扱い物件情報 | 物件詳細へ | ||
※各種情報と現状に差異がある場合は、現状優先となります。問い合わせをすることで、より詳しい条件、情報を確認する事ができます。
提供:(株)東京都心ハウジング(SUUMO経由)
この物件が気になったら掲載期限まであと10日
ニューシティ東戸塚南の街5号棟に条件(家賃・エリア)が近い物件一覧
| 写真 | 家賃 管理費等 | 敷金 礼金 | 間取り 専有面積 | 築年数 | 最寄り駅 所在地 | キープ | 詳細 |
|---|---|---|---|---|---|---|---|
マンション ハイツ向ヶ丘遊園(2LDK/11階) | |||||||
![]() | 11.8万円 なし | 23.6万円 11.8万円 | 2LDK 72.92m2 | 築42年 | 小田急線 生田駅(神奈川) 徒歩16分 神奈川県川崎市多摩区東三田 | 詳細を見る | |
アパート リベルラ美鈴(2LDK/3階) | |||||||
![]() | 14.4万円 6,000円 | なし 21.6万円 | 2LDK 58.8m2 | 築10年 | 東急田園都市線 中央林間駅 徒歩7分 小田急江ノ島線 南林間駅 徒歩15分 小田急江ノ島線 鶴間駅 徒歩24分 神奈川県大和市中央林間 | 詳細を見る | |
マンション LUXENAPAWS藤沢(2LDK/3階) | |||||||
![]() | 21.5万円 2万円 | なし なし | 2LDK 65.31m2 | 築1年 | JR東海道本線 藤沢駅 徒歩17分 江ノ島電鉄線 石上駅 徒歩22分 江ノ島電鉄線 柳小路駅 徒歩27分 神奈川県藤沢市弥勒寺 | 詳細を見る | |
マンション イースト SEDONA(2LDK/1階) | |||||||
![]() | 20.4万円 1.25万円 | 20.4万円 20.4万円 | 2LDK 58.56m2 | 築1年 | JR南武線 中野島駅 徒歩15分 小田急線 向ケ丘遊園駅 徒歩16分 小田急線 登戸駅 徒歩20分 神奈川県川崎市多摩区登戸 | 詳細を見る | |
マンション グランウェーブ湘南(1SLDK/1階) | |||||||
![]() | 15.4万円 8,000円 | 15.4万円 23.1万円 | 1SLDK 60.35m2 | 築1年 | JR東海道本線 藤沢駅 徒歩12分 江ノ島電鉄線 石上駅 徒歩21分 神奈川県藤沢市大鋸 | 詳細を見る | |
マンション シエルコート(3LDK/1階) | |||||||
![]() | 19.5万円 1.05万円 | 9.75万円 なし | 3LDK 76.66m2 | 築1年 | 小田急江ノ島線 湘南台駅 徒歩8分 小田急江ノ島線 六会日大前駅 徒歩20分 小田急江ノ島線 長後駅 徒歩30分 神奈川県藤沢市湘南台 | 詳細を見る | |
アパート 中原区木月2丁目アパート(1LDK/3階) | |||||||
![]() | 12.2万円 4,000円 | 12.2万円 12.2万円 | 1LDK 29.39m2 | 新築 | 東急東横線 元住吉駅 徒歩6分 東急東横線 日吉駅(神奈川) 徒歩20分 JR南武線 武蔵小杉駅 徒歩25分 神奈川県川崎市中原区木月 | 詳細を見る | |
マンション ベルクレエ新百合ヶ丘(3LDK/9階) | |||||||
![]() | 18.4万円 2.2万円 | 36.8万円 18.4万円 | 3LDK 87.01m2 | 築38年 | 小田急線 新百合ケ丘駅 徒歩5分 小田急多摩線 新百合ケ丘駅 徒歩5分 神奈川県川崎市麻生区上麻生 | 詳細を見る | |









