賃貸マンション
HEBEL MAISON VERVEINEの賃貸物件情報(1LDK/2階)
| 家賃 | 管理費等 | 敷金 | 礼金 | 間取り | 専有面積 |
|---|---|---|---|---|---|
| 10.6万円 | 6,500円 | なし | なし | 1LDK | 42.35m2 |
入居決定でお祝い金最大100,000円
- 保証金
- -
- 償却・敷引
- -
- 築年数
- 築3年
- 所在階
- 2階
- 向き
- -
Point
ZEHMにお住まい頂くことで、高断熱による快適な暮らしと、省エネ設備による光熱費の削減が実現できます。太陽光発電の電力を使用できるので、電気代も節約。余った太陽光発電力で、売電収入も見込めます★
提供:ピタットハウス姫路駅南口店(株)ライブデザイン(SUUMO経由)

詳細情報 HEBEL MAISON VERVEINE
物件紹介
HEBEL MAISON VERVEINEはJR山陽本線姫路駅から徒歩10分にあり、駅近で通勤通学に便利なマンションです。
このお部屋は2階以上に位置しているので、通行人や周囲の住人からの視線が気になりにくく、防犯面でも安心。建物のエントランスはオートロックがついており、インターホンにはTVモニタもついているため、相手の顔を確認してから来客対応することができます。
おしゃれなデザイナーズ物件!人気の南向きのお部屋。また、フローリングなのでお掃除もラクラク。キッチンはシステムキッチン仕様になっていますので、お料理好きの方にもぴったり。バス・トイレは別なので、のんびりお風呂タイムも楽しめるでしょう。また、雨の日でも浴室乾燥機を使えば、お洗濯も問題ありません。
通信設備面では、インターネットが無料で使えるので、月々の出費を抑えられるのも魅力です。また、BSアンテナ・CSアンテナがありCATVにも対応しているので、おうち時間も充実するでしょう(別途工事、BS・CS・CATVの契約料等が必要な場合あり)。
共用部には宅配ボックスが設定されているので、不在の時にも荷物を受け取ることができます。
このお部屋は2階以上に位置しているので、通行人や周囲の住人からの視線が気になりにくく、防犯面でも安心。建物のエントランスはオートロックがついており、インターホンにはTVモニタもついているため、相手の顔を確認してから来客対応することができます。
おしゃれなデザイナーズ物件!人気の南向きのお部屋。また、フローリングなのでお掃除もラクラク。キッチンはシステムキッチン仕様になっていますので、お料理好きの方にもぴったり。バス・トイレは別なので、のんびりお風呂タイムも楽しめるでしょう。また、雨の日でも浴室乾燥機を使えば、お洗濯も問題ありません。
通信設備面では、インターネットが無料で使えるので、月々の出費を抑えられるのも魅力です。また、BSアンテナ・CSアンテナがありCATVにも対応しているので、おうち時間も充実するでしょう(別途工事、BS・CS・CATVの契約料等が必要な場合あり)。
共用部には宅配ボックスが設定されているので、不在の時にも荷物を受け取ることができます。
お金・契約の情報
※「-」と表示されているものは、実際は料金が発生するものもございます。詳細はお問い合わせください。
| 家賃 | 10.6万円 | 管理費・共益費 | 6,500円 |
|---|---|---|---|
| 敷金 | なし | 礼金 | なし |
| 入居決定でお祝い金最大100,000円 | |||
| 保証金 | - | 償却・敷引 | - |
| 住宅保険料 | - | 更新料 | - |
| 保証会社利用 | 必須 | 保証会社名 | - |
| 保証会社費用 | - | 保証会社備考 | 保証会社利用必 初回総家賃の50% |
| 契約形態 | - | 契約期間 | - |
| 入居・引渡期間 | 相談 | 現況 | - |
| 契約備考 | 巡回管理/ZEHM(ゼッチ)対応へーベルメゾンのハイグレード物件★ZEHMにお住まい頂くことで、高断熱による快適な暮らしと、省エネ設備による光熱費の削減が実現できます。太陽光発電の電力を使用できるので、電気代も節約。余った太陽光発電力で、売電収入も見込めます★ 「省エネルギー性能表示(BELS)におけるZEHMの評価取得物件(2023年4月27日に認証取得)エネルギー消費量住棟43%削減 1LDK 単身者可 普通借家2年 バストイレ別、バルコニー、エアコン、ガスコンロ対応、クロゼット、フローリング、シャワー付洗面台、TVインターホン、浴室乾燥機、オートロック、室内洗濯置、陽当り良好、システムキッチン、追焚機能浴室、温水洗浄便座、脱衣所、洗面所独立、洗面化粧台、駐輪場、宅配ボックス、CATV、光ファイバー、閑静な住宅地、BS・CS、3口以上コンロ、対面式キッチン、防犯カメラ、オートバス、グリル付、保証人不要、CATVインターネット、バイク置場、全居室フローリング、デザイナーズ、ディンプルキー、ネット専用回線、駅まで平坦、ネット使用料不要、内装リフォーム済、眺望良好、床下収納、ダブルロックキー、24時間換気システム、築3年以内、人感照明センサー、3駅以上利用可、3沿線以上利用可、駅徒歩10分以内、敷地内ごみ置き場、都市ガス、洗面所にドア、オートライト、ダウンライト、高速ネット対応、敷金・礼金不要、IT重説対応物件、初期費用カード決済可、通風良好 | ||
部屋の情報
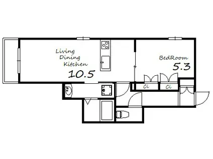
| 間取り | 1LDK | 専有面積 | 42.35m2 |
|---|---|---|---|
| 所在階 / 向き | 2階 / - | バルコニー面積 | - |
| 水道 / ガス | - | ||
| 設備 | バス・トイレ別、2階以上、オートロック、テレビドアホン、宅配ボックス、浴室乾燥機、追い焚き、インターネット対応、システムキッチン、エアコン、温水洗浄便座、バルコニー、フローリング、床下収納、洗髪洗面化粧台、2口コンロ、コンロ:ガス、デザイナーズ、CATV、CSアンテナ、BSアンテナ、インターネット使用料無料、洗濯機:室内 | ||
| 当社物件ID | 135899250 | ||
建物の情報
| 建物名 | HEBEL MAISON VERVEINE | ||
|---|---|---|---|
| 所在地 | 兵庫県姫路市古二階町 | ||
| 交通 | JR山陽本線 姫路駅 徒歩10分 山陽電鉄本線 山陽姫路駅 徒歩10分 JR播但線 京口駅 徒歩15分 | ||
| 階数 | 4階建 | 総戸数 | 12戸 |
| 築年月 | 2023年09月 / 築3年 | エレベーター | - |
| 駐車場 | 空有 16500円 | バイク置き場 | あり |
| 駐輪場 | あり | 管理人/管理会社 | - |
| 周辺環境 | その他 マツモトキヨシ姫路みゆき通り店(ドラッグストア)まで446m その他 ファミリーマート 姫路みゆき通店(コンビニ)まで492m その他 ファミリーマート 姫路大手前店(コンビニ)まで404m その他 テラッソ姫路(ショッピングセンター)まで554m その他 姫路立町郵便局(郵便局)まで627m その他 ボンマルシェ 姫路店(スーパー)まで744m | ||
| 建物種別 | マンション | 建物構造 | 鉄骨造 |
この部屋の取扱い不動産会社
| 会社名 | ピタットハウス垂水店(株)ライブデザイン兵庫(SUUMO経由) | ||
|---|---|---|---|
| 所在地 | 兵庫県神戸市垂水区宮本町 3-13 1階 | 交通 | - |
| 営業時間 | 09:00~18:00 | 定休日 | - |
| 免許番号 | 兵庫県知事12246 | 取引態様 | 仲介 |
| 不動産会社管理番号 | 100486567531 | 当社管理番号 | 89 |
| 所属団体 | (公社)全日本不動産協会兵庫県本部会員 | ||
| 公正取引協議会 | (公社)近畿地区不動産公正取引協議会加盟 | ||
| 取扱い物件情報 | 物件詳細へ | ||
※各種情報と現状に差異がある場合は、現状優先となります。問い合わせをすることで、より詳しい条件、情報を確認する事ができます。
提供:ピタットハウス垂水店(株)ライブデザイン兵庫(SUUMO経由)
この物件が気になったら掲載期限まであと10日
HEBEL MAISON VERVEINEに条件(家賃・エリア)が近い物件一覧
| 写真 | 家賃 管理費等 | 敷金 礼金 | 間取り 専有面積 | 築年数 | 最寄り駅 所在地 | キープ | 詳細 |
|---|---|---|---|---|---|---|---|
一戸建て 山陽本線 加古川駅 徒歩16分 築46年(6DK) | |||||||
![]() | 8.8万円 なし | なし 10万円 | 6DK 111.53m2 | 築46年 | 山陽本線 加古川駅 徒歩16分 加古川線 加古川駅 徒歩16分 加古川線 日岡駅 徒歩17分 兵庫県加古川市加古川町中津 | 詳細を見る | |
マンション 藤野ビル(2LDK/4階) | |||||||
![]() | 8万円 なし | なし 8万円 | 2LDK 71.1m2 | 築45年 | 山陽電鉄本線 山陽姫路駅 徒歩5分 山陽新幹線 姫路駅 徒歩9分 JR播但線 京口駅 徒歩20分 兵庫県姫路市紺屋町 | 詳細を見る | |
マンション コーポ青山Ⅲ(3LDK/5階) | |||||||
![]() | 6.5万円 5,000円 | なし 6.5万円 | 3LDK 72.66m2 | 築32年 | 姫新線 余部駅 徒歩20分 兵庫県姫路市青山6丁目 | 詳細を見る | |
アパート ヴィラーチェⅡ(1LDK/1階) | |||||||
![]() | 7.7万円 4,500円 | なし 11.55万円 | 1LDK 45.36m2 | 築1年 | 山陽電気鉄道本線 白浜の宮駅 徒歩10分 山陽電気鉄道本線 八家駅 徒歩18分 山陽電気鉄道本線 妻鹿駅 徒歩32分 兵庫県姫路市白浜町 | 詳細を見る | |
マンション ライオンズマンション姫路(2DK/6階) | |||||||
![]() | 8.2万円 なし | 16.4万円 16.4万円 | 2DK 46.56m2 | 築38年 | 山陽電気鉄道本線 山陽姫路駅 徒歩7分 山陽本線 姫路駅 徒歩10分 山陽電気鉄道本線 手柄駅 徒歩19分 兵庫県姫路市忍町 | 詳細を見る | |
マンション アゴラオーキッド冨永(3LDK/4階) | |||||||
![]() | 9.4万円 5,000円 | なし なし | 3LDK 77.9m2 | 築20年 | 兵庫県たつの市龍野町富永 | 詳細を見る | |
アパート エピナールⅡ(2LDK/2階) | |||||||
![]() | 7.45万円 4,100円 | なし 7.45万円 | 2LDK 57.54m2 | 築5年 | 山陽電気鉄道網干線 山陽天満駅 徒歩10分 兵庫県姫路市大津区恵美酒町2丁目 | 詳細を見る | |
アパート ルクプルF2(1LDK/1階) | |||||||
![]() | 6.4万円 6,000円 | なし 6万円 | 1LDK 33.4m2 | 築7年 | 山陽電気鉄道網干線 西飾磨駅 徒歩7分 山陽本線 英賀保駅 徒歩16分 山陽電気鉄道網干線 夢前川駅 徒歩21分 兵庫県姫路市飾磨区今在家6丁目 | 詳細を見る | |








