賃貸アパート
ソレイユ松原の賃貸物件情報(1LDK/3階)
| 家賃 | 管理費等 | 敷金 | 礼金 | 間取り | 専有面積 |
|---|---|---|---|---|---|
| 9.1万円 | 5,000円 | なし | 18.2万円 | 1LDK | 34.22m2 |
入居決定でお祝い金最大100,000円
- 保証金
- -
- 償却・敷引
- -
- 築年数
- 築10年
- 所在階
- 3階
- 向き
- 南
Point
まずはお問い合わせ!
不動産会社は街のプロ、あなたに合った物件がきっと見つかります。
提供:(株)ウッドワークホーム(SUUMO経由)

詳細情報 ソレイユ松原
物件紹介
ソレイユ松原はJR東海道本線西宮駅から徒歩3分にあり、駅近で通勤通学に便利なアパートです。
このお部屋は2階以上に位置しているので、通行人や周囲の住人からの視線が気になりにくく、防犯面でも安心。建物のエントランスはオートロックがついており、インターホンにはTVモニタもついているため、相手の顔を確認してから来客対応することができます。
人気の南向き・フローリングのお部屋。角部屋でもあるため、周囲の居住者の生活音も気になりにくい場所です。室内にはウォークインクローゼットがありますので、たくさんの荷物も効率的に収納ができます。キッチンはシステムキッチン仕様になっていますので、お料理好きの方にもぴったり。また、バス・トイレは別で、のんびりお風呂タイムも楽しめるでしょう。
共用部には宅配ボックスが設定されているので、不在の時にも荷物を受け取ることができます。
このお部屋は2階以上に位置しているので、通行人や周囲の住人からの視線が気になりにくく、防犯面でも安心。建物のエントランスはオートロックがついており、インターホンにはTVモニタもついているため、相手の顔を確認してから来客対応することができます。
人気の南向き・フローリングのお部屋。角部屋でもあるため、周囲の居住者の生活音も気になりにくい場所です。室内にはウォークインクローゼットがありますので、たくさんの荷物も効率的に収納ができます。キッチンはシステムキッチン仕様になっていますので、お料理好きの方にもぴったり。また、バス・トイレは別で、のんびりお風呂タイムも楽しめるでしょう。
共用部には宅配ボックスが設定されているので、不在の時にも荷物を受け取ることができます。
お金・契約の情報
※「-」と表示されているものは、実際は料金が発生するものもございます。詳細はお問い合わせください。
| 家賃 | 9.1万円 | 管理費・共益費 | 5,000円 |
|---|---|---|---|
| 敷金 | なし | 礼金 | 18.2万円 |
| 入居決定でお祝い金最大100,000円 | |||
| 保証金 | - | 償却・敷引 | - |
| 住宅保険料 | - | 更新料 | - |
| 保証会社利用 | 必須 | 保証会社名 | 全保連 |
| 保証会社費用 | - | 保証会社備考 | 全保連利用必 更新タイプと1回払いタイプあり |
| 契約形態 | - | 契約期間 | - |
| 入居・引渡期間 | - | 現況 | - |
| 契約備考 | ●積水ハウス施工●JR西宮駅より徒歩約3分!●ウォークインクローゼット有●宅配ボックスあり●安心のオートロック●案内等お問合せは、担当者:永井()までお気軽にお電話下さい 鍵交換代15000円(契約時)駐輪場代1台当たり月額100円必要 1LDK 普通借家2年 損保【1.8万円2年】 バストイレ別、バルコニー、エアコン、フローリング、TVインターホン、オートロック、室内洗濯置、シューズボックス、システムキッチン、南向き、角住戸、温水洗浄便座、洗面所独立、宅配ボックス、3口以上コンロ、対面式キッチン、ウォークインクロゼット、駅まで平坦、3駅以上利用可、3沿線以上利用可、築5年以内、都市ガス 入居日:'26年2月上旬 | ||
部屋の情報
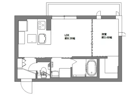
| 間取り | 1LDK | 専有面積 | 34.22m2 |
|---|---|---|---|
| 所在階 / 向き | 3階 / 南 | バルコニー面積 | 5m2 |
| 水道 / ガス | - | ||
| 設備 | バス・トイレ別、2階以上、オートロック、テレビドアホン、宅配ボックス、ウォークインクローゼット、システムキッチン、エアコン、温水洗浄便座、南向き、角部屋、バルコニー、フローリング、洗髪洗面化粧台、2口コンロ、洗濯機:室内 | ||
| 当社物件ID | 24181238 | ||
建物の情報
| 建物名 | ソレイユ松原 | ||
|---|---|---|---|
| 所在地 | 兵庫県西宮市松原町 | ||
| 交通 | JR東海道本線 西宮駅(JR) 徒歩3分 阪急今津線 今津駅(阪急) 徒歩10分 阪神本線 今津駅(阪神) 徒歩11分 | ||
| 階数 | 3階建 | 総戸数 | 12戸 |
| 築年月 | 2017年01月 / 築10年 | エレベーター | - |
| 駐車場 | なし | バイク置き場 | - |
| 駐輪場 | - | 管理人/管理会社 | - |
| 周辺環境 | その他 TSUTAYA JR西宮店(レンタルビデオ)まで295m その他 コープ西宮(スーパー)まで328m その他 セブンイレブン西宮松原町店(コンビニ)まで80m その他 ニトリ西宮駅前店(ホームセンター)まで359m その他 フレンテ西宮(ショッピングセンター)まで346m | ||
| 建物種別 | アパート | 建物構造 | 鉄骨造 |
この部屋の取扱い不動産会社
| 会社名 | (株)ウッドワークホーム(SUUMO経由) | ||
|---|---|---|---|
| 所在地 | 兵庫県神戸市東灘区御影本町6-15-22 | 交通 | - |
| 営業時間 | 10:00~19:00 | 定休日 | 水曜日 |
| 免許番号 | 兵庫県知事11952 | 取引態様 | 仲介 |
| 不動産会社管理番号 | 100253729653 | 当社管理番号 | 89 |
| 所属団体 | (一社)兵庫県宅地建物取引業協会会員 | ||
| 公正取引協議会 | (公社)近畿地区不動産公正取引協議会加盟 | ||
| 取扱い物件情報 | 物件詳細へ | ||
※各種情報と現状に差異がある場合は、現状優先となります。問い合わせをすることで、より詳しい条件、情報を確認する事ができます。
提供:(株)ウッドワークホーム(SUUMO経由)
この物件が気になったら掲載期限まであと8日
ソレイユ松原に条件(家賃・エリア)が近い物件一覧
| 写真 | 家賃 管理費等 | 敷金 礼金 | 間取り 専有面積 | 築年数 | 最寄り駅 所在地 | キープ | 詳細 |
|---|---|---|---|---|---|---|---|
アパート フジパレス出屋敷南番館(1LDK/3階) | |||||||
![]() | 6.8万円 5,000円 | なし 11万円 | 1LDK 36.15m2 | 新築 | 阪神電鉄本線 出屋敷駅 徒歩4分 阪神電鉄本線 尼崎駅(阪神) 徒歩13分 兵庫県尼崎市南竹谷町1丁目 | 詳細を見る | |
アパート エム・ヴィレッジ(1LDK/2階) | |||||||
![]() | 7.2万円 4,600円 | なし 11万円 | 1LDK 43m2 | 築10年 | 阪神電鉄本線 杭瀬駅 徒歩7分 東海道本線 尼崎駅(JR) 徒歩22分 阪神電鉄本線 大物駅 徒歩22分 兵庫県尼崎市杭瀬北新町1丁目 | 詳細を見る | |
アパート フジパレス尼崎東難波番館(1K/1階) | |||||||
![]() | 6.25万円 4,800円 | なし 7万円 | 1K 30.1m2 | 築1年 | 阪神電鉄本線 尼崎駅(阪神) 徒歩10分 阪神電鉄本線 出屋敷駅 徒歩13分 兵庫県尼崎市東難波町5丁目 | 詳細を見る | |
アパート アルパポンテ一番館(3DK/1階) | |||||||
![]() | 6万円 1,000円 | なし なし | 3DK 67.09m2 | 築28年 | 兵庫県神戸市西区玉津町高津橋 | 詳細を見る | |
アパート フォーチュンパーク(1LDK/1階) | |||||||
![]() | 8.4万円 4,600円 | なし 8.4万円 | 1LDK 40.01m2 | 築2年 | 阪神電鉄本線 杭瀬駅 徒歩10分 東海道本線 尼崎駅(JR) 徒歩25分 阪神電鉄阪神なんば 大物駅 徒歩25分 兵庫県尼崎市今福2丁目 | 詳細を見る | |
アパート クレイノシンフォニー 野村(1K/4階) | |||||||
![]() | 8.3万円 5,000円 | なし 8.3万円 | 1K 22.93m2 | 築9年 | JR東海道本線 尼崎駅(JR) 徒歩9分 阪神本線 杭瀬駅 徒歩28分 JR東西線 加島駅 徒歩29分 兵庫県尼崎市浜 | 詳細を見る | |
マンション マンションアムール(2LDK/2階) | |||||||
![]() | 5.5万円 5,000円 | なし なし | 2LDK 52m2 | 築29年 | 兵庫県神戸市西区北別府3丁目 | 詳細を見る | |








