賃貸アパート
アル・ソーレ亀有の賃貸物件情報(1K/1階)
| 家賃 | 管理費等 | 敷金 | 礼金 | 間取り | 専有面積 |
|---|---|---|---|---|---|
| 6.3万円 | 3,000円 | なし | なし | 1K | 18.67m2 |
入居決定でお祝い金最大100,000円
Point
お部屋探しは我々にお任せください!他ポータルサイトの物件や他社様掲載物件もまとめて全てご手配可能!!クレジットカードでの初期費用分割、賃料や初期費用の交渉、ご入居時期など何でもお気軽にご相談下さい。
提供:ポラスの賃貸 Room'Spot西新井営業所(株)中央ビル管理(SUUMO経由)

詳細情報 アル・ソーレ亀有
物件紹介
アル・ソーレ亀有はJR常磐線亀有駅から徒歩9分にあり、駅近で通勤通学に便利なアパートです。
建物のエントランスはオートロックがついており、インターホンにはTVモニタもついているため、相手の顔を確認してから来客対応することができます。
人気の角部屋で周囲の居住者の生活音も気になりにくく、また、フローリングのお部屋なのでお掃除もラクラク。室内にはウォークインクローゼットがありますので、たくさんの荷物も効率的に収納ができます。キッチンはシステムキッチン仕様になっていますので、お料理好きの方にもぴったり。バス・トイレは別なので、のんびりお風呂タイムも楽しめるでしょう。また、雨の日でも浴室乾燥機を使えば、お洗濯も問題ありません。
通信設備面では、インターネットが無料で使えるので、月々の出費を抑えられるのも魅力です。また、BSアンテナ・CSアンテナがありCATVにも対応しているので、おうち時間も充実するでしょう(別途工事、BS・CS・CATVの契約料等が必要な場合あり)。
共用部には宅配ボックスが設定されているので、不在の時にも荷物を受け取ることができます。
建物のエントランスはオートロックがついており、インターホンにはTVモニタもついているため、相手の顔を確認してから来客対応することができます。
人気の角部屋で周囲の居住者の生活音も気になりにくく、また、フローリングのお部屋なのでお掃除もラクラク。室内にはウォークインクローゼットがありますので、たくさんの荷物も効率的に収納ができます。キッチンはシステムキッチン仕様になっていますので、お料理好きの方にもぴったり。バス・トイレは別なので、のんびりお風呂タイムも楽しめるでしょう。また、雨の日でも浴室乾燥機を使えば、お洗濯も問題ありません。
通信設備面では、インターネットが無料で使えるので、月々の出費を抑えられるのも魅力です。また、BSアンテナ・CSアンテナがありCATVにも対応しているので、おうち時間も充実するでしょう(別途工事、BS・CS・CATVの契約料等が必要な場合あり)。
共用部には宅配ボックスが設定されているので、不在の時にも荷物を受け取ることができます。
お金・契約の情報
※「-」と表示されているものは、実際は料金が発生するものもございます。詳細はお問い合わせください。
| 家賃 | 6.3万円 | 管理費・共益費 | 3,000円 |
|---|---|---|---|
| 敷金 | なし | 礼金 | なし |
| 入居決定でお祝い金最大100,000円 | |||
| 保証金 | - | 償却・敷引 | - |
| 住宅保険料 | - | 更新料 | - |
| 保証会社利用 | 必須 | 保証会社名 | 全保連 |
| 保証会社費用 | - | 保証会社備考 | 全保連利用必 全保連 初回保証料:総賃料の60% 、年間保証料:13,000円、口座振替手数料:月額330円 |
| 契約形態 | - | 契約期間 | - |
| 入居・引渡期間 | - | 現況 | - |
| 契約備考 | 『自社物件成約で利益だけを考えるわけではなく、全ての物件の中からご満足いただける一件をご成約頂く』このような会社の考えだからこそ多くのお客様に選ばれております。未公開物件も他社様掲載物件もまとめてお調べし、まとめて全てご紹介いたします!!時間とお金をかけてお部屋探しをする時代は終わり!明るく楽しく元気よく最後までお付き合い致します! 合計4.45万円(内訳:24時間メンテナンスサービス(2年毎・加入必須)1.65万円町会費(2年毎)0.6万円鍵交換代2.2万円) 更新料 新賃料1.00ヶ月分 1K 単身者限定/事務所利用不可/ルームシェア不可 普通借家2年 損保【2万円2年】 バストイレ別、バルコニー、エアコン、ガスコンロ対応、クロゼット、フローリング、TVインターホン、浴室乾燥機、オートロック、室内洗濯置、シューズボックス、システムキッチン、角住戸、温水洗浄便座、洗面所独立、2口コンロ、宅配ボックス、礼金不要、敷金不要、保証人不要、全居室フローリング、2沿線利用可、ディンプルキー、CS、ネット使用料不要、床下収納、ダブルロックキー、保証金不要、24時間換気システム、2駅利用可、駅徒歩10分以内、プロパンガス、BS、敷金・礼金不要、IT重説対応物件、初期費用カード決済可 入居日:'26年1月中旬 | ||
部屋の情報
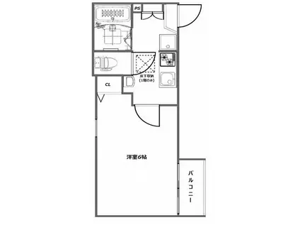
| 間取り | 1K | 専有面積 | 18.67m2 |
|---|---|---|---|
| 所在階 / 向き | 1階 / 北西 | バルコニー面積 | - |
| 水道 / ガス | - | ||
| 設備 | バス・トイレ別、オートロック、テレビドアホン、宅配ボックス、浴室乾燥機、インターネット対応、システムキッチン、エアコン、温水洗浄便座、角部屋、バルコニー、フローリング、床下収納、洗髪洗面化粧台、2口コンロ、コンロ:ガス、CSアンテナ、BSアンテナ、インターネット使用料無料、洗濯機:室内 | ||
| 当社物件ID | 28104569 | ||
建物の情報
| 建物名 | アル・ソーレ亀有 | ||
|---|---|---|---|
| 所在地 | 東京都足立区中川 | ||
| 交通 | JR常磐線 亀有駅 徒歩9分 JR常磐線 金町駅 徒歩29分 京成本線 京成高砂駅 徒歩33分 | ||
| 階数 | 3階建 | 総戸数 | - |
| 築年月 | 2018年08月 / 築8年 | エレベーター | - |
| 駐車場 | なし | バイク置き場 | - |
| 駐輪場 | - | 管理人/管理会社 | - |
| 周辺環境 | その他 セブンイレブン 足立中川1丁目店(コンビニ)まで234m その他 丸亀製麺アリオ亀有(飲食店)まで387m その他 アリオ亀有(ショッピングセンター)まで316m その他 足立中川郵便局(郵便局)まで488m その他 ファミリーマート 亀有北口店(コンビニ)まで623m その他 ケンタッキーフライドチキン 亀有店(飲食店)まで711m | ||
| 建物種別 | アパート | 建物構造 | 木造 |
この部屋の取扱い不動産会社
| 会社名 | (株)アクアリアルエステート神田店(SUUMO経由) | ||
|---|---|---|---|
| 所在地 | 東京都千代田区神田富山町 1-2 TKKビル5階 | 交通 | - |
| 営業時間 | 10時~19時 | 定休日 | 年中無休 |
| 免許番号 | 東京都知事104295 | 取引態様 | 仲介 |
| 不動産会社管理番号 | 100474769102 | 当社管理番号 | 89 |
| 所属団体 | (公社)東京都宅地建物取引業協会会員 | ||
| 公正取引協議会 | (公社)首都圏不動産公正取引協議会加盟 | ||
| 取扱い物件情報 | 物件詳細へ | ||
※各種情報と現状に差異がある場合は、現状優先となります。問い合わせをすることで、より詳しい条件、情報を確認する事ができます。
提供:(株)アクアリアルエステート神田店(SUUMO経由)
この物件が気になったら掲載期限まであと10日
アル・ソーレ亀有に条件(家賃・エリア)が近い物件一覧
| 写真 | 家賃 管理費等 | 敷金 礼金 | 間取り 専有面積 | 築年数 | 最寄り駅 所在地 | キープ | 詳細 |
|---|---|---|---|---|---|---|---|
マンション NISHI-NIPPORI TERRACE(ワンルーム/1階) | |||||||
![]() | 8.98万円 1.5万円 | なし なし | ワンルーム 20.01m2 | 築2年 | 京成電鉄本線 新三河島駅 徒歩4分 常磐線 三河島駅 徒歩5分 東京地下鉄千代田線 西日暮里駅 徒歩9分 東京都荒川区西日暮里1丁目 | 詳細を見る | |
マンション エテルノ両国リバーサイド(1K/4階) | |||||||
![]() | 9万円 1万円 | 9万円 9万円 | 1K 25.51m2 | 築18年 | JR総武線 両国駅 徒歩3分 都営大江戸線 両国駅 徒歩9分 JR総武線 浅草橋駅 徒歩10分 東京都墨田区両国 | 詳細を見る | |
マンション コスモ向島グランコート(1K/3階) | |||||||
![]() | 6.5万円 5,000円 | 6.5万円 6.5万円 | 1K 18.41m2 | 築34年 | 東京メトロ半蔵門線 押上駅 徒歩7分 東武伊勢崎線 曳舟駅 徒歩12分 都営浅草線 本所吾妻橋駅 徒歩13分 東京都墨田区向島 | 詳細を見る | |
マンション クレイシア両国ルクール(1K/1階) | |||||||
![]() | 9.6万円 1.2万円 | 9.6万円 9.6万円 | 1K 25.84m2 | 築8年 | 東京都大江戸線 両国駅 徒歩7分 総武・中央緩行線 両国駅 徒歩13分 総武・中央緩行線 錦糸町駅 徒歩18分 東京都墨田区石原2丁目 | 詳細を見る | |
マンション HF曳舟レジデンス(1K/2階) | |||||||
![]() | 9.6万円 1.4万円 | 9.6万円 なし | 1K 27.21m2 | 築7年 | 京成電鉄押上線 京成曳舟駅 徒歩8分 東武伊勢崎・大師線 曳舟駅 徒歩13分 京成電鉄押上線 押上駅 徒歩16分 東京都墨田区京島3丁目 | 詳細を見る | |
マンション ウィングハイム(1K/2階) | |||||||
![]() | 7.2万円 なし | 7.2万円 7.2万円 | 1K 20.25m2 | 築32年 | 東京地下鉄千代田線 町屋駅 徒歩5分 東京都荒川区荒川5丁目 | 詳細を見る | |
マンション 松崎ビル(1K/3階) | |||||||
![]() | 8.5万円 4,100円 | 8.5万円 8.5万円 | 1K 25.18m2 | 築20年 | 東京都新宿線 菊川駅(東京) 徒歩10分 総武・中央緩行線 錦糸町駅 徒歩11分 総武・中央緩行線 亀戸駅 徒歩25分 東京都墨田区緑4丁目 | 詳細を見る | |
マンション OG錦糸町(1K/5階) | |||||||
![]() | 10.2万円 8,000円 | なし 10.2万円 | 1K 25.37m2 | 築9年 | 総武本線 錦糸町駅 徒歩8分 東京地下鉄半蔵門線 錦糸町駅 徒歩8分 東京都大江戸線 両国駅 徒歩14分 東京都墨田区亀沢4丁目 | 詳細を見る | |








