賃貸マンション
アリエス学研都市II 568の賃貸物件情報(1LDK/5階)
| 家賃 | 管理費等 | 敷金 | 礼金 | 間取り | 専有面積 |
|---|---|---|---|---|---|
| 6.6万円 | 4,000円 | なし | 13.2万円 | 1LDK | 31.05m2 |
入居決定でお祝い金最大100,000円
- 保証金
- -
- 償却・敷引
- -
- 築年数
- 築7年
- 所在階
- 5階
- 向き
- 北
Point
セキュリティ面は、TVインターホン・オートロックなどを備え付けているので安心して暮らせます!共用部には宅配ボックスが備え付けられているため、対面で荷物を受け取らなくて済みます(^o^)
提供:LIBERTE博多店(株)アスムク(SUUMO経由)

詳細情報 アリエス学研都市II 568
物件紹介
アリエス学研都市II 568はJR筑肥線九大学研都市駅から徒歩4分にあり、駅近で通勤通学に便利なマンションです。
このお部屋は2階以上に位置しているので、通行人や周囲の住人からの視線が気になりにくく、防犯面でも安心。建物のエントランスはオートロックがついており、インターホンにはTVモニタもついているため、相手の顔を確認してから来客対応することができます。
フローリングのお部屋なのでお掃除もラクラク。キッチンはシステムキッチン仕様になっていますので、お料理好きの方にもぴったり。バス・トイレは別なので、のんびりお風呂タイムも楽しめるでしょう。また、雨の日でも浴室乾燥機を使えば、お洗濯も問題ありません。
通信設備面では、インターネットが無料で使えるので、月々の出費を抑えられるのも魅力です(別途工事等が必要な場合あり)。
建物にはエレベーターがついているので、重い荷物があっても安心。共用部には宅配ボックスが設定されているので、不在の時にも荷物を受け取ることができます。
このお部屋は2階以上に位置しているので、通行人や周囲の住人からの視線が気になりにくく、防犯面でも安心。建物のエントランスはオートロックがついており、インターホンにはTVモニタもついているため、相手の顔を確認してから来客対応することができます。
フローリングのお部屋なのでお掃除もラクラク。キッチンはシステムキッチン仕様になっていますので、お料理好きの方にもぴったり。バス・トイレは別なので、のんびりお風呂タイムも楽しめるでしょう。また、雨の日でも浴室乾燥機を使えば、お洗濯も問題ありません。
通信設備面では、インターネットが無料で使えるので、月々の出費を抑えられるのも魅力です(別途工事等が必要な場合あり)。
建物にはエレベーターがついているので、重い荷物があっても安心。共用部には宅配ボックスが設定されているので、不在の時にも荷物を受け取ることができます。
お金・契約の情報
※「-」と表示されているものは、実際は料金が発生するものもございます。詳細はお問い合わせください。
| 家賃 | 6.6万円 | 管理費・共益費 | 4,000円 |
|---|---|---|---|
| 敷金 | なし | 礼金 | 13.2万円 |
| 入居決定でお祝い金最大100,000円 | |||
| 保証金 | - | 償却・敷引 | - |
| 住宅保険料 | - | 更新料 | - |
| 保証会社利用 | 必須 | 保証会社名 | - |
| 保証会社費用 | - | 保証会社備考 | 保証会社利用必 初回:賃料総額×50%更新料:なし口振料:500円 |
| 契約形態 | - | 契約期間 | - |
| 入居・引渡期間 | 相談 | 現況 | - |
| 契約備考 | 合計2.05万円(内訳:24時間サポート0.088万円買い物便利な好立地マンション♪インターネット無料(BBIQ 1Gbps)★24時間サポート0.088万円鍵交換代1.87万円) 町会費 月額400円 1LDK 普通借家2年 損保【1.8万円2年】 バストイレ別、バルコニー、エアコン、フローリング、TVインターホン、浴室乾燥機、オートロック、室内洗濯置、シューズボックス、システムキッチン、追焚機能浴室、温水洗浄便座、エレベーター、洗面化粧台、2口コンロ、宅配ボックス、敷金不要、防犯カメラ、ネット使用料不要、2駅利用可、駅徒歩5分以内、駅徒歩10分以内、敷地内ごみ置き場、プロパンガス | ||
部屋の情報
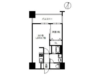
| 間取り | 1LDK | 専有面積 | 31.05m2 |
|---|---|---|---|
| 所在階 / 向き | 5階 / 北 | バルコニー面積 | - |
| 水道 / ガス | - | ||
| 設備 | バス・トイレ別、2階以上、オートロック、テレビドアホン、宅配ボックス、浴室乾燥機、追い焚き、インターネット対応、システムキッチン、エアコン、エレベーター、温水洗浄便座、バルコニー、フローリング、2口コンロ、インターネット使用料無料、洗濯機:室内 | ||
| 当社物件ID | 160515812 | ||
建物の情報
| 建物名 | アリエス学研都市II 568 | ||
|---|---|---|---|
| 所在地 | 福岡県福岡市西区北原 | ||
| 交通 | JR筑肥線 九大学研都市駅 徒歩4分 JR筑肥線 今宿駅 徒歩21分 JR筑肥線 周船寺駅 徒歩25分 | ||
| 階数 | 10階建 | 総戸数 | - |
| 築年月 | 2019年10月 / 築7年 | エレベーター | あり |
| 駐車場 | なし | バイク置き場 | - |
| 駐輪場 | - | 管理人/管理会社 | - |
| 周辺環境 | その他 TRIAL smart 今宿店(スーパー)まで1155m その他 イオンモール福岡伊都(ショッピングセンター)まで228m その他 ドン・キホーテ 福岡今宿店(その他)まで511m その他 グッデイ 伊都店(ホームセンター)まで946m その他 サンドラッグ 伊都店(ドラッグストア)まで1260m その他 セブンイレブン 福岡周船寺1丁目店(コンビニ)まで1662m | ||
| 建物種別 | マンション | 建物構造 | RC(鉄筋コンクリート) |
この部屋の取扱い不動産会社
| 会社名 | LIBERTE博多店(株)アスムク(SUUMO経由) | ||
|---|---|---|---|
| 所在地 | 福岡県福岡市博多区博多駅中央街 5-11-3階 | 交通 | - |
| 営業時間 | 10時~19時 | 定休日 | 不定休 |
| 免許番号 | 福岡県知事20509 | 取引態様 | 仲介 |
| 不動産会社管理番号 | 100492208042 | 当社管理番号 | 89 |
| 所属団体 | (公社)全日本不動産協会福岡県本部会員 | ||
| 公正取引協議会 | (一社)九州不動産公正取引協議会加盟 | ||
| 取扱い物件情報 | 物件詳細へ | ||
※各種情報と現状に差異がある場合は、現状優先となります。問い合わせをすることで、より詳しい条件、情報を確認する事ができます。
提供:LIBERTE博多店(株)アスムク(SUUMO経由)
この物件が気になったら掲載期限まであと11日
アリエス学研都市II 568に条件(家賃・エリア)が近い物件一覧
| 写真 | 家賃 管理費等 | 敷金 礼金 | 間取り 専有面積 | 築年数 | 最寄り駅 所在地 | キープ | 詳細 |
|---|---|---|---|---|---|---|---|
アパート スイート春日(3LDK/1階) | |||||||
![]() | 6.2万円 3,000円 | なし 6.2万円 | 3LDK 67.07m2 | 築34年 | 鹿児島本線 大野城駅 徒歩25分 鹿児島本線 春日駅(福岡) 徒歩27分 西鉄天神大牟田線 白木原駅 徒歩29分 福岡県春日市 | 詳細を見る | |
マンション プリマヴェーラ(ワンルーム/2階) | |||||||
![]() | 4.9万円 2,000円 | なし なし | ワンルーム 23.4m2 | 築21年 | 西鉄天神大牟田線 井尻駅 徒歩23分 鹿児島本線 笹原駅 徒歩27分 鹿児島本線 南福岡駅 徒歩27分 福岡県春日市須玖南7丁目 | 詳細を見る | |
マンション シャーメゾン スプリング デイズ(1DK/2階) | |||||||
![]() | 7.2万円 8,000円 | なし 14.4万円 | 1DK 34.68m2 | 築2年 | 鹿児島本線 南福岡駅 徒歩11分 鹿児島本線 春日駅(福岡) 徒歩16分 西鉄天神大牟田線 桜並木駅 徒歩19分 福岡県春日市大和町3丁目 | 詳細を見る | |
マンション ヒルサイドビル(2DK/4階) | |||||||
![]() | 4.3万円 2,000円 | なし なし | 2DK 45m2 | 築47年 | 博多南線 博多南駅 徒歩12分 鹿児島本線 春日駅(福岡) 徒歩42分 鹿児島本線 南福岡駅 徒歩44分 福岡県春日市 | 詳細を見る | |
マンション 第1タイガービル(3DK/2階) | |||||||
![]() | 5.5万円 なし | なし 11万円 | 3DK 61m2 | 築44年 | 博多南線 博多南駅 徒歩14分 鹿児島本線 春日駅(福岡) 徒歩41分 鹿児島本線 南福岡駅 徒歩45分 福岡県春日市下白水南4丁目 | 詳細を見る | |
マンション ホルトハイム春日(1K/4階) | |||||||
![]() | 4.5万円 3,000円 | なし なし | 1K 29.52m2 | 築35年 | 鹿児島本線 南福岡駅 徒歩24分 西鉄天神大牟田線 井尻駅 徒歩24分 鹿児島本線 笹原駅 徒歩26分 福岡県春日市須玖南5丁目 | 詳細を見る | |
マンション 西鉄天神大牟田線 井尻駅 徒歩23分 築30年(3LDK/5階) | |||||||
![]() | 8万円 なし | なし 16万円 | 3LDK 71m2 | 築30年 | 西鉄天神大牟田線 井尻駅 徒歩23分 鹿児島本線 南福岡駅 徒歩25分 鹿児島本線 笹原駅 徒歩27分 福岡県春日市須玖南4丁目 | 詳細を見る | |
アパート ベラルーチェ南ヶ丘(2LDK/1階) | |||||||
![]() | 8万円 5,500円 | なし 20万円 | 2LDK 50.68m2 | 築10年 | 西鉄天神大牟田線 下大利駅 徒歩41分 西鉄天神大牟田線 白木原駅 徒歩49分 福岡県大野城市南ケ丘7丁目 | 詳細を見る | |









