賃貸一戸建て
京都市東西線 二条城前駅 徒歩5分 2階建 築99年の賃貸物件情報(2LDK)
| 家賃 | 管理費等 | 敷金 | 礼金 | 間取り | 専有面積 |
|---|---|---|---|---|---|
| 15.5万円 | なし | 15.5万円 | 15.5万円 | 2LDK | 58.91m2 |
入居決定でお祝い金最大100,000円
Point
二条城近く、京町家。 フルリノベーション京町家。
提供:株式会社 京都ライフ 今出川店(賃貸スモッカ経由)

詳細情報 京都市東西線 二条城前駅 徒歩5分 2階建 築99年
物件紹介
京都市東西線二条城前駅から徒歩5分にあり、駅近で通勤通学に便利な一戸建てです。
バス・トイレ別の仕様で、のんびりお風呂タイムも楽しめます。
バス・トイレ別の仕様で、のんびりお風呂タイムも楽しめます。
お金・契約の情報
※「-」と表示されているものは、実際は料金が発生するものもございます。詳細はお問い合わせください。
| 家賃 | 15.5万円 | 管理費・共益費 | なし |
|---|---|---|---|
| 敷金 | 15.5万円 | 礼金 | 15.5万円 |
| 入居決定でお祝い金最大100,000円 | |||
| 保証金 | - | 償却・敷引 | - |
| 住宅保険料 | 住宅保険料あり | 更新料 | - |
| 契約形態 | 定期借家 | 契約期間 | 3年 |
| 入居・引渡期間 | 即時 | 現況 | 空室 |
| 契約備考 | 地下鉄二条城前駅まで徒歩5分のフルリノベーション京町家。JR、阪急、地下鉄のトリプルアクセス。コンビニ、スーパーなど近くにあって便利ですよ。 更新料:無し その他設備/条件:コンロ2口以上、即入居可 | ||
部屋の情報
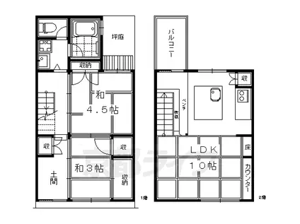
| 間取り | 2LDK | 専有面積 | 58.91m2 |
|---|---|---|---|
| 間取り詳細 | 和室(3帖)、和室(4.5帖)、LDK(10帖) | ||
| 所在階 / 向き | 地下階 / 北 | バルコニー面積 | - |
| 水道 / ガス | ガス【都市】 | ||
| 設備 | バス・トイレ別、カウンターキッチン、エアコン、温水洗浄便座、バルコニー、コンロ:IH、専用庭、洗濯機:室内 | ||
| 当社物件ID | 159647449 | ||
建物の情報
| 建物名 | 京都市東西線 二条城前駅 徒歩5分 2階建 築99年 | ||
|---|---|---|---|
| 所在地 | 京都府京都市中京区姉東堀川町 | ||
| 交通 | 京都市東西線 二条城前駅 徒歩5分 京都市烏丸線 烏丸御池駅 徒歩10分 | ||
| 階数 | 2階建 | 総戸数 | - |
| 築年月 | 1927年05月 / 築99年 | エレベーター | - |
| 駐車場 | - | バイク置き場 | - |
| 駐輪場 | あり | 管理人/管理会社 | - |
| 建物種別 | 一戸建て | 建物構造 | 木造 |
この部屋の取扱い不動産会社
| 会社名 | 株式会社 京都ライフ 四条烏丸店(賃貸スモッカ経由) | ||
|---|---|---|---|
| 所在地 | 京都市下京区四条通新町東入ル月鉾町47-15 | 交通 | - |
| 営業時間 | - | 定休日 | - |
| 免許番号 | 京都府知事(11)第6353号 | 取引態様 | 仲介 |
| 不動産会社管理番号 | kyotolife_69387-A-03 | 当社管理番号 | 463 |
| 所属団体 | 京都府宅地建物取引業協会\n公益社団法人近畿地区不動産公正取引協議会 | ||
| 公正取引協議会 | 全国宅地建物取引業保証協会 | ||
| 取扱い物件情報 | 物件詳細へ | ||
※各種情報と現状に差異がある場合は、現状優先となります。問い合わせをすることで、より詳しい条件、情報を確認する事ができます。
提供:株式会社 京都ライフ 四条烏丸店(賃貸スモッカ経由)
この物件が気になったら掲載期限まであと6日
京都市東西線 二条城前駅 徒歩5分 2階建 築99年に条件(家賃・エリア)が近い物件一覧
| 写真 | 家賃 管理費等 | 敷金 礼金 | 間取り 専有面積 | 築年数 | 最寄り駅 所在地 | キープ | 詳細 |
|---|---|---|---|---|---|---|---|
マンション 京都市烏丸線 今出川駅 徒歩10分 築25年(3LDK/3階) | |||||||
![]() | 15万円 なし | 15万円 20万円 | 3LDK 71.36m2 | 築25年 | 京都市烏丸線 今出川駅 徒歩10分 京都市東西線 二条城前駅 徒歩24分 京都府京都市上京区徳屋町 | 詳細を見る | |
マンション 山陰本線 二条駅 徒歩4分 築31年(1LDK/1階) | |||||||
![]() | 11.5万円 6,000円 | 17.25万円 17.25万円 | 1LDK 72m2 | 築31年 | 山陰本線 二条駅 徒歩4分 阪急電鉄京都線 西院駅(阪急) 徒歩14分 京都府京都市中京区西ノ京東月光町 | 詳細を見る | |
マンション 京都市東西線 京都市役所前駅 徒歩6分 築10年(1LDK/4階) | |||||||
![]() | 18万円 1.2万円 | なし 36万円 | 1LDK 58.05m2 | 築10年 | 京都市東西線 京都市役所前駅 徒歩6分 京都市烏丸線 烏丸御池駅 徒歩9分 京都府京都市中京区橘町 | 詳細を見る | |
マンション 阪急電鉄京都線 大宮駅(京都) 徒歩8分 築18年(1LDK/12階) | |||||||
![]() | 18.5万円 1万円 | 18.5万円 18.5万円 | 1LDK 55.6m2 | 築18年 | 阪急電鉄京都線 大宮駅(京都) 徒歩8分 京都市烏丸線 四条駅(京都市営) 徒歩13分 京都府京都市中京区壺屋町 | 詳細を見る | |
マンション 京都市烏丸線 烏丸御池駅 徒歩4分 築19年(3LDK/5階) | |||||||
![]() | 25万円 なし | 25万円 50万円 | 3LDK 65.13m2 | 築19年 | 京都市烏丸線 烏丸御池駅 徒歩4分 京都市烏丸線 丸太町駅(京都市営) 徒歩5分 京都府京都市中京区金吹町 | 詳細を見る | |
マンション 京都市烏丸線 丸太町駅(京都市営) 徒歩5分 築18年(3LDK/8階) | |||||||
![]() | 22万円 1.5万円 | 40万円 50万円 | 3LDK 81.75m2 | 築18年 | 京都市烏丸線 丸太町駅(京都市営) 徒歩5分 京都市烏丸線 烏丸御池駅 徒歩15分 京都府京都市上京区夷川町 | 詳細を見る | |







