賃貸マンション
アークレジデンス奈良の賃貸物件情報(2LDK/4階)
| 家賃 | 管理費等 | 敷金 | 礼金 | 間取り | 専有面積 |
|---|---|---|---|---|---|
| 12万円 | なし | 12万円 | 24万円 | 2LDK | 65.97m2 |
入居決定でお祝い金最大100,000円
- 保証金
- -
- 償却・敷引
- -
- 築年数
- 築15年
- 所在階
- 4階
- 向き
- 南
Point
☆近鉄奈良駅徒歩圏内の分譲賃貸!☆住むならやっぱり静かなきたまちエリアでしょう♪南向きで日もたっぷり入ります。人気の都市ガス物件です!ゆったりしたリビングは窓も広く開放感があります。
提供:三和住宅(株)本社(SUUMO経由)

詳細情報 アークレジデンス奈良
物件紹介
アークレジデンス奈良は近鉄奈良線近鉄奈良駅から徒歩10分にあり、駅近で通勤通学に便利なマンションです。
このお部屋は2階以上に位置しているので、通行人や周囲の住人からの視線が気になりにくく、防犯面でも安心。建物のエントランスはオートロックがついており、インターホンにはTVモニタもついているため、相手の顔を確認してから来客対応することができます。
人気の南向きのお部屋。また、フローリングなのでお掃除もラクラク。キッチンはシステムキッチン仕様になっていますので、お料理好きの方にもぴったり。バス・トイレは別なので、のんびりお風呂タイムも楽しめるでしょう。また、雨の日でも浴室乾燥機を使えば、お洗濯も問題ありません。
通信設備面では、インターネット接続が可能です(別途工事、契約料が必要な場合あり)。
建物にはエレベーターがついているので、重い荷物があっても安心。
このお部屋は2階以上に位置しているので、通行人や周囲の住人からの視線が気になりにくく、防犯面でも安心。建物のエントランスはオートロックがついており、インターホンにはTVモニタもついているため、相手の顔を確認してから来客対応することができます。
人気の南向きのお部屋。また、フローリングなのでお掃除もラクラク。キッチンはシステムキッチン仕様になっていますので、お料理好きの方にもぴったり。バス・トイレは別なので、のんびりお風呂タイムも楽しめるでしょう。また、雨の日でも浴室乾燥機を使えば、お洗濯も問題ありません。
通信設備面では、インターネット接続が可能です(別途工事、契約料が必要な場合あり)。
建物にはエレベーターがついているので、重い荷物があっても安心。
お金・契約の情報
※「-」と表示されているものは、実際は料金が発生するものもございます。詳細はお問い合わせください。
| 家賃 | 12万円 | 管理費・共益費 | なし |
|---|---|---|---|
| 敷金 | 12万円 | 礼金 | 24万円 |
| 入居決定でお祝い金最大100,000円 | |||
| 保証金 | - | 償却・敷引 | - |
| 住宅保険料 | - | 更新料 | - |
| 契約形態 | - | 契約期間 | - |
| 入居・引渡期間 | 即時 | 現況 | - |
| 契約備考 | 人気のきたまちエリアは近鉄・JRともにアクセスも良くとってもおすすめです!キッチンの広さにご注目!お料理もはかどるカウンターキッチンです☆バルコニーは南向きで手洗い場もあるので日向ぼっこもできちゃうかも!?おしゃれな洗面台は収納もたっぷり!女性の味方ですね☆安心のオートロック付・分譲賃貸!お風呂は浴室乾燥機がついているので雨の日も気にせずお洗濯できちゃいますよ。 2LDK 二人入居可/事務所利用不可 普通借家2年 損保【要】 バストイレ別、バルコニー、クロゼット、フローリング、シャワー付洗面台、TVインターホン、浴室乾燥機、オートロック、室内洗濯置、陽当り良好、シューズボックス、システムキッチン、南向き、追焚機能浴室、温水洗浄便座、脱衣所、エレベーター、洗面所独立、洗面化粧台、駐輪場、押入、即入居可、閑静な住宅地、3口以上コンロ、対面式キッチン、IHクッキングヒーター、全居室収納、分譲賃貸、オートバス、グリル付、敷金1ヶ月、玄関ホール、2沿線利用可、LDK15畳以上、ディンプルキー、ネット専用回線、駅まで平坦、テラス、収納2間、緑豊かな住宅地、眺望良好、保証金不要、バリアフリー、平坦地、南面リビング、玄関ポーチ、エレベーター2基、2駅利用可、3駅以上利用可、3沿線以上利用可、駅徒歩10分以内、敷地内ごみ置き場、全居室6畳以上、都市ガス、洗面所にドア、ダウンライト、年内入居可、年度内入居可、礼金2ヶ月、通風良好 | ||
部屋の情報
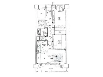
| 間取り | 2LDK | 専有面積 | 65.97m2 |
|---|---|---|---|
| 所在階 / 向き | 4階 / 南 | バルコニー面積 | - |
| 水道 / ガス | - | ||
| 設備 | バス・トイレ別、2階以上、オートロック、テレビドアホン、浴室乾燥機、追い焚き、インターネット対応、システムキッチン、エレベーター、温水洗浄便座、南向き、バルコニー、フローリング、洗髪洗面化粧台、2口コンロ、コンロ:IH、洗濯機:室内 | ||
| 当社物件ID | 155097779 | ||
建物の情報
| 建物名 | アークレジデンス奈良 | ||
|---|---|---|---|
| 所在地 | 奈良県奈良市西新在家町 | ||
| 交通 | 近鉄奈良線 近鉄奈良駅 徒歩10分 JR関西本線 奈良駅 徒歩15分 近鉄奈良線 新大宮駅 徒歩19分 | ||
| 階数 | 5階建 | 総戸数 | - |
| 築年月 | 2011年05月 / 築15年 | エレベーター | あり |
| 駐車場 | 近隣 50m11000円 | バイク置き場 | - |
| 駐輪場 | あり | 管理人/管理会社 | - |
| 周辺環境 | その他 沢井病院(一般財団法人)(病院)まで280m その他 国立奈良女子大学(大学・短大)まで446m その他 奈良県立大学(大学・短大)まで320m その他 ローソン 奈良法蓮町東店(コンビニ)まで407m その他 奈良東向郵便局(郵便局)まで790m その他 奈良市立 佐保小学校(小学校)まで680m | ||
| 建物種別 | マンション | 建物構造 | RC(鉄筋コンクリート) |
この部屋の取扱い不動産会社
| 会社名 | (株)山晃住宅奈良駅前店(SUUMO経由) | ||
|---|---|---|---|
| 所在地 | 奈良県奈良市西御門町 11-3 木原ビル1F | 交通 | - |
| 営業時間 | 09:45~18:30 | 定休日 | 水曜日 |
| 免許番号 | 国土交通大臣6928 | 取引態様 | 仲介 |
| 不動産会社管理番号 | 100376418105 | 当社管理番号 | 89 |
| 所属団体 | (公社)奈良県宅地建物取引業協会会員 | ||
| 公正取引協議会 | (公社)近畿地区不動産公正取引協議会加盟 | ||
| 取扱い物件情報 | 物件詳細へ | ||
※各種情報と現状に差異がある場合は、現状優先となります。問い合わせをすることで、より詳しい条件、情報を確認する事ができます。
提供:(株)山晃住宅奈良駅前店(SUUMO経由)
この物件が気になったら掲載期限まであと11日
アークレジデンス奈良に条件(家賃・エリア)が近い物件一覧
| 写真 | 家賃 管理費等 | 敷金 礼金 | 間取り 専有面積 | 築年数 | 最寄り駅 所在地 | キープ | 詳細 |
|---|---|---|---|---|---|---|---|
アパート 近鉄難波・奈良線 新大宮駅 徒歩18分 築1年(3LDK/2階) | |||||||
![]() | 13.3万円 6,000円 | なし 20万円 | 3LDK 73.87m2 | 築1年 | 近鉄難波・奈良線 新大宮駅 徒歩18分 関西本線 奈良駅 徒歩18分 近鉄難波・奈良線 近鉄奈良駅 徒歩26分 奈良県奈良市恋の窪1丁目 | 詳細を見る | |
アパート ラシーネ芝辻ルーチェ(2LDK/2階) | |||||||
![]() | 8.6万円 4,500円 | なし 17.2万円 | 2LDK 59.63m2 | 築9年 | 近鉄奈良線 新大宮駅 徒歩6分 JR関西本線 奈良駅 徒歩14分 近鉄奈良線 近鉄奈良駅 徒歩17分 奈良県奈良市芝辻町 | 詳細を見る | |
アパート カリーノ(2LDK/2階) | |||||||
![]() | 7.95万円 3,900円 | なし 7.95万円 | 2LDK 61.14m2 | 築1年 | 近鉄難波・奈良線 新大宮駅 徒歩31分 奈良県奈良市東九条町 | 詳細を見る | |
マンション シャーメゾン アリビオ(2LDK/2階) | |||||||
![]() | 11.9万円 8,000円 | なし 26万円 | 2LDK 63.55m2 | 築4年 | 近鉄難波・奈良線 新大宮駅 徒歩11分 奈良県奈良市三条栄町 | 詳細を見る | |
一戸建て 近鉄大阪線 桜井駅(奈良) 徒歩20分 築31年(4LDK) | |||||||
![]() | 8.5万円 なし | なし 15万円 | 4LDK 96.05m2 | 築31年 | 近鉄大阪線 桜井駅(奈良) 徒歩20分 近鉄大阪線 大福駅 徒歩30分 桜井線 香久山駅 徒歩33分 奈良県桜井市大字阿部 | 詳細を見る | |
マンション SOLE CEDAR 西大寺(1LDK/6階) | |||||||
![]() | 10万円 8,000円 | なし 10万円 | 1LDK 40.21m2 | 築3年 | 近鉄難波・奈良線 大和西大寺駅 徒歩5分 奈良県奈良市西大寺南町 | 詳細を見る | |
アパート カーサ・リンドペロー(2LDK/2階) | |||||||
![]() | 8.5万円 3,900円 | なし なし | 2LDK 59.16m2 | 築1年 | 近鉄橿原線 平端駅 徒歩13分 近鉄橿原線 筒井駅(奈良) 徒歩27分 関西本線 大和小泉駅 徒歩37分 奈良県大和郡山市額田部北町 | 詳細を見る | |
アパート ウエルズ富雄(2LDK/1階) | |||||||
![]() | 9.5万円 6,000円 | なし 15万円 | 2LDK 55.44m2 | 築9年 | 近鉄奈良線 富雄駅 徒歩4分 近鉄奈良線 学園前駅(奈良) 徒歩22分 近鉄けいはんな線 白庭台駅 徒歩50分 奈良県奈良市富雄北 | 詳細を見る | |









