賃貸アパート
サンシャイン菱江の賃貸物件情報(3LDK/1階)
| 家賃 | 管理費等 | 敷金 | 礼金 | 間取り | 専有面積 |
|---|---|---|---|---|---|
| 10万円 | 6,000円 | なし | なし | 3LDK | 76.96m2 |
入居決定でお祝い金最大100,000円
- 保証金
- -
- 償却・敷引
- -
- 築年数
- 築6年
- 所在階
- 1階
- 向き
- 東
Point
玄関先まで覗き穴を覗きに行かなくてもインターホン越しに誰が来たのかを確認できるので防犯対策につながります。慌ててゴミを捨てに行く必要がない、24時間ゴミ出し可能な物件です。
提供:(株)Crasias(SUUMO経由)

詳細情報 サンシャイン菱江
物件紹介
サンシャイン菱江は近鉄けいはんな線荒本駅から徒歩19分にあるアパートです。
このお部屋のインターホンにはTVモニタがついているため、相手の顔を確認してから来客対応することができます。
人気の南向きのお部屋。また、フローリングなのでお掃除もラクラク。キッチンはシステムキッチン仕様になっていますので、お料理好きの方にもぴったり。バス・トイレは別なので、のんびりお風呂タイムも楽しめるでしょう。また、雨の日でも浴室乾燥機を使えば、お洗濯も問題ありません。
このお部屋のインターホンにはTVモニタがついているため、相手の顔を確認してから来客対応することができます。
人気の南向きのお部屋。また、フローリングなのでお掃除もラクラク。キッチンはシステムキッチン仕様になっていますので、お料理好きの方にもぴったり。バス・トイレは別なので、のんびりお風呂タイムも楽しめるでしょう。また、雨の日でも浴室乾燥機を使えば、お洗濯も問題ありません。
お金・契約の情報
※「-」と表示されているものは、実際は料金が発生するものもございます。詳細はお問い合わせください。
| 家賃 | 10万円 | 管理費・共益費 | 6,000円 |
|---|---|---|---|
| 敷金 | なし | 礼金 | なし |
| 入居決定でお祝い金最大100,000円 | |||
| 保証金 | - | 償却・敷引 | - |
| 住宅保険料 | - | 更新料 | - |
| 契約形態 | - | 契約期間 | - |
| 入居・引渡期間 | 即時 | 現況 | - |
| 契約備考 | 3LDK 二人入居可/子供可 普通借家2年 損保【要】 バストイレ別、バルコニー、ガスコンロ対応、クロゼット、フローリング、シャワー付洗面台、TVインターホン、浴室乾燥機、室内洗濯置、陽当り良好、シューズボックス、システムキッチン、追焚機能浴室、温水洗浄便座、脱衣所、洗面所独立、洗面化粧台、駐輪場、即入居可、礼金不要、閑静な住宅地、最上階、敷金不要、3口以上コンロ、対面式キッチン、全居室洋室、保証人不要、バイク置場、全居室フローリング、2面バルコニー、2沿線利用可、メゾネット、緑豊かな住宅地、眺望良好、保証金不要、クロゼット2ヶ所、浴室1坪以上、2駅利用可、3駅以上利用可、24時間ゴミ出し可、平面駐車場、LDK12畳以上、都市ガス、敷金・礼金不要、IT重説対応物件、通風良好 | ||
部屋の情報
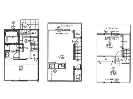
| 間取り | 3LDK | 専有面積 | 76.96m2 |
|---|---|---|---|
| 所在階 / 向き | 1階 / 東 | バルコニー面積 | - |
| 水道 / ガス | - | ||
| 設備 | バス・トイレ別、テレビドアホン、浴室乾燥機、追い焚き、システムキッチン、温水洗浄便座、バルコニー、フローリング、洗髪洗面化粧台、2口コンロ、コンロ:ガス、洗濯機:室内 | ||
| 当社物件ID | 39822843 | ||
建物の情報
| 建物名 | サンシャイン菱江 | ||
|---|---|---|---|
| 所在地 | 大阪府東大阪市菱江 | ||
| 交通 | 近鉄けいはんな線 荒本駅 徒歩19分 近鉄奈良線 河内花園駅 徒歩20分 近鉄奈良線 若江岩田駅 徒歩20分 | ||
| 階数 | 3階建 | 総戸数 | - |
| 築年月 | 2020年03月 / 築6年 | エレベーター | - |
| 駐車場 | 空有 11000円/平置駐 | バイク置き場 | あり |
| 駐輪場 | あり | 管理人/管理会社 | - |
| 周辺環境 | その他 ファミリーマート 菱江一丁目店(コンビニ)まで283m その他 スギドラッグ 菱江店(ドラッグストア)まで435m その他 株式会社モリヤマスポーツ東大阪店(その他)まで603m その他 エディオン東大阪店(その他)まで670m その他 ロイヤルホスト菱江店(飲食店)まで706m その他 コーナンPRO(プロ) 東大阪菱江店(ホームセンター)まで783m | ||
| 建物種別 | アパート | 建物構造 | 木造 |
この部屋の取扱い不動産会社
| 会社名 | クラスモ小阪店(株)OnLine(SUUMO経由) | ||
|---|---|---|---|
| 所在地 | 大阪府東大阪市小阪本町1-2-6 | 交通 | - |
| 営業時間 | 10:00~19:00 | 定休日 | - |
| 免許番号 | 大阪府知事62741 | 取引態様 | 仲介 |
| 不動産会社管理番号 | 100477247586 | 当社管理番号 | 89 |
| 所属団体 | (一社)大阪府宅地建物取引業協会会員 | ||
| 公正取引協議会 | (公社)近畿地区不動産公正取引協議会加盟 | ||
| 取扱い物件情報 | 物件詳細へ | ||
※各種情報と現状に差異がある場合は、現状優先となります。問い合わせをすることで、より詳しい条件、情報を確認する事ができます。
提供:クラスモ小阪店(株)OnLine(SUUMO経由)
この物件が気になったら掲載期限まであと10日
サンシャイン菱江に条件(家賃・エリア)が近い物件一覧
| 写真 | 家賃 管理費等 | 敷金 礼金 | 間取り 専有面積 | 築年数 | 最寄り駅 所在地 | キープ | 詳細 |
|---|---|---|---|---|---|---|---|
マンション D.CLAREST本庄東FJRE(1DK/6階) | |||||||
| 10.1万円 8,000円 | なし なし | 1DK 25.7m2 | 築1年 | 阪急電鉄千里線 天神橋筋六丁目駅 徒歩9分 大阪市谷町線 中崎町駅 徒歩13分 大阪市御堂筋線 中津駅(大阪メトロ) 徒歩14分 大阪府大阪市北区本庄東3丁目37-10 | 詳細を見る | ||
マンション プレサンスOSAKA西中島リエゾン(1K/4階) | |||||||
| 7.135万円 7,650円 | なし 10万円 | 1K 23.2m2 | 築5年 | 大阪市御堂筋線 西中島南方駅 徒歩9分 阪急電鉄宝塚線 十三駅 徒歩17分 大阪市御堂筋線 中津駅(大阪メトロ) 徒歩26分 大阪府大阪市淀川区西中島2丁目8-12 | 詳細を見る | ||
マンション カパルア(1LDK/2階) | |||||||
![]() | 6.5万円 5,000円 | なし 15万円 | 1LDK 45m2 | 築30年 | 関西本線 志紀駅 徒歩5分 近鉄大阪線 法善寺駅 徒歩23分 近鉄大阪線 恩智駅 徒歩23分 大阪府八尾市志紀町1丁目 | 詳細を見る | |
マンション LA DOUCEUR天満(1LDK/8階) | |||||||
| 13.7万円 1.5万円 | なし 15.2万円 | 1LDK 41.26m2 | 築6年 | 大阪環状線 桜ノ宮駅 徒歩8分 JR東西線 大阪天満宮駅 徒歩9分 大阪環状線 天満駅 徒歩10分 大阪府大阪市北区同心2丁目1-34 | 詳細を見る | ||
マンション JMFレジデンス大阪福島(ワンルーム/3階) | |||||||
| 8.9万円 1万円 | なし 8.9万円 | ワンルーム 24.46m2 | 築10年 | 大阪環状線 福島駅(JR西日本) 徒歩7分 JR東西線 新福島駅 徒歩10分 大阪環状線 大阪駅 徒歩14分 大阪府大阪市北区大淀南1丁目10-5 | 詳細を見る | ||
マンション エスリードレジデンス梅田グランゲート(1K/8階) | |||||||
| 7.8万円 1万円 | なし なし | 1K 22.12m2 | 築2年 | 大阪市御堂筋線 中津駅(大阪メトロ) 徒歩7分 大阪市谷町線 中崎町駅 徒歩12分 阪急電鉄千里線 天神橋筋六丁目駅 徒歩14分 大阪府大阪市北区豊崎6丁目2-11 | 詳細を見る | ||
アパート レオネクストSAKAE西淡路(1K/1階) | |||||||
| 6.6万円 5,500円 | なし 6.6万円 | 1K 26.09m2 | 築14年 | 東海道本線 東淀川駅 徒歩7分 阪急電鉄千里線 淡路駅 徒歩10分 大阪市御堂筋線 東三国駅 徒歩18分 大阪府大阪市東淀川区西淡路3丁目12-26 | 詳細を見る | ||
東大阪市の町名から探す
東大阪市の部屋を間取りから探す
東大阪市の駅から探す
東大阪市と隣接している市区町村から探す
- 東大阪市(7,961)
- 大阪市都島区(1,844)
- 大阪市福島区(2,477)
- 大阪市此花区(427)
- 大阪市西区(4,822)
- 大阪市港区(1,231)
- 大阪市大正区(1,089)
- 大阪市天王寺区(1,325)
- 大阪市浪速区(3,921)
- 大阪市西淀川区(1,915)
- 大阪市東淀川区(4,574)
- 大阪市東成区(2,854)
- 大阪市生野区(1,746)
- 大阪市旭区(2,177)
- 大阪市城東区(2,025)
- 大阪市阿倍野区(1,457)
- 大阪市住吉区(1,890)
- 大阪市東住吉区(2,081)
- 大阪市西成区(770)
- 大阪市淀川区(5,351)
- 大阪市鶴見区(1,088)
- 大阪市住之江区(983)
- 大阪市平野区(1,888)
- 大阪市北区(5,526)
- 大阪市中央区(5,636)
- 八尾市(2,104)
- 大東市(1,205)

