賃貸マンション
NIDO SAKURAGAOKA ニドサクラガオカの賃貸物件情報(2LDK/4階)
| 家賃 | 管理費等 | 敷金 | 礼金 | 間取り | 専有面積 |
|---|---|---|---|---|---|
| 26.3万円 | 2万円 | なし | なし | 2LDK | 56.13m2 |
入居決定でお祝い金最大100,000円
- 保証金
- -
- 償却・敷引
- -
- 築年数
- 築1年
- 所在階
- 4階
- 向き
- 南東
Point
無料で当物件の未公開写真や高画質の内見動画をホームページへ公開中!!
提供:(株)TOB(SUUMO経由)

詳細情報 NIDO SAKURAGAOKA ニドサクラガオカ
物件紹介
NIDO SAKURAGAOKA ニドサクラガオカは小田急線千歳船橋駅から徒歩6分にあり、駅近で通勤通学に便利なマンションです。
このお部屋は2階以上に位置しているので、通行人や周囲の住人からの視線が気になりにくく、防犯面でも安心。建物のエントランスはオートロックがついており、インターホンにはTVモニタもついているため、相手の顔を確認してから来客対応することができます。
人気の南向きのお部屋。また、フローリングなのでお掃除もラクラク。キッチンはシステムキッチン仕様になっていますので、お料理好きの方にもぴったり。バス・トイレは別なので、のんびりお風呂タイムも楽しめるでしょう。また、雨の日でも浴室乾燥機を使えば、お洗濯も問題ありません。
通信設備面では、インターネットが無料で使えるので、月々の出費を抑えられるのも魅力です。また、BSアンテナ・CSアンテナもありますので、おうち時間も充実するでしょう(別途工事、BS・CSの契約料等が必要な場合あり)。
建物にはエレベーターがついているので、重い荷物があっても安心。共用部には宅配ボックスが設定されているので、不在の時にも荷物を受け取ることができます。また、ペット飼育の相談ができますので、あなたの大切な家族の一員も快適に暮らせるか、ぜひ確認してみてください。
このお部屋は2階以上に位置しているので、通行人や周囲の住人からの視線が気になりにくく、防犯面でも安心。建物のエントランスはオートロックがついており、インターホンにはTVモニタもついているため、相手の顔を確認してから来客対応することができます。
人気の南向きのお部屋。また、フローリングなのでお掃除もラクラク。キッチンはシステムキッチン仕様になっていますので、お料理好きの方にもぴったり。バス・トイレは別なので、のんびりお風呂タイムも楽しめるでしょう。また、雨の日でも浴室乾燥機を使えば、お洗濯も問題ありません。
通信設備面では、インターネットが無料で使えるので、月々の出費を抑えられるのも魅力です。また、BSアンテナ・CSアンテナもありますので、おうち時間も充実するでしょう(別途工事、BS・CSの契約料等が必要な場合あり)。
建物にはエレベーターがついているので、重い荷物があっても安心。共用部には宅配ボックスが設定されているので、不在の時にも荷物を受け取ることができます。また、ペット飼育の相談ができますので、あなたの大切な家族の一員も快適に暮らせるか、ぜひ確認してみてください。
お金・契約の情報
※「-」と表示されているものは、実際は料金が発生するものもございます。詳細はお問い合わせください。
| 家賃 | 26.3万円 | 管理費・共益費 | 2万円 |
|---|---|---|---|
| 敷金 | なし | 礼金 | なし |
| 入居決定でお祝い金最大100,000円 | |||
| 保証金 | - | 償却・敷引 | - |
| 住宅保険料 | - | 更新料 | - |
| 保証会社利用 | 必須 | 保証会社名 | - |
| 保証会社費用 | - | 保証会社備考 | 保証会社利用必 エポス月次(FIS保険)東京初回保証料60%+月次1%(フレックス少額短期保険代保証) |
| 契約形態 | - | 契約期間 | - |
| 入居・引渡期間 | 即時 | 現況 | - |
| 入居可能条件 | ペット相談 | ||
| 契約備考 | オンライン対応希望!現地待ち合わせ希望!費用を抑えて手続きをしたい!どんな事でもお問い合わせください♪♪お申込からご入居までの間も電気・ガス・インターネット開通・引越し業者の手配等多くの煩わしい手続きが必要です。お引越し準備の負担を軽減する為これらの手続きもサポート致しますのでご安心下さい。※1年未満の解約で賃料2ヶ月分、1年以上2年未満の解約で賃料1ヶ月分の短期解約違約金あり。 合計2.2万円(内訳:契約事務手数料0.77万円Goodプレミアムα(24Hサポートのみ)1.21万円Goodプレミアムα登録料0.22万円鍵交換代0万円) 更新料 新賃料1.00ヶ月分 2LDK 二人入居可/ペット相談/事務所利用不可/ルームシェア不可 普通借家2年 損保【2.8万円2年】 バストイレ別、バルコニー、エアコン、ガスコンロ対応、クロゼット、フローリング、TVインターホン、浴室乾燥機、オートロック、室内洗濯置、シューズボックス、システムキッチン、追焚機能浴室、温水洗浄便座、脱衣所、エレベーター、洗面所独立、洗面化粧台、駐輪場、宅配ボックス、光ファイバー、外壁タイル張り、即入居可、礼金不要、最上階、敷金不要、3口以上コンロ、防犯カメラ、ペット相談、グリル付、保証人不要、バイク置場、CS、ネット専用回線、ネット使用料不要、キッチンに窓、エアコン全室、ダブルロックキー、保証金不要、24時間換気システム、複層ガラス、エアコン3台、人感照明センサー、耐火構造、2駅利用可、3駅以上利用可、駅徒歩10分以内、24時間ゴミ出し可、敷地内ごみ置き場、東南向き、LDK12畳以上、都市ガス、洗面所にドア、三面鏡付洗面化粧台、縦型照明付洗面化粧台、シューズWIC、BS、敷金・礼金不要、IT重説対応物件、初期費用カード決済可 敷金積み増し【ペット飼育の場合敷金1ヶ月(総額)】 | ||
部屋の情報
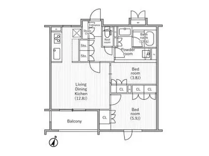
| 間取り | 2LDK | 専有面積 | 56.13m2 |
|---|---|---|---|
| 所在階 / 向き | 4階 / 南東 | バルコニー面積 | - |
| 水道 / ガス | - | ||
| 設備 | バス・トイレ別、2階以上、オートロック、テレビドアホン、宅配ボックス、浴室乾燥機、追い焚き、インターネット対応、システムキッチン、エアコン、エレベーター、温水洗浄便座、南向き、バルコニー、フローリング、洗髪洗面化粧台、2口コンロ、コンロ:ガス、CSアンテナ、BSアンテナ、インターネット使用料無料、洗濯機:室内 | ||
| 当社物件ID | 160314345 | ||
建物の情報
| 建物名 | NIDO SAKURAGAOKA ニドサクラガオカ | ||
|---|---|---|---|
| 所在地 | 東京都世田谷区桜丘 | ||
| 交通 | 小田急線 千歳船橋駅 徒歩6分 小田急線 祖師ケ谷大蔵駅 徒歩13分 小田急線 経堂駅 徒歩24分 | ||
| 階数 | 4階建 | 総戸数 | - |
| 築年月 | 2025年07月 / 築1年 | エレベーター | あり |
| 駐車場 | なし | バイク置き場 | あり |
| 駐輪場 | あり | 管理人/管理会社 | - |
| 周辺環境 | その他 サミットストア 砧環八通り店(スーパー)まで270m その他 まいばすけっと 千歳船橋駅西店(スーパー)まで400m その他 ファミリーマート 砧城山通り店(コンビニ)まで205m その他 ウエルシア 世田谷砧店(ドラッグストア)まで288m その他 世田谷桜丘五郵便局(郵便局)まで343m その他 成城警察署(警察署・交番)まで823m | ||
| 建物種別 | マンション | 建物構造 | RC(鉄筋コンクリート) |
この部屋の取扱い不動産会社
| 会社名 | (株)TOB(SUUMO経由) | ||
|---|---|---|---|
| 所在地 | 東京都世田谷区南烏山6-28-9 ピット千歳烏山201 | 交通 | - |
| 営業時間 | 9:00~18:00 | 定休日 | 営業時間外の対応も可。 |
| 免許番号 | 東京都知事106855 | 取引態様 | 仲介 |
| 不動産会社管理番号 | 100485826128 | 当社管理番号 | 89 |
| 所属団体 | (公社)全日本不動産協会東京都本部会員 | ||
| 公正取引協議会 | (公社)首都圏不動産公正取引協議会加盟 | ||
| 取扱い物件情報 | 物件詳細へ | ||
※各種情報と現状に差異がある場合は、現状優先となります。問い合わせをすることで、より詳しい条件、情報を確認する事ができます。
提供:(株)TOB(SUUMO経由)
この物件が気になったら掲載期限まであと11日
NIDO SAKURAGAOKA ニドサクラガオカに条件(家賃・エリア)が近い物件一覧
| 写真 | 家賃 管理費等 | 敷金 礼金 | 間取り 専有面積 | 築年数 | 最寄り駅 所在地 | キープ | 詳細 |
|---|---|---|---|---|---|---|---|
マンション クエスト・大山町(ワンルーム/2階) | |||||||
![]() | 19.6万円 1.3万円 | 39.2万円 19.6万円 | ワンルーム 37.91m2 | 築1年 | 小田急線 東北沢駅 徒歩6分 小田急線 代々木上原駅 徒歩7分 東京メトロ千代田線 代々木上原駅 徒歩7分 東京都渋谷区大山町 | 詳細を見る | |
マンション エスセナーリオ梅ヶ丘(1LDK/2階) | |||||||
![]() | 16.8万円 1.2万円 | 16.8万円 16.8万円 | 1LDK 37.76m2 | 築2年 | 小田急線 梅ケ丘駅 徒歩1分 京王井の頭線 東松原駅 徒歩11分 小田急線 下北沢駅 徒歩21分 東京都世田谷区梅丘 | 詳細を見る | |
マンション VIEUNO NOZAWA(2LDK/3階) | |||||||
![]() | 26.1万円 5,000円 | 26.1万円 26.1万円 | 2LDK 65.47m2 | 築1年 | 東急田園都市線 駒沢大学駅 徒歩13分 東急田園都市線 三軒茶屋駅 徒歩18分 東急東横線 学芸大学駅 徒歩20分 東京都世田谷区野沢 | 詳細を見る | |
マンション ルミナスつつじヶ丘(2LDK/5階) | |||||||
![]() | 18.5万円 1万円 | なし なし | 2LDK 43.45m2 | 築1年 | 京王線 柴崎駅 徒歩8分 京王線 つつじケ丘駅 徒歩13分 東京都調布市菊野台 | 詳細を見る | |
マンション メルシー目黒南(2LDK/3階) | |||||||
![]() | 23.3万円 7,000円 | 23.3万円 23.3万円 | 2LDK 56.5m2 | 築13年 | 東急目黒線 洗足駅 徒歩9分 東急大井町線 大岡山駅 徒歩11分 東急大井町線 北千束駅 徒歩12分 東京都目黒区南 | 詳細を見る | |
マンション TASUKI RICHESSE SHIN-NAKANO(2LDK/2階) | |||||||
![]() | 25.2万円 1.5万円 | なし なし | 2LDK 49.94m2 | 築1年 | 東京メトロ丸ノ内線 中野富士見町駅 徒歩6分 東京メトロ丸ノ内線 新中野駅 徒歩8分 東京メトロ丸ノ内線 中野新橋駅 徒歩14分 東京都杉並区和田 | 詳細を見る | |
マンション SHIBUYA NISHIHARA RESIDENCE(1LDK/3階) | |||||||
![]() | 22.2万円 8,000円 | 22.2万円 22.2万円 | 1LDK 40.54m2 | 築9年 | 小田急線 代々木上原駅 徒歩2分 小田急線 東北沢駅 徒歩8分 小田急線 代々木八幡駅 徒歩10分 東京都渋谷区西原 | 詳細を見る | |
マンション HIROO VILLAGE(1LDK/9階) | |||||||
![]() | 21.6万円 2万円 | 21.6万円 21.6万円 | 1LDK 36.94m2 | 築5年 | 東京メトロ日比谷線 広尾駅 徒歩6分 JR山手線 恵比寿駅 徒歩10分 東京メトロ南北線 白金台駅 徒歩20分 東京都渋谷区広尾 | 詳細を見る | |









