賃貸マンション
パークアクシス辰巳ステージの賃貸物件情報(2LDK/12階)
| 家賃 | 管理費等 | 敷金 | 礼金 | 間取り | 専有面積 |
|---|---|---|---|---|---|
| 21.9万円 | 1.2万円 | 21.9万円 | 21.9万円 | 2LDK | 58.55m2 |
入居決定でお祝い金最大100,000円
Point
まずはお問い合わせ!
不動産会社は街のプロ、あなたに合った物件がきっと見つかります。
提供:ハウスコム東東京株式会社 押上店

詳細情報 パークアクシス辰巳ステージ
物件紹介
パークアクシス辰巳ステージは東京地下鉄有楽町線辰巳駅から徒歩6分にあり、駅近で通勤通学に便利なマンションです。
このお部屋は2階以上に位置しているので、通行人や周囲の住人からの視線が気になりにくく、防犯面でも安心。建物のエントランスはオートロックがついており、インターホンにはTVモニタもついているため、相手の顔を確認してから来客対応することができます。
こちらは楽器相談が可能な物件。楽器演奏をお考えの方はぜひ相談してみてください。人気の角部屋で周囲の居住者の生活音も気になりにくく、また、フローリングのお部屋なのでお掃除もラクラク。キッチンはシステムキッチン仕様になっていますので、お料理好きの方にもぴったり。バス・トイレは別なので、のんびりお風呂タイムも楽しめるでしょう。また、雨の日でも浴室乾燥機を使えば、お洗濯も問題ありません。
通信設備面では、インターネット接続が可能です。また、BSアンテナ・CSアンテナもありますので、おうち時間も充実するでしょう(別途工事、契約料が必要な場合あり)。
建物にはエレベーターがついているので、重い荷物があっても安心。共用部には宅配ボックスが設定されているので、不在の時にも荷物を受け取ることができます。また、ペット飼育の相談ができますので、あなたの大切な家族の一員も快適に暮らせるか、ぜひ確認してみてください。
このお部屋は2階以上に位置しているので、通行人や周囲の住人からの視線が気になりにくく、防犯面でも安心。建物のエントランスはオートロックがついており、インターホンにはTVモニタもついているため、相手の顔を確認してから来客対応することができます。
こちらは楽器相談が可能な物件。楽器演奏をお考えの方はぜひ相談してみてください。人気の角部屋で周囲の居住者の生活音も気になりにくく、また、フローリングのお部屋なのでお掃除もラクラク。キッチンはシステムキッチン仕様になっていますので、お料理好きの方にもぴったり。バス・トイレは別なので、のんびりお風呂タイムも楽しめるでしょう。また、雨の日でも浴室乾燥機を使えば、お洗濯も問題ありません。
通信設備面では、インターネット接続が可能です。また、BSアンテナ・CSアンテナもありますので、おうち時間も充実するでしょう(別途工事、契約料が必要な場合あり)。
建物にはエレベーターがついているので、重い荷物があっても安心。共用部には宅配ボックスが設定されているので、不在の時にも荷物を受け取ることができます。また、ペット飼育の相談ができますので、あなたの大切な家族の一員も快適に暮らせるか、ぜひ確認してみてください。
お金・契約の情報
※「-」と表示されているものは、実際は料金が発生するものもございます。詳細はお問い合わせください。
| 家賃 | 21.9万円 | 管理費・共益費 | 1.2万円 |
|---|---|---|---|
| 敷金 | 21.9万円 | 礼金 | 21.9万円 |
| 入居決定でお祝い金最大100,000円 | |||
| 保証金 | - | 償却・敷引 | - |
| 住宅保険料 | 1円 | 更新料 | - |
| その他費用 | 室内清掃費:10.9488万円、16500円: | ||
| 保証会社利用 | 必須 | 保証会社名 | - |
| 保証会社費用 | - | 保証会社備考 | 保証会社名:レジデントアシスタンス株式会社/初回保証委託料(最低20000円):月額賃料等の50%、 2年目以降:9600円/年 |
| 契約形態 | - | 契約期間 | 2年 |
| 入居・引渡期間 | 2026年03月下旬 | 現況 | - |
| 入居可能条件 | 事務所不可、楽器可、ペット相談 | ||
| 契約備考 | 月額(口座振替事務手数料 110円) その他設備/条件:室内洗濯機置き場、独立洗面台 | ||
部屋の情報
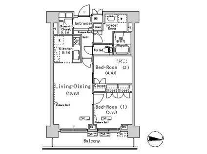
| 間取り | 2LDK | 専有面積 | 58.55m2 |
|---|---|---|---|
| 所在階 / 向き | 12階 / 東 | バルコニー面積 | 9m2 |
| 水道 / ガス | - | ||
| 設備 | バス・トイレ別、オートロック、テレビドアホン、宅配ボックス、浴室乾燥機、追い焚き、インターネット対応、システムキッチン、エアコン、エレベーター、バルコニー、フローリング、CSアンテナ、BSアンテナ | ||
| 当社物件ID | 160321884 | ||
建物の情報
| 建物名 | パークアクシス辰巳ステージ | ||
|---|---|---|---|
| 所在地 | 東京都江東区辰巳2丁目 | ||
| 交通 | 東京地下鉄有楽町線 辰巳駅 徒歩6分 京葉線 新木場駅 徒歩16分 | ||
| 階数 | 13階建 | 総戸数 | - |
| 築年月 | 2008年01月 / 築19年 | エレベーター | あり |
| 駐車場 | なし | バイク置き場 | あり |
| 駐輪場 | - | 管理人/管理会社 | - |
| 周辺環境 | その他 ドラッグストア その他 公園 その他 銀行 その他 * | ||
| 建物種別 | マンション | 建物構造 | RC(鉄筋コンクリート) |
この部屋の取扱い不動産会社
| 会社名 | ハウスコム東東京株式会社 押上店 | ||
|---|---|---|---|
| 所在地 | 東京都墨田区16-2三橋ビル1階 | 交通 | - |
| 営業時間 | 10:00~18:00 | 定休日 | 水曜定休 |
| 免許番号 | 東京都知事(1)第108283号 | 取引態様 | 仲介 |
| 不動産会社管理番号 | HC5-85332-1215-0072 | 当社管理番号 | 468 |
| 所属団体 | 、 | ||
| 取扱い物件情報 | 物件詳細へ | ||
※各種情報と現状に差異がある場合は、現状優先となります。問い合わせをすることで、より詳しい条件、情報を確認する事ができます。
提供:ハウスコム東東京株式会社 押上店
この物件が気になったら掲載期限まであと4日
パークアクシス辰巳ステージに条件(家賃・エリア)が近い物件一覧
| 写真 | 家賃 管理費等 | 敷金 礼金 | 間取り 専有面積 | 築年数 | 最寄り駅 所在地 | キープ | 詳細 |
|---|---|---|---|---|---|---|---|
タウンハウス 大田菜園長屋(2LDK) | |||||||
![]() | 15.9万円 5,000円 | 15.9万円 7.95万円 | 2LDK 52.17m2 | 築10年 | 京浜急行電鉄本線 雑色駅 徒歩8分 京浜急行電鉄本線 六郷土手駅 徒歩13分 東京都大田区東六郷3丁目 | 詳細を見る | |
一戸建て 京浜急行電鉄空港線 大鳥居駅 徒歩7分 築5年(3SLDK) | |||||||
![]() | 29.5万円 なし | 29.5万円 29.5万円 | 3SLDK 94.24m2 | 築5年 | 京浜急行電鉄空港線 大鳥居駅 徒歩7分 京浜急行電鉄空港線 糀谷駅 徒歩9分 京浜急行電鉄空港線 穴守稲荷駅 徒歩18分 東京都大田区西糀谷3丁目 | 詳細を見る | |
マンション AIFLAT品川戸越パークサイド(2LDK/7階) | |||||||
![]() | 28.4万円 1.5万円 | 28.4万円 なし | 2LDK 48.04m2 | 築1年 | 東急大井町線 戸越公園駅 徒歩5分 東京都浅草線 戸越駅 徒歩6分 山手線 大崎駅 徒歩19分 東京都品川区戸越4丁目 | 詳細を見る | |
マンション SAKURA(2LDK/2階) | |||||||
![]() | 19.5万円 5,000円 | 19.5万円 19.5万円 | 2LDK 54.84m2 | 築5年 | 京急本線 梅屋敷駅(東京) 徒歩7分 京急本線 大森町駅 徒歩9分 東京都大田区大森中 | 詳細を見る | |
マンション プライムガーデン大森(1DK/12階) | |||||||
![]() | 14.3万円 1万円 | 14.3万円 なし | 1DK 25.3m2 | 築1年 | JR京浜東北線 大森駅(東京) 徒歩5分 京急本線 大森海岸駅 徒歩12分 京急本線 平和島駅 徒歩18分 東京都大田区大森北 | 詳細を見る | |
マンション コスモリード月島(1LDK/8階) | |||||||
![]() | 16.3万円 7,000円 | なし 16.3万円 | 1LDK 34.75m2 | 築21年 | 東京メトロ有楽町線 月島駅 徒歩3分 都営大江戸線 月島駅 徒歩3分 JR京葉線 越中島駅 徒歩13分 東京都中央区佃 | 詳細を見る | |
マンション GENOVIA本所吾妻橋SKYGARDEN(1LDK/4階) | |||||||
![]() | 17.3万円 2万円 | なし なし | 1LDK 41.27m2 | 築5年 | 東京都浅草線 本所吾妻橋駅 徒歩10分 東京都大江戸線 両国駅 徒歩12分 東京地下鉄銀座線 浅草駅(東武・都営・メトロ) 徒歩15分 東京都墨田区石原3丁目 | 詳細を見る | |
マンション パークアクシス押上テラス(ワンルーム/2階) | |||||||
![]() | 13.4万円 1万円 | 13.4万円 13.4万円 | ワンルーム 26.4m2 | 築10年 | 東京地下鉄半蔵門線 押上駅 徒歩5分 東武伊勢崎・大師線 曳舟駅 徒歩8分 東京都墨田区向島3丁目 | 詳細を見る | |









