賃貸マンション
パークアクシス辰巳ステージの賃貸物件情報(1K/5階)
| 家賃 | 管理費等 | 敷金 | 礼金 | 間取り | 専有面積 |
|---|---|---|---|---|---|
| 12.5万円 | 8,000円 | 12.5万円 | 12.5万円 | 1K | 28.48m2 |
入居決定でお祝い金最大100,000円
- 保証金
- -
- 償却・敷引
- -
- 築年数
- 築19年
- 所在階
- 5階
- 向き
- 東
Point
まずはお問い合わせ!
不動産会社は街のプロ、あなたに合った物件がきっと見つかります。
提供:SEG(株)広尾本店(SUUMO経由)

詳細情報 パークアクシス辰巳ステージ
物件紹介
パークアクシス辰巳ステージは東京メトロ有楽町線辰巳駅から徒歩6分にあり、駅近で通勤通学に便利なマンションです。
このお部屋は2階以上に位置しているので、通行人や周囲の住人からの視線が気になりにくく、防犯面でも安心。建物のエントランスはオートロックがついており、インターホンにはTVモニタもついているため、相手の顔を確認してから来客対応することができます。
こちらは楽器相談が可能な物件。楽器演奏をお考えの方はぜひ相談してみてください。フローリングのお部屋なのでお掃除もラクラク。キッチンはシステムキッチン仕様になっていますので、お料理好きの方にもぴったり。バス・トイレは別なので、のんびりお風呂タイムも楽しめるでしょう。また、雨の日でも浴室乾燥機を使えば、お洗濯も問題ありません。
通信設備面では、インターネット接続が可能です。また、BSアンテナ・CSアンテナがありCATVにも対応しているので、おうち時間も充実するでしょう(別途工事、契約料が必要な場合あり)。
建物にはエレベーターがついているので、重い荷物があっても安心。共用部には宅配ボックスが設定されているので、不在の時にも荷物を受け取ることができます。また、ペット飼育の相談ができますので、あなたの大切な家族の一員も快適に暮らせるか、ぜひ確認してみてください。
このお部屋は2階以上に位置しているので、通行人や周囲の住人からの視線が気になりにくく、防犯面でも安心。建物のエントランスはオートロックがついており、インターホンにはTVモニタもついているため、相手の顔を確認してから来客対応することができます。
こちらは楽器相談が可能な物件。楽器演奏をお考えの方はぜひ相談してみてください。フローリングのお部屋なのでお掃除もラクラク。キッチンはシステムキッチン仕様になっていますので、お料理好きの方にもぴったり。バス・トイレは別なので、のんびりお風呂タイムも楽しめるでしょう。また、雨の日でも浴室乾燥機を使えば、お洗濯も問題ありません。
通信設備面では、インターネット接続が可能です。また、BSアンテナ・CSアンテナがありCATVにも対応しているので、おうち時間も充実するでしょう(別途工事、契約料が必要な場合あり)。
建物にはエレベーターがついているので、重い荷物があっても安心。共用部には宅配ボックスが設定されているので、不在の時にも荷物を受け取ることができます。また、ペット飼育の相談ができますので、あなたの大切な家族の一員も快適に暮らせるか、ぜひ確認してみてください。
お金・契約の情報
※「-」と表示されているものは、実際は料金が発生するものもございます。詳細はお問い合わせください。
| 家賃 | 12.5万円 | 管理費・共益費 | 8,000円 |
|---|---|---|---|
| 敷金 | 12.5万円 | 礼金 | 12.5万円 |
| 入居決定でお祝い金最大100,000円 | |||
| 保証金 | - | 償却・敷引 | - |
| 住宅保険料 | - | 更新料 | - |
| 保証会社利用 | 必須 | 保証会社名 | - |
| 保証会社費用 | - | 保証会社備考 | 保証会社利用必 初回保証委託料(最低20000円):月額賃料等の50%、 2年目以降:9600円/年 |
| 契約形態 | - | 契約期間 | - |
| 入居・引渡期間 | - | 現況 | - |
| 入居可能条件 | 楽器相談、ペット相談 | ||
| 契約備考 | 東京メトロ有楽町線豊洲駅徒歩28分/巡回管理/お部屋探しはタウンハウジング森下店へ! 現地お待合わせも可能です。お気軽にご相談ください! 合計5.5万円(内訳:室内清掃費用:55000円) 更新料新賃料(ヶ月):1.00ヶ月、口座振替事務手数料:110円/月 1K 単身者可/二人入居可/ペット相談/楽器相談 普通借家2年 損保【2万円2年】 バストイレ別、バルコニー、エアコン、ガスコンロ対応、クロゼット、フローリング、TVインターホン、浴室乾燥機、オートロック、室内洗濯置、シューズボックス、システムキッチン、追焚機能浴室、温水洗浄便座、脱衣所、エレベーター、洗面所独立、洗面化粧台、2口コンロ、駐輪場、宅配ボックス、CATV、光ファイバー、外壁タイル張り、BS・CS、防犯カメラ、独立型キッチン、ペット相談、照明付、オートバス、全居室洋室、単身者相談、敷金1ヶ月、二人入居相談、バイク置場、24時間緊急通報システム、全居室フローリング、2沿線利用可、ディンプルキー、エアコン全室、ダブルロックキー、保証金不要、24時間換気システム、楽器相談、クロゼット2ヶ所、ペット専用設備、耐震構造、2駅利用可、24時間ゴミ出し可、クリーニングボックス、風除室、敷地内ごみ置き場、都市ガス、洗面所にドア、玄関収納、高速ネット対応、マルチメディアコンセント、礼金1ヶ月、IT重説対応物件、初期費用カード決済可 敷金積み増し【ペット飼育の場合敷金2ヶ月(総額)】 入居日:'26年2月上旬 | ||
部屋の情報
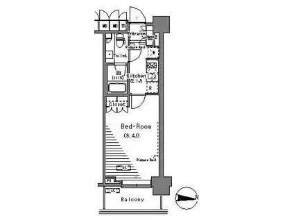
| 間取り | 1K | 専有面積 | 28.48m2 |
|---|---|---|---|
| 所在階 / 向き | 5階 / 東 | バルコニー面積 | - |
| 水道 / ガス | - | ||
| 設備 | バス・トイレ別、2階以上、オートロック、テレビドアホン、宅配ボックス、浴室乾燥機、追い焚き、インターネット対応、システムキッチン、エアコン、エレベーター、温水洗浄便座、バルコニー、フローリング、洗髪洗面化粧台、2口コンロ、コンロ:ガス、CATV、CSアンテナ、BSアンテナ、洗濯機:室内 | ||
| 当社物件ID | 10206354 | ||
建物の情報
| 建物名 | パークアクシス辰巳ステージ | ||
|---|---|---|---|
| 所在地 | 東京都江東区辰巳 | ||
| 交通 | 東京メトロ有楽町線 辰巳駅 徒歩6分 JR京葉線 新木場駅 徒歩16分 りんかい線 東雲駅(東京) 徒歩20分 | ||
| 階数 | 13階建 | 総戸数 | - |
| 築年月 | 2008年01月 / 築19年 | エレベーター | あり |
| 駐車場 | 近隣 400m38000円 | バイク置き場 | あり |
| 駐輪場 | あり | 管理人/管理会社 | - |
| 周辺環境 | その他 辰巳の森海浜公園(公園)まで300m その他 サンクス(コンビニ)まで150m その他 デイリーストア(コンビニ)まで525m その他 ローソン(コンビニ)まで608m その他 イオン(スーパー)まで1100m その他 マルエツ(スーパー)まで1200m | ||
| 建物種別 | マンション | 建物構造 | RC(鉄筋コンクリート) |
この部屋の取扱い不動産会社
| 会社名 | (株)タウンハウジング東京 森下店(SUUMO経由) | ||
|---|---|---|---|
| 所在地 | 東京都江東区森下2-18-2 センテナリー森下1階 | 交通 | - |
| 営業時間 | AM10:00~PM7:00 | 定休日 | 水曜日 |
| 免許番号 | 国土交通大臣9926 | 取引態様 | 仲介 |
| 不動産会社管理番号 | 100480412200 | 当社管理番号 | 89 |
| 所属団体 | (公社)東京都宅地建物取引業協会会員 | ||
| 公正取引協議会 | (公社)首都圏不動産公正取引協議会加盟 | ||
| 取扱い物件情報 | 物件詳細へ | ||
※各種情報と現状に差異がある場合は、現状優先となります。問い合わせをすることで、より詳しい条件、情報を確認する事ができます。
提供:(株)タウンハウジング東京 森下店(SUUMO経由)
この物件が気になったら掲載期限まであと10日
パークアクシス辰巳ステージに条件(家賃・エリア)が近い物件一覧
| 写真 | 家賃 管理費等 | 敷金 礼金 | 間取り 専有面積 | 築年数 | 最寄り駅 所在地 | キープ | 詳細 |
|---|---|---|---|---|---|---|---|
マンション アーバネックス南品川2(1K/2階) | |||||||
![]() | 11.2万円 1.5万円 | 11.2万円 11.2万円 | 1K 20.64m2 | 築5年 | 京急本線 新馬場駅 徒歩5分 JR京浜東北線 大井町駅 徒歩12分 JR山手線 大崎駅 徒歩15分 東京都品川区南品川 | 詳細を見る | |
マンション イプセ蒲田(ワンルーム/1階) | |||||||
![]() | 10.6万円 6,000円 | 10.6万円 10.6万円 | ワンルーム 23.1m2 | 築19年 | JR京浜東北線 蒲田駅 徒歩3分 東急池上線 蓮沼駅 徒歩8分 京急本線 京急蒲田駅 徒歩15分 東京都大田区西蒲田 | 詳細を見る | |
マンション ベルメゾン亀戸(ワンルーム/4階) | |||||||
![]() | 8万円 2,000円 | 8万円 8万円 | ワンルーム 20m2 | 築37年 | 東武鉄道亀戸線 亀戸水神駅 徒歩6分 東武鉄道亀戸線 亀戸駅 徒歩9分 総武・中央緩行線 亀戸駅 徒歩9分 東京都江東区亀戸5丁目 | 詳細を見る | |
マンション プレサンス木場公園(1DK/5階) | |||||||
![]() | 13.9万円 1.1万円 | なし 13.9万円 | 1DK 25.95m2 | 築3年 | 東京地下鉄東西線 木場駅 徒歩8分 東京地下鉄東西線 東陽町駅 徒歩10分 東京地下鉄東西線 門前仲町駅 徒歩24分 東京都江東区東陽5丁目 | 詳細を見る | |
一戸建て 東急池上線 蓮沼駅 徒歩5分 築66年(4K) | |||||||
![]() | 12万円 なし | 12万円 12万円 | 4K 63.63m2 | 築66年 | 東急池上線 蓮沼駅 徒歩5分 東急池上線 池上駅 徒歩11分 東急多摩川線 矢口渡駅 徒歩13分 東京都大田区東矢口1丁目 | 詳細を見る | |
マンション SEED JUST B-BASE Ⅱ(1LDK/4階) | |||||||
![]() | 8.8万円 1.5万円 | 8.8万円 8.8万円 | 1LDK 23.07m2 | 新築 | 東京モノレール羽田 昭和島駅 徒歩11分 京浜急行電鉄本線 梅屋敷駅(東京) 徒歩19分 東京都大田区大森南4丁目 | 詳細を見る | |
マンション カペラⅡ(1K/3階) | |||||||
![]() | 8.7万円 5,000円 | 8.7万円 8.7万円 | 1K 18.75m2 | 築24年 | 東急池上線 戸越銀座駅 徒歩5分 東京都浅草線 戸越駅 徒歩7分 東急目黒線 武蔵小山駅 徒歩11分 東京都品川区荏原2丁目 | 詳細を見る | |
マンション プラウドフラット蒲田Ⅱ(1K/8階) | |||||||
![]() | 11万円 7,000円 | 11万円 11万円 | 1K 20.79m2 | 築18年 | 京浜急行電鉄空港線 京急蒲田駅 徒歩5分 東京都大田区蒲田4丁目 | 詳細を見る | |








