賃貸マンション
ポレスターセントラルシティ佐世保の賃貸物件情報(2LDK/8階)
| 家賃 | 管理費等 | 敷金 | 礼金 | 間取り | 専有面積 |
|---|---|---|---|---|---|
| 13.5万円 | なし | 13.5万円 | 13.5万円 | 2LDK | 69.43m2 |
入居決定でお祝い金最大100,000円
- 保証金
- -
- 償却・敷引
- -
- 築年数
- 築16年
- 所在階
- 8階
- 向き
- 西
Point
8階で眺望良好。佐世保中心部のため佐世保駅や5番街等徒歩でアクセス可能。ベランダからの佐世保川向かいには遊具充実の公園が広がっています。
提供:ピタットハウス佐世保中央店(株)第百不動産(SUUMO経由)

詳細情報 ポレスターセントラルシティ佐世保
物件紹介
ポレスターセントラルシティ佐世保は松浦鉄道西九州線佐世保中央駅から徒歩9分にあり、駅近で通勤通学に便利なマンションです。
このお部屋は2階以上に位置しているので、通行人や周囲の住人からの視線が気になりにくく、防犯面でも安心。建物のエントランスはオートロックがついており、インターホンにはTVモニタもついているため、相手の顔を確認してから来客対応することができます。
キッチンはシステムキッチン仕様になっていますので、お料理好きの方にもぴったり。また、バス・トイレは別で、のんびりお風呂タイムも楽しめるでしょう。
建物にはエレベーターがついているので、重い荷物があっても安心。また、ペット飼育の相談ができますので、あなたの大切な家族の一員も快適に暮らせるか、ぜひ確認してみてください。
このお部屋は2階以上に位置しているので、通行人や周囲の住人からの視線が気になりにくく、防犯面でも安心。建物のエントランスはオートロックがついており、インターホンにはTVモニタもついているため、相手の顔を確認してから来客対応することができます。
キッチンはシステムキッチン仕様になっていますので、お料理好きの方にもぴったり。また、バス・トイレは別で、のんびりお風呂タイムも楽しめるでしょう。
建物にはエレベーターがついているので、重い荷物があっても安心。また、ペット飼育の相談ができますので、あなたの大切な家族の一員も快適に暮らせるか、ぜひ確認してみてください。
お金・契約の情報
※「-」と表示されているものは、実際は料金が発生するものもございます。詳細はお問い合わせください。
| 家賃 | 13.5万円 | 管理費・共益費 | なし |
|---|---|---|---|
| 敷金 | 13.5万円 | 礼金 | 13.5万円 |
| 入居決定でお祝い金最大100,000円 | |||
| 保証金 | - | 償却・敷引 | - |
| 住宅保険料 | - | 更新料 | - |
| 保証会社利用 | 必須 | 保証会社名 | リクルートフォレントインシュア |
| 保証会社費用 | - | 保証会社備考 | オリコフォレントインシュア利用必 契約時総賃料50%+月額保証料(月額総賃料1%) |
| 契約形態 | - | 契約期間 | - |
| 入居・引渡期間 | - | 現況 | - |
| 入居可能条件 | ペット相談 | ||
| 契約備考 | ※写真・間取図と実際の室内仕様が異なる場合は、現況優先とさせて頂きます。※退去時に清掃代がかかります。※保証会社加入必須:契約時総賃料50%+月額保証料(月額総賃料1%)※1年以内の解約の場合、短期解約違約金が発生します。 合計13.5万円(内訳:ペット飼育時13.5万円) くらサス会員費2000円 2LDK 二人入居可/ペット相談 損保【2万円2年】 バストイレ別、バルコニー、エアコン、クロゼット、シャワー付洗面台、TVインターホン、オートロック、室内洗濯置、シューズボックス、システムキッチン、追焚機能浴室、温水洗浄便座、エレベーター、洗面所独立、3口以上コンロ、対面式キッチン、ペット相談、駐車場1台無料、分譲賃貸、二人入居相談、2沿線利用可、駅徒歩10分以内、敷地内ごみ置き場、都市ガス、IT重説対応物件 入居日:'26年5月上旬 | ||
部屋の情報
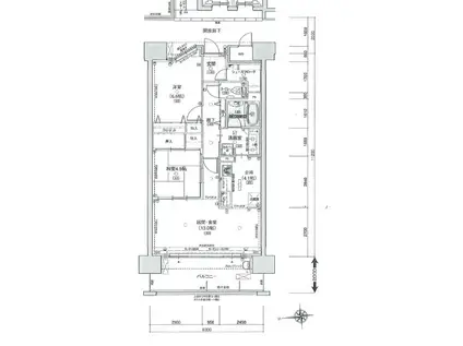
| 間取り | 2LDK | 専有面積 | 69.43m2 |
|---|---|---|---|
| 所在階 / 向き | 8階 / 西 | バルコニー面積 | - |
| 水道 / ガス | - | ||
| 設備 | バス・トイレ別、2階以上、オートロック、テレビドアホン、追い焚き、システムキッチン、エアコン、エレベーター、温水洗浄便座、バルコニー、洗髪洗面化粧台、2口コンロ、洗濯機:室内 | ||
| 当社物件ID | 160548194 | ||
建物の情報
| 建物名 | ポレスターセントラルシティ佐世保 | ||
|---|---|---|---|
| 所在地 | 長崎県佐世保市島地町 | ||
| 交通 | 松浦鉄道西九州線 佐世保中央駅 徒歩9分 松浦鉄道西九州線 中佐世保駅 徒歩11分 JR佐世保線 佐世保駅 徒歩13分 | ||
| 階数 | 地下1地上14階建 | 総戸数 | - |
| 築年月 | 2010年08月 / 築16年 | エレベーター | あり |
| 駐車場 | 空有 付無料 | バイク置き場 | - |
| 駐輪場 | - | 管理人/管理会社 | - |
| 周辺環境 | その他 佐世保市立祗園中学校(中学校)まで1354m その他 長崎県立佐世保北高校(高校・高専)まで1839m その他 佐世保市役所(役所)まで1458m その他 佐世保塩浜郵便局(郵便局)まで585m | ||
| 建物種別 | マンション | 建物構造 | RC(鉄筋コンクリート) |
この部屋の取扱い不動産会社
| 会社名 | ピタットハウス佐世保中央店(株)第百不動産(SUUMO経由) | ||
|---|---|---|---|
| 所在地 | 長崎県佐世保市湊町 2-9 松尾ビル1階 | 交通 | - |
| 営業時間 | 9:00~17:00 | 定休日 | 水曜日 |
| 免許番号 | 長崎県知事2392 | 取引態様 | 仲介 |
| 不動産会社管理番号 | 100493208893 | 当社管理番号 | 89 |
| 所属団体 | (公社)全日本不動産協会長崎県本部会員 | ||
| 公正取引協議会 | (一社)九州不動産公正取引協議会加盟 | ||
| 取扱い物件情報 | 物件詳細へ | ||
※各種情報と現状に差異がある場合は、現状優先となります。問い合わせをすることで、より詳しい条件、情報を確認する事ができます。
提供:ピタットハウス佐世保中央店(株)第百不動産(SUUMO経由)
この物件が気になったら掲載期限まであと11日
ポレスターセントラルシティ佐世保に条件(家賃・エリア)が近い物件一覧
| 写真 | 家賃 管理費等 | 敷金 礼金 | 間取り 専有面積 | 築年数 | 最寄り駅 所在地 | キープ | 詳細 |
|---|---|---|---|---|---|---|---|
マンション レジデンス峰坂(3LDK/3階) | |||||||
![]() | 8.3万円 2,000円 | なし 16.6万円 | 3LDK 73.2m2 | 築31年 | 松浦鉄道西九州線 中佐世保駅 徒歩14分 松浦鉄道西九州線 佐世保中央駅 徒歩14分 JR佐世保線 佐世保駅 徒歩18分 長崎県佐世保市峰坂町 | 詳細を見る | |
マンション アークス高梨レジデンス(2LDK/2階) | |||||||
![]() | 12.2万円 なし | なし 18.3万円 | 2LDK 69.85m2 | 築2年 | 松浦鉄道西九州線 中佐世保駅 徒歩11分 長崎県佐世保市高梨町 | 詳細を見る | |
マンション アヴァンス八幡(3LDK/4階) | |||||||
![]() | 8.7万円 なし | なし 17.4万円 | 3LDK 71.5m2 | 築21年 | 松浦鉄道西九州線 北佐世保駅 徒歩10分 長崎県佐世保市八幡町 | 詳細を見る | |
マンション アルファステイツ高天(2LDK/10階) | |||||||
![]() | 13.5万円 5,000円 | 13.5万円 27万円 | 2LDK 66.51m2 | 築5年 | 松浦鉄道西九州線 中佐世保駅 徒歩11分 長崎県佐世保市高天町 | 詳細を見る | |
アパート ソレイユ・ルヴァン船越(2LDK/1階) | |||||||
![]() | 15.2万円 なし | 15.2万円 なし | 2LDK 86.11m2 | 築5年 | 松浦鉄道西九州線 佐世保中央駅 徒歩74分 長崎県佐世保市船越町 | 詳細を見る | |
マンション BEREOさくら坂(2LDK/1階) | |||||||
![]() | 11.1万円 3,500円 | なし 22.2万円 | 2LDK 63.99m2 | 築1年 | 松浦鉄道西九州線 北佐世保駅 徒歩8分 松浦鉄道西九州線 中佐世保駅 徒歩24分 長崎県佐世保市折橋町 | 詳細を見る | |
マンション 春陽館大野(2LDK/5階) | |||||||
![]() | 8.3万円 なし | なし 8.3万円 | 2LDK 67m2 | 築20年 | 松浦鉄道西九州線 左石駅 徒歩3分 長崎県佐世保市田原町 | 詳細を見る | |
アパート レジデンス峰坂(3LDK/3階) | |||||||
![]() | 8.3万円 2,000円 | なし 16.6万円 | 3LDK 73.2m2 | 築31年 | 松浦鉄道西九州線 佐世保中央駅 徒歩13分 松浦鉄道西九州線 中佐世保駅 徒歩13分 長崎県佐世保市峰坂町 | 詳細を見る | |









