賃貸マンション
プレサンス丸の内アドブルの賃貸物件情報(1K/8階)
| 家賃 | 管理費等 | 敷金 | 礼金 | 間取り | 専有面積 |
|---|---|---|---|---|---|
| 6.062万円 | 8,700円 | なし | 6.8万円 | 1K | 22.04m2 |
入居決定でお祝い金最大100,000円
Point
地下鉄「丸の内」駅徒歩2分!
提供:アパマンショップ御器所店
/424x317-f1-q70-wp1)
詳細情報 プレサンス丸の内アドブル
物件紹介
プレサンス丸の内アドブルは名古屋市鶴舞線丸の内駅から徒歩2分にあり、駅近で通勤通学に便利なマンションです。
このお部屋は2階以上に位置しているので、通行人や周囲の住人からの視線が気になりにくく、防犯面でも安心。建物のエントランスはオートロックがついており、インターホンにはTVモニタもついているため、相手の顔を確認してから来客対応することができます。
おしゃれなデザイナーズ物件!人気の角部屋で周囲の居住者の生活音も気になりにくく、また、フローリングのお部屋なのでお掃除もラクラク。室内にはウォークインクローゼットがありますので、たくさんの荷物も効率的に収納ができます。キッチンはシステムキッチン仕様になっていますので、お料理好きの方にもぴったり。バス・トイレは別なので、のんびりお風呂タイムも楽しめるでしょう。また、雨の日でも浴室乾燥機を使えば、お洗濯も問題ありません。
通信設備面では、インターネットが無料で使えるので、月々の出費を抑えられるのも魅力です。また、BSアンテナ・CSアンテナがありCATVにも対応しているので、おうち時間も充実するでしょう(別途工事、BS・CS・CATVの契約料等が必要な場合あり)。
建物にはエレベーターがついているので、重い荷物があっても安心。共用部には宅配ボックスが設定されているので、不在の時にも荷物を受け取ることができます。
このお部屋は2階以上に位置しているので、通行人や周囲の住人からの視線が気になりにくく、防犯面でも安心。建物のエントランスはオートロックがついており、インターホンにはTVモニタもついているため、相手の顔を確認してから来客対応することができます。
おしゃれなデザイナーズ物件!人気の角部屋で周囲の居住者の生活音も気になりにくく、また、フローリングのお部屋なのでお掃除もラクラク。室内にはウォークインクローゼットがありますので、たくさんの荷物も効率的に収納ができます。キッチンはシステムキッチン仕様になっていますので、お料理好きの方にもぴったり。バス・トイレは別なので、のんびりお風呂タイムも楽しめるでしょう。また、雨の日でも浴室乾燥機を使えば、お洗濯も問題ありません。
通信設備面では、インターネットが無料で使えるので、月々の出費を抑えられるのも魅力です。また、BSアンテナ・CSアンテナがありCATVにも対応しているので、おうち時間も充実するでしょう(別途工事、BS・CS・CATVの契約料等が必要な場合あり)。
建物にはエレベーターがついているので、重い荷物があっても安心。共用部には宅配ボックスが設定されているので、不在の時にも荷物を受け取ることができます。
お金・契約の情報
※「-」と表示されているものは、実際は料金が発生するものもございます。詳細はお問い合わせください。
| 家賃 | 6.062万円 | 管理費・共益費 | 8,700円 |
|---|---|---|---|
| 敷金 | なし | 礼金 | 6.8万円 |
| 入居決定でお祝い金最大100,000円 | |||
| 保証金 | - | 償却・敷引 | - |
| 住宅保険料 | - | 更新料 | - |
| 保証会社利用 | 必須 | 保証会社名 | 株式会社プレサンスギャランティ |
| 保証会社費用 | - | 保証会社備考 | ギャランティ 初回50% 月1.5%・セーフティー 初回50% 年10,000円 |
| 契約形態 | - | 契約期間 | 1年 |
| 入居・引渡期間 | 相談 | 現況 | - |
| 契約備考 | プレサポ24 990円/カギ交換代 29700円 | ||
部屋の情報
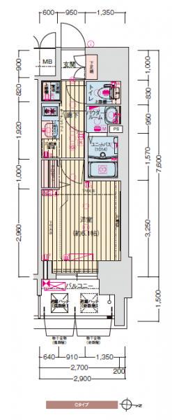
| 間取り | 1K | 専有面積 | 22.04m2 |
|---|---|---|---|
| 間取り詳細 | 洋室(6.1帖) | ||
| 所在階 / 向き | 8階 / 東 | バルコニー面積 | 4m2 |
| 水道 / ガス | - | ||
| 設備 | バス・トイレ別、オートロック、テレビドアホン、宅配ボックス、浴室乾燥機、光ファイバー対応、システムキッチン、エレベーター、温水洗浄便座、角部屋、バルコニー、フローリング、コンロ:ガス、CSアンテナ、BSアンテナ、インターネット使用料無料、シャワー、給湯、冷房、洗濯機:室内 | ||
| 当社物件ID | 42477860 | ||
建物の情報
| 建物名 | プレサンス丸の内アドブル | ||
|---|---|---|---|
| 所在地 | 愛知県名古屋市中区丸の内1丁目 | ||
| 交通 | 名古屋市鶴舞線 丸の内駅(愛知) 徒歩2分 | ||
| 階数 | 15階建 | 総戸数 | 84戸 |
| 築年月 | 2020年08月 / 築6年 | エレベーター | あり |
| 駐車場 | - | バイク置き場 | あり |
| 駐輪場 | あり | 管理人/管理会社 | - |
| 周辺環境 | 病院 中日病院健診センター 徒歩9分(693m) その他 テラッセ納屋橋店 徒歩15分(1125m) その他 御園座 徒歩16分(1237m) その他 キッチュエピオ 徒歩16分(1222m) その他 名古屋城 徒歩20分(1523m) その他 ミッドランドスクエア 徒歩19分(1443m) その他 ドンキホーテ 名古屋栄 徒歩21分(1656m) その他 JRタカシマヤ 徒歩20分(1522m) | ||
| 建物種別 | マンション | 建物構造 | RC(鉄筋コンクリート) |
この部屋の取扱い不動産会社
| 会社名 | アパマンショップ栄店 | ||
|---|---|---|---|
| 所在地 | 愛知県名古屋市中区栄4丁目 16−8栄メンバーズオフィスビル1F | 交通 | 名古屋市東山線栄から徒歩5分 |
| 営業時間 | 10:00〜18:00 | 定休日 | 水曜日 |
| 免許番号 | 愛知県知事(8)16306 | 取引態様 | 仲介 |
| 不動産会社管理番号 | 87373763 | 当社管理番号 | 4 |
| 所属団体 | (公社)愛知県宅地建物取引業協会 | ||
| 公正取引協議会 | 東海不動産公正取引協議会加盟 | ||
| 取扱い物件情報 | 物件詳細へ | ||
※各種情報と現状に差異がある場合は、現状優先となります。問い合わせをすることで、より詳しい条件、情報を確認する事ができます。
提供:アパマンショップ栄店
この物件が気になったら掲載期限まであと13日
プレサンス丸の内アドブルに条件(家賃・エリア)が近い物件一覧
| 写真 | 家賃 管理費等 | 敷金 礼金 | 間取り 専有面積 | 築年数 | 最寄り駅 所在地 | キープ | 詳細 |
|---|---|---|---|---|---|---|---|
マンション GRANVIA丸の内(1K/4階) | |||||||
![]() | 8.3万円 1.1万円 | なし なし | 1K 27.9m2 | 築1年 | 名古屋市鶴舞線 丸の内駅(愛知) 徒歩3分 名古屋市桜通線 国際センター駅(愛知) 徒歩12分 愛知県名古屋市中区丸の内1丁目 | 詳細を見る | |
マンション メイクスアート新栄Ⅲ(1K/10階) | |||||||
![]() | 5.95万円 8,000円 | なし なし | 1K 21.5m2 | 築1年 | 名古屋市東山線 新栄町駅(愛知) 徒歩8分 愛知県名古屋市中区新栄2丁目 | 詳細を見る | |
マンション メゾンドエトワール(ワンルーム/7階) | |||||||
| 4.2万円 6,000円 | なし なし | ワンルーム 21m2 | 築37年 | 名古屋市東山線 栄駅(名古屋) 徒歩10分 愛知県名古屋市中区栄三丁目20番20号 | 詳細を見る | ||
マンション S-RESIDENCE上前津サウス(1K/6階) | |||||||
![]() | 6.2万円 8,000円 | なし なし | 1K 23.04m2 | 築4年 | 名古屋市鶴舞線 上前津駅 徒歩7分 名古屋市名城線 東別院駅 徒歩10分 名古屋市鶴舞線 大須観音駅 徒歩13分 愛知県名古屋市中区橘1丁目 | 詳細を見る | |
マンション シティライフ栄(1DK/11階) | |||||||
![]() | 5.3万円 8,000円 | なし なし | 1DK 35m2 | 築38年 | 地下鉄名城線 矢場町駅 徒歩7分 地下鉄名城線 栄駅(名古屋) 徒歩12分 地下鉄鶴舞線 大須観音駅 徒歩13分 愛知県名古屋市中区栄 | 詳細を見る | |
マンション エステムコート名古屋上前津(1DK/2階) | |||||||
![]() | 7.45万円 5,340円 | なし なし | 1DK 28.01m2 | 築1年 | 名古屋市名城線 東別院駅 徒歩5分 名古屋市鶴舞線 上前津駅 徒歩6分 名古屋市名城線 上前津駅 徒歩9分 愛知県名古屋市中区富士見町 | 詳細を見る | |
マンション メイクス矢場町(1K/12階) | |||||||
![]() | 6.3万円 8,000円 | なし なし | 1K 21.66m2 | 築6年 | 名古屋市名城線 矢場町駅 徒歩9分 名古屋市東山線 新栄町駅(愛知) 徒歩12分 中央本線 鶴舞駅 徒歩14分 愛知県名古屋市中区新栄1丁目 | 詳細を見る | |
マンション プレサンス栄ライズ(1K/6階) | |||||||
![]() | 6.289万円 9,110円 | なし 7.2万円 | 1K 26.79m2 | 築10年 | 名古屋市東山線 新栄町駅(愛知) 徒歩4分 名古屋市桜通線 高岳駅 徒歩14分 中央本線 千種駅 徒歩14分 愛知県名古屋市中区新栄2丁目 | 詳細を見る | |







