賃貸アパート
いねながフラッツの賃貸物件情報(1LDK/2階)
| 家賃 | 管理費等 | 敷金 | 礼金 | 間取り | 専有面積 |
|---|---|---|---|---|---|
| 8.5万円 | なし | 8.5万円 | 17万円 | 1LDK | 38.92m2 |
入居決定でお祝い金最大100,000円
- 保証金
- -
- 償却・敷引
- -
- 築年数
- 築79年
- 所在階
- 2階
- 向き
- -
Point
お問い合わせはアルコ博多営業所まで
提供:(株)アルコ藤崎駅前営業所(SUUMO経由)

詳細情報 いねながフラッツ
物件紹介
いねながフラッツは地下鉄七隈線六本松駅から徒歩8分にあり、駅近で通勤通学に便利なアパートです。
このお部屋は2階以上に位置しているので、通行人や周囲の住人からの視線が気になりにくく、防犯面でも安心です。
人気の角部屋で周囲の居住者の生活音も気になりにくく、また、フローリングのお部屋なのでお掃除もラクラク。バス・トイレ別の仕様で、のんびりお風呂タイムも楽しめます。
ペット飼育の相談ができますので、あなたの大切な家族の一員も快適に暮らせるか、ぜひ確認してみてください。
このお部屋は2階以上に位置しているので、通行人や周囲の住人からの視線が気になりにくく、防犯面でも安心です。
人気の角部屋で周囲の居住者の生活音も気になりにくく、また、フローリングのお部屋なのでお掃除もラクラク。バス・トイレ別の仕様で、のんびりお風呂タイムも楽しめます。
ペット飼育の相談ができますので、あなたの大切な家族の一員も快適に暮らせるか、ぜひ確認してみてください。
お金・契約の情報
※「-」と表示されているものは、実際は料金が発生するものもございます。詳細はお問い合わせください。
| 家賃 | 8.5万円 | 管理費・共益費 | なし |
|---|---|---|---|
| 敷金 | 8.5万円 | 礼金 | 17万円 |
| 入居決定でお祝い金最大100,000円 | |||
| 保証金 | - | 償却・敷引 | - |
| 住宅保険料 | - | 更新料 | - |
| 契約形態 | 定期借家 | 契約期間 | 3年 |
| 入居・引渡期間 | 相談 | 現況 | - |
| 入居可能条件 | ペット相談 | ||
| 契約備考 | 【アルコでご契約の場合、初期費用のカード決済(分割)が可能です。決済手数料はアルコが負担いたします。(分割手数料はお客様負担となりますのでご了承ください)アルコへのお問い合わせお待ちしております。】 1LDK ペット相談 定期借家3年 損保【要】 バストイレ別、バルコニー、ガスコンロ対応、フローリング、シャワー付洗面台、室内洗濯置、陽当り良好、シューズボックス、角住戸、脱衣所、洗面所独立、洗面化粧台、駐輪場、押入、最上階、ペット相談、敷金1ヶ月、バイク置場、ディンプルキー、キッチンに窓、保証金不要、天袋、駅徒歩10分以内、和室、都市ガス、礼金2ヶ月 | ||
部屋の情報
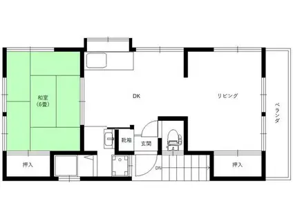
| 間取り | 1LDK | 専有面積 | 38.92m2 |
|---|---|---|---|
| 所在階 / 向き | 2階 / - | バルコニー面積 | - |
| 水道 / ガス | - | ||
| 設備 | バス・トイレ別、2階以上、角部屋、バルコニー、フローリング、洗髪洗面化粧台、コンロ:ガス、洗濯機:室内 | ||
| 当社物件ID | 160314128 | ||
建物の情報
| 建物名 | いねながフラッツ | ||
|---|---|---|---|
| 所在地 | 福岡県福岡市中央区六本松 | ||
| 交通 | 地下鉄七隈線 六本松駅 徒歩8分 地下鉄七隈線 桜坂駅 徒歩16分 地下鉄空港線 大濠公園駅 徒歩20分 | ||
| 階数 | 2階建 | 総戸数 | - |
| 築年月 | 1948年02月 / 築79年 | エレベーター | - |
| 駐車場 | なし | バイク置き場 | あり |
| 駐輪場 | あり | 管理人/管理会社 | - |
| 建物種別 | アパート | 建物構造 | 木造 |
この部屋の取扱い不動産会社
| 会社名 | (株)アルコ博多営業所(SUUMO経由) | ||
|---|---|---|---|
| 所在地 | 福岡県福岡市博多区博多駅東1-12-7 第13岡部ビル2階 | 交通 | - |
| 営業時間 | 10:00~19:00 | 定休日 | 無し |
| 免許番号 | 福岡県知事16246 | 取引態様 | 仲介 |
| 不動産会社管理番号 | 100485817960 | 当社管理番号 | 89 |
| 所属団体 | (公社)福岡県宅地建物取引業協会会員 | ||
| 公正取引協議会 | (一社)九州不動産公正取引協議会加盟 | ||
| 取扱い物件情報 | 物件詳細へ | ||
※各種情報と現状に差異がある場合は、現状優先となります。問い合わせをすることで、より詳しい条件、情報を確認する事ができます。
提供:(株)アルコ博多営業所(SUUMO経由)
この物件が気になったら掲載期限まであと11日
いねながフラッツに条件(家賃・エリア)が近い物件一覧
| 写真 | 家賃 管理費等 | 敷金 礼金 | 間取り 専有面積 | 築年数 | 最寄り駅 所在地 | キープ | 詳細 |
|---|---|---|---|---|---|---|---|
アパート グレイス ケイ(2LDK/3階) | |||||||
![]() | 9.65万円 3,500円 | なし 9.65万円 | 2LDK 61.08m2 | 新築 | 西鉄天神大牟田線 雑餉隈駅 徒歩16分 西鉄天神大牟田線 桜並木駅 徒歩17分 鹿児島本線 南福岡駅 徒歩22分 福岡県大野城市仲畑4丁目 | 詳細を見る | |
マンション コンフォルト春日西Ⅱ(2LDK/1階) | |||||||
![]() | 9.4万円 5,000円 | 9.4万円 9.4万円 | 2LDK 60.94m2 | 築1年 | 福岡県春日市 | 詳細を見る | |
マンション エステート・モア・平尾公園通(2K/4階) | |||||||
| 7万円 なし | なし 21万円 | 2K 24.99m2 | 築9年 | 西鉄天神大牟田線 西鉄平尾駅 徒歩2分 西鉄天神大牟田線 高宮駅(福岡) 徒歩13分 福岡市七隈線 薬院駅 徒歩15分 福岡県福岡市中央区那の川2丁目 | 詳細を見る | ||
マンション 第20シティコート春日(2LDK/2階) | |||||||
![]() | 6.6万円 3,000円 | なし なし | 2LDK 60.45m2 | 築44年 | 鹿児島本線 春日駅(福岡) 徒歩10分 鹿児島本線 南福岡駅 徒歩13分 西鉄天神大牟田線 春日原駅 徒歩17分 福岡県春日市宝町2丁目 | 詳細を見る | |
マンション 西鉄天神大牟田線 井尻駅 徒歩18分 築51年(3LDK/2階) | |||||||
![]() | 6.5万円 5,000円 | なし なし | 3LDK 63.8m2 | 築51年 | 西鉄天神大牟田線 井尻駅 徒歩18分 鹿児島本線 南福岡駅 徒歩18分 福岡県春日市須玖北4丁目 | 詳細を見る | |
アパート クリーク春日(1LDK/3階) | |||||||
![]() | 7万円 4,000円 | なし 7万円 | 1LDK 37.1m2 | 築1年 | 鹿児島本線 春日駅(福岡) 徒歩12分 鹿児島本線 南福岡駅 徒歩19分 西鉄天神大牟田線 春日原駅 徒歩21分 福岡県春日市光町3丁目 | 詳細を見る | |
アパート シェソア弥生(1LDK/1階) | |||||||
![]() | 6.2万円 3,800円 | なし 6.2万円 | 1LDK 45.82m2 | 築19年 | 鹿児島本線 南福岡駅 徒歩22分 鹿児島本線 春日駅(福岡) 徒歩28分 西鉄天神大牟田線 雑餉隈駅 徒歩28分 福岡県春日市弥生4丁目 | 詳細を見る | |
マンション ラフォーレ春日Ⅱ(3DK/3階) | |||||||
![]() | 6.5万円 なし | なし 13万円 | 3DK 64.1m2 | 築33年 | 鹿児島本線 春日駅(福岡) 徒歩16分 西鉄天神大牟田線 春日原駅 徒歩22分 鹿児島本線 南福岡駅 徒歩34分 福岡県春日市原町2丁目 | 詳細を見る | |







