賃貸アパート
ALEX保土ヶ谷の賃貸物件情報(ワンルーム/2階)
| 家賃 | 管理費等 | 敷金 | 礼金 | 間取り | 専有面積 |
|---|---|---|---|---|---|
| 5.8万円 | 5,000円 | なし | なし | ワンルーム | 12.5m2 |
入居決定でお祝い金最大100,000円
- 保証金
- -
- 償却・敷引
- -
- 築年数
- 築5年
- 所在階
- 2階
- 向き
- -
Point
横浜、川崎ユナイトシリーズ、初期費用9995円から10万円以下!家電付・TV・洗濯機・ケトル・掃除機・電子レンジ・炊飯器・冷蔵庫。家賃1カ月無料★当店は仲介手数料無料のため初期費用がお安くなります!
提供:(株)ヘヤカリル(SUUMO経由)

詳細情報 ALEX保土ヶ谷
物件紹介
ALEX保土ヶ谷はJR横須賀線保土ケ谷駅から徒歩3分にあり、駅近で通勤通学に便利なアパートです。
このお部屋は2階以上に位置しているので、通行人や周囲の住人からの視線が気になりにくく、防犯面でも安心。インターホンにはTVモニタもついているため、相手の顔を確認してから来客対応することができます。
おしゃれなデザイナーズ物件!フローリングのお部屋なのでお掃除もラクラク。バス・トイレ別の仕様で、のんびりお風呂タイムも楽しめます。
通信設備面では、インターネットが無料で使えるので、月々の出費を抑えられるのも魅力です。また、BSアンテナ・CSアンテナもありますので、おうち時間も充実するでしょう(別途工事、BS・CSの契約料等が必要な場合あり)。
共用部には宅配ボックスが設定されているので、不在の時にも荷物を受け取ることができます。
このお部屋は2階以上に位置しているので、通行人や周囲の住人からの視線が気になりにくく、防犯面でも安心。インターホンにはTVモニタもついているため、相手の顔を確認してから来客対応することができます。
おしゃれなデザイナーズ物件!フローリングのお部屋なのでお掃除もラクラク。バス・トイレ別の仕様で、のんびりお風呂タイムも楽しめます。
通信設備面では、インターネットが無料で使えるので、月々の出費を抑えられるのも魅力です。また、BSアンテナ・CSアンテナもありますので、おうち時間も充実するでしょう(別途工事、BS・CSの契約料等が必要な場合あり)。
共用部には宅配ボックスが設定されているので、不在の時にも荷物を受け取ることができます。
お金・契約の情報
※「-」と表示されているものは、実際は料金が発生するものもございます。詳細はお問い合わせください。
| 家賃 | 5.8万円 | 管理費・共益費 | 5,000円 |
|---|---|---|---|
| 敷金 | なし | 礼金 | なし |
| フリーレント | あり | ||
| 入居決定でお祝い金最大100,000円 | |||
| 保証金 | - | 償却・敷引 | - |
| 住宅保険料 | - | 更新料 | - |
| 保証会社利用 | 必須 | 保証会社名 | - |
| 保証会社費用 | - | 保証会社備考 | 保証会社利用必 保証料はパックプランに含まれます。退去時クリーニング費用27500円 短期解約違約金あり。お問合せ下さい |
| 契約形態 | - | 契約期間 | - |
| 入居・引渡期間 | - | 現況 | - |
| 入居可能条件 | 事務所可 | ||
| 契約備考 | ★★★スーモ非公開のお部屋はホームページからご覧ください。お得なキャンペーン情報、公式LINEからの初期費用、入居時期等ご質問、ご来店予約歓迎です。 更新料 新賃料1.00ヶ月分 室内清掃費用 27500円 口座振替 月額440円 ワンルーム 二人入居可/フリーレント1ヶ月 普通借家2年 損保【1.7万円2年】 バストイレ別、エアコン、フローリング、TVインターホン、室内洗濯置、シューズボックス、温水洗浄便座、駐輪場、宅配ボックス、光ファイバー、礼金不要、最上階、BS・CS、敷金不要、防犯カメラ、IHクッキングヒーター、照明付、保証人不要、冷蔵庫、仲介手数料不要、二人入居相談、バイク置場、デザイナーズ、2沿線利用可、CS、ネット専用回線、駅まで平坦、洗濯機、ネット使用料不要、フリーレント、ダブルロックキー、保証金不要、事務所相談、築2年以内、24時間換気システム、電子レンジ、家電付、家具付、耐火構造、耐震構造、2駅利用可、3駅以上利用可、3沿線以上利用可、駅徒歩5分以内、駅徒歩10分以内、プロパンガス、室内物干機、玄関収納、BS、敷金・礼金不要、保証会社利用可、初期費用5万円以下、IT重説対応物件、初期費用カード決済可、全室照明付 入居日:'25年12月下旬 | ||
部屋の情報
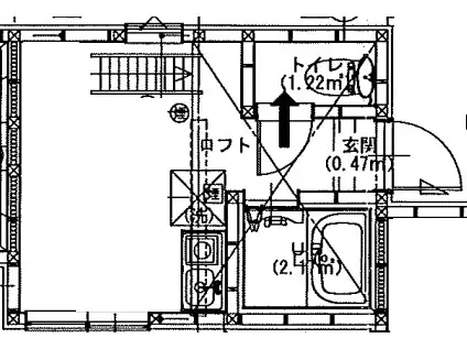
| 間取り | ワンルーム | 専有面積 | 12.5m2 |
|---|---|---|---|
| 所在階 / 向き | 2階 / - | バルコニー面積 | - |
| 水道 / ガス | - | ||
| 設備 | バス・トイレ別、2階以上、テレビドアホン、宅配ボックス、インターネット対応、エアコン、温水洗浄便座、フローリング、コンロ:IH、デザイナーズ、CSアンテナ、BSアンテナ、インターネット使用料無料、洗濯機:室内 | ||
| 当社物件ID | 102029209 | ||
建物の情報
| 建物名 | ALEX保土ヶ谷 | ||
|---|---|---|---|
| 所在地 | 神奈川県横浜市保土ケ谷区岩井町 | ||
| 交通 | JR横須賀線 保土ケ谷駅 徒歩3分 相鉄本線 天王町駅 徒歩18分 京急本線 井土ケ谷駅 徒歩18分 | ||
| 階数 | 2階建 | 総戸数 | - |
| 築年月 | 2021年12月 / 築5年 | エレベーター | - |
| 駐車場 | なし | バイク置き場 | あり |
| 駐輪場 | あり | 管理人/管理会社 | - |
| 周辺環境 | その他 セブンイレブン 横浜岩井町店(コンビニ)まで111m その他 セブンイレブン 横浜帷子町2丁目店(コンビニ)まで262m その他 保土ケ谷警察署 保土ケ谷橋交番(警察署・交番)まで187m その他 まいばすけっと 保土ヶ谷駅東口店(スーパー)まで256m その他 SUPER MARKET FUJI(スーパーマーケットフジ)(スーパー)まで307m | ||
| 建物種別 | アパート | 建物構造 | 木造 |
この部屋の取扱い不動産会社
| 会社名 | (株)ヘヤカリル(SUUMO経由) | ||
|---|---|---|---|
| 所在地 | 神奈川県横浜市中区相生町2-42-3 | 交通 | - |
| 営業時間 | 9:00~19:00 | 定休日 | 水曜日 |
| 免許番号 | 神奈川県知事31659 | 取引態様 | 仲介 |
| 不動産会社管理番号 | 100469819869 | 当社管理番号 | 89 |
| 所属団体 | (公社)全日本不動産協会神奈川県本部会員 | ||
| 公正取引協議会 | (公社)首都圏不動産公正取引協議会加盟 | ||
| 取扱い物件情報 | 物件詳細へ | ||
※各種情報と現状に差異がある場合は、現状優先となります。問い合わせをすることで、より詳しい条件、情報を確認する事ができます。
提供:(株)ヘヤカリル(SUUMO経由)
この物件が気になったら掲載期限まであと10日
ALEX保土ヶ谷に条件(家賃・エリア)が近い物件一覧
| 写真 | 家賃 管理費等 | 敷金 礼金 | 間取り 専有面積 | 築年数 | 最寄り駅 所在地 | キープ | 詳細 |
|---|---|---|---|---|---|---|---|
アパート ティアラ新川崎(ワンルーム/1階) | |||||||
![]() | 6.1万円 3,500円 | なし 6.1万円 | ワンルーム 11.11m2 | 築8年 | JR南武線 鹿島田駅 徒歩7分 JR横須賀線 新川崎駅 徒歩12分 JR南武線 矢向駅 徒歩14分 神奈川県川崎市幸区塚越 | 詳細を見る | |
アパート レオパレスPOEM(1K/3階) | |||||||
![]() | 6.3万円 7,000円 | なし なし | 1K 23.18m2 | 築25年 | 東急田園都市線 つきみ野駅 徒歩12分 東急田園都市線 南町田グランベリーパーク駅 徒歩21分 小田急江ノ島線 中央林間駅 徒歩24分 神奈川県大和市下鶴間 | 詳細を見る | |
アパート レオパレスSWING HILL(1K/2階) | |||||||
![]() | 5.7万円 5,000円 | なし なし | 1K 19.87m2 | 築21年 | 横須賀線 衣笠駅 徒歩13分 神奈川県横須賀市平作7丁目 | 詳細を見る | |
アパート カーサ・サリタ(ワンルーム/1階) | |||||||
![]() | 6.1万円 3,000円 | なし なし | ワンルーム 18.52m2 | 築1年 | 相鉄本線 和田町駅 徒歩11分 相鉄新横浜線 羽沢横浜国大駅 徒歩24分 ブルーライン 三ツ沢上町駅 徒歩24分 神奈川県横浜市保土ケ谷区峰岡町 | 詳細を見る | |
アパート 井土ヶ谷下町アパート(1K/1階) | |||||||
![]() | 7万円 4,000円 | なし なし | 1K 22.99m2 | 築1年 | 京急本線 井土ケ谷駅 徒歩8分 ブルーライン 蒔田駅 徒歩9分 京急本線 南太田駅 徒歩10分 神奈川県横浜市南区井土ケ谷下町 | 詳細を見る | |
マンション メゾンレトアール(ワンルーム/1階) | |||||||
![]() | 3.5万円 1,000円 | なし なし | ワンルーム 16.75m2 | 築35年 | 小田急線 読売ランド前駅 徒歩8分 小田急線 生田駅(神奈川) 徒歩15分 小田急線 百合ケ丘駅 徒歩23分 神奈川県川崎市多摩区西生田 | 詳細を見る | |
アパート グリーンライン 東山田駅 徒歩20分 築7年(1K/1階) | |||||||
![]() | 6.8万円 5,500円 | なし なし | 1K 25.17m2 | 築7年 | グリーンライン 東山田駅 徒歩20分 グリーンライン 高田駅(神奈川) 徒歩28分 グリーンライン 北山田駅(神奈川) 徒歩29分 神奈川県川崎市高津区久末 | 詳細を見る | |
アパート クレセント渡辺 D(1K/1階) | |||||||
![]() | 6.2万円 1,000円 | 6.2万円 なし | 1K 26.44m2 | 築36年 | 南武線 津田山駅 徒歩4分 東急田園都市線 溝の口駅 徒歩18分 神奈川県川崎市高津区下作延5丁目 | 詳細を見る | |









