賃貸アパート
メゾンクレール新町の賃貸物件情報(1LDK/2階)
| 家賃 | 管理費等 | 敷金 | 礼金 | 間取り | 専有面積 |
|---|---|---|---|---|---|
| 5.7万円 | 4,000円 | なし | 5.7万円 | 1LDK | 32.29m2 |
入居決定でお祝い金最大100,000円
Point
熊本市中心部へアクセスしやすい新町エリア。生活利便施設が身近にそろい、落ち着いた住環境が魅力です。単身の方にも暮らしやすい立地で、毎日の通勤・通学にも便利です。
提供:ユーミーネット白山通り店ユーミーコーポレーション(株)(SUUMO経由)

詳細情報 メゾンクレール新町
物件紹介
メゾンクレール新町は熊本市電上熊本線新町駅から徒歩4分にあり、駅近で通勤通学に便利なアパートです。
このお部屋は2階以上に位置しているので、通行人や周囲の住人からの視線が気になりにくく、防犯面でも安心。建物のエントランスはオートロックがついており、インターホンにはTVモニタもついているため、相手の顔を確認してから来客対応することができます。
フローリングのお部屋なのでお掃除もラクラク。キッチンはシステムキッチン仕様になっていますので、お料理好きの方にもぴったり。バス・トイレは別なので、のんびりお風呂タイムも楽しめるでしょう。また、雨の日でも浴室乾燥機を使えば、お洗濯も問題ありません。
通信設備面では、インターネットが無料で使えるので、月々の出費を抑えられるのも魅力です(別途工事等が必要な場合あり)。
共用部には宅配ボックスが設定されているので、不在の時にも荷物を受け取ることができます。
このお部屋は2階以上に位置しているので、通行人や周囲の住人からの視線が気になりにくく、防犯面でも安心。建物のエントランスはオートロックがついており、インターホンにはTVモニタもついているため、相手の顔を確認してから来客対応することができます。
フローリングのお部屋なのでお掃除もラクラク。キッチンはシステムキッチン仕様になっていますので、お料理好きの方にもぴったり。バス・トイレは別なので、のんびりお風呂タイムも楽しめるでしょう。また、雨の日でも浴室乾燥機を使えば、お洗濯も問題ありません。
通信設備面では、インターネットが無料で使えるので、月々の出費を抑えられるのも魅力です(別途工事等が必要な場合あり)。
共用部には宅配ボックスが設定されているので、不在の時にも荷物を受け取ることができます。
お金・契約の情報
※「-」と表示されているものは、実際は料金が発生するものもございます。詳細はお問い合わせください。
| 家賃 | 5.7万円 | 管理費・共益費 | 4,000円 |
|---|---|---|---|
| 敷金 | なし | 礼金 | 5.7万円 |
| 入居決定でお祝い金最大100,000円 | |||
| 保証金 | - | 償却・敷引 | - |
| 住宅保険料 | - | 更新料 | - |
| 保証会社利用 | 必須 | 保証会社名 | - |
| 保証会社費用 | - | 保証会社備考 | 保証会社利用必 利用必須初回保証料:月額賃料の60%/更新保証料なし/毎月保証料800円 |
| 契約形態 | - | 契約期間 | - |
| 入居・引渡期間 | - | 現況 | - |
| 入居可能条件 | 事務所可 | ||
| 契約備考 | 合計7.81万円(内訳:退去時清掃代55000円/インターネット初期工事代5500円/消毒費17600円) 24時間サポート880円/月 1LDK 事務所利用相談 普通借家2年 損保【2万円2年】 バストイレ別、バルコニー、ガスコンロ対応、フローリング、TVインターホン、浴室乾燥機、オートロック、シューズボックス、システムキッチン、温水洗浄便座、脱衣所、洗面所独立、洗面化粧台、宅配ボックス、光ファイバー、敷金不要、ネット使用料不要、事務所相談、築2年以内、24時間換気システム、複層ガラス、未入居、駅徒歩5分以内、敷地内ごみ置き場、プロパンガス、洗面所にドア、礼金1ヶ月、IT重説対応物件 入居日:'26年5月下旬 | ||
部屋の情報
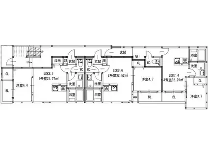
| 間取り | 1LDK | 専有面積 | 32.29m2 |
|---|---|---|---|
| 所在階 / 向き | 2階 / - | バルコニー面積 | - |
| 水道 / ガス | - | ||
| 設備 | バス・トイレ別、2階以上、オートロック、テレビドアホン、宅配ボックス、浴室乾燥機、インターネット対応、システムキッチン、温水洗浄便座、バルコニー、フローリング、洗髪洗面化粧台、コンロ:ガス、インターネット使用料無料 | ||
| 当社物件ID | 160548359 | ||
建物の情報
| 建物名 | メゾンクレール新町 | ||
|---|---|---|---|
| 所在地 | 熊本県熊本市中央区新町 | ||
| 交通 | 熊本市電上熊本線 新町駅(熊本) 徒歩4分 | ||
| 階数 | 3階建 | 総戸数 | 9戸 |
| 築年月 | 2026年05月 / 新築 | エレベーター | - |
| 駐車場 | なし | バイク置き場 | - |
| 駐輪場 | - | 管理人/管理会社 | - |
| 周辺環境 | その他 のぞみ薬局(ドラッグストア)まで94m その他 you meマート(ゆめマート)新町(スーパー)まで152m その他 セブンイレブン 熊本細工町店(コンビニ)まで306m その他 新町薬局(ドラッグストア)まで276m その他 セブンイレブン 熊本横手2丁目店(コンビニ)まで270m その他 船場調剤薬局(ドラッグストア)まで444m | ||
| 建物種別 | アパート | 建物構造 | 木造 |
この部屋の取扱い不動産会社
| 会社名 | ユーミーネット白山通り店ユーミーコーポレーション(株)(SUUMO経由) | ||
|---|---|---|---|
| 所在地 | 熊本県熊本市中央区九品寺5-8-7 | 交通 | - |
| 営業時間 | 10:00~18:00 | 定休日 | 水曜・祝日 |
| 免許番号 | 国土交通大臣9190 | 取引態様 | 仲介 |
| 不動産会社管理番号 | 100493234851 | 当社管理番号 | 89 |
| 所属団体 | (公社)熊本県宅地建物取引業協会会員 | ||
| 公正取引協議会 | (一社)九州不動産公正取引協議会加盟 | ||
| 取扱い物件情報 | 物件詳細へ | ||
※各種情報と現状に差異がある場合は、現状優先となります。問い合わせをすることで、より詳しい条件、情報を確認する事ができます。
提供:ユーミーネット白山通り店ユーミーコーポレーション(株)(SUUMO経由)
この物件が気になったら掲載期限まであと10日
メゾンクレール新町に条件(家賃・エリア)が近い物件一覧
| 写真 | 家賃 管理費等 | 敷金 礼金 | 間取り 専有面積 | 築年数 | 最寄り駅 所在地 | キープ | 詳細 |
|---|---|---|---|---|---|---|---|
マンション ヒルクレストELGRAND大江(1LDK/6階) | |||||||
![]() | 7.9万円 5,000円 | なし 15.8万円 | 1LDK 41.58m2 | 築6年 | 熊本市健軍線 九品寺交差点駅 徒歩19分 熊本県熊本市中央区大江1丁目 | 詳細を見る | |
マンション VIN DE NOBLE(1LDK/2階) | |||||||
![]() | 6.5万円 4,000円 | なし 6.5万円 | 1LDK 44m2 | 築7年 | 熊本市電健軍線 河原町駅(熊本) 徒歩9分 熊本市電健軍線 慶徳校前駅 徒歩12分 熊本市電上熊本線 西辛島町駅 徒歩15分 熊本県熊本市中央区本荘 | 詳細を見る | |
マンション アヴァンティ(1K/1階) | |||||||
![]() | 3.7万円 2,400円 | なし なし | 1K 26.32m2 | 築22年 | 熊本県熊本市中央区 | 詳細を見る | |
マンション エンゼルハイム九品寺(1K/8階) | |||||||
![]() | 4.1万円 4,000円 | なし なし | 1K 22.52m2 | 築29年 | 熊本市電健軍線 九品寺交差点駅 徒歩3分 熊本市電健軍線 水道町駅 徒歩6分 熊本市電健軍線 交通局前駅(熊本) 徒歩6分 熊本県熊本市中央区九品寺 | 詳細を見る | |
マンション エレガンス藤崎宮(ワンルーム/5階) | |||||||
![]() | 4.7万円 4,000円 | なし なし | ワンルーム 30.6m2 | 築5年 | 熊本電気鉄道 藤崎宮前駅 徒歩5分 熊本市電健軍線 水道町駅 徒歩12分 熊本電気鉄道 黒髪町駅 徒歩14分 熊本県熊本市中央区北千反畑町 | 詳細を見る | |
マンション ヴィルグラス(ワンルーム/3階) | |||||||
![]() | 3.5万円 2,000円 | なし なし | ワンルーム 22m2 | 築32年 | 熊本市電健軍線 熊本駅前駅 徒歩12分 JR鹿児島本線 熊本駅 徒歩12分 熊本県熊本市中央区本山町 | 詳細を見る | |
マンション MRRくまもとRESIDENCE(ワンルーム/7階) | |||||||
![]() | 4万円 5,000円 | なし なし | ワンルーム 24.4m2 | 築18年 | 豊肥本線 南熊本駅 徒歩8分 熊本県熊本市中央区南熊本1丁目 | 詳細を見る | |
アパート メイプル帯山(1K/2階) | |||||||
![]() | 3.6万円 2,000円 | なし なし | 1K 28.33m2 | 築27年 | 熊本県熊本市中央区 | 詳細を見る | |
熊本市中央区の町名から探す
熊本市中央区の部屋を間取りから探す
熊本市中央区の駅から探す
熊本市中央区と隣接している市区町村から探す
- 熊本市中央区(5,188)









