賃貸マンション
レジデンシア麻布十番の賃貸物件情報(1K/4階)
| 家賃 | 管理費等 | 敷金 | 礼金 | 間取り | 専有面積 |
|---|---|---|---|---|---|
| 11万円 | なし | 22万円 | なし | 1K | 19.2m2 |
入居決定でお祝い金最大100,000円
- 保証金
- -
- 償却・敷引
- -
- 築年数
- 築25年
- 所在階
- 4階
- 向き
- 北西
Point
都心の物件は弊社東京プレミアム不動産株式会社へお任せ下さい。未公開物件を含めご提案をさせていただきます。また、ご内見希望の場合はお気軽にお問い合わせ下さい。
提供:(株)セイ・コーポレーション(SUUMO経由)

詳細情報 レジデンシア麻布十番
物件紹介
レジデンシア麻布十番は東京メトロ南北線麻布十番駅から徒歩1分にあり、駅近で通勤通学に便利なマンションです。
このお部屋は2階以上に位置しているので、通行人や周囲の住人からの視線が気になりにくく、防犯面でも安心。建物のエントランスはオートロックがついており、インターホンにはTVモニタもついているため、相手の顔を確認してから来客対応することができます。
フローリングのお部屋なのでお掃除もラクラク。キッチンはシステムキッチン仕様になっていますので、お料理好きの方にもぴったり。バス・トイレは別なので、のんびりお風呂タイムも楽しめるでしょう。また、雨の日でも浴室乾燥機を使えば、お洗濯も問題ありません。
通信設備面では、インターネット接続が可能です。また、BSアンテナ・CSアンテナがありCATVにも対応しているので、おうち時間も充実するでしょう(別途工事、契約料が必要な場合あり)。
建物にはエレベーターがついているので、重い荷物があっても安心。共用部には宅配ボックスが設定されているので、不在の時にも荷物を受け取ることができます。
このお部屋は2階以上に位置しているので、通行人や周囲の住人からの視線が気になりにくく、防犯面でも安心。建物のエントランスはオートロックがついており、インターホンにはTVモニタもついているため、相手の顔を確認してから来客対応することができます。
フローリングのお部屋なのでお掃除もラクラク。キッチンはシステムキッチン仕様になっていますので、お料理好きの方にもぴったり。バス・トイレは別なので、のんびりお風呂タイムも楽しめるでしょう。また、雨の日でも浴室乾燥機を使えば、お洗濯も問題ありません。
通信設備面では、インターネット接続が可能です。また、BSアンテナ・CSアンテナがありCATVにも対応しているので、おうち時間も充実するでしょう(別途工事、契約料が必要な場合あり)。
建物にはエレベーターがついているので、重い荷物があっても安心。共用部には宅配ボックスが設定されているので、不在の時にも荷物を受け取ることができます。
お金・契約の情報
※「-」と表示されているものは、実際は料金が発生するものもございます。詳細はお問い合わせください。
| 家賃 | 11万円 | 管理費・共益費 | なし |
|---|---|---|---|
| 敷金 | 22万円 | 礼金 | なし |
| 入居決定でお祝い金最大100,000円 | |||
| 保証金 | - | 償却・敷引 | - |
| 住宅保険料 | - | 更新料 | - |
| 保証会社利用 | 必須 | 保証会社名 | リクルートフォレントインシュア |
| 保証会社費用 | - | 保証会社備考 | オリコフォレントインシュア利用必 初回保証料50%、月額保証料1,000円 |
| 契約形態 | 定期借家 | 契約期間 | 2年 |
| 入居・引渡期間 | 即時 | 現況 | - |
| 契約備考 | 巡回管理/オートロック・宅配ボックス・エレベーター・駐輪場・追い炊き機能付きバス・シャワートイレ・独立洗面台・定期借家契約再契約相談可 1K 単身者可/子供可/事務所利用不可/ルームシェア不可 定期借家2年 損保【1.8万円2年】 バストイレ別、バルコニー、エアコン、クロゼット、フローリング、TVインターホン、浴室乾燥機、オートロック、室内洗濯置、シューズボックス、システムキッチン、温水洗浄便座、エレベーター、洗面化粧台、2口コンロ、駐輪場、宅配ボックス、光ファイバー、即入居可、防犯カメラ、グリル付、保証人不要、ガスレンジ付、駅まで平坦、24時間換気システム、耐火構造、耐震構造、3駅以上利用可、3沿線以上利用可、駅徒歩5分以内、24時間ゴミ出し可、敷地内ごみ置き場、都市ガス、BS | ||
部屋の情報
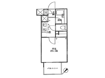
| 間取り | 1K | 専有面積 | 19.2m2 |
|---|---|---|---|
| 所在階 / 向き | 4階 / 北西 | バルコニー面積 | - |
| 水道 / ガス | - | ||
| 設備 | バス・トイレ別、2階以上、オートロック、テレビドアホン、宅配ボックス、浴室乾燥機、インターネット対応、システムキッチン、エアコン、エレベーター、温水洗浄便座、バルコニー、フローリング、2口コンロ、コンロ:ガス、BSアンテナ、洗濯機:室内 | ||
| 当社物件ID | 2140258 | ||
建物の情報
| 建物名 | レジデンシア麻布十番 | ||
|---|---|---|---|
| 所在地 | 東京都港区麻布十番 | ||
| 交通 | 東京メトロ南北線 麻布十番駅 徒歩1分 都営大江戸線 赤羽橋駅 徒歩10分 東京メトロ日比谷線 六本木駅 徒歩14分 | ||
| 階数 | 12階建 | 総戸数 | 88戸 |
| 築年月 | 2001年06月 / 築25年 | エレベーター | あり |
| 駐車場 | なし | バイク置き場 | - |
| 駐輪場 | あり | 管理人/管理会社 | - |
| 周辺環境 | その他 成城石井麻布十番店(スーパー)まで181m その他 ローソン麻布十番一丁目店(コンビニ)まで93m その他 ファミリーマート麻布十番商店街通り店(コンビニ)まで147m その他 スターフルーツ(スーパー)まで67m その他 スターバックス(飲食店)まで143m その他 マクドナルド(飲食店)まで195m | ||
| 建物種別 | マンション | 建物構造 | SRC(鉄骨鉄筋コンクリート) |
この部屋の取扱い不動産会社
| 会社名 | 東京プレミアム不動産(株)(SUUMO経由) | ||
|---|---|---|---|
| 所在地 | 東京都港区南青山7-14-6 南青山TCビル5階 | 交通 | - |
| 営業時間 | 10:00~19:00 | 定休日 | 水曜日 |
| 免許番号 | 東京都知事91837 | 取引態様 | 仲介 |
| 不動産会社管理番号 | 100478512300 | 当社管理番号 | 89 |
| 所属団体 | (公社)東京都宅地建物取引業協会会員 | ||
| 公正取引協議会 | (公社)首都圏不動産公正取引協議会加盟 | ||
| 取扱い物件情報 | 物件詳細へ | ||
※各種情報と現状に差異がある場合は、現状優先となります。問い合わせをすることで、より詳しい条件、情報を確認する事ができます。
提供:東京プレミアム不動産(株)(SUUMO経由)
この物件が気になったら掲載期限まであと10日
レジデンシア麻布十番に条件(家賃・エリア)が近い物件一覧
| 写真 | 家賃 管理費等 | 敷金 礼金 | 間取り 専有面積 | 築年数 | 最寄り駅 所在地 | キープ | 詳細 |
|---|---|---|---|---|---|---|---|
マンション パークアクシス亀戸中央公園(1DK/10階) | |||||||
![]() | 14.5万円 1万円 | 14.5万円 14.5万円 | 1DK 29.04m2 | 築19年 | 東武亀戸線 亀戸水神駅 徒歩9分 JR総武線 亀戸駅 徒歩10分 都営新宿線 大島駅(東京) 徒歩14分 東京都江東区亀戸 | 詳細を見る | |
マンション プレール東神田(1K/4階) | |||||||
![]() | 9万円 1万円 | 9万円 9万円 | 1K 24.51m2 | 築25年 | 東京都新宿線 岩本町駅 徒歩4分 山手線 秋葉原駅 徒歩6分 東京地下鉄日比谷線 小伝馬町駅 徒歩10分 東京都千代田区東神田2丁目 | 詳細を見る | |
マンション ヴェルステージ日本橋人形町(1K/2階) | |||||||
![]() | 8.5万円 1万円 | 8.5万円 8.5万円 | 1K 20.13m2 | 築24年 | 東京メトロ日比谷線 人形町駅 徒歩1分 東京メトロ半蔵門線 水天宮前駅 徒歩6分 JR総武線快速 馬喰町駅 徒歩10分 東京都中央区日本橋堀留町 | 詳細を見る | |
マンション ライオンズフォーシア清澄白河(1K/11階) | |||||||
![]() | 14.5万円 1万円 | 14.5万円 なし | 1K 25.31m2 | 築5年 | 都営大江戸線 森下駅(東京) 徒歩4分 東京メトロ半蔵門線 清澄白河駅 徒歩7分 都営新宿線 菊川駅(東京) 徒歩13分 東京都江東区高橋 | 詳細を見る | |
一戸建て 東京地下鉄有楽町線 豊洲駅 徒歩12分 築51年(3DK) | |||||||
![]() | 13.8万円 なし | 13.8万円 13.8万円 | 3DK 64.71m2 | 築51年 | 東京地下鉄有楽町線 豊洲駅 徒歩12分 京葉線 潮見駅 徒歩20分 東京地下鉄東西線 木場駅 徒歩24分 東京都江東区枝川1丁目 | 詳細を見る | |
マンション グロースメゾン亀戸(1K/12階) | |||||||
![]() | 9.5万円 9,000円 | 9.5万円 9.5万円 | 1K 20.46m2 | 築21年 | 総武・中央緩行線 亀戸駅 徒歩2分 東武鉄道亀戸線 亀戸駅 徒歩2分 東京都新宿線 西大島駅 徒歩13分 東京都江東区亀戸6丁目 | 詳細を見る | |
マンション グランド・ガーラ銀座(1K/7階) | |||||||
![]() | 11.8万円 1.2万円 | 11.8万円 11.8万円 | 1K 25.09m2 | 築19年 | 東京地下鉄有楽町線 新富町駅(東京) 徒歩2分 東京地下鉄日比谷線 東銀座駅 徒歩5分 東京地下鉄銀座線 銀座駅 徒歩8分 東京都中央区銀座1丁目 | 詳細を見る | |








