賃貸マンション
フォレスト梅田西の賃貸物件情報(1K/3階)
| 家賃 | 管理費等 | 敷金 | 礼金 | 間取り | 専有面積 |
|---|---|---|---|---|---|
| 6.59万円 | 7,000円 | なし | なし | 1K | 24.22m2 |
入居決定でお祝い金最大100,000円
- 保証金
- -
- 償却・敷引
- -
- 築年数
- 築19年
- 所在階
- 3階
- 向き
- 北
Point
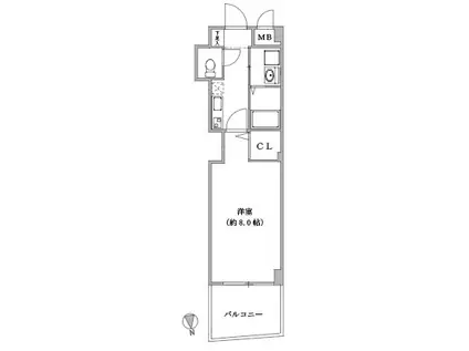
スーパー・コンビニは3分圏内、JR大阪駅までは徒歩10分。利便性と居住環境を兼ね備えた立地です。3階部分、洋室8.0帖。キッチンは2口ガスコンロ付き。脱衣所付のバストイレ別。
提供:みやざき不動産事務所(SUUMO経由)

詳細情報 フォレスト梅田西
物件紹介
フォレスト梅田西はJR大阪環状線福島駅から徒歩4分にあり、駅近で通勤通学に便利なマンションです。
このお部屋は2階以上に位置しているので、通行人や周囲の住人からの視線が気になりにくく、防犯面でも安心。建物のエントランスはオートロックがついており、インターホンにはTVモニタもついているため、相手の顔を確認してから来客対応することができます。
キッチンはシステムキッチン仕様になっていますので、お料理好きの方にもぴったり。また、バス・トイレは別で、のんびりお風呂タイムも楽しめるでしょう。
通信設備面では、インターネット接続が可能です。また、CATVにも対応しているので、おうち時間も充実するでしょう(別途工事、契約料が必要な場合あり)。
建物にはエレベーターがついているので、重い荷物があっても安心。共用部には宅配ボックスが設定されているので、不在の時にも荷物を受け取ることができます。
このお部屋は2階以上に位置しているので、通行人や周囲の住人からの視線が気になりにくく、防犯面でも安心。建物のエントランスはオートロックがついており、インターホンにはTVモニタもついているため、相手の顔を確認してから来客対応することができます。
キッチンはシステムキッチン仕様になっていますので、お料理好きの方にもぴったり。また、バス・トイレは別で、のんびりお風呂タイムも楽しめるでしょう。
通信設備面では、インターネット接続が可能です。また、CATVにも対応しているので、おうち時間も充実するでしょう(別途工事、契約料が必要な場合あり)。
建物にはエレベーターがついているので、重い荷物があっても安心。共用部には宅配ボックスが設定されているので、不在の時にも荷物を受け取ることができます。
お金・契約の情報
※「-」と表示されているものは、実際は料金が発生するものもございます。詳細はお問い合わせください。
| 家賃 | 6.59万円 | 管理費・共益費 | 7,000円 |
|---|---|---|---|
| 敷金 | なし | 礼金 | なし |
| 入居決定でお祝い金最大100,000円 | |||
| 保証金 | - | 償却・敷引 | - |
| 住宅保険料 | - | 更新料 | - |
| 保証会社利用 | 必須 | 保証会社名 | 全保連 |
| 保証会社費用 | - | 保証会社備考 | 全保連利用必 初回40%・更新1万円(1年毎) 又は初回100%のみ |
| 契約形態 | - | 契約期間 | - |
| 入居・引渡期間 | 即時 | 現況 | - |
| 契約備考 | 巡回管理 水道代:月額2000円(税込) 安心サポート:月額880円(税込) 退去時清掃代:27500円(税込、退去時) 短期解約違約金:1年未満の解約で総賃料2ヶ月分 1K 単身者限定/子供不可/事務所利用不可/ルームシェア不可 損保【2万円2年】 バストイレ別、バルコニー、エアコン、クロゼット、TVインターホン、オートロック、室内洗濯置、シューズボックス、システムキッチン、エレベーター、洗面所独立、2口コンロ、駐輪場、宅配ボックス、CATV、光ファイバー、即入居可、防犯カメラ、CATVインターネット、ガスレンジ付、クッションフロア、駅まで平坦、内装リフォーム済、人感照明センサー、3沿線以上利用可、駅徒歩5分以内、24時間ゴミ出し可、敷地内ごみ置き場、都市ガス、高速ネット対応、敷金・礼金不要 | ||
部屋の情報
| 間取り | 1K | 専有面積 | 24.22m2 |
|---|---|---|---|
| 所在階 / 向き | 3階 / 北 | バルコニー面積 | - |
| 水道 / ガス | - | ||
| 設備 | バス・トイレ別、2階以上、オートロック、テレビドアホン、宅配ボックス、インターネット対応、システムキッチン、エアコン、エレベーター、バルコニー、洗髪洗面化粧台、2口コンロ、コンロ:ガス、CATV、洗濯機:室内 | ||
| 当社物件ID | 966663 | ||
建物の情報
| 建物名 | フォレスト梅田西 | ||
|---|---|---|---|
| 所在地 | 大阪府大阪市福島区福島 | ||
| 交通 | JR大阪環状線 福島駅(阪神) 徒歩4分 阪神本線 福島駅(阪神) 徒歩7分 JR東西線 新福島駅 徒歩7分 | ||
| 階数 | 12階建 | 総戸数 | 56戸 |
| 築年月 | 2007年03月 / 築19年 | エレベーター | あり |
| 駐車場 | なし | バイク置き場 | - |
| 駐輪場 | あり | 管理人/管理会社 | - |
| 周辺環境 | その他 Maxvaluエクスプレス西梅田店(スーパー)まで190m その他 セブンイレブン大阪福島6丁目店(コンビニ)まで80m その他 ルクア大阪(ショッピングセンター)まで700m その他 ローソン福島7丁目店(コンビニ)まで90m その他 大阪福島6丁目北店(コンビニ)まで160m その他 新梅田シティ(ショッピングセンター)まで550m | ||
| 建物種別 | マンション | 建物構造 | 鉄骨造 |
この部屋の取扱い不動産会社
| 会社名 | みやざき不動産事務所(SUUMO経由) | ||
|---|---|---|---|
| 所在地 | 大阪府大阪市西区阿波座2-3-23 | 交通 | - |
| 営業時間 | 午前10時~午後7時 | 定休日 | 第1・第3火曜日、毎週水曜日 |
| 免許番号 | 大阪府知事59612 | 取引態様 | 仲介 |
| 不動産会社管理番号 | 100480196255 | 当社管理番号 | 89 |
| 所属団体 | (一社)大阪府宅地建物取引業協会会員 | ||
| 公正取引協議会 | (公社)近畿地区不動産公正取引協議会加盟 | ||
| 取扱い物件情報 | 物件詳細へ | ||
※各種情報と現状に差異がある場合は、現状優先となります。問い合わせをすることで、より詳しい条件、情報を確認する事ができます。
提供:みやざき不動産事務所(SUUMO経由)
この物件が気になったら掲載期限まであと10日
フォレスト梅田西に条件(家賃・エリア)が近い物件一覧
| 写真 | 家賃 管理費等 | 敷金 礼金 | 間取り 専有面積 | 築年数 | 最寄り駅 所在地 | キープ | 詳細 |
|---|---|---|---|---|---|---|---|
マンション SURF ISLAND SAN SEBASTIAN(1K/5階) | |||||||
| 6万円 7,000円 | なし 6万円 | 1K 24.3m2 | 築7年 | 東海道本線 吹田駅(JR) 徒歩9分 阪急電鉄千里線 吹田駅(阪急) 徒歩15分 阪急電鉄京都線 相川駅 徒歩22分 大阪府吹田市片山町4丁目1-15 | 詳細を見る | ||
マンション ファーストフィオーレ吹田レガーメ(1K/3階) | |||||||
| 6.815万円 5,950円 | なし 13.63万円 | 1K 23.77m2 | 築1年 | 東海道本線 岸辺駅 徒歩3分 阪急電鉄京都線 正雀駅 徒歩6分 阪急電鉄京都線 摂津市駅 徒歩26分 大阪府吹田市岸部南1丁目18-3 | 詳細を見る | ||
マンション レオパレスBONHEURI(1K/2階) | |||||||
| 6.5万円 5,000円 | なし 6.5万円 | 1K 19.87m2 | 築27年 | 大阪モノレール本線 沢良宜駅 徒歩45分 大阪モノレール本線 南茨木駅 徒歩49分 大阪府摂津市鳥飼上5丁目2-3 | 詳細を見る | ||
マンション レオパレスジュネス(1K/3階) | |||||||
| 8.2万円 5,000円 | なし 8.2万円 | 1K 19.87m2 | 築23年 | 大阪モノレール本線 南摂津駅 徒歩3分 大阪モノレール本線 摂津駅 徒歩24分 大阪市今里筋線 井高野駅 徒歩28分 大阪府摂津市東一津屋1-35 | 詳細を見る | ||
アパート レジェンド小阪(1DK/3階) | |||||||
![]() | 4万円 3,000円 | なし 4.2万円 | 1DK 25m2 | 築44年 | 近鉄難波・奈良線 河内小阪駅 徒歩6分 近鉄難波・奈良線 八戸ノ里駅 徒歩8分 近鉄難波・奈良線 河内永和駅 徒歩17分 大阪府東大阪市小阪2丁目 | 詳細を見る | |
アパート レオパレスWAM(1K/1階) | |||||||
| 7.9万円 5,000円 | なし 7.9万円 | 1K 20.28m2 | 築22年 | 東海道本線 千里丘駅 徒歩5分 阪急電鉄京都線 摂津市駅 徒歩10分 大阪モノレール本線 沢良宜駅 徒歩16分 大阪府摂津市千里丘東1丁目3-23 | 詳細を見る | ||
アパート HMAISON衣摺(1LDK/3階) | |||||||
![]() | 6.4万円 5,000円 | なし なし | 1LDK 28.22m2 | 築1年 | おおさか東線 衣摺加美北駅 徒歩5分 おおさか東線 JR長瀬駅 徒歩18分 近鉄大阪線 弥刀駅 徒歩21分 大阪府東大阪市衣摺5丁目 | 詳細を見る | |
アパート レオパレスラピスラズリ高井田(1K/4階) | |||||||
![]() | 6.1万円 7,000円 | なし なし | 1K 20.81m2 | 築16年 | 地下鉄中央線 高井田駅(大阪メトロ) 徒歩4分 JRおおさか東線 高井田中央駅 徒歩4分 近鉄奈良線 河内永和駅 徒歩24分 大阪府東大阪市西堤西 | 詳細を見る | |




