賃貸マンション
ヴォーガコルテ大崎の賃貸物件情報(1K/3階)
| 家賃 | 管理費等 | 敷金 | 礼金 | 間取り | 専有面積 |
|---|---|---|---|---|---|
| 10万円 | 1万円 | なし | なし | 1K | 21.39m2 |
入居決定でお祝い金最大100,000円
- 保証金
- 15.0万円
- 償却・敷引
- -
- 築年数
- 築11年
- 所在階
- 3階
- 向き
- 東
Point
マンション周辺は、閑静な住宅街にあるので住環境良好です。10分圏内には23時まで営業しているまいばすけっとやコンビニもあります。有名な戸越銀座商店街も徒歩圏内なので、休日の散策も楽しめます。
提供:THE SHOP 代官山店アーバネスト(株)(SUUMO経由)

詳細情報 ヴォーガコルテ大崎
物件紹介
ヴォーガコルテ大崎はJR山手線大崎駅から徒歩7分にあり、駅近で通勤通学に便利なマンションです。
このお部屋は2階以上に位置しているので通行人や周囲の住人からの視線が気になりにくく、建物のエントランスはオートロックがついているので防犯性が高くなっています。
人気の角部屋で周囲の居住者の生活音も気になりにくく、また、フローリングのお部屋なのでお掃除もラクラク。キッチンはシステムキッチン仕様になっていますので、お料理好きの方にもぴったり。バス・トイレは別なので、のんびりお風呂タイムも楽しめるでしょう。また、雨の日でも浴室乾燥機を使えば、お洗濯も問題ありません。
通信設備面では、インターネットが無料で使えるので、月々の出費を抑えられるのも魅力です。また、BSアンテナ・CSアンテナもありますので、おうち時間も充実するでしょう(別途工事、BS・CSの契約料等が必要な場合あり)。
建物にはエレベーターがついているので、重い荷物があっても安心。共用部には宅配ボックスが設定されているので、不在の時にも荷物を受け取ることができます。また、ペット飼育の相談ができますので、あなたの大切な家族の一員も快適に暮らせるか、ぜひ確認してみてください。
このお部屋は2階以上に位置しているので通行人や周囲の住人からの視線が気になりにくく、建物のエントランスはオートロックがついているので防犯性が高くなっています。
人気の角部屋で周囲の居住者の生活音も気になりにくく、また、フローリングのお部屋なのでお掃除もラクラク。キッチンはシステムキッチン仕様になっていますので、お料理好きの方にもぴったり。バス・トイレは別なので、のんびりお風呂タイムも楽しめるでしょう。また、雨の日でも浴室乾燥機を使えば、お洗濯も問題ありません。
通信設備面では、インターネットが無料で使えるので、月々の出費を抑えられるのも魅力です。また、BSアンテナ・CSアンテナもありますので、おうち時間も充実するでしょう(別途工事、BS・CSの契約料等が必要な場合あり)。
建物にはエレベーターがついているので、重い荷物があっても安心。共用部には宅配ボックスが設定されているので、不在の時にも荷物を受け取ることができます。また、ペット飼育の相談ができますので、あなたの大切な家族の一員も快適に暮らせるか、ぜひ確認してみてください。
お金・契約の情報
※「-」と表示されているものは、実際は料金が発生するものもございます。詳細はお問い合わせください。
| 家賃 | 10万円 | 管理費・共益費 | 1万円 |
|---|---|---|---|
| 敷金 | なし | 礼金 | なし |
| 入居決定でお祝い金最大100,000円 | |||
| 保証金 | 15.0万円 | 償却・敷引 | - |
| 住宅保険料 | - | 更新料 | - |
| 保証会社利用 | 必須 | 保証会社名 | - |
| 保証会社費用 | - | 保証会社備考 | 保証会社利用必 初回保証委託料は総賃料等の50%~ 2年目以降1年毎に10,000円 |
| 契約形態 | - | 契約期間 | - |
| 入居・引渡期間 | - | 現況 | - |
| 入居可能条件 | ペット相談 | ||
| 契約備考 | 巡回管理/・保証金⇒契約時償却・PIMサポートクラブ(2年間)⇒保険料16,000円(2年間)含む・法人契約⇒敷1・礼2に変更・更新料:新賃料の1ヵ月分・更新事務手数料:0.5ヵ月・短期解約違約金:1年未満で賃料1ヶ月分・ペット飼育時:保証金1ヵ月追加 合計12.6万円(内訳:ルームクリーニング費55000円/PIMサポートクラブ27000円/契約事務手数料11000円/鍵交換費33000円) 1K 二人入居可/ペット相談 普通借家2年 損保【2.7万円2年】 バストイレ別、バルコニー、エアコン、ガスコンロ対応、クロゼット、フローリング、シャワー付洗面台、浴室乾燥機、オートロック、室内洗濯置、陽当り良好、シューズボックス、システムキッチン、角住戸、温水洗浄便座、脱衣所、エレベーター、洗面所独立、洗面化粧台、2口コンロ、駐輪場、宅配ボックス、光ファイバー、外壁タイル張り、閑静な住宅地、BS・CS、防犯カメラ、ペット相談、分譲賃貸、バイク置場、24時間緊急通報システム、ガスレンジ付、ディンプルキー、ネット使用料不要、ダブルロックキー、24時間換気システム、人感照明センサー、3駅以上利用可、3沿線以上利用可、駅徒歩10分以内、二重床構造、24時間ゴミ出し可、敷地内ごみ置き場、都市ガス、敷金・礼金不要、IT重説対応物件、初期費用カード決済可 入居日:'26年6月上旬 | ||
部屋の情報
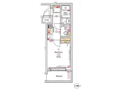
| 間取り | 1K | 専有面積 | 21.39m2 |
|---|---|---|---|
| 所在階 / 向き | 3階 / 東 | バルコニー面積 | 3m2 |
| 水道 / ガス | - | ||
| 設備 | バス・トイレ別、2階以上、オートロック、宅配ボックス、浴室乾燥機、インターネット対応、システムキッチン、エアコン、エレベーター、温水洗浄便座、角部屋、バルコニー、フローリング、洗髪洗面化粧台、2口コンロ、コンロ:ガス、CSアンテナ、BSアンテナ、インターネット使用料無料、洗濯機:室内 | ||
| 当社物件ID | 25033601 | ||
建物の情報
| 建物名 | ヴォーガコルテ大崎 | ||
|---|---|---|---|
| 所在地 | 東京都品川区西品川 | ||
| 交通 | JR山手線 大崎駅 徒歩7分 東急大井町線 下神明駅 徒歩12分 都営浅草線 戸越駅 徒歩14分 | ||
| 階数 | 4階建 | 総戸数 | 42戸 |
| 築年月 | 2016年03月 / 築11年 | エレベーター | あり |
| 駐車場 | なし | バイク置き場 | あり |
| 駐輪場 | あり | 管理人/管理会社 | - |
| 周辺環境 | その他 Tomo’s(トモズ) ThinkPark店(ドラッグストア)まで506m その他 TSUTAYA大崎駅前店(ショッピングセンター)まで399m その他 セブン-イレブン大崎ウエストシティタワーズ店(コンビニ)まで270m その他 品川区立大崎図書館(図書館)まで452m その他 城南信用金庫大崎支店(銀行)まで220m その他 大崎三郵便局(郵便局)まで365m | ||
| 建物種別 | マンション | 建物構造 | RC(鉄筋コンクリート) |
この部屋の取扱い不動産会社
| 会社名 | THE SHOP アーバネスト(株)赤坂本店(SUUMO経由) | ||
|---|---|---|---|
| 所在地 | 東京都港区赤坂3-15-5 アーベイン赤坂1階2階 | 交通 | - |
| 営業時間 | 10:00~19:00 | 定休日 | 無休 |
| 免許番号 | 東京都知事87852 | 取引態様 | 仲介 |
| 不動産会社管理番号 | 100503097968 | 当社管理番号 | 89 |
| 所属団体 | (公社)全日本不動産協会東京都本部会員 | ||
| 公正取引協議会 | (公社)首都圏不動産公正取引協議会加盟 | ||
| 取扱い物件情報 | 物件詳細へ | ||
※各種情報と現状に差異がある場合は、現状優先となります。問い合わせをすることで、より詳しい条件、情報を確認する事ができます。
提供:THE SHOP アーバネスト(株)赤坂本店(SUUMO経由)
この物件が気になったら掲載期限まであと10日
ヴォーガコルテ大崎に条件(家賃・エリア)が近い物件一覧
| 写真 | 家賃 管理費等 | 敷金 礼金 | 間取り 専有面積 | 築年数 | 最寄り駅 所在地 | キープ | 詳細 |
|---|---|---|---|---|---|---|---|
マンション ヒュッゲカンダハイム(ワンルーム/4階) | |||||||
![]() | 12.8万円 7,000円 | 12.8万円 12.8万円 | ワンルーム 28.2m2 | 築11年 | JR京浜東北線 蒲田駅 徒歩7分 京急本線 京急蒲田駅 徒歩10分 京急本線 梅屋敷駅(東京) 徒歩14分 東京都大田区蒲田 | 詳細を見る | |
マンション エクセルⅡ(1K/8階) | |||||||
![]() | 7.9万円 4,000円 | 7.9万円 7.9万円 | 1K 19.37m2 | 築18年 | 京浜急行電鉄本線 梅屋敷駅(東京) 徒歩15分 京浜急行電鉄空港線 大鳥居駅 徒歩19分 東京都大田区北糀谷1丁目 | 詳細を見る | |
マンション メゾンド・シャンテ(1K/1階) | |||||||
![]() | 11.7万円 3,000円 | 11.7万円 11.7万円 | 1K 27.95m2 | 築4年 | 京急本線 梅屋敷駅(東京) 徒歩6分 京急本線 京急蒲田駅 徒歩13分 JR京浜東北線 蒲田駅 徒歩15分 東京都大田区蒲田 | 詳細を見る | |
マンション MARS OASE(1K/3階) | |||||||
![]() | 8.3万円 3,000円 | 8.3万円 16.6万円 | 1K 27.04m2 | 築20年 | 京浜急行電鉄本線 大森町駅 徒歩14分 京浜急行電鉄本線 梅屋敷駅(東京) 徒歩19分 東京都大田区大森東3丁目 | 詳細を見る | |
マンション セレストコーワ(1K/3階) | |||||||
![]() | 8.5万円 5,000円 | 8.5万円 17万円 | 1K 20.25m2 | 築21年 | 京浜急行電鉄空港線 糀谷駅 徒歩9分 京浜急行電鉄本線 京急蒲田駅 徒歩11分 東京都大田区南蒲田2丁目 | 詳細を見る | |
アパート 京浜急行電鉄空港線 糀谷駅 徒歩5分 築25年(1K/1階) | |||||||
![]() | 8.1万円 2,000円 | 8.1万円 8.1万円 | 1K 24.28m2 | 築25年 | 京浜急行電鉄空港線 糀谷駅 徒歩5分 京浜急行電鉄本線 京急蒲田駅 徒歩9分 東京都大田区西糀谷4丁目 | 詳細を見る | |
マンション サンライズマンション(2LDK/2階) | |||||||
![]() | 16万円 3,000円 | 12.7万円 16万円 | 2LDK 55.31m2 | 築26年 | 京浜急行電鉄本線 梅屋敷駅(東京) 徒歩13分 京浜急行電鉄本線 大森町駅 徒歩14分 東京都大田区大森南1丁目 | 詳細を見る | |
マンション コリンH1(1K/4階) | |||||||
![]() | 7.9万円 3,000円 | 7.9万円 7.9万円 | 1K 24.96m2 | 築19年 | 京浜急行電鉄本線 梅屋敷駅(東京) 徒歩1分 京浜急行電鉄本線 大森町駅 徒歩10分 東京都大田区大森西6丁目 | 詳細を見る | |








