賃貸マンション
スピインスの賃貸物件情報(1K/5階)
| 家賃 | 管理費等 | 敷金 | 礼金 | 間取り | 専有面積 |
|---|---|---|---|---|---|
| 3.6万円 | 6,000円 | なし | なし | 1K | 15.12m2 |
入居決定でお祝い金最大100,000円
- 保証金
- -
- 償却・敷引
- -
- 築年数
- 築39年
- 所在階
- 5階
- 向き
- -
Point
ペット飼育可!!「梅田」徒歩圏内、近隣商業施設、など好立地、好条件。初めての一人暮らしに最適です。お部屋探しならツインホーム西梅田店にお任せ下さい。
提供:ツインホーム西梅田店(株)ディパーチャー(SUUMO経由)

詳細情報 スピインス
物件紹介
スピインスはJR大阪環状線福島駅から徒歩3分にあり、駅近で通勤通学に便利なマンションです。
このお部屋は2階以上に位置しているので、通行人や周囲の住人からの視線が気になりにくく、防犯面でも安心。建物のエントランスはオートロックがついており、インターホンにはTVモニタもついているため、相手の顔を確認してから来客対応することができます。
こちらは楽器相談が可能な物件。楽器演奏をお考えの方はぜひ相談してみてください。フローリングのお部屋なのでお掃除もラクラク。キッチンはシステムキッチン仕様になっていますので、お料理好きの方にもぴったり。
通信設備面では、インターネット接続が可能です。また、BSアンテナ・CSアンテナがありCATVにも対応しているので、おうち時間も充実するでしょう(別途工事、契約料が必要な場合あり)。
このお部屋は2階以上に位置しているので、通行人や周囲の住人からの視線が気になりにくく、防犯面でも安心。建物のエントランスはオートロックがついており、インターホンにはTVモニタもついているため、相手の顔を確認してから来客対応することができます。
こちらは楽器相談が可能な物件。楽器演奏をお考えの方はぜひ相談してみてください。フローリングのお部屋なのでお掃除もラクラク。キッチンはシステムキッチン仕様になっていますので、お料理好きの方にもぴったり。
通信設備面では、インターネット接続が可能です。また、BSアンテナ・CSアンテナがありCATVにも対応しているので、おうち時間も充実するでしょう(別途工事、契約料が必要な場合あり)。
お金・契約の情報
※「-」と表示されているものは、実際は料金が発生するものもございます。詳細はお問い合わせください。
| 家賃 | 3.6万円 | 管理費・共益費 | 6,000円 |
|---|---|---|---|
| 敷金 | なし | 礼金 | なし |
| 入居決定でお祝い金最大100,000円 | |||
| 保証金 | - | 償却・敷引 | - |
| 住宅保険料 | - | 更新料 | - |
| 契約形態 | - | 契約期間 | - |
| 入居・引渡期間 | 即時 | 現況 | - |
| 入居可能条件 | 事務所可、楽器相談 | ||
| 契約備考 | 1K 二人入居可/子供可/楽器相談/事務所利用相談 損保【要】 バルコニー、エアコン、クロゼット、フローリング、TVインターホン、オートロック、室内洗濯置、陽当り良好、シューズボックス、システムキッチン、駐輪場、CATV、即入居可、BS・CS、電気コンロ、保証人不要、CATVインターネット、2沿線利用可、CS、眺望良好、コインランドリー、24時間換気システム、楽器相談、人感照明センサー、2駅利用可、3駅以上利用可、3沿線以上利用可、24時間ゴミ出し可、敷地内ごみ置き場、BS、敷金・礼金不要、通風良好 | ||
部屋の情報
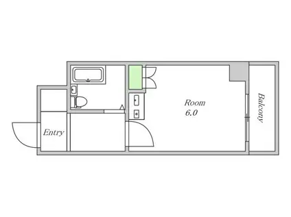
| 間取り | 1K | 専有面積 | 15.12m2 |
|---|---|---|---|
| 所在階 / 向き | 5階 / - | バルコニー面積 | - |
| 水道 / ガス | - | ||
| 設備 | 2階以上、オートロック、テレビドアホン、インターネット対応、システムキッチン、エアコン、バルコニー、フローリング、CATV、CSアンテナ、BSアンテナ、洗濯機:室内 | ||
| 当社物件ID | 11950241 | ||
建物の情報
| 建物名 | スピインス | ||
|---|---|---|---|
| 所在地 | 大阪府大阪市福島区鷺洲 | ||
| 交通 | JR大阪環状線 福島駅(阪神) 徒歩3分 JR東西線 新福島駅 徒歩5分 地下鉄千日前線 野田阪神駅 徒歩9分 | ||
| 階数 | 5階建 | 総戸数 | - |
| 築年月 | 1987年11月 / 築39年 | エレベーター | - |
| 駐車場 | なし | バイク置き場 | - |
| 駐輪場 | あり | 管理人/管理会社 | - |
| 周辺環境 | その他 コーヨー鷺洲店(スーパー)まで444m その他 阪急オアシス 福島ふくまる通り57店(スーパー)まで521m その他 ローソンJR新福島駅前店(コンビニ)まで434m その他 ファミリーマート JCHO大阪病院店(コンビニ)まで672m その他 ダイコクドラッグ野田阪神店(ドラッグストア)まで430m その他 ショッピングセンターウイステ(ドラッグストア)まで700m | ||
| 建物種別 | マンション | 建物構造 | RC(鉄筋コンクリート) |
この部屋の取扱い不動産会社
| 会社名 | ツインホーム西梅田店(株)ディパーチャー(SUUMO経由) | ||
|---|---|---|---|
| 所在地 | 大阪府大阪市福島区福島7-14-16 エスポルテ福島1階 | 交通 | - |
| 営業時間 | 10:00~20:00 | 定休日 | 無し |
| 免許番号 | 大阪府知事57991 | 取引態様 | 仲介 |
| 不動産会社管理番号 | 100477802702 | 当社管理番号 | 89 |
| 所属団体 | (公社)全日本不動産協会大阪府本部会員 | ||
| 公正取引協議会 | (公社)近畿地区不動産公正取引協議会加盟 | ||
| 取扱い物件情報 | 物件詳細へ | ||
※各種情報と現状に差異がある場合は、現状優先となります。問い合わせをすることで、より詳しい条件、情報を確認する事ができます。
提供:ツインホーム西梅田店(株)ディパーチャー(SUUMO経由)
この物件が気になったら掲載期限まであと10日
スピインスに条件(家賃・エリア)が近い物件一覧
| 写真 | 家賃 管理費等 | 敷金 礼金 | 間取り 専有面積 | 築年数 | 最寄り駅 所在地 | キープ | 詳細 |
|---|---|---|---|---|---|---|---|
マンション グリーンヒル江坂(1K/3階) | |||||||
| 4.1万円 5,000円 | なし 4.1万円 | 1K 21m2 | 築30年 | 北大阪急行南北線 緑地公園駅 徒歩9分 阪急電鉄千里線 関大前駅 徒歩13分 北大阪急行南北線 江坂駅 徒歩13分 大阪府吹田市江坂町5丁目20-2 | 詳細を見る | ||
マンション S-RESIDENCE堺浜寺BROAD(1K/5階) | |||||||
![]() | 5.6万円 1万円 | なし なし | 1K 22.48m2 | 築1年 | 南海電鉄南海本線 石津川駅 徒歩7分 南海電鉄南海本線 湊駅 徒歩14分 南海電鉄南海本線 諏訪ノ森駅 徒歩19分 大阪府堺市西区浜寺石津町西1丁 | 詳細を見る | |
マンション 南海電鉄南海本線 浜寺公園駅 徒歩13分 築54年(2LDK/5階) | |||||||
![]() | 5.2万円 なし | なし 5万円 | 2LDK 56.82m2 | 築54年 | 南海電鉄南海本線 浜寺公園駅 徒歩13分 南海電鉄南海本線 羽衣駅 徒歩14分 阪和線 鳳駅 徒歩14分 大阪府堺市西区浜寺南町2丁 | 詳細を見る | |
マンション 南海電鉄南海本線 石津川駅 徒歩7分 築1年(1K/5階) | |||||||
![]() | 5.6万円 1万円 | なし なし | 1K 22.48m2 | 築1年 | 南海電鉄南海本線 石津川駅 徒歩7分 阪堺電気軌道阪堺線 石津北駅 徒歩8分 南海電鉄南海本線 湊駅 徒歩14分 大阪府堺市西区浜寺石津町西1丁 | 詳細を見る | |
マンション 光マンション(2DK/4階) | |||||||
| 3.9万円 4,000円 | なし 10万円 | 2DK 30m2 | 築51年 | 東海道本線 千里丘駅 徒歩19分 阪急電鉄京都線 摂津市駅 徒歩24分 東海道本線 岸辺駅 徒歩26分 大阪府吹田市山田南30-10 | 詳細を見る | ||
マンション 南海電鉄南海本線 石津川駅 徒歩7分 築1年(1K/7階) | |||||||
![]() | 5.55万円 1万円 | なし なし | 1K 21.65m2 | 築1年 | 南海電鉄南海本線 石津川駅 徒歩7分 阪堺電気軌道阪堺線 石津北駅 徒歩8分 南海電鉄南海本線 湊駅 徒歩14分 大阪府堺市西区浜寺石津町西1丁 | 詳細を見る | |
マンション それいゆK(1K/1階) | |||||||
![]() | 3万円 4,000円 | なし なし | 1K 17m2 | 築32年 | 近鉄南大阪線 河内松原駅 徒歩15分 近鉄南大阪線 高見ノ里駅 徒歩20分 近鉄南大阪線 恵我ノ荘駅 徒歩25分 大阪府松原市岡3丁目 | 詳細を見る | |






