賃貸マンション
ペガサスマンション十条の賃貸物件情報(ワンルーム/4階)
| 家賃 | 管理費等 | 敷金 | 礼金 | 間取り | 専有面積 |
|---|---|---|---|---|---|
| 4.8万円 | 6,000円 | なし | なし | ワンルーム | 17.94m2 |
入居決定でお祝い金最大100,000円
- 保証金
- -
- 償却・敷引
- -
- 築年数
- 築38年
- 所在階
- 4階
- 向き
- 南東
Point
オーナー様と直接取引している物件を10万戸以上保有しているため、賃料、初期費用、賃料発生日など諸条件を何でもご相談下さいませ。
提供:ハウス・トゥ・ハウス・ネットサービス(株)赤羽駅前店(SUUMO経由)

詳細情報 ペガサスマンション十条
物件紹介
ペガサスマンション十条はJR埼京線十条駅から徒歩10分にあり、駅近で通勤通学に便利なマンションです。
このお部屋は2階以上に位置しているので通行人や周囲の住人からの視線が気になりにくく、建物のエントランスはオートロックがついているので防犯性が高くなっています。
人気の南向き・フローリングのお部屋。角部屋でもあるため、周囲の居住者の生活音も気になりにくい場所です。キッチンはシステムキッチン仕様になっていますので、お料理好きの方にもぴったり。
通信設備面では、インターネット接続が可能です。また、BSアンテナ・CSアンテナがありCATVにも対応しているので、おうち時間も充実するでしょう(別途工事、契約料が必要な場合あり)。
このお部屋は2階以上に位置しているので通行人や周囲の住人からの視線が気になりにくく、建物のエントランスはオートロックがついているので防犯性が高くなっています。
人気の南向き・フローリングのお部屋。角部屋でもあるため、周囲の居住者の生活音も気になりにくい場所です。キッチンはシステムキッチン仕様になっていますので、お料理好きの方にもぴったり。
通信設備面では、インターネット接続が可能です。また、BSアンテナ・CSアンテナがありCATVにも対応しているので、おうち時間も充実するでしょう(別途工事、契約料が必要な場合あり)。
お金・契約の情報
※「-」と表示されているものは、実際は料金が発生するものもございます。詳細はお問い合わせください。
| 家賃 | 4.8万円 | 管理費・共益費 | 6,000円 |
|---|---|---|---|
| 敷金 | なし | 礼金 | なし |
| 入居決定でお祝い金最大100,000円 | |||
| 保証金 | - | 償却・敷引 | - |
| 住宅保険料 | - | 更新料 | - |
| 契約形態 | - | 契約期間 | - |
| 入居・引渡期間 | 即時 | 現況 | - |
| 契約備考 | 掲載情報と現況が異なる場合は、現況を優先とします。 ワンルーム 普通借家2年 損保【1.8万円2年】 バルコニー、エアコン、室内洗濯置、角住戸、礼金不要、最上階、敷金不要、都市ガス、敷金・礼金不要、IT重説対応物件 | ||
部屋の情報
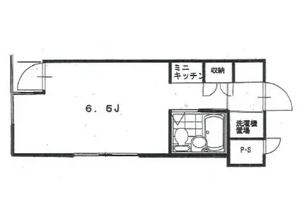
| 間取り | ワンルーム | 専有面積 | 17.94m2 |
|---|---|---|---|
| 所在階 / 向き | 4階 / 南東 | バルコニー面積 | - |
| 水道 / ガス | - | ||
| 設備 | 2階以上、エアコン、南向き、角部屋、バルコニー、洗濯機:室内 | ||
| 当社物件ID | 34830908 | ||
建物の情報
| 建物名 | ペガサスマンション十条 | ||
|---|---|---|---|
| 所在地 | 東京都北区上十条 | ||
| 交通 | JR埼京線 十条駅(東京) 徒歩10分 都営三田線 板橋本町駅 徒歩14分 JR京浜東北線 東十条駅 徒歩21分 | ||
| 階数 | 4階建 | 総戸数 | - |
| 築年月 | 1988年07月 / 築38年 | エレベーター | - |
| 駐車場 | なし | バイク置き場 | - |
| 駐輪場 | - | 管理人/管理会社 | - |
| 周辺環境 | その他 上十条五丁目東緑地遊び場(公園)まで250m その他 OK(オーケー) 十条店(スーパー)まで395m その他 アコレ 板橋本町店(スーパー)まで628m その他 ローソン 北区上十条五丁目店(コンビニ)まで116m その他 十条銀座商店街(その他)まで812m その他 帝京大学 医学部附属病院(病院)まで960m | ||
| 建物種別 | マンション | 建物構造 | RC(鉄筋コンクリート) |
この部屋の取扱い不動産会社
| 会社名 | ハウス・トゥ・ハウス・ネットサービス(株)板橋東口店(SUUMO経由) | ||
|---|---|---|---|
| 所在地 | 東京都北区滝野川6-84-8-1階 | 交通 | - |
| 営業時間 | 10:00~18:30(1月~3月は9:30~) | 定休日 | 水曜日 (1月~3月無休) |
| 免許番号 | 国土交通大臣7400 | 取引態様 | 仲介 |
| 不動産会社管理番号 | 100484707778 | 当社管理番号 | 89 |
| 所属団体 | (公社)全日本不動産協会東京都本部会員 | ||
| 公正取引協議会 | (公社)首都圏不動産公正取引協議会加盟 | ||
| 取扱い物件情報 | 物件詳細へ | ||
※各種情報と現状に差異がある場合は、現状優先となります。問い合わせをすることで、より詳しい条件、情報を確認する事ができます。
提供:ハウス・トゥ・ハウス・ネットサービス(株)板橋東口店(SUUMO経由)
この物件が気になったら掲載期限まであと12日
ペガサスマンション十条に条件(家賃・エリア)が近い物件一覧
| 写真 | 家賃 管理費等 | 敷金 礼金 | 間取り 専有面積 | 築年数 | 最寄り駅 所在地 | キープ | 詳細 |
|---|---|---|---|---|---|---|---|
アパート コーポベニー(1K/1階) | |||||||
![]() | 5.5万円 2,000円 | 5.5万円 5.5万円 | 1K 21.5m2 | 築35年 | 東武東上線 中板橋駅 徒歩8分 都営三田線 板橋本町駅 徒歩10分 東武東上線 ときわ台駅(東京) 徒歩15分 東京都板橋区双葉町 | 詳細を見る | |
マンション メゾン・ラリビエール(1K/1階) | |||||||
![]() | 5.8万円 なし | 5.8万円 5.8万円 | 1K 21m2 | 築37年 | JR京浜東北線 東十条駅 徒歩6分 JR埼京線 十条駅(東京) 徒歩7分 東京メトロ南北線 王子神谷駅 徒歩20分 東京都北区中十条 | 詳細を見る | |
アパート CORNER SUITE(1K/2階) | |||||||
![]() | 6.6万円 3,000円 | 6.6万円 なし | 1K 16.08m2 | 築6年 | 東武東上線 東武練馬駅 徒歩6分 東武東上線 上板橋駅 徒歩15分 東京メトロ有楽町線 平和台駅(東京) 徒歩27分 東京都板橋区徳丸 | 詳細を見る | |
アパート ヴェラハイツ町屋(ワンルーム/1階) | |||||||
![]() | 5万円 3,000円 | 5万円 5万円 | ワンルーム 15.5m2 | 築34年 | 東京メトロ千代田線 町屋駅 徒歩6分 日暮里・舎人ライナー 熊野前駅 徒歩11分 京成本線 新三河島駅 徒歩15分 東京都荒川区町屋 | 詳細を見る | |
アパート GLANZ栄町(ワンルーム/1階) | |||||||
![]() | 6.3万円 3,000円 | 6.3万円 6.3万円 | ワンルーム 12.71m2 | 築6年 | 都電荒川線 梶原駅 徒歩2分 JR京浜東北線 上中里駅 徒歩9分 東京メトロ南北線 西ケ原駅 徒歩11分 東京都北区栄町 | 詳細を見る | |
アパート パストラルときわ台(ワンルーム/1階) | |||||||
![]() | 5.95万円 4,000円 | なし なし | ワンルーム 12.04m2 | 築1年 | 東武東上線 ときわ台駅(東京) 徒歩9分 東武東上線 中板橋駅 徒歩17分 都営三田線 本蓮沼駅 徒歩18分 東京都板橋区前野町 | 詳細を見る | |
アパート ニチユウサンハイツD棟(1K/2階) | |||||||
![]() | 6.4万円 なし | 6.4万円 6.4万円 | 1K 24.82m2 | 築29年 | 東京メトロ有楽町線 小竹向原駅 徒歩7分 西武池袋線 江古田駅 徒歩12分 東京都板橋区向原 | 詳細を見る | |
マンション バイエルンハイム(ワンルーム/2階) | |||||||
![]() | 7.5万円 なし | 7.5万円 7.5万円 | ワンルーム 19.11m2 | 築50年 | JR山手線 大塚駅(東京) 徒歩5分 JR山手線 巣鴨駅 徒歩9分 東京メトロ丸ノ内線 新大塚駅 徒歩12分 東京都豊島区北大塚 | 詳細を見る | |








