賃貸アパート
LIENの賃貸物件情報(2K/2階)
| 家賃 | 管理費等 | 敷金 | 礼金 | 間取り | 専有面積 |
|---|---|---|---|---|---|
| 6.5万円 | 3,000円 | なし | 6.5万円 | 2K | 36.43m2 |
入居決定でお祝い金最大100,000円
Point
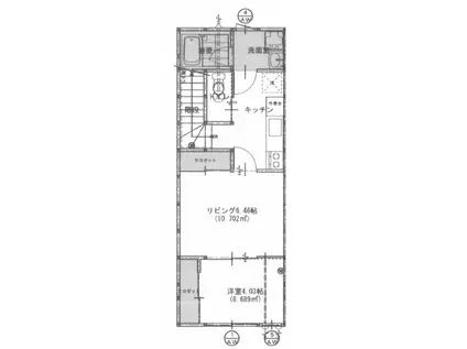
室内設備は洗面所独立・浴室乾燥機など豊富に揃っており、過ごしやすいお部屋になっております♪一人暮らしの方も安心の、TVインターホン付き物件です♪敷地内の駐車場にも空きがあり、駐車可能です(*^^*)
提供:(株)NEXTリビング(SUUMO経由)

詳細情報 LIEN
物件紹介
LIENはJR東北本線盛岡駅から徒歩16分にあるアパートです。
このお部屋は2階以上に位置しているので、通行人や周囲の住人からの視線が気になりにくく、防犯面でも安心。インターホンにはTVモニタもついているため、相手の顔を確認してから来客対応することができます。
人気の角部屋で周囲の居住者の生活音も気になりにくく、また、フローリングのお部屋なのでお掃除もラクラク。キッチンはシステムキッチン仕様になっていますので、お料理好きの方にもぴったり。バス・トイレは別なので、のんびりお風呂タイムも楽しめるでしょう。また、雨の日でも浴室乾燥機を使えば、お洗濯も問題ありません。
通信設備面では、インターネットが無料で使えるので、月々の出費を抑えられるのも魅力です。また、BSアンテナもありますので、おうち時間も充実するでしょう(別途工事、BSの契約料等が必要な場合あり)。
共用部には宅配ボックスが設定されているので、不在の時にも荷物を受け取ることができます。
このお部屋は2階以上に位置しているので、通行人や周囲の住人からの視線が気になりにくく、防犯面でも安心。インターホンにはTVモニタもついているため、相手の顔を確認してから来客対応することができます。
人気の角部屋で周囲の居住者の生活音も気になりにくく、また、フローリングのお部屋なのでお掃除もラクラク。キッチンはシステムキッチン仕様になっていますので、お料理好きの方にもぴったり。バス・トイレは別なので、のんびりお風呂タイムも楽しめるでしょう。また、雨の日でも浴室乾燥機を使えば、お洗濯も問題ありません。
通信設備面では、インターネットが無料で使えるので、月々の出費を抑えられるのも魅力です。また、BSアンテナもありますので、おうち時間も充実するでしょう(別途工事、BSの契約料等が必要な場合あり)。
共用部には宅配ボックスが設定されているので、不在の時にも荷物を受け取ることができます。
お金・契約の情報
※「-」と表示されているものは、実際は料金が発生するものもございます。詳細はお問い合わせください。
| 家賃 | 6.5万円 | 管理費・共益費 | 3,000円 |
|---|---|---|---|
| 敷金 | なし | 礼金 | 6.5万円 |
| 入居決定でお祝い金最大100,000円 | |||
| 保証金 | - | 償却・敷引 | - |
| 住宅保険料 | - | 更新料 | - |
| 保証会社利用 | 必須 | 保証会社名 | - |
| 保証会社費用 | - | 保証会社備考 | 保証会社利用必 初回賃貸保証料 賃料×80% 決済サービス料330円/月 |
| 契約形態 | - | 契約期間 | - |
| 入居・引渡期間 | 即時 | 現況 | - |
| 契約備考 | 合計12万円(内訳:初回保証料5.4904万円クリーニング費6.5万円) 町内会費(月額) 月額300円 決済サービス料 月額330円 2K 二人入居可/子供可 普通借家2年 損保【1.8万円2年】 バストイレ別、エアコン、ガスコンロ対応、クロゼット、フローリング、TVインターホン、浴室乾燥機、室内洗濯置、シューズボックス、システムキッチン、追焚機能浴室、角住戸、温水洗浄便座、洗面所独立、駐輪場、宅配ボックス、即入居可、最上階、敷金不要、3口以上コンロ、照明付、保証人不要、全居室フローリング、物置、ネット使用料不要、複層ガラス、プロパンガス、室内物干機、BS | ||
部屋の情報
| 間取り | 2K | 専有面積 | 36.43m2 |
|---|---|---|---|
| 所在階 / 向き | 2階 / - | バルコニー面積 | - |
| 水道 / ガス | - | ||
| 設備 | バス・トイレ別、2階以上、テレビドアホン、宅配ボックス、浴室乾燥機、追い焚き、インターネット対応、システムキッチン、エアコン、温水洗浄便座、角部屋、フローリング、洗髪洗面化粧台、2口コンロ、コンロ:ガス、BSアンテナ、インターネット使用料無料、洗濯機:室内 | ||
| 当社物件ID | 159618711 | ||
建物の情報
| 建物名 | LIEN | ||
|---|---|---|---|
| 所在地 | 岩手県盛岡市北夕顔瀬町 | ||
| 交通 | JR東北本線 盛岡駅 徒歩16分 | ||
| 階数 | 2階建 | 総戸数 | - |
| 築年月 | 2025年11月 / 築1年 | エレベーター | - |
| 駐車場 | 空有 6600円 | バイク置き場 | - |
| 駐輪場 | あり | 管理人/管理会社 | - |
| 周辺環境 | その他 マックスバリュ 盛岡駅前北通店(スーパー)まで717m その他 マルイチ 城西店(スーパー)まで881m その他 ファミリーマート 北夕顔瀬店(コンビニ)まで401m その他 ザ・ダイソー 盛岡梨木店(その他)まで1176m その他 北日本銀行 城西支店(銀行)まで831m その他 東北銀行 夕顔瀬支店(銀行)まで1241m | ||
| 建物種別 | アパート | 建物構造 | 木造 |
この部屋の取扱い不動産会社
| 会社名 | (株)NEXTリビング(SUUMO経由) | ||
|---|---|---|---|
| 所在地 | 岩手県盛岡市大通3-9-3 | 交通 | - |
| 営業時間 | AM9:30~PM6:00(日曜祝日PM3:00) | 定休日 | 水曜日 |
| 免許番号 | 岩手県知事2517 | 取引態様 | 仲介 |
| 不動産会社管理番号 | 100473394275 | 当社管理番号 | 89 |
| 所属団体 | (公社)全日本不動産協会岩手県本部会員 | ||
| 公正取引協議会 | 東北地区不動産公正取引協議会加盟 | ||
| 取扱い物件情報 | 物件詳細へ | ||
※各種情報と現状に差異がある場合は、現状優先となります。問い合わせをすることで、より詳しい条件、情報を確認する事ができます。
提供:(株)NEXTリビング(SUUMO経由)
この物件が気になったら掲載期限まであと10日
LIENに条件(家賃・エリア)が近い物件一覧
| 写真 | 家賃 管理費等 | 敷金 礼金 | 間取り 専有面積 | 築年数 | 最寄り駅 所在地 | キープ | 詳細 |
|---|---|---|---|---|---|---|---|
アパート ベルディール(1LDK/2階) | |||||||
![]() | 7万円 4,500円 | なし 7万円 | 1LDK 42.79m2 | 新築 | いわて銀河鉄道線 青山駅(岩手) 徒歩15分 いわて銀河鉄道線 厨川駅 徒歩29分 JR山田線 上盛岡駅 徒歩37分 岩手県盛岡市上堂 | 詳細を見る | |
アパート KINGDOMII(1K/1階) | |||||||
![]() | 6.3万円 3,800円 | なし 6.3万円 | 1K 28m2 | 築1年 | JR東北本線 仙北町駅 徒歩13分 JR東北本線 盛岡駅 徒歩22分 岩手県盛岡市清水町 | 詳細を見る | |
アパート PORTE BONHEURIII(1K/1階) | |||||||
![]() | 4.2万円 3,500円 | なし なし | 1K 27.68m2 | 築3年 | JR東北本線 花巻駅 徒歩36分 岩手県花巻市桜町 | 詳細を見る | |
アパート 東北本線 岩手飯岡駅 徒歩25分 築31年(3DK/2階) | |||||||
![]() | 4.9万円 1,000円 | なし なし | 3DK 54.64m2 | 築31年 | 東北本線 岩手飯岡駅 徒歩25分 岩手県盛岡市永井23地割 | 詳細を見る | |
アパート ROGER CONFORT III(1LDK/3階) | |||||||
![]() | 5.8万円 3,000円 | 5.8万円 5.8万円 | 1LDK 48.65m2 | 築1年 | JR東北本線 岩手飯岡駅 徒歩56分 岩手県紫波郡矢巾町流通センター南 | 詳細を見る | |
アパート ソレイユ桜町(1K/2階) | |||||||
![]() | 5.3万円 3,000円 | なし なし | 1K 33.85m2 | 築3年 | 東北本線 花巻駅 徒歩26分 岩手県花巻市桜町1丁目 | 詳細を見る | |
アパート RESI NAGAIⅡ(1LDK/2階) | |||||||
![]() | 6.5万円 3,000円 | なし なし | 1LDK 44.05m2 | 築1年 | 東北本線 岩手飯岡駅 徒歩13分 岩手県盛岡市永井25地割 | 詳細を見る | |
アパート サンライズ月が丘(1K/1階) | |||||||
![]() | 4.3万円 なし | なし なし | 1K 31.46m2 | 築23年 | いわて銀河鉄道線 青山駅(岩手) 徒歩22分 いわて銀河鉄道線 厨川駅 徒歩33分 岩手県盛岡市月が丘 | 詳細を見る | |





/105x80-f1-q70-wp1)

/105x80-f1-q70-wp1)
/105x80-f1-q70-wp1)
