賃貸アパート
JACK TATSUMIIの賃貸物件情報(1LDK/2階)
| 家賃 | 管理費等 | 敷金 | 礼金 | 間取り | 専有面積 |
|---|---|---|---|---|---|
| 6.35万円 | 3,500円 | なし | 6.35万円 | 1LDK | 31.06m2 |
入居決定でお祝い金最大100,000円
- 保証金
- -
- 償却・敷引
- -
- 築年数
- 新築
- 所在階
- 2階
- 向き
- 南
Point
インターネット使用料不要なので面倒な手続き不要です◎設備充実なのではじめてのお引越しや転勤者にもオススメ。LINE・メール・お電話でやり取り可能!お部屋探しはスタイルエステート西支店にお任せください
提供:スタイルエステート西支店(株)エムホームエステート(SUUMO経由)

詳細情報 JACK TATSUMII
物件紹介
JACK TATSUMIIは地下鉄名港線東海通駅から徒歩7分にあり、駅近で通勤通学に便利なアパートです。
このお部屋は2階以上に位置しているので、通行人や周囲の住人からの視線が気になりにくく、防犯面でも安心。建物のエントランスはオートロックがついており、インターホンにはTVモニタもついているため、相手の顔を確認してから来客対応することができます。
おしゃれなデザイナーズ物件!人気の南向き・フローリングのお部屋。角部屋でもあるため、周囲の居住者の生活音も気になりにくい場所です。キッチンはシステムキッチン仕様になっていますので、お料理好きの方にもぴったり。バス・トイレは別なので、のんびりお風呂タイムも楽しめるでしょう。また、雨の日でも浴室乾燥機を使えば、お洗濯も問題ありません。
通信設備面では、インターネットが無料で使えるので、月々の出費を抑えられるのも魅力です(別途工事等が必要な場合あり)。
共用部には宅配ボックスが設定されているので、不在の時にも荷物を受け取ることができます。
このお部屋は2階以上に位置しているので、通行人や周囲の住人からの視線が気になりにくく、防犯面でも安心。建物のエントランスはオートロックがついており、インターホンにはTVモニタもついているため、相手の顔を確認してから来客対応することができます。
おしゃれなデザイナーズ物件!人気の南向き・フローリングのお部屋。角部屋でもあるため、周囲の居住者の生活音も気になりにくい場所です。キッチンはシステムキッチン仕様になっていますので、お料理好きの方にもぴったり。バス・トイレは別なので、のんびりお風呂タイムも楽しめるでしょう。また、雨の日でも浴室乾燥機を使えば、お洗濯も問題ありません。
通信設備面では、インターネットが無料で使えるので、月々の出費を抑えられるのも魅力です(別途工事等が必要な場合あり)。
共用部には宅配ボックスが設定されているので、不在の時にも荷物を受け取ることができます。
お金・契約の情報
※「-」と表示されているものは、実際は料金が発生するものもございます。詳細はお問い合わせください。
| 家賃 | 6.35万円 | 管理費・共益費 | 3,500円 |
|---|---|---|---|
| 敷金 | なし | 礼金 | 6.35万円 |
| 入居決定でお祝い金最大100,000円 | |||
| 保証金 | - | 償却・敷引 | - |
| 住宅保険料 | - | 更新料 | - |
| 契約形態 | - | 契約期間 | - |
| 入居・引渡期間 | - | 現況 | - |
| 契約備考 | 見学から契約までご来店不要でご対応可能です♪駐車場の空き状況は別途お問い合わせ下さい。 1LDK 単身者可/二人入居可 普通借家2年 損保【要】 バストイレ別、バルコニー、エアコン、ガスコンロ対応、クロゼット、フローリング、シャワー付洗面台、TVインターホン、浴室乾燥機、オートロック、室内洗濯置、シューズボックス、システムキッチン、南向き、追焚機能浴室、角住戸、温水洗浄便座、脱衣所、洗面所独立、洗面化粧台、2口コンロ、宅配ボックス、敷金不要、防犯カメラ、保証人不要、デザイナーズ、ネット使用料不要、1フロア2住戸、築2年以内、24時間換気システム、南面リビング、未入居、3駅以上利用可、駅徒歩10分以内、プロパンガス、洗面所にドア、南面バルコニー、礼金1ヶ月、IT重説対応物件、初期費用カード決済可 入居日:'26年6月中旬 | ||
部屋の情報
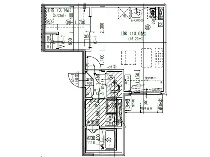
| 間取り | 1LDK | 専有面積 | 31.06m2 |
|---|---|---|---|
| 所在階 / 向き | 2階 / 南 | バルコニー面積 | - |
| 水道 / ガス | - | ||
| 設備 | バス・トイレ別、2階以上、オートロック、テレビドアホン、宅配ボックス、浴室乾燥機、追い焚き、インターネット対応、システムキッチン、エアコン、温水洗浄便座、南向き、角部屋、バルコニー、フローリング、洗髪洗面化粧台、2口コンロ、コンロ:ガス、デザイナーズ、インターネット使用料無料、洗濯機:室内 | ||
| 当社物件ID | 160492009 | ||
建物の情報
| 建物名 | JACK TATSUMII | ||
|---|---|---|---|
| 所在地 | 愛知県名古屋市港区辰巳町 | ||
| 交通 | 地下鉄名港線 東海通駅 徒歩7分 地下鉄名港線 港区役所駅 徒歩16分 地下鉄名港線 六番町駅 徒歩22分 | ||
| 階数 | 3階建 | 総戸数 | 6戸 |
| 築年月 | 2026年06月 / 新築 | エレベーター | - |
| 駐車場 | 空有 11000円 | バイク置き場 | - |
| 駐輪場 | - | 管理人/管理会社 | - |
| 周辺環境 | その他 MEGAドン・キホーテUNY(メガドンキホーテユニー) 東海(ショッピングセンター)まで799m その他 ファミリーマート 辰巳町店(コンビニ)まで195m その他 ウエルシア熱田五番町店(ドラッグストア)まで645m その他 西友 熱田三番町店(スーパー)まで706m その他 ららぽーと名古屋みなとアクルス(ショッピングセンター)まで995m その他 地域医療機能推進機構中京病院(病院)まで892m | ||
| 建物種別 | アパート | 建物構造 | 木造 |
この部屋の取扱い不動産会社
| 会社名 | スタイルエステート西支店(株)エムホームエステート(SUUMO経由) | ||
|---|---|---|---|
| 所在地 | 愛知県名古屋市中川区高畑1-235 | 交通 | - |
| 営業時間 | 10:00~20:00 | 定休日 | - |
| 免許番号 | 愛知県知事22094 | 取引態様 | 仲介 |
| 不動産会社管理番号 | 100491134001 | 当社管理番号 | 89 |
| 所属団体 | (公社)愛知県宅地建物取引業協会会員 | ||
| 公正取引協議会 | 東海不動産公正取引協議会加盟 | ||
| 取扱い物件情報 | 物件詳細へ | ||
※各種情報と現状に差異がある場合は、現状優先となります。問い合わせをすることで、より詳しい条件、情報を確認する事ができます。
提供:スタイルエステート西支店(株)エムホームエステート(SUUMO経由)
この物件が気になったら掲載期限まであと11日
JACK TATSUMIIに条件(家賃・エリア)が近い物件一覧
| 写真 | 家賃 管理費等 | 敷金 礼金 | 間取り 専有面積 | 築年数 | 最寄り駅 所在地 | キープ | 詳細 |
|---|---|---|---|---|---|---|---|
アパート リーブル酒落A(1LDK/2階) | |||||||
![]() | 6.4万円 3,000円 | なし 6.4万円 | 1LDK 47.51m2 | 築9年 | 名鉄豊田線 米野木駅 徒歩13分 愛知県日進市米野木台 | 詳細を見る | |
アパート ノラ アルボレ(1LDK/2階) | |||||||
![]() | 5.6万円 4,000円 | 5.6万円 5.6万円 | 1LDK 41.93m2 | 築21年 | 名鉄小牧線 春日井駅(名鉄) 徒歩16分 名鉄小牧線 牛山駅 徒歩28分 愛知県春日井市宮町3丁目 | 詳細を見る | |
アパート FLEURAGE(ワンルーム/1階) | |||||||
![]() | 4.5万円 4,000円 | なし なし | ワンルーム 28.03m2 | 築10年 | 地下鉄名港線 日比野駅(名古屋市営) 徒歩11分 地下鉄名港線 六番町駅 徒歩16分 地下鉄名城線 西高蔵駅 徒歩21分 愛知県名古屋市中川区花塚町 | 詳細を見る | |
マンション BEVERLY HILLS藤ヶ丘(3LDK/7階) | |||||||
![]() | 7.1万円 7,000円 | なし なし | 3LDK 67.07m2 | 築37年 | リニモ はなみずき通駅 徒歩7分 リニモ 藤が丘駅(愛知) 徒歩12分 リニモ 杁ケ池公園駅 徒歩18分 愛知県長久手市塚田 | 詳細を見る | |
マンション サンフラワーハイツA(3DK/1階) | |||||||
![]() | 6.9万円 3,500円 | なし なし | 3DK 57m2 | 築26年 | 地下鉄東山線 藤が丘駅(愛知) 徒歩23分 愛知県長久手市 | 詳細を見る | |
アパート ステラカーサ(1K/1階) | |||||||
![]() | 5.6万円 3,500円 | なし 5.6万円 | 1K 37.26m2 | 築18年 | 愛知県豊明市間米町唐竹 | 詳細を見る | |
アパート リヴェール神郷(1LDK/1階) | |||||||
![]() | 7.4万円 5,000円 | なし 7.4万円 | 1LDK 40.19m2 | 築1年 | 地下鉄名港線 日比野駅(名古屋市営) 徒歩16分 地下鉄名港線 六番町駅 徒歩20分 あおなみ線 南荒子駅 徒歩22分 愛知県名古屋市中川区神郷町 | 詳細を見る | |
アパート レオパレススマイリー(1K/2階) | |||||||
![]() | 6.2万円 5,500円 | なし 6.2万円 | 1K 19.87m2 | 築23年 | あおなみ線 荒子川公園駅 徒歩15分 地下鉄名港線 港区役所駅 徒歩20分 愛知県名古屋市港区築盛町 | 詳細を見る | |









