賃貸マンション
ビレッジハウス花泉西1号棟の賃貸物件情報(3DK/3階)
| 家賃 | 管理費等 | 敷金 | 礼金 | 間取り | 専有面積 |
|---|---|---|---|---|---|
| 4.15万円 | なし | なし | なし | 3DK | 53.08m2 |
入居決定でお祝い金最大100,000円
- 保証金
- -
- 償却・敷引
- -
- 築年数
- 築31年
- 所在階
- 3階
- 向き
- 南
Point
いちのせき不動産限定特典!仲介手数料無料+初期費用から【4万円値引き】来店不要・スマホ契約対応。初期費用を抑えたい方におすすめです。
提供:(株)いちのせき不動産(SUUMO経由)

詳細情報 ビレッジハウス花泉西1号棟
物件紹介
ビレッジハウス花泉西1号棟はJR東北本線花泉駅から徒歩13分にあるマンションです。
このお部屋は2階以上に位置しているので、通行人や周囲の住人からの視線が気になりにくく、防犯面でも安心です。
人気の南向きのお部屋。キッチンはシステムキッチン仕様になっていますので、お料理好きの方にもぴったり。また、バス・トイレは別で、のんびりお風呂タイムも楽しめるでしょう。
通信設備面では、インターネット接続が可能です(別途工事、契約料が必要な場合あり)。
ペット飼育の相談ができますので、あなたの大切な家族の一員も快適に暮らせるか、ぜひ確認してみてください。
このお部屋は2階以上に位置しているので、通行人や周囲の住人からの視線が気になりにくく、防犯面でも安心です。
人気の南向きのお部屋。キッチンはシステムキッチン仕様になっていますので、お料理好きの方にもぴったり。また、バス・トイレは別で、のんびりお風呂タイムも楽しめるでしょう。
通信設備面では、インターネット接続が可能です(別途工事、契約料が必要な場合あり)。
ペット飼育の相談ができますので、あなたの大切な家族の一員も快適に暮らせるか、ぜひ確認してみてください。
お金・契約の情報
※「-」と表示されているものは、実際は料金が発生するものもございます。詳細はお問い合わせください。
| 家賃 | 4.15万円 | 管理費・共益費 | なし |
|---|---|---|---|
| 敷金 | なし | 礼金 | なし |
| 入居決定でお祝い金最大100,000円 | |||
| 保証金 | - | 償却・敷引 | - |
| 住宅保険料 | - | 更新料 | - |
| 契約形態 | - | 契約期間 | - |
| 入居・引渡期間 | 即時 | 現況 | - |
| 入居可能条件 | ペット相談 | ||
| 契約備考 | 巡回管理/仲介手数料なし!初期費用を抑えたい方におすすめのお部屋です。ご来店不要で、スマートフォンからのご契約も可能です。※退去時にクリーニング費用がかかります。※短期解約の場合は違約金が発生いたします。詳細はお気軽にお問い合わせください。【初期費用例】1ヶ月目の家賃+2ヶ月目の家賃+保険料10000円(2年)-値引き40000円=初期費用 退去時にハウスクリーニング費64,226円の精算が有ります。 3DK 単身者可/二人入居可/子供可/ペット相談/事務所利用不可/ルームシェア相談 損保【1万円2年】 バストイレ別、バルコニー、エアコン、ガスコンロ対応、室内洗濯置、シューズボックス、システムキッチン、南向き、追焚機能浴室、洗面所独立、駐輪場、光ファイバー、即入居可、2面採光、ペット相談、オートバス、保証人不要、駐車2台可、バイク置場、専用庭、ルームシェア相談、南面2室、南面リビング、敷地内ごみ置き場、駐車並列2台、平面駐車場、自走式駐車場、日勤管理、プロパンガス、南面バルコニー、高速ネット対応、リノベーション、IT重説対応物件、高齢者歓迎 | ||
部屋の情報
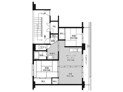
| 間取り | 3DK | 専有面積 | 53.08m2 |
|---|---|---|---|
| 所在階 / 向き | 3階 / 南 | バルコニー面積 | - |
| 水道 / ガス | - | ||
| 設備 | バス・トイレ別、2階以上、追い焚き、インターネット対応、システムキッチン、エアコン、南向き、バルコニー、洗髪洗面化粧台、コンロ:ガス、専用庭、洗濯機:室内 | ||
| 当社物件ID | 25964472 | ||
建物の情報
| 建物名 | ビレッジハウス花泉西1号棟 | ||
|---|---|---|---|
| 所在地 | 岩手県一関市花泉町花泉伊勢沢 | ||
| 交通 | JR東北本線 花泉駅 徒歩13分 JR東北本線 清水原駅 徒歩38分 JR東北本線 油島駅 徒歩61分 | ||
| 階数 | 5階建 | 総戸数 | 60戸 |
| 築年月 | 1996年01月 / 築31年 | エレベーター | - |
| 駐車場 | 近隣 10m1575円/駐2台可 | バイク置き場 | あり |
| 駐輪場 | あり | 管理人/管理会社 | - |
| 周辺環境 | その他 カンブン花泉店(スーパー)まで1544m その他 Yショップカメダ(コンビニ)まで1255m その他 ファミリーマートフレンドボックス花泉店(コンビニ)まで1883m その他 ファミリーマート花泉金沢店(コンビニ)まで1842m その他 薬王堂一関花泉店(ドラッグストア)まで1824m その他 薬王堂花泉涌津店(ドラッグストア)まで1992m | ||
| 建物種別 | マンション | 建物構造 | RC(鉄筋コンクリート) |
この部屋の取扱い不動産会社
| 会社名 | (株)いちのせき不動産(SUUMO経由) | ||
|---|---|---|---|
| 所在地 | 岩手県一関市字機織山 194-8 | 交通 | - |
| 営業時間 | 9:00~17:00 土日もご内見OKです。 | 定休日 | 土曜・日曜・祝日 |
| 免許番号 | 岩手県知事2415 | 取引態様 | 仲介 |
| 不動産会社管理番号 | 100460896472 | 当社管理番号 | 89 |
| 所属団体 | (一社)岩手県宅地建物取引業協会会員 | ||
| 公正取引協議会 | 東北地区不動産公正取引協議会加盟 | ||
| 取扱い物件情報 | 物件詳細へ | ||
※各種情報と現状に差異がある場合は、現状優先となります。問い合わせをすることで、より詳しい条件、情報を確認する事ができます。
提供:(株)いちのせき不動産(SUUMO経由)
この物件が気になったら掲載期限まであと7日
ビレッジハウス花泉西1号棟に条件(家賃・エリア)が近い物件一覧
| 写真 | 家賃 管理費等 | 敷金 礼金 | 間取り 専有面積 | 築年数 | 最寄り駅 所在地 | キープ | 詳細 |
|---|---|---|---|---|---|---|---|
アパート メゾンドソレイユIII(1LDK/1階) | |||||||
![]() | 4.15万円 2,900円 | なし 4.15万円 | 1LDK 45.84m2 | 築13年 | 三陸鉄道リアス線 盛駅 徒歩236分 岩手県気仙郡住田町世田米川向 | 詳細を見る | |
アパート コーポアドバンスJ(2K/1階) | |||||||
![]() | 2.8万円 2,000円 | なし なし | 2K 37.19m2 | 築34年 | 岩手県一関市上坊 | 詳細を見る | |
アパート レオパレス末広(1K/1階) | |||||||
![]() | 5.6万円 4,500円 | なし なし | 1K 23.18m2 | 築21年 | 岩手県一関市 | 詳細を見る | |
アパート レオパレスシャトレー荒谷(1K/1階) | |||||||
![]() | 4.3万円 4,500円 | なし 4.3万円 | 1K 23.18m2 | 築22年 | 東北本線 一ノ関駅 徒歩13分 岩手県一関市青葉1丁目 | 詳細を見る | |
アパート メンバーズタウン桜町B(3DK/1階) | |||||||
| 5.4万円 なし | 10.8万円 なし | 3DK 53m2 | 築32年 | 岩手県一関市三関字日照 | 詳細を見る | ||
アパート レオパレスグランシャリオ(1K/2階) | |||||||
![]() | 5.7万円 4,500円 | なし 5.7万円 | 1K 23.18m2 | 築25年 | 岩手県一関市山目字前田 | 詳細を見る | |
アパート メンバーズタウン末広E棟(3DK/1階) | |||||||
![]() | 5.4万円 なし | 10.8万円 なし | 3DK 53m2 | 築33年 | 東北本線 一ノ関駅 徒歩22分 岩手県一関市末広2丁目 | 詳細を見る | |



/105x80-f1-q70-wp1)
/105x80-f1-q70-wp1)
/105x80-f1-q70-wp1)
/105x80-f1-q70-wp1)
/105x80-f1-q70-wp1)