賃貸アパート
コーポ クローバーの賃貸物件情報(ワンルーム/1階)
| 家賃 | 管理費等 | 敷金 | 礼金 | 間取り | 専有面積 |
|---|---|---|---|---|---|
| 4.7万円 | なし | 4.7万円 | なし | ワンルーム | 27.35m2 |
入居決定でお祝い金最大100,000円
Point
デジタルキーで鍵の紛失心配無し!IHコンロ付きキッチンでコンロ購入不要!冷蔵庫&電子レンジ完備!ベッドのフレームのみ付いていますのベッドの運搬不要!★返信が見当たらない場合は迷惑メール等を確認下さい★
提供:(有)青柳不動産(SUUMO経由)

詳細情報 コーポ クローバー
物件紹介
コーポ クローバーはJR奥羽本線神町駅から徒歩16分にあるアパートです。
このお部屋のインターホンにはTVモニタがついているため、相手の顔を確認してから来客対応することができます。
人気の南向きのお部屋。また、フローリングなのでお掃除もラクラク。キッチンはシステムキッチン仕様になっていますので、お料理好きの方にもぴったり。バス・トイレは別なので、のんびりお風呂タイムも楽しめるでしょう。また、雨の日でも浴室乾燥機を使えば、お洗濯も問題ありません。
通信設備面では、インターネットが無料で使えるので、月々の出費を抑えられるのも魅力です。また、BSアンテナもありますので、おうち時間も充実するでしょう(別途工事、BSの契約料等が必要な場合あり)。
共用部には宅配ボックスが設定されているので、不在の時にも荷物を受け取ることができます。
このお部屋のインターホンにはTVモニタがついているため、相手の顔を確認してから来客対応することができます。
人気の南向きのお部屋。また、フローリングなのでお掃除もラクラク。キッチンはシステムキッチン仕様になっていますので、お料理好きの方にもぴったり。バス・トイレは別なので、のんびりお風呂タイムも楽しめるでしょう。また、雨の日でも浴室乾燥機を使えば、お洗濯も問題ありません。
通信設備面では、インターネットが無料で使えるので、月々の出費を抑えられるのも魅力です。また、BSアンテナもありますので、おうち時間も充実するでしょう(別途工事、BSの契約料等が必要な場合あり)。
共用部には宅配ボックスが設定されているので、不在の時にも荷物を受け取ることができます。
お金・契約の情報
※「-」と表示されているものは、実際は料金が発生するものもございます。詳細はお問い合わせください。
| 家賃 | 4.7万円 | 管理費・共益費 | なし |
|---|---|---|---|
| 敷金 | 4.7万円 | 礼金 | なし |
| 入居決定でお祝い金最大100,000円 | |||
| 保証金 | - | 償却・敷引 | - |
| 住宅保険料 | - | 更新料 | - |
| 保証会社利用 | 必須 | 保証会社名 | - |
| 保証会社費用 | - | 保証会社備考 | 保証会社利用必 契約時に月額費用の80%(最低\40000) |
| 契約形態 | - | 契約期間 | - |
| 入居・引渡期間 | - | 現況 | - |
| 契約備考 | 【インターネットWiFi無料】カーポート駐車場で雪や雨の日も楽らく!デジタルキーで鍵の紛失心配無し!IH付きシステムキッチン完備! ワンルーム 事務所利用不可 損保【1.7万円2年】 バストイレ別、エアコン、シャワー付洗面台、TVインターホン、浴室乾燥機、室内洗濯置、陽当り良好、シューズボックス、システムキッチン、南向き、追焚機能浴室、温水洗浄便座、脱衣所、洗面所独立、2口コンロ、宅配ボックス、礼金不要、IHクッキングヒーター、照明付、駐車場1台無料、保証人不要、冷蔵庫、敷金1ヶ月、全居室フローリング、物置、ネット使用料不要、カーポート、複層ガラス、電子ロック、築3年以内、電子レンジ、階段下収納、前面棟無、外壁サイディング、敷地内ごみ置き場、全居室8畳以上、プロパンガス、洗面所にドア、BS、高速ネット対応、初期費用カード決済可 入居日:'26年2月下旬 | ||
部屋の情報
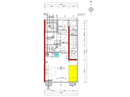
| 間取り | ワンルーム | 専有面積 | 27.35m2 |
|---|---|---|---|
| 所在階 / 向き | 1階 / 南 | バルコニー面積 | - |
| 水道 / ガス | - | ||
| 設備 | バス・トイレ別、テレビドアホン、宅配ボックス、浴室乾燥機、追い焚き、インターネット対応、システムキッチン、エアコン、温水洗浄便座、南向き、フローリング、洗髪洗面化粧台、2口コンロ、コンロ:IH、BSアンテナ、インターネット使用料無料、洗濯機:室内 | ||
| 当社物件ID | 151174581 | ||
建物の情報
| 建物名 | コーポ クローバー | ||
|---|---|---|---|
| 所在地 | 山形県東根市神町西 | ||
| 交通 | JR奥羽本線 神町駅 徒歩16分 | ||
| 階数 | 2階建 | 総戸数 | 8戸 |
| 築年月 | 2023年02月 / 築3年 | エレベーター | - |
| 駐車場 | 空有 付無料 | バイク置き場 | - |
| 駐輪場 | - | 管理人/管理会社 | - |
| 周辺環境 | その他 神町小学校(小学校)まで750m その他 セブンイレブン東根神町中央2丁目店(コンビニ)まで818m その他 ヨークベニマル神町店(スーパー)まで387m その他 ツルハドラッグ東根神町西店(ドラッグストア)まで321m その他 ダイソーヨークタウン東根神町店(その他)まで282m その他 神町郵便局(郵便局)まで1103m | ||
| 建物種別 | アパート | 建物構造 | 木造 |
この部屋の取扱い不動産会社
| 会社名 | (有)青柳不動産(SUUMO経由) | ||
|---|---|---|---|
| 所在地 | 山形県東根市宮崎3-1-1 | 交通 | - |
| 営業時間 | 平日9:00~18:00土日9:00~17:00 | 定休日 | 水曜日・祝日 |
| 免許番号 | 山形県知事1585 | 取引態様 | 仲介 |
| 不動産会社管理番号 | 100485283542 | 当社管理番号 | 89 |
| 所属団体 | (公社)山形県宅地建物取引業協会会員 | ||
| 公正取引協議会 | 東北地区不動産公正取引協議会加盟 | ||
| 取扱い物件情報 | 物件詳細へ | ||
※各種情報と現状に差異がある場合は、現状優先となります。問い合わせをすることで、より詳しい条件、情報を確認する事ができます。
提供:(有)青柳不動産(SUUMO経由)
この物件が気になったら掲載期限まであと11日
コーポ クローバーに条件(家賃・エリア)が近い物件一覧
| 写真 | 家賃 管理費等 | 敷金 礼金 | 間取り 専有面積 | 築年数 | 最寄り駅 所在地 | キープ | 詳細 |
|---|---|---|---|---|---|---|---|
アパート PLATZI(2LDK/1階) | |||||||
![]() | 4.9万円 なし | なし なし | 2LDK 60.03m2 | 築25年 | JR奥羽本線 東根駅 徒歩12分 山形県東根市温泉町 | 詳細を見る | |
アパート フローリッシュ ABCD(1LDK/1階) | |||||||
![]() | 6.5万円 4,000円 | なし 6.5万円 | 1LDK 44.06m2 | 築18年 | JR奥羽本線 山形駅 徒歩27分 JR奥羽本線 蔵王駅 徒歩49分 JR奥羽本線 北山形駅 徒歩56分 山形県山形市深町 | 詳細を見る | |
アパート JR奥羽本線 高擶駅 徒歩9分 築1年(ワンルーム/1階) | |||||||
![]() | 4.8万円 3,500円 | なし なし | ワンルーム 29.02m2 | 築1年 | JR奥羽本線 高擶駅 徒歩9分 山形県天童市大字清池 | 詳細を見る | |
アパート ルミエール桧B棟(2DK/1階) | |||||||
![]() | 5.5万円 2,000円 | 11万円 なし | 2DK 45.23m2 | 築29年 | JR仙山線 北山形駅 徒歩20分 JR仙山線 羽前千歳駅 徒歩32分 JR左沢線 東金井駅 徒歩36分 山形県山形市桧町 | 詳細を見る | |
アパート エスポワール佐藤A(3DK/2階) | |||||||
![]() | 4.8万円 なし | 4.8万円 なし | 3DK 53.59m2 | 築39年 | JR奥羽本線 蔵王駅 徒歩38分 JR奥羽本線 山形駅 徒歩53分 山形県山形市飯田 | 詳細を見る | |
アパート セジュール・ウィスタリア(2DK/2階) | |||||||
![]() | 6.1万円 5,000円 | なし 6.1万円 | 2DK 50.42m2 | 築24年 | 奥羽本線 蔵王駅 徒歩43分 山形県山形市 | 詳細を見る | |
アパート ウィスタリア(2LDK/2階) | |||||||
![]() | 6万円 1,000円 | なし 6万円 | 2LDK 53.76m2 | 築29年 | JR仙山線 北山形駅 徒歩29分 JR仙山線 山形駅 徒歩44分 山形県山形市印役町 | 詳細を見る | |
マンション 国井ビル(1DK/4階) | |||||||
![]() | 4.8万円 なし | 4.8万円 なし | 1DK 29.83m2 | 築27年 | 山形県山形市東原町3丁目 | 詳細を見る | |







/105x80-f1-q70-wp1)

