賃貸アパート
金坂コーポの賃貸物件情報(1K/1階)
| 家賃 | 管理費等 | 敷金 | 礼金 | 間取り | 専有面積 |
|---|---|---|---|---|---|
| 4.1万円 | 5,000円 | 4.1万円 | なし | 1K | 22.3m2 |
入居決定でお祝い金最大100,000円
Point
日当たりは良好で、付近には大型ショッピングセンターもございます。是非お問い合わせください♪
提供:シャーメゾンショップ 三幸商事(株)賃貸部(SUUMO経由)

詳細情報 金坂コーポ
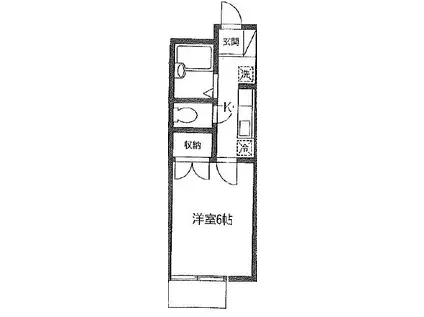
物件紹介
金坂コーポはJR京葉線蘇我駅から徒歩7分にあり、駅近で通勤通学に便利なアパートです。
人気の南向きのお部屋。室内には多目的に利用できるロフトがあり、お部屋のアレンジも自在です。バス・トイレ別の仕様で、のんびりお風呂タイムも楽しめます。
通信設備面では、インターネットが無料で使えるので、月々の出費を抑えられるのも魅力です。また、BSアンテナがありCATVにも対応しているので、おうち時間も充実するでしょう(別途工事、BS・CATVの契約料等が必要な場合あり)。
人気の南向きのお部屋。室内には多目的に利用できるロフトがあり、お部屋のアレンジも自在です。バス・トイレ別の仕様で、のんびりお風呂タイムも楽しめます。
通信設備面では、インターネットが無料で使えるので、月々の出費を抑えられるのも魅力です。また、BSアンテナがありCATVにも対応しているので、おうち時間も充実するでしょう(別途工事、BS・CATVの契約料等が必要な場合あり)。
お金・契約の情報
※「-」と表示されているものは、実際は料金が発生するものもございます。詳細はお問い合わせください。
| 家賃 | 4.1万円 | 管理費・共益費 | 5,000円 |
|---|---|---|---|
| 敷金 | 4.1万円 | 礼金 | なし |
| 入居決定でお祝い金最大100,000円 | |||
| 保証金 | - | 償却・敷引 | - |
| 住宅保険料 | - | 更新料 | - |
| 保証会社利用 | 必須 | 保証会社名 | - |
| 保証会社費用 | - | 保証会社備考 | 保証会社利用必 【全保連株式会社】新規契約時:月額総賃料50%・毎月:1,990円(保険料含む)【株式会社オリコフォレントインシュア】新規契約時:月額総賃料50%・毎月:月額総賃料1.5% |
| 契約形態 | - | 契約期間 | - |
| 入居・引渡期間 | - | 現況 | - |
| 契約備考 | ●保証会社必須。●火災保険必須。●現況優先。 合計1.32万円(内訳:鍵交換費用(契約時)13200円) 退去時ハウスクリーニング費用33,000円、エアコンクリーニング費用12,000円が発生致します。(消費税別途)、緊急サポート24利用料1100円/月 1K 単身者限定/事務所利用不可 普通借家2年 損保【1.8万円2年】 バストイレ別、エアコン、ガスコンロ対応、室内洗濯置、陽当り良好、南向き、CATV、最上階、ロフト、保証人不要、敷金1ヶ月、CATVインターネット、クッションフロア、駅まで平坦、ネット使用料不要、テラス、平坦地、始発駅、3駅以上利用可、3沿線以上利用可、駅徒歩10分以内、上階無し、当社管理物件、プロパンガス、南面バルコニー、BS、CATV使用料不要、IT重説対応物件、通風良好 入居日:'26年3月下旬 | ||
部屋の情報
| 間取り | 1K | 専有面積 | 22.3m2 |
|---|---|---|---|
| 所在階 / 向き | 1階 / 南 | バルコニー面積 | - |
| 水道 / ガス | - | ||
| 設備 | バス・トイレ別、インターネット対応、エアコン、南向き、バルコニー、ロフトあり、コンロ:ガス、CATV、BSアンテナ、インターネット使用料無料、洗濯機:室内 | ||
| 当社物件ID | 6085854 | ||
建物の情報
| 建物名 | 金坂コーポ | ||
|---|---|---|---|
| 所在地 | 千葉県千葉市中央区今井 | ||
| 交通 | JR京葉線 蘇我駅 徒歩7分 京成千原線 千葉寺駅 徒歩16分 JR外房線 本千葉駅 徒歩29分 | ||
| 階数 | 2階建 | 総戸数 | 10戸 |
| 築年月 | 1990年08月 / 築36年 | エレベーター | - |
| 駐車場 | 空有 7000円 | バイク置き場 | - |
| 駐輪場 | - | 管理人/管理会社 | - |
| 周辺環境 | その他 セブンイレブン 千葉今井店(コンビニ)まで470m その他 株式会社ロピア蘇我店(スーパー)まで339m その他 千葉中央警察署蘇我駅前交番(警察署・交番)まで704m その他 Ario(アリオ)蘇我(ショッピングセンター)まで737m その他 千葉今井郵便局(郵便局)まで124m その他 千葉メディカルセンター(病院)まで1004m | ||
| 建物種別 | アパート | 建物構造 | 木造 |
この部屋の取扱い不動産会社
| 会社名 | シャーメゾンショップ 三幸商事(株)賃貸部(SUUMO経由) | ||
|---|---|---|---|
| 所在地 | 千葉県千葉市中央区南町2-17-11 | 交通 | - |
| 営業時間 | 10:00~17:00 | 定休日 | 毎週水曜日 |
| 免許番号 | 千葉県知事2787 | 取引態様 | 仲介 |
| 不動産会社管理番号 | 100492812245 | 当社管理番号 | 89 |
| 所属団体 | (一社)千葉県宅地建物取引業協会会員 | ||
| 公正取引協議会 | (公社)首都圏不動産公正取引協議会加盟 | ||
| 取扱い物件情報 | 物件詳細へ | ||
※各種情報と現状に差異がある場合は、現状優先となります。問い合わせをすることで、より詳しい条件、情報を確認する事ができます。
提供:シャーメゾンショップ 三幸商事(株)賃貸部(SUUMO経由)
この物件が気になったら掲載期限まであと12日
金坂コーポに条件(家賃・エリア)が近い物件一覧
| 写真 | 家賃 管理費等 | 敷金 礼金 | 間取り 専有面積 | 築年数 | 最寄り駅 所在地 | キープ | 詳細 |
|---|---|---|---|---|---|---|---|
アパート 東郷シャトーハイツ(4DK/1階) | |||||||
![]() | 6.5万円 なし | 6.5万円 なし | 4DK 202.88m2 | 築36年 | JR外房線 新茂原駅 徒歩30分 JR外房線 茂原駅 徒歩35分 千葉県茂原市東郷 | 詳細を見る | |
アパート プリムヴェール(2LDK/2階) | |||||||
![]() | 5.2万円 3,300円 | なし なし | 2LDK 51.67m2 | 築24年 | JR外房線 新茂原駅 徒歩4分 千葉県茂原市小林 | 詳細を見る | |
アパート エコエイト(3DK/1階) | |||||||
![]() | 4.5万円 5,000円 | なし なし | 3DK 52.66m2 | 築36年 | 東葉高速鉄道 東葉勝田台駅 徒歩17分 京成電鉄本線 勝田台駅 徒歩17分 千葉県八千代市上高野 | 詳細を見る | |
マンション アーバネックスTM(1K/3階) | |||||||
![]() | 4.7万円 3,000円 | 4.7万円 なし | 1K 20.66m2 | 築33年 | 千葉都市モノレール 市役所前駅(千葉) 徒歩3分 JR総武線 千葉駅 徒歩13分 千葉県千葉市中央区新田町 | 詳細を見る | |
アパート アベニューヴィラI(2LDK/1階) | |||||||
![]() | 6.6万円 4,000円 | なし 6.6万円 | 2LDK 53.59m2 | 築23年 | 京成千原線 学園前駅(千葉) 徒歩35分 京成千原線 大森台駅 徒歩40分 千葉県千葉市中央区赤井町 | 詳細を見る | |
マンション ST.WEAVE3(1K/1階) | |||||||
![]() | 6.3万円 5,000円 | 6.3万円 6.3万円 | 1K 25.52m2 | 築11年 | 京成本線 京成津田沼駅 徒歩11分 JR総武線 津田沼駅 徒歩14分 京成本線 谷津駅 徒歩16分 千葉県習志野市谷津 | 詳細を見る | |
アパート アメニティハウス(1K/1階) | |||||||
![]() | 4.6万円 3,500円 | 2.3万円 2.3万円 | 1K 26.98m2 | 築18年 | 京成本線 実籾駅 徒歩5分 京成本線 八千代台駅 徒歩32分 京成本線 京成大久保駅 徒歩32分 千葉県習志野市実籾 | 詳細を見る | |








