賃貸マンション
ブライズ清澄白河の賃貸物件情報(1K/6階)
| 家賃 | 管理費等 | 敷金 | 礼金 | 間取り | 専有面積 |
|---|---|---|---|---|---|
| 12万円 | なし | 12万円 | 24万円 | 1K | 25.46m2 |
入居決定でお祝い金最大100,000円
- 保証金
- -
- 償却・敷引
- -
- 築年数
- 築14年
- 所在階
- 6階
- 向き
- -
Point
まずはお問い合わせ!
不動産会社は街のプロ、あなたに合った物件がきっと見つかります。
提供:センチュリー21(株)ロータスアセットパートナーズみんなのへや豊洲駅前店(SUUMO経由)

詳細情報 ブライズ清澄白河
物件紹介
ブライズ清澄白河は東京メトロ半蔵門線清澄白河駅から徒歩5分にあり、駅近で通勤通学に便利なマンションです。
このお部屋は2階以上に位置しているので、通行人や周囲の住人からの視線が気になりにくく、防犯面でも安心。建物のエントランスはオートロックがついており、インターホンにはTVモニタもついているため、相手の顔を確認してから来客対応することができます。
おしゃれなデザイナーズ物件!人気の角部屋で周囲の居住者の生活音も気になりにくく、また、フローリングのお部屋なのでお掃除もラクラク。キッチンはシステムキッチン仕様になっていますので、お料理好きの方にもぴったり。バス・トイレは別なので、のんびりお風呂タイムも楽しめるでしょう。また、雨の日でも浴室乾燥機を使えば、お洗濯も問題ありません。
通信設備面では、インターネット接続が可能です。また、BSアンテナ・CSアンテナもありますので、おうち時間も充実するでしょう(別途工事、契約料が必要な場合あり)。
建物にはエレベーターがついているので、重い荷物があっても安心。共用部には宅配ボックスが設定されているので、不在の時にも荷物を受け取ることができます。
このお部屋は2階以上に位置しているので、通行人や周囲の住人からの視線が気になりにくく、防犯面でも安心。建物のエントランスはオートロックがついており、インターホンにはTVモニタもついているため、相手の顔を確認してから来客対応することができます。
おしゃれなデザイナーズ物件!人気の角部屋で周囲の居住者の生活音も気になりにくく、また、フローリングのお部屋なのでお掃除もラクラク。キッチンはシステムキッチン仕様になっていますので、お料理好きの方にもぴったり。バス・トイレは別なので、のんびりお風呂タイムも楽しめるでしょう。また、雨の日でも浴室乾燥機を使えば、お洗濯も問題ありません。
通信設備面では、インターネット接続が可能です。また、BSアンテナ・CSアンテナもありますので、おうち時間も充実するでしょう(別途工事、契約料が必要な場合あり)。
建物にはエレベーターがついているので、重い荷物があっても安心。共用部には宅配ボックスが設定されているので、不在の時にも荷物を受け取ることができます。
お金・契約の情報
※「-」と表示されているものは、実際は料金が発生するものもございます。詳細はお問い合わせください。
| 家賃 | 12万円 | 管理費・共益費 | なし |
|---|---|---|---|
| 敷金 | 12万円 | 礼金 | 24万円 |
| 入居決定でお祝い金最大100,000円 | |||
| 保証金 | - | 償却・敷引 | - |
| 住宅保険料 | - | 更新料 | - |
| 保証会社利用 | 必須 | 保証会社名 | - |
| 保証会社費用 | - | 保証会社備考 | 保証会社利用必 初回:賃料+管理費の100% 年毎:10 000円 月額:1.5% |
| 契約形態 | - | 契約期間 | - |
| 入居・引渡期間 | - | 現況 | - |
| 契約備考 | 【目黒駅徒歩3分★GRANDE目黒店】素敵なお部屋ご紹介します★お問合せ即レスポンス◎ご内覧、初期費用お見積り、入居希望日のご相談等なんでもお気軽にお問合せください◎LINEでの対応も可能です◎ 合計4.73万円(内訳:24時間サポート1.65万円鍵交換代3.08万円) 更新料 新賃料1.00ヶ月分 1K 普通借家2年 損保【2万円2年】 バストイレ別、バルコニー、エアコン、ガスコンロ対応、クロゼット、フローリング、TVインターホン、浴室乾燥機、オートロック、室内洗濯置、陽当り良好、シューズボックス、システムキッチン、角住戸、温水洗浄便座、脱衣所、エレベーター、洗面所独立、洗面化粧台、2口コンロ、宅配ボックス、外壁タイル張り、閑静な住宅地、2面採光、防犯カメラ、分譲賃貸、保証人不要、ガスレンジ付、デザイナーズ、2沿線利用可、眺望良好、ダブルロックキー、保証金不要、24時間換気システム、耐震構造、2駅利用可、3駅以上利用可、3沿線以上利用可、防犯強化地域、駅徒歩5分以内、駅徒歩10分以内、24時間ゴミ出し可、敷地内ごみ置き場、都市ガス、洗面所にドア、保証会社利用可、通風良好 入居日:'26年3月下旬 | ||
部屋の情報
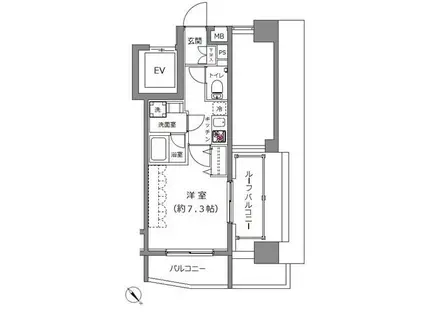
| 間取り | 1K | 専有面積 | 25.46m2 |
|---|---|---|---|
| 所在階 / 向き | 6階 / - | バルコニー面積 | - |
| 水道 / ガス | - | ||
| 設備 | バス・トイレ別、2階以上、オートロック、テレビドアホン、宅配ボックス、浴室乾燥機、システムキッチン、エアコン、エレベーター、温水洗浄便座、角部屋、バルコニー、フローリング、洗髪洗面化粧台、2口コンロ、コンロ:ガス、デザイナーズ、洗濯機:室内 | ||
| 当社物件ID | 17509154 | ||
建物の情報
| 建物名 | ブライズ清澄白河 | ||
|---|---|---|---|
| 所在地 | 東京都江東区平野 | ||
| 交通 | 東京メトロ半蔵門線 清澄白河駅 徒歩5分 都営新宿線 菊川駅(東京) 徒歩17分 東京メトロ東西線 門前仲町駅 徒歩19分 | ||
| 階数 | 7階建 | 総戸数 | - |
| 築年月 | 2012年03月 / 築14年 | エレベーター | あり |
| 駐車場 | なし | バイク置き場 | - |
| 駐輪場 | - | 管理人/管理会社 | - |
| 周辺環境 | その他 ブルーボトルコーヒー 清澄白河ロースタリー&カフェ(飲食店)まで442m その他 Brigela(ブリジェラ)清澄白河店(飲食店)まで235m その他 Artichoke chocolate(ア-ティチョ-ク チ(飲食店)まで568m その他 東京都現代美術館(その他)まで437m その他 ファミリーマート 清澄白河駅前店(コンビニ)まで614m その他 木場公園(公園)まで753m | ||
| 建物種別 | マンション | 建物構造 | RC(鉄筋コンクリート) |
この部屋の取扱い不動産会社
| 会社名 | (株)GRANDE目黒店(SUUMO経由) | ||
|---|---|---|---|
| 所在地 | 東京都目黒区目黒1-4-9 生報ビル2階 | 交通 | - |
| 営業時間 | 10:00~20:00 | 定休日 | 水曜日 |
| 免許番号 | 東京都知事97335 | 取引態様 | 仲介 |
| 不動産会社管理番号 | 100490749663 | 当社管理番号 | 89 |
| 取扱い物件情報 | 物件詳細へ | ||
※各種情報と現状に差異がある場合は、現状優先となります。問い合わせをすることで、より詳しい条件、情報を確認する事ができます。
提供:(株)GRANDE目黒店(SUUMO経由)
この物件が気になったら掲載期限まであと11日
ブライズ清澄白河に条件(家賃・エリア)が近い物件一覧
| 写真 | 家賃 管理費等 | 敷金 礼金 | 間取り 専有面積 | 築年数 | 最寄り駅 所在地 | キープ | 詳細 |
|---|---|---|---|---|---|---|---|
マンション ハイネス大森(2DK/3階) | |||||||
![]() | 13.6万円 6,000円 | 13.6万円 なし | 2DK 41.16m2 | 築42年 | 京急本線 大森町駅 徒歩10分 京急本線 梅屋敷駅(東京) 徒歩16分 JR京浜東北線 大森駅(東京) 徒歩23分 東京都大田区大森西 | 詳細を見る | |
マンション あやめガーデン(2K/10階) | |||||||
![]() | 17.5万円 1万円 | 17.5万円 17.5万円 | 2K 42.26m2 | 築12年 | 東京メトロ日比谷線 築地駅 徒歩1分 東京メトロ有楽町線 新富町駅(東京) 徒歩6分 東京メトロ日比谷線 東銀座駅 徒歩6分 東京都中央区築地 | 詳細を見る | |
マンション グラン シャリオ(1K/1階) | |||||||
![]() | 7.7万円 5,600円 | 7.7万円 7.7万円 | 1K 22.46m2 | 築17年 | 東急多摩川線 武蔵新田駅 徒歩9分 東急多摩川線 矢口渡駅 徒歩11分 東京都大田区矢口2丁目 | 詳細を見る | |
マンション シェモア加瀬(2K/3階) | |||||||
![]() | 9.9万円 4,000円 | 9.9万円 9.9万円 | 2K 34m2 | 築22年 | 京浜急行電鉄本線 梅屋敷駅(東京) 徒歩5分 京浜急行電鉄本線 大森町駅 徒歩10分 東京都大田区大森中2丁目 | 詳細を見る | |
マンション ロサルバ大森(2DK/4階) | |||||||
![]() | 16.1万円 7,000円 | 16.1万円 16.1万円 | 2DK 50.48m2 | 築23年 | 京急本線 大森町駅 徒歩8分 京急本線 梅屋敷駅(東京) 徒歩8分 京急本線 平和島駅 徒歩14分 東京都大田区大森西 | 詳細を見る | |
マンション メゾンドボナール(1DK/4階) | |||||||
![]() | 11.6万円 3,000円 | 11.6万円 11.6万円 | 1DK 32.48m2 | 築29年 | 京浜東北・根岸線 蒲田駅 徒歩10分 京浜急行電鉄本線 京急蒲田駅 徒歩10分 東京都大田区蒲田3丁目 | 詳細を見る | |
マンション ルフォンプログレ門前仲町マークス(1DK/2階) | |||||||
![]() | 14.9万円 1.5万円 | 14.9万円 なし | 1DK 27.25m2 | 築5年 | 東京メトロ東西線 門前仲町駅 徒歩6分 東京メトロ半蔵門線 清澄白河駅 徒歩12分 JR京葉線 越中島駅 徒歩16分 東京都江東区深川 | 詳細を見る | |
マンション SEED JUST B-BASE COAST(1LDK/4階) | |||||||
![]() | 8.8万円 1.5万円 | 8.8万円 8.8万円 | 1LDK 23.07m2 | 築1年 | 東京モノレール羽田 昭和島駅 徒歩11分 京浜急行電鉄本線 梅屋敷駅(東京) 徒歩19分 東京都大田区大森南4丁目 | 詳細を見る | |








