賃貸マンション
リビングVIIIの賃貸物件情報(ワンルーム/3階)
| 家賃 | 管理費等 | 敷金 | 礼金 | 間取り | 専有面積 |
|---|---|---|---|---|---|
| 4万円 | 5,000円 | なし | 10万円 | ワンルーム | 25.51m2 |
入居決定でお祝い金最大100,000円
- 保証金
- 10.0万円
- 償却・敷引
- -
- 築年数
- 築27年
- 所在階
- 3階
- 向き
- 西
Point
駅から徒歩圏内のワンルーム お部屋のキッチンが扉で別々の空間が セパレートタイプで独立洗面台もあります
提供:(株)亀岡ハウジング(SUUMO経由)

詳細情報 リビングVIII
物件紹介
リビングVIIIはJR山陰本線馬堀駅から徒歩11分にあるマンションです。
このお部屋は2階以上に位置しているので、通行人や周囲の住人からの視線が気になりにくく、防犯面でも安心です。
フローリングのお部屋なのでお掃除もラクラク。バス・トイレ別の仕様で、のんびりお風呂タイムも楽しめます。
通信設備面では、インターネット接続が可能です。また、BSアンテナもありますので、おうち時間も充実するでしょう(別途工事、契約料が必要な場合あり)。
このお部屋は2階以上に位置しているので、通行人や周囲の住人からの視線が気になりにくく、防犯面でも安心です。
フローリングのお部屋なのでお掃除もラクラク。バス・トイレ別の仕様で、のんびりお風呂タイムも楽しめます。
通信設備面では、インターネット接続が可能です。また、BSアンテナもありますので、おうち時間も充実するでしょう(別途工事、契約料が必要な場合あり)。
お金・契約の情報
※「-」と表示されているものは、実際は料金が発生するものもございます。詳細はお問い合わせください。
| 家賃 | 4万円 | 管理費・共益費 | 5,000円 |
|---|---|---|---|
| 敷金 | なし | 礼金 | 10万円 |
| 入居決定でお祝い金最大100,000円 | |||
| 保証金 | 10.0万円 | 償却・敷引 | - |
| 住宅保険料 | - | 更新料 | - |
| 契約形態 | - | 契約期間 | - |
| 入居・引渡期間 | - | 現況 | - |
| 契約備考 | ワンルーム 損保【1.8万円2年】 バストイレ別、バルコニー、エアコン、クロゼット、フローリング、室内洗濯置、シューズボックス、洗面所独立、洗面化粧台、2口コンロ、駐輪場、光ファイバー、敷金不要、照明付、グリル付、バイク置場、カードキー、ガスレンジ付、駅徒歩10分以内、敷地内ごみ置き場、プロパンガス、シャワールーム、玄関収納、BS、全室照明付 入居日:'26年4月初旬 | ||
部屋の情報
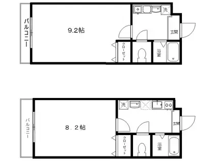
| 間取り | ワンルーム | 専有面積 | 25.51m2 |
|---|---|---|---|
| 所在階 / 向き | 3階 / 西 | バルコニー面積 | - |
| 水道 / ガス | - | ||
| 設備 | バス・トイレ別、2階以上、インターネット対応、エアコン、バルコニー、フローリング、洗髪洗面化粧台、2口コンロ、コンロ:ガス、BSアンテナ、洗濯機:室内 | ||
| 当社物件ID | 30614544 | ||
建物の情報
| 建物名 | リビングVIII | ||
|---|---|---|---|
| 所在地 | 京都府亀岡市篠町柏原町頭 | ||
| 交通 | JR山陰本線 馬堀駅 徒歩11分 JR山陰本線 亀岡駅 徒歩19分 JR山陰本線 並河駅 徒歩58分 | ||
| 階数 | 4階建 | 総戸数 | - |
| 築年月 | 2000年01月 / 築27年 | エレベーター | - |
| 駐車場 | 近隣 50m6000円 | バイク置き場 | あり |
| 駐輪場 | あり | 管理人/管理会社 | - |
| 周辺環境 | その他 フレスコ亀岡店(スーパー)まで1014m その他 ローソン亀岡馬堀店(コンビニ)まで547m その他 ダックス亀岡篠店(ドラッグストア)まで996m その他 亀岡西つつじヶ丘郵便局(郵便局)まで1381m その他 京都銀行東亀岡支店(銀行)まで973m その他 医療法人亀岡病院(病院)まで752m | ||
| 建物種別 | マンション | 建物構造 | RC(鉄筋コンクリート) |
この部屋の取扱い不動産会社
| 会社名 | (株)亀岡ハウジング(SUUMO経由) | ||
|---|---|---|---|
| 所在地 | 京都府亀岡市三宅町 107-7 | 交通 | - |
| 営業時間 | 9:30~17:30 | 定休日 | 毎週火曜・水曜 |
| 免許番号 | 京都府知事6247 | 取引態様 | 仲介 |
| 不動産会社管理番号 | 100486299635 | 当社管理番号 | 89 |
| 所属団体 | (公社)京都府宅地建物取引業協会会員 | ||
| 公正取引協議会 | (公社)近畿地区不動産公正取引協議会加盟 | ||
| 取扱い物件情報 | 物件詳細へ | ||
※各種情報と現状に差異がある場合は、現状優先となります。問い合わせをすることで、より詳しい条件、情報を確認する事ができます。
提供:(株)亀岡ハウジング(SUUMO経由)
この物件が気になったら掲載期限まであと11日
リビングVIIIに条件(家賃・エリア)が近い物件一覧
| 写真 | 家賃 管理費等 | 敷金 礼金 | 間取り 専有面積 | 築年数 | 最寄り駅 所在地 | キープ | 詳細 |
|---|---|---|---|---|---|---|---|
アパート 京都市烏丸線 北山駅(京都) 徒歩14分 築48年(ワンルーム/1階) | |||||||
![]() | 3.5万円 4,000円 | 5万円 なし | ワンルーム 16m2 | 築48年 | 京都市烏丸線 北山駅(京都) 徒歩14分 京都市烏丸線 北大路駅 徒歩17分 京都府京都市北区上賀茂南大路町 | 詳細を見る | |
マンション 京都市烏丸線 松ケ崎駅(京都) 徒歩12分 築38年(1K/6階) | |||||||
![]() | 5万円 6,000円 | 5万円 5万円 | 1K 26.98m2 | 築38年 | 京都市烏丸線 松ケ崎駅(京都) 徒歩12分 京都市烏丸線 北山駅(京都) 徒歩14分 京都府京都市左京区下鴨東本町 | 詳細を見る | |
マンション 京都市烏丸線 四条駅(京都市営) 徒歩5分 築26年(1K/6階) | |||||||
![]() | 6.2万円 6,000円 | 6.2万円 10万円 | 1K 23.36m2 | 築26年 | 京都市烏丸線 四条駅(京都市営) 徒歩5分 京都市烏丸線 五条駅(京都市営) 徒歩6分 京都府京都市下京区因幡堂町 | 詳細を見る | |
マンション 近鉄京都線 上鳥羽口駅 徒歩9分 築14年(1K/3階) | |||||||
![]() | 6.1万円 4,600円 | なし 9万円 | 1K 30.96m2 | 築14年 | 近鉄京都線 上鳥羽口駅 徒歩9分 京都市烏丸線 竹田駅(京都) 徒歩13分 京都府京都市南区上鳥羽卯ノ花町町 | 詳細を見る | |
アパート 京都市東西線 太秦天神川駅 徒歩12分 築7年(ワンルーム/2階) | |||||||
![]() | 4.9万円 6,000円 | なし 4.9万円 | ワンルーム 12.25m2 | 築7年 | 京都市東西線 太秦天神川駅 徒歩12分 阪急電鉄京都線 西院駅(阪急) 徒歩19分 京都府京都市右京区山ノ内中畑町 | 詳細を見る | |
マンション 阪急電鉄京都線 西院駅(阪急) 徒歩13分 築12年(1K/2階) | |||||||
![]() | 5.6万円 4,000円 | 5.6万円 なし | 1K 22.32m2 | 築12年 | 阪急電鉄京都線 西院駅(阪急) 徒歩13分 山陰本線 二条駅 徒歩14分 京都府京都市中京区西ノ京西中合町 | 詳細を見る | |
マンション 東海道本線 西大路駅 徒歩14分 築18年(1K/1階) | |||||||
![]() | 6.4万円 7,000円 | なし 6.4万円 | 1K 20.81m2 | 築18年 | 東海道本線 西大路駅 徒歩14分 阪急電鉄京都線 西京極駅 徒歩30分 京都府京都市南区吉祥院西ノ茶屋町 | 詳細を見る | |








