賃貸マンション
阪急電鉄京都線 大宮駅(京都) 徒歩5分 10階建 築27年の賃貸物件情報(3LDK/7階)
| 家賃 | 管理費等 | 敷金 | 礼金 | 間取り | 専有面積 |
|---|---|---|---|---|---|
| 13.8万円 | 1.1万円 | 5万円 | 15万円 | 3LDK | 69.35m2 |
入居決定でお祝い金最大100,000円
Point
阪急「大宮」徒歩5分。ファミリータイプ。
提供:株式会社 京都ライフ 三条烏丸店(賃貸スモッカ経由)

詳細情報 阪急電鉄京都線 大宮駅(京都) 徒歩5分 10階建 築27年
物件紹介
阪急電鉄京都線大宮駅から徒歩5分にあり、駅近で通勤通学に便利なマンションです。
このお部屋は2階以上に位置しているので、通行人や周囲の住人からの視線が気になりにくく、防犯面でも安心です。
人気の角部屋で周囲の居住者の生活音も気になりにくく、また、フローリングのお部屋なのでお掃除もラクラク。バス・トイレ別の仕様で、のんびりお風呂タイムも楽しめます。
通信設備面では、インターネット接続が可能です。また、BSアンテナ・CSアンテナもありますので、おうち時間も充実するでしょう(別途工事、契約料が必要な場合あり)。
建物にはエレベーターがついているので、重い荷物があっても安心。
このお部屋は2階以上に位置しているので、通行人や周囲の住人からの視線が気になりにくく、防犯面でも安心です。
人気の角部屋で周囲の居住者の生活音も気になりにくく、また、フローリングのお部屋なのでお掃除もラクラク。バス・トイレ別の仕様で、のんびりお風呂タイムも楽しめます。
通信設備面では、インターネット接続が可能です。また、BSアンテナ・CSアンテナもありますので、おうち時間も充実するでしょう(別途工事、契約料が必要な場合あり)。
建物にはエレベーターがついているので、重い荷物があっても安心。
お金・契約の情報
※「-」と表示されているものは、実際は料金が発生するものもございます。詳細はお問い合わせください。
| 家賃 | 13.8万円 | 管理費・共益費 | 1.1万円 |
|---|---|---|---|
| 敷金 | 5万円 | 礼金 | 15万円 |
| 入居決定でお祝い金最大100,000円 | |||
| 保証金 | - | 償却・敷引 | - |
| 住宅保険料 | 住宅保険料あり | 更新料 | - |
| 契約形態 | - | 契約期間 | 2年 |
| 入居・引渡期間 | 即時 | 現況 | 空室 |
| 契約備考 | 阪急「大宮」徒歩5分。ファミリータイプ。3WAYアクセス。交通、買物も大変便利です。 町会費:500円 更新料:1ヶ月 保証会社:利用必須 初回:月額賃料等の50%、更新時:1万円/1年 その他設備/条件:独立洗面台、即入居可 | ||
部屋の情報
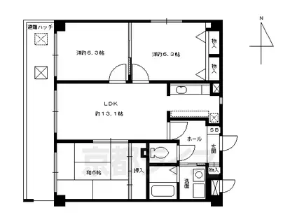
| 間取り | 3LDK | 専有面積 | 69.35m2 |
|---|---|---|---|
| 間取り詳細 | 洋室(6.3帖)、洋室(6.3帖)、和室(6帖)、LDK(13.1帖) | ||
| 所在階 / 向き | 7階 / 西 | バルコニー面積 | - |
| 水道 / ガス | ガス【都市】 | ||
| 設備 | バス・トイレ別、2階以上、インターネット対応、エレベーター、角部屋、バルコニー、フローリング、CSアンテナ、BSアンテナ、洗濯機:室内 | ||
| 当社物件ID | 159647124 | ||
建物の情報
| 建物名 | 阪急電鉄京都線 大宮駅(京都) 徒歩5分 10階建 築27年 | ||
|---|---|---|---|
| 所在地 | 京都府京都市下京区石井筒町 | ||
| 交通 | 阪急電鉄京都線 大宮駅(京都) 徒歩5分 京都市烏丸線 四条駅(京都市営) 徒歩8分 | ||
| 階数 | 10階建 | 総戸数 | - |
| 築年月 | 1999年09月 / 築27年 | エレベーター | あり |
| 駐車場 | - | バイク置き場 | - |
| 駐輪場 | あり | 管理人/管理会社 | - |
| 周辺環境 | 中学校 幌東中学校 徒歩8分(616m) その他 イーアス札幌 徒歩2分(147m) その他 北海道銀行白石区東札幌支店 徒歩4分(310m) その他 白石警察署 徒歩7分(496m) その他 イオン東札幌店 徒歩8分(588m) その他 スーパーアークス菊水店 徒歩8分(634m) その他 東札幌駅 徒歩6分(415m) その他 西松屋 徒歩6分(469m) | ||
| 建物種別 | マンション | 建物構造 | SRC(鉄骨鉄筋コンクリート) |
この部屋の取扱い不動産会社
| 会社名 | 株式会社 京都ライフ 三条烏丸店(賃貸スモッカ経由) | ||
|---|---|---|---|
| 所在地 | 京都市中京区三条通烏丸東入梅忠町24 三条COHJUBLDG 1F | 交通 | - |
| 営業時間 | - | 定休日 | - |
| 免許番号 | 京都府知事(11)第6353号 | 取引態様 | 仲介 |
| 不動産会社管理番号 | kyotolife_09237-701-21 | 当社管理番号 | 463 |
| 所属団体 | 京都府宅地建物取引業協会\n公益社団法人近畿地区不動産公正取引協議会 | ||
| 公正取引協議会 | 全国宅地建物取引業保証協会 | ||
| 取扱い物件情報 | 物件詳細へ | ||
※各種情報と現状に差異がある場合は、現状優先となります。問い合わせをすることで、より詳しい条件、情報を確認する事ができます。
提供:株式会社 京都ライフ 三条烏丸店(賃貸スモッカ経由)
この物件が気になったら掲載期限まであと6日
阪急電鉄京都線 大宮駅(京都) 徒歩5分 10階建 築27年に条件(家賃・エリア)が近い物件一覧
| 写真 | 家賃 管理費等 | 敷金 礼金 | 間取り 専有面積 | 築年数 | 最寄り駅 所在地 | キープ | 詳細 |
|---|---|---|---|---|---|---|---|
マンション 山陰本線 二条駅 徒歩4分 新築(1LDK/4階) | |||||||
![]() | 9.8万円 6,000円 | なし 9.8万円 | 1LDK 30.24m2 | 新築 | 山陰本線 二条駅 徒歩4分 阪急電鉄京都線 大宮駅(京都) 徒歩17分 京都府京都市中京区聚楽廻南町 | 詳細を見る | |
マンション 阪急電鉄京都線 西山天王山駅 徒歩3分 築13年(2LDK/5階) | |||||||
![]() | 10.5万円 1.2万円 | 10万円 25万円 | 2LDK 60.21m2 | 築13年 | 阪急電鉄京都線 西山天王山駅 徒歩3分 東海道本線 長岡京駅 徒歩23分 京都府長岡京市友岡4丁目 | 詳細を見る | |
マンション 東海道本線 西大路駅 徒歩8分 築41年(4LDK/3階) | |||||||
![]() | 16.2万円 1万円 | なし 16.2万円 | 4LDK 81.72m2 | 築41年 | 東海道本線 西大路駅 徒歩8分 阪急電鉄京都線 西京極駅 徒歩20分 京都府京都市下京区七条御所ノ内北町 | 詳細を見る | |
アパート ソレイユ梅小路公園(2DK/2階) | |||||||
![]() | 10万円 3,000円 | なし 20万円 | 2DK 53.99m2 | 築12年 | 東海道本線 京都駅 徒歩14分 近鉄京都線 東寺駅 徒歩15分 京都府京都市下京区上之町 | 詳細を見る | |
マンション 京阪電気鉄道京阪線 清水五条駅 徒歩5分 築2年(1LDK/2階) | |||||||
![]() | 13.4万円 1.5万円 | なし なし | 1LDK 42.98m2 | 築2年 | 京阪電気鉄道京阪線 清水五条駅 徒歩5分 阪急電鉄京都線 京都河原町駅 徒歩10分 川越線 西大宮駅 徒歩14分 京都府京都市下京区下鱗形町 | 詳細を見る | |
マンション 阪急電鉄京都線 大宮駅(京都) 徒歩6分 築22年(3LDK/2階) | |||||||
![]() | 15.1万円 9,000円 | なし 15.1万円 | 3LDK 69.68m2 | 築22年 | 阪急電鉄京都線 大宮駅(京都) 徒歩6分 京都市烏丸線 四条駅(京都市営) 徒歩8分 京都府京都市下京区石井筒町 | 詳細を見る | |
アパート IORI (1LDK/3階) | |||||||
![]() | 9.9万円 5,000円 | 9.9万円 9.9万円 | 1LDK 61.55m2 | 築1年 | 近鉄京都線 小倉駅(京都) 徒歩6分 奈良線 JR小倉駅 徒歩8分 奈良線 宇治駅(JR) 徒歩20分 京都府宇治市小倉町天王 | 詳細を見る | |








