賃貸マンション
プレノ清澄庭園の賃貸物件情報(1DK/2階)
| 家賃 | 管理費等 | 敷金 | 礼金 | 間取り | 専有面積 |
|---|---|---|---|---|---|
| 15.2万円 | 1万円 | 15.2万円 | 18.2399万円 | 1DK | 32.62m2 |
入居決定でお祝い金最大100,000円
- 保証金
- -
- 償却・敷引
- -
- 築年数
- 築8年
- 所在階
- 2階
- 向き
- 南西
Point
オンライン内見・契約実施中!初期費用クレカ決済もご相談ください!お部屋探しはピアホームにお任せください♪
提供:SEG(株)PeerHome新橋店(SUUMO経由)

詳細情報 プレノ清澄庭園
物件紹介
プレノ清澄庭園は都営大江戸線清澄白河駅から徒歩7分にあり、駅近で通勤通学に便利なマンションです。
このお部屋は2階以上に位置しているので、通行人や周囲の住人からの視線が気になりにくく、防犯面でも安心。建物のエントランスはオートロックがついており、インターホンにはTVモニタもついているため、相手の顔を確認してから来客対応することができます。
人気の南向きのお部屋。また、フローリングなのでお掃除もラクラク。キッチンはシステムキッチン仕様になっていますので、お料理好きの方にもぴったり。バス・トイレは別なので、のんびりお風呂タイムも楽しめるでしょう。また、雨の日でも浴室乾燥機を使えば、お洗濯も問題ありません。
通信設備面では、インターネットが無料で使えるので、月々の出費を抑えられるのも魅力です。また、BSアンテナ・CSアンテナがありCATVにも対応しているので、おうち時間も充実するでしょう(別途工事、BS・CS・CATVの契約料等が必要な場合あり)。
建物にはエレベーターがついているので、重い荷物があっても安心。共用部には宅配ボックスが設定されているので、不在の時にも荷物を受け取ることができます。
このお部屋は2階以上に位置しているので、通行人や周囲の住人からの視線が気になりにくく、防犯面でも安心。建物のエントランスはオートロックがついており、インターホンにはTVモニタもついているため、相手の顔を確認してから来客対応することができます。
人気の南向きのお部屋。また、フローリングなのでお掃除もラクラク。キッチンはシステムキッチン仕様になっていますので、お料理好きの方にもぴったり。バス・トイレは別なので、のんびりお風呂タイムも楽しめるでしょう。また、雨の日でも浴室乾燥機を使えば、お洗濯も問題ありません。
通信設備面では、インターネットが無料で使えるので、月々の出費を抑えられるのも魅力です。また、BSアンテナ・CSアンテナがありCATVにも対応しているので、おうち時間も充実するでしょう(別途工事、BS・CS・CATVの契約料等が必要な場合あり)。
建物にはエレベーターがついているので、重い荷物があっても安心。共用部には宅配ボックスが設定されているので、不在の時にも荷物を受け取ることができます。
お金・契約の情報
※「-」と表示されているものは、実際は料金が発生するものもございます。詳細はお問い合わせください。
| 家賃 | 15.2万円 | 管理費・共益費 | 1万円 |
|---|---|---|---|
| 敷金 | 15.2万円 | 礼金 | 18.2399万円 |
| 入居決定でお祝い金最大100,000円 | |||
| 保証金 | - | 償却・敷引 | - |
| 住宅保険料 | - | 更新料 | - |
| 保証会社利用 | 必須 | 保証会社名 | - |
| 保証会社費用 | - | 保証会社備考 | 保証会社利用必 ◆レジデントアシスタンス◆ 初回保証委託料(最低1.5万円):月額賃料等の50%、2年目以降:9600円10000円/年 |
| 契約形態 | 定期借家 | 契約期間 | 2年 |
| 入居・引渡期間 | - | 現況 | - |
| 契約備考 | 巡回管理/※1年未満解約時、1か月分の違約金有※同タイプ・別階の内観写真を掲載している場合があります。図面と現況が異なる場合は現況を優先いたします。 合計3.3万円(内訳:鍵交換:33000円) ■口座振替手数料:110円/月■室内清掃費:59400円■エアコン清掃費:借主負担 1DK 定期借家2年 損保【2万円2年】 バストイレ別、バルコニー、エアコン、ガスコンロ対応、クロゼット、フローリング、TVインターホン、浴室乾燥機、オートロック、室内洗濯置、陽当り良好、シューズボックス、システムキッチン、追焚機能浴室、温水洗浄便座、エレベーター、洗面所独立、2口コンロ、駐輪場、宅配ボックス、光ファイバー、防犯カメラ、オートバス、保証人不要、バイク置場、全居室フローリング、ディンプルキー、CS、ネット使用料不要、エアコン全室、敷地内ごみ置き場、日勤管理、都市ガス、BS、初期費用カード決済可 入居日:'25年12月下旬 | ||
部屋の情報
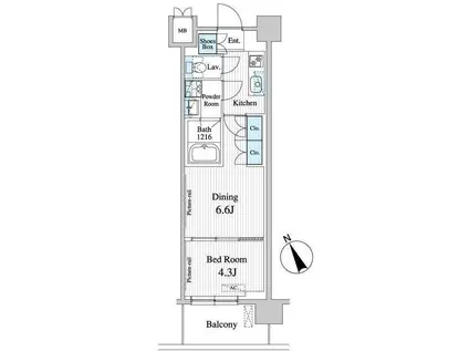
| 間取り | 1DK | 専有面積 | 32.62m2 |
|---|---|---|---|
| 所在階 / 向き | 2階 / 南西 | バルコニー面積 | - |
| 水道 / ガス | - | ||
| 設備 | バス・トイレ別、2階以上、オートロック、テレビドアホン、宅配ボックス、浴室乾燥機、追い焚き、インターネット対応、システムキッチン、エアコン、エレベーター、温水洗浄便座、南向き、バルコニー、フローリング、洗髪洗面化粧台、2口コンロ、コンロ:ガス、CSアンテナ、BSアンテナ、インターネット使用料無料、洗濯機:室内 | ||
| 当社物件ID | 25637096 | ||
建物の情報
| 建物名 | プレノ清澄庭園 | ||
|---|---|---|---|
| 所在地 | 東京都江東区清澄 | ||
| 交通 | 東京メトロ半蔵門線 清澄白河駅 徒歩8分 東京メトロ半蔵門線 水天宮前駅 徒歩13分 都営大江戸線 森下駅(東京) 徒歩14分 | ||
| 階数 | 9階建 | 総戸数 | - |
| 築年月 | 2018年01月 / 築8年 | エレベーター | あり |
| 駐車場 | 近隣 50m50000円 | バイク置き場 | あり |
| 駐輪場 | あり | 管理人/管理会社 | - |
| 周辺環境 | その他 セブンイレブン 江東佐賀2丁目店(コンビニ)まで282m その他 オーケー 平野店(スーパー)まで1006m その他 あそか病院(病院)まで1938m その他 明治小学校(小学校)まで707m その他 深川第六中学校(中学校)まで1148m | ||
| 建物種別 | マンション | 建物構造 | RC(鉄筋コンクリート) |
この部屋の取扱い不動産会社
| 会社名 | ピアホーム広尾駅前店(株)PH.C(SUUMO経由) | ||
|---|---|---|---|
| 所在地 | 東京都港区南麻布5-15-11広尾セオハウス2階 | 交通 | - |
| 営業時間 | 9:00~18:30 | 定休日 | 無し |
| 免許番号 | 東京都知事106525 | 取引態様 | 仲介 |
| 不動産会社管理番号 | 100470503826 | 当社管理番号 | 89 |
| 所属団体 | (公社)東京都宅地建物取引業協会会員 | ||
| 公正取引協議会 | (公社)首都圏不動産公正取引協議会加盟 | ||
| 取扱い物件情報 | 物件詳細へ | ||
※各種情報と現状に差異がある場合は、現状優先となります。問い合わせをすることで、より詳しい条件、情報を確認する事ができます。
提供:ピアホーム広尾駅前店(株)PH.C(SUUMO経由)
この物件が気になったら掲載期限まであと10日
プレノ清澄庭園に条件(家賃・エリア)が近い物件一覧
| 写真 | 家賃 管理費等 | 敷金 礼金 | 間取り 専有面積 | 築年数 | 最寄り駅 所在地 | キープ | 詳細 |
|---|---|---|---|---|---|---|---|
マンション コンフォリア森下(1K/3階) | |||||||
![]() | 11.2万円 8,000円 | 11.2万円 なし | 1K 25m2 | 築19年 | 東京都新宿線 森下駅(東京) 徒歩2分 東京地下鉄半蔵門線 清澄白河駅 徒歩12分 総武・中央緩行線 両国駅 徒歩14分 東京都江東区新大橋3丁目 | 詳細を見る | |
マンション プレール・ドゥーク亀戸水神駅前(1K/3階) | |||||||
![]() | 9.9万円 5,000円 | なし 9.9万円 | 1K 26.17m2 | 築9年 | 東武鉄道亀戸線 亀戸水神駅 徒歩1分 総武・中央緩行線 亀戸駅 徒歩10分 東武鉄道亀戸線 東あずま駅 徒歩13分 東京都江東区亀戸8丁目 | 詳細を見る | |
マンション ゼファーズ日本橋浜町(1LDK/6階) | |||||||
![]() | 17.5万円 1.1万円 | なし 17.5万円 | 1LDK 32.57m2 | 築14年 | 東京都新宿線 浜町駅 徒歩4分 東京地下鉄半蔵門線 水天宮前駅 徒歩9分 東京地下鉄日比谷線 人形町駅 徒歩10分 東京都中央区日本橋浜町2丁目 | 詳細を見る | |
マンション ブレシア銀座イースト(1K/3階) | |||||||
![]() | 12.3万円 1.2万円 | なし なし | 1K 20.6m2 | 築16年 | 東京地下鉄有楽町線 新富町駅(東京) 徒歩2分 東京都浅草線 東銀座駅 徒歩7分 東京地下鉄日比谷線 八丁堀駅(東京) 徒歩7分 東京都中央区新富1丁目 | 詳細を見る | |
マンション オーキッドレジデンス住吉(ワンルーム/2階) | |||||||
![]() | 11.5万円 1万円 | 11.5万円 なし | ワンルーム 25.99m2 | 築6年 | 東京地下鉄半蔵門線 住吉駅(東京) 徒歩6分 東京都江東区毛利1丁目 | 詳細を見る | |
マンション アーバネックス深川住吉III(1DK/10階) | |||||||
![]() | 13.5万円 1万円 | 13.5万円 なし | 1DK 25.16m2 | 築5年 | 東京メトロ半蔵門線 住吉駅(東京) 徒歩2分 都営新宿線 住吉駅(東京) 徒歩2分 JR総武線 錦糸町駅 徒歩13分 東京都江東区住吉 | 詳細を見る | |
マンション ZOOM両国(1K/5階) | |||||||
![]() | 11.2万円 8,000円 | 11.2万円 11.2万円 | 1K 26.42m2 | 築9年 | 総武・中央緩行線 両国駅 徒歩6分 東京都大江戸線 森下駅(東京) 徒歩10分 東京都新宿線 森下駅(東京) 徒歩10分 東京都墨田区両国2丁目 | 詳細を見る | |
マンション ラ・メゾン足柄(2LDK/3階) | |||||||
![]() | 15.7万円 3,000円 | 15.7万円 15.7万円 | 2LDK 54.74m2 | 築34年 | 京浜東北・根岸線 蒲田駅 徒歩6分 京浜急行電鉄本線 京急蒲田駅 徒歩14分 東京都大田区蒲田1丁目 | 詳細を見る | |








