賃貸アパート
クレル西川原の賃貸物件情報(1K/1階)
| 家賃 | 管理費等 | 敷金 | 礼金 | 間取り | 専有面積 |
|---|---|---|---|---|---|
| 5.1万円 | 3,500円 | 5.1万円 | 5.1万円 | 1K | 35.09m2 |
入居決定でお祝い金最大100,000円
- 保証金
- -
- 償却・敷引
- -
- 築年数
- 築4年
- 所在階
- 1階
- 向き
- 南
Point
JR西川原駅徒歩圏内☆追い焚き・浴室乾燥・ウォシュレット・エアコンなど人気の設備充実 お車でご来店の際は、店舗前駐車場もしくは、周辺のコインパーキングをご利用いただければ、弊社の方でご精算させていただ
提供:いい部屋ネット(株)良和ハウス岡山中央店(SUUMO経由)

詳細情報 クレル西川原
物件紹介
クレル西川原はJR山陽本線西川原駅から徒歩9分にあり、駅近で通勤通学に便利なアパートです。
建物のエントランスはオートロックがついており、インターホンにはTVモニタもついているため、相手の顔を確認してから来客対応することができます。
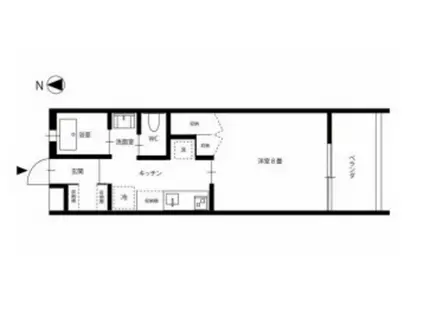
人気の南向き・フローリングのお部屋。角部屋でもあるため、周囲の居住者の生活音も気になりにくい場所です。キッチンはシステムキッチン仕様になっていますので、お料理好きの方にもぴったり。バス・トイレは別なので、のんびりお風呂タイムも楽しめるでしょう。また、雨の日でも浴室乾燥機を使えば、お洗濯も問題ありません。
通信設備面では、インターネットが無料で使えるので、月々の出費を抑えられるのも魅力です(別途工事等が必要な場合あり)。
建物のエントランスはオートロックがついており、インターホンにはTVモニタもついているため、相手の顔を確認してから来客対応することができます。
人気の南向き・フローリングのお部屋。角部屋でもあるため、周囲の居住者の生活音も気になりにくい場所です。キッチンはシステムキッチン仕様になっていますので、お料理好きの方にもぴったり。バス・トイレは別なので、のんびりお風呂タイムも楽しめるでしょう。また、雨の日でも浴室乾燥機を使えば、お洗濯も問題ありません。
通信設備面では、インターネットが無料で使えるので、月々の出費を抑えられるのも魅力です(別途工事等が必要な場合あり)。
お金・契約の情報
※「-」と表示されているものは、実際は料金が発生するものもございます。詳細はお問い合わせください。
| 家賃 | 5.1万円 | 管理費・共益費 | 3,500円 |
|---|---|---|---|
| 敷金 | 5.1万円 | 礼金 | 5.1万円 |
| 入居決定でお祝い金最大100,000円 | |||
| 保証金 | - | 償却・敷引 | - |
| 住宅保険料 | - | 更新料 | - |
| 契約形態 | - | 契約期間 | - |
| 入居・引渡期間 | - | 現況 | - |
| 契約備考 | 1K 損保【2万円2年】 バストイレ別、バルコニー、エアコン、クロゼット、フローリング、TVインターホン、浴室乾燥機、オートロック、室内洗濯置、シューズボックス、システムキッチン、南向き、追焚機能浴室、角住戸、温水洗浄便座、脱衣所、洗面所独立、洗面化粧台、2口コンロ、駐輪場、IHクッキングヒーター、照明付、全居室洋室、単身者相談、全居室フローリング、2沿線利用可、駅まで平坦、ネット使用料不要、平坦地、学生敷金不要、3駅以上利用可、駅徒歩10分以内、築5年以内、平面駐車場、オープンキッチン、プロパンガス 入居日:'26年4月初旬 | ||
部屋の情報
| 間取り | 1K | 専有面積 | 35.09m2 |
|---|---|---|---|
| 所在階 / 向き | 1階 / 南 | バルコニー面積 | - |
| 水道 / ガス | - | ||
| 設備 | バス・トイレ別、オートロック、テレビドアホン、浴室乾燥機、追い焚き、インターネット対応、システムキッチン、エアコン、温水洗浄便座、南向き、角部屋、バルコニー、フローリング、洗髪洗面化粧台、2口コンロ、コンロ:IH、インターネット使用料無料、洗濯機:室内 | ||
| 当社物件ID | 102150425 | ||
建物の情報
| 建物名 | クレル西川原 | ||
|---|---|---|---|
| 所在地 | 岡山県岡山市中区竹田 | ||
| 交通 | JR山陽本線 西川原駅 徒歩9分 JR津山線 法界院駅 徒歩25分 JR山陽本線 高島駅(岡山) 徒歩27分 | ||
| 階数 | 2階建 | 総戸数 | - |
| 築年月 | 2022年02月 / 築4年 | エレベーター | - |
| 駐車場 | 空有 5500円 | バイク置き場 | - |
| 駐輪場 | あり | 管理人/管理会社 | - |
| 周辺環境 | その他 岡山市立岡北中学校(中学校)まで2067m その他 岡山市立御野幼稚園(幼稚園・保育園)まで1629m その他 岡山県立岡山操山高校(高校・高専)まで1423m その他 私立就実小学校(小学校)まで1122m その他 岡山市中区役所(役所)まで1844m その他 岡山北方郵便局(郵便局)まで1800m | ||
| 建物種別 | アパート | 建物構造 | 木造 |
この部屋の取扱い不動産会社
| 会社名 | いい部屋ネット(株)良和ハウス岡山中央店(SUUMO経由) | ||
|---|---|---|---|
| 所在地 | 岡山県岡山市北区田町1-3-1 | 交通 | - |
| 営業時間 | 10時~17時 | 定休日 | 火曜日 |
| 免許番号 | 国土交通大臣9113 | 取引態様 | 仲介 |
| 不動産会社管理番号 | 100472598459 | 当社管理番号 | 89 |
| 所属団体 | (公社)広島県宅地建物取引業協会会員 | ||
| 公正取引協議会 | 中国地区不動産公正取引協議会加盟 | ||
| 取扱い物件情報 | 物件詳細へ | ||
※各種情報と現状に差異がある場合は、現状優先となります。問い合わせをすることで、より詳しい条件、情報を確認する事ができます。
提供:いい部屋ネット(株)良和ハウス岡山中央店(SUUMO経由)
この物件が気になったら掲載期限まであと11日
クレル西川原に条件(家賃・エリア)が近い物件一覧
| 写真 | 家賃 管理費等 | 敷金 礼金 | 間取り 専有面積 | 築年数 | 最寄り駅 所在地 | キープ | 詳細 |
|---|---|---|---|---|---|---|---|
マンション パルテールⅡ(3DK/1階) | |||||||
![]() | 5.35万円 4,400円 | なし なし | 3DK 57.05m2 | 築30年 | 山陽本線 高島駅(岡山) 徒歩3分 岡山県岡山市中区中井1丁目 | 詳細を見る | |

