賃貸マンション
ガラ・ステーション四谷三丁目の賃貸物件情報(1K/8階)
| 家賃 | 管理費等 | 敷金 | 礼金 | 間取り | 専有面積 |
|---|---|---|---|---|---|
| 9.5万円 | 9,000円 | 9.5万円 | 19万円 | 1K | 21.31m2 |
入居決定でお祝い金最大100,000円
- 保証金
- -
- 償却・敷引
- -
- 築年数
- 築23年
- 所在階
- 8階
- 向き
- 西
Point
契約金のお見積もりや室内写真のご希望など、ご質問・ご要望はお気軽にお問い合わせください。【初期費用の分割・クレジットカード決済可能です】
提供:R.select新宿南口店(株)EXIA(SUUMO経由)

詳細情報 ガラ・ステーション四谷三丁目
物件紹介
ガラ・ステーション四谷三丁目は東京メトロ丸ノ内線四谷三丁目駅から徒歩1分にあり、駅近で通勤通学に便利なマンションです。
このお部屋は2階以上に位置しているので、通行人や周囲の住人からの視線が気になりにくく、防犯面でも安心。建物のエントランスはオートロックがついており、インターホンにはTVモニタもついているため、相手の顔を確認してから来客対応することができます。
フローリングのお部屋なのでお掃除もラクラク。キッチンはシステムキッチン仕様になっていますので、お料理好きの方にもぴったり。バス・トイレは別なので、のんびりお風呂タイムも楽しめるでしょう。また、雨の日でも浴室乾燥機を使えば、お洗濯も問題ありません。
通信設備面では、インターネットが無料で使えるので、月々の出費を抑えられるのも魅力です。また、BSアンテナ・CSアンテナがありCATVにも対応しているので、おうち時間も充実するでしょう(別途工事、BS・CS・CATVの契約料等が必要な場合あり)。
建物にはエレベーターがついているので、重い荷物があっても安心。共用部には宅配ボックスが設定されているので、不在の時にも荷物を受け取ることができます。
このお部屋は2階以上に位置しているので、通行人や周囲の住人からの視線が気になりにくく、防犯面でも安心。建物のエントランスはオートロックがついており、インターホンにはTVモニタもついているため、相手の顔を確認してから来客対応することができます。
フローリングのお部屋なのでお掃除もラクラク。キッチンはシステムキッチン仕様になっていますので、お料理好きの方にもぴったり。バス・トイレは別なので、のんびりお風呂タイムも楽しめるでしょう。また、雨の日でも浴室乾燥機を使えば、お洗濯も問題ありません。
通信設備面では、インターネットが無料で使えるので、月々の出費を抑えられるのも魅力です。また、BSアンテナ・CSアンテナがありCATVにも対応しているので、おうち時間も充実するでしょう(別途工事、BS・CS・CATVの契約料等が必要な場合あり)。
建物にはエレベーターがついているので、重い荷物があっても安心。共用部には宅配ボックスが設定されているので、不在の時にも荷物を受け取ることができます。
お金・契約の情報
※「-」と表示されているものは、実際は料金が発生するものもございます。詳細はお問い合わせください。
| 家賃 | 9.5万円 | 管理費・共益費 | 9,000円 |
|---|---|---|---|
| 敷金 | 9.5万円 | 礼金 | 19万円 |
| 入居決定でお祝い金最大100,000円 | |||
| 保証金 | - | 償却・敷引 | - |
| 住宅保険料 | - | 更新料 | - |
| 保証会社利用 | 必須 | 保証会社名 | - |
| 保証会社費用 | - | 保証会社備考 | 保証会社利用必 初回:総賃料50% 月額賃料等合計の1.2% |
| 契約形態 | - | 契約期間 | - |
| 入居・引渡期間 | - | 現況 | - |
| 契約備考 | 初期費用の分割・クレジットカード決済可能です。お気軽にご相談下さい。退去時ルームクリーニング費用38500円、エアコンクリーニング費用13200円/1基。 合計2.31万円(内訳:鍵交換代2.31万円) 更新料 新賃料1.00ヶ月分 1K 普通借家2年 損保【2万円2年】 バストイレ別、バルコニー、エアコン、ガスコンロ対応、クロゼット、フローリング、シャワー付洗面台、TVインターホン、浴室乾燥機、オートロック、室内洗濯置、シューズボックス、システムキッチン、温水洗浄便座、脱衣所、エレベーター、洗面所独立、洗面化粧台、2口コンロ、駐輪場、宅配ボックス、CATV、光ファイバー、外壁タイル張り、BS・CS、防犯カメラ、照明付、グリル付、全居室洋室、保証人不要、敷金1ヶ月、CATVインターネット、バイク置場、24時間緊急通報システム、全居室フローリング、ディンプルキー、ネット専用回線、ネット使用料不要、眺望良好、エアコン全室、保証金不要、24時間換気システム、人感照明センサー、耐火構造、3駅以上利用可、3沿線以上利用可、駅前、高層階、24時間ゴミ出し可、敷地内ごみ置き場、全居室6畳以上、都市ガス、洗面所にドア、玄関収納、ダウンライト、マルチメディアコンセント、年度内入居可、保証会社利用可、IT重説対応物件、初期費用カード決済可 入居日:'26年1月中旬 | ||
部屋の情報
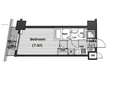
| 間取り | 1K | 専有面積 | 21.31m2 |
|---|---|---|---|
| 所在階 / 向き | 8階 / 西 | バルコニー面積 | 2m2 |
| 水道 / ガス | - | ||
| 設備 | バス・トイレ別、2階以上、オートロック、テレビドアホン、宅配ボックス、浴室乾燥機、インターネット対応、システムキッチン、エアコン、エレベーター、温水洗浄便座、バルコニー、フローリング、洗髪洗面化粧台、2口コンロ、コンロ:ガス、CATV、CSアンテナ、BSアンテナ、インターネット使用料無料、洗濯機:室内 | ||
| 当社物件ID | 2604410 | ||
建物の情報
| 建物名 | ガラ・ステーション四谷三丁目 | ||
|---|---|---|---|
| 所在地 | 東京都新宿区舟町 | ||
| 交通 | 東京メトロ丸ノ内線 四谷三丁目駅 徒歩1分 都営新宿線 曙橋駅 徒歩6分 東京メトロ南北線 四ツ谷駅 徒歩11分 | ||
| 階数 | 14階建 | 総戸数 | - |
| 築年月 | 2003年08月 / 築23年 | エレベーター | あり |
| 駐車場 | なし | バイク置き場 | あり |
| 駐輪場 | あり | 管理人/管理会社 | - |
| 周辺環境 | その他 四谷三丁目駅(その他)まで118m その他 曙橋駅(その他)まで524m その他 新宿御苑前駅(その他)まで973m その他 四ツ谷駅(その他)まで989m その他 信濃町駅(その他)まで963m その他 国立競技場駅(その他)まで1465m | ||
| 建物種別 | マンション | 建物構造 | SRC(鉄骨鉄筋コンクリート) |
この部屋の取扱い不動産会社
| 会社名 | (株)ルームワン高田馬場店(SUUMO経由) | ||
|---|---|---|---|
| 所在地 | 東京都新宿区高田馬場3-3-1 キカワダビル4階 | 交通 | - |
| 営業時間 | 10:00~19:00 | 定休日 | 水曜日 |
| 免許番号 | 東京都知事106608 | 取引態様 | 仲介 |
| 不動産会社管理番号 | 100480900105 | 当社管理番号 | 89 |
| 所属団体 | (公社)全日本不動産協会東京都本部会員 | ||
| 公正取引協議会 | (公社)首都圏不動産公正取引協議会加盟 | ||
| 取扱い物件情報 | 物件詳細へ | ||
※各種情報と現状に差異がある場合は、現状優先となります。問い合わせをすることで、より詳しい条件、情報を確認する事ができます。
提供:(株)ルームワン高田馬場店(SUUMO経由)
この物件が気になったら掲載期限まであと10日
ガラ・ステーション四谷三丁目に条件(家賃・エリア)が近い物件一覧
| 写真 | 家賃 管理費等 | 敷金 礼金 | 間取り 専有面積 | 築年数 | 最寄り駅 所在地 | キープ | 詳細 |
|---|---|---|---|---|---|---|---|
アパート メゾン・ド・プレテ(1K/2階) | |||||||
![]() | 7.3万円 2,000円 | 7.3万円 7.3万円 | 1K 16m2 | 築62年 | 東京都荒川線 東池袋四丁目駅 徒歩6分 東京地下鉄有楽町線 東池袋駅 徒歩8分 東京都荒川線 都電雑司ケ谷駅 徒歩8分 東京都文京区大塚6丁目 | 詳細を見る | |
マンション スカイコート目白台(1K/7階) | |||||||
![]() | 10.6万円 1万円 | 10.6万円 10.6万円 | 1K 30.07m2 | 築25年 | 東京地下鉄有楽町線 江戸川橋駅 徒歩7分 東京地下鉄有楽町線 護国寺駅 徒歩11分 東京都荒川線 早稲田駅(都電) 徒歩14分 東京都文京区関口2丁目 | 詳細を見る | |
マンション 真砂マンション(2DK/3階) | |||||||
![]() | 15.3万円 6,000円 | 15.3万円 15.3万円 | 2DK 53.46m2 | 築53年 | 東京都大江戸線 本郷三丁目駅 徒歩5分 東京都三田線 春日駅(東京) 徒歩8分 東京地下鉄南北線 後楽園駅 徒歩8分 東京都文京区本郷4丁目 | 詳細を見る | |
マンション パークウェル湯島(1K/10階) | |||||||
![]() | 9万円 なし | 9万円 9万円 | 1K 20.06m2 | 築25年 | 東京地下鉄千代田線 湯島駅 徒歩2分 東京地下鉄銀座線 末広町駅(東京) 徒歩4分 東京都大江戸線 上野御徒町駅 徒歩7分 東京都文京区湯島3丁目 | 詳細を見る | |
マンション ルフォンプログレ文京湯島(1K/7階) | |||||||
![]() | 15万円 1.5万円 | 15万円 15万円 | 1K 25.42m2 | 築6年 | 東京地下鉄千代田線 湯島駅 徒歩3分 山手線 御徒町駅 徒歩9分 中央本線 御茶ノ水駅 徒歩12分 東京都文京区湯島3丁目 | 詳細を見る | |
マンション VIDA017(1K/3階) | |||||||
![]() | 9.7万円 1万円 | 9.7万円 9.7万円 | 1K 24.77m2 | 築25年 | 総武・中央緩行線 浅草橋駅 徒歩5分 東京都新宿線 岩本町駅 徒歩6分 山手線 秋葉原駅 徒歩7分 東京都千代田区東神田2丁目 | 詳細を見る | |
マンション エスティメゾン千石(1K/2階) | |||||||
![]() | 9.9万円 1万円 | 9.9万円 9.9万円 | 1K 20.2m2 | 築17年 | 東京都三田線 千石駅 徒歩7分 山手線 巣鴨駅 徒歩9分 東京都文京区千石4丁目 | 詳細を見る | |
マンション コスモリード文京千駄木(1DK/5階) | |||||||
![]() | 13万円 1.5万円 | 13万円 なし | 1DK 36.2m2 | 築36年 | 東京地下鉄千代田線 千駄木駅 徒歩3分 東京地下鉄南北線 本駒込駅 徒歩10分 山手線 西日暮里駅 徒歩16分 東京都文京区千駄木1丁目 | 詳細を見る | |








