賃貸アパート
ウエストハイム豊玉の賃貸物件情報(1K/1階)
| 家賃 | 管理費等 | 敷金 | 礼金 | 間取り | 専有面積 |
|---|---|---|---|---|---|
| 7.5万円 | 7,000円 | 7.5万円 | なし | 1K | 25.13m2 |
入居決定でお祝い金最大100,000円
- 保証金
- -
- 償却・敷引
- -
- 築年数
- 築10年
- 所在階
- 1階
- 向き
- 東
Point
◎クリエイト池袋店≪池袋駅徒歩1分≫弊社では初期費用クレジット決済・分割支払い可能です!★私たちはお客様側に立って最大限にお手伝いをさせていただきます。審査等ご不安な方もお気軽にお問い合わせください!
提供:(株)エールーム赤羽店(SUUMO経由)

詳細情報 ウエストハイム豊玉
物件紹介
ウエストハイム豊玉は都営大江戸線新江古田駅から徒歩10分にあり、駅近で通勤通学に便利なアパートです。
このお部屋のインターホンにはTVモニタがついているため、相手の顔を確認してから来客対応することができます。
人気の角部屋で周囲の居住者の生活音も気になりにくく、また、フローリングのお部屋なのでお掃除もラクラク。キッチンはシステムキッチン仕様になっていますので、お料理好きの方にもぴったり。バス・トイレは別なので、のんびりお風呂タイムも楽しめるでしょう。また、雨の日でも浴室乾燥機を使えば、お洗濯も問題ありません。
通信設備面では、インターネット接続が可能です。また、BSアンテナ・CSアンテナがありCATVにも対応しているので、おうち時間も充実するでしょう(別途工事、契約料が必要な場合あり)。
このお部屋のインターホンにはTVモニタがついているため、相手の顔を確認してから来客対応することができます。
人気の角部屋で周囲の居住者の生活音も気になりにくく、また、フローリングのお部屋なのでお掃除もラクラク。キッチンはシステムキッチン仕様になっていますので、お料理好きの方にもぴったり。バス・トイレは別なので、のんびりお風呂タイムも楽しめるでしょう。また、雨の日でも浴室乾燥機を使えば、お洗濯も問題ありません。
通信設備面では、インターネット接続が可能です。また、BSアンテナ・CSアンテナがありCATVにも対応しているので、おうち時間も充実するでしょう(別途工事、契約料が必要な場合あり)。
お金・契約の情報
※「-」と表示されているものは、実際は料金が発生するものもございます。詳細はお問い合わせください。
| 家賃 | 7.5万円 | 管理費・共益費 | 7,000円 |
|---|---|---|---|
| 敷金 | 7.5万円 | 礼金 | なし |
| 入居決定でお祝い金最大100,000円 | |||
| 保証金 | - | 償却・敷引 | - |
| 住宅保険料 | - | 更新料 | - |
| 保証会社利用 | 必須 | 保証会社名 | - |
| 保証会社費用 | - | 保証会社備考 | 保証会社利用必 初回保証料 41,000円 |
| 契約形態 | - | 契約期間 | - |
| 入居・引渡期間 | 相談 | 現況 | - |
| 契約備考 | ほっともっと桜台駅前店まで945m/社会福祉法人浄風園中野江古田病まで675m/◎クリエイト池袋店≪池袋駅徒歩1分≫角部屋・独立洗面台・浴室乾燥機・追い焚き・温水洗浄便座・2口IH・室内洗濯機置き場。退去時の清掃費用、原状回復費用は借主負担。当社では初期費用クレジット決済可能です。 合計2.75万円(内訳:カギ交換費用27500円) 1K 単身者可 普通借家2年 損保【0.72万円1年】 バストイレ別、バルコニー、エアコン、クロゼット、フローリング、シャワー付洗面台、TVインターホン、浴室乾燥機、室内洗濯置、陽当り良好、シューズボックス、システムキッチン、追焚機能浴室、角住戸、温水洗浄便座、脱衣所、洗面所独立、洗面化粧台、2口コンロ、駐輪場、CATV、光ファイバー、礼金不要、閑静な住宅地、2面採光、BS・CS、防犯カメラ、IHクッキングヒーター、照明付、全居室収納、オートバス、保証人不要、単身者相談、敷金1ヶ月、防犯シャッター、全居室フローリング、2沿線利用可、ディンプルキー、ネット専用回線、エアコン全室、ダブルロックキー、保証金不要、24時間換気システム、全室2面採光、3駅以上利用可、駅徒歩10分以内、敷地内ごみ置き場、都市ガス、洗面所にドア、シャッター、室内物干機、玄関収納、高速ネット対応、LAN、初期費用カード決済可、全室照明付、通風良好 | ||
部屋の情報
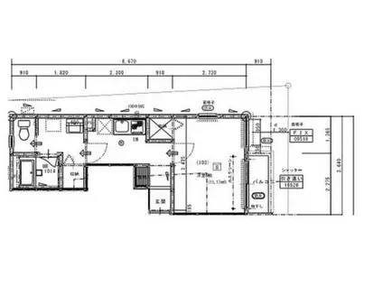
| 間取り | 1K | 専有面積 | 25.13m2 |
|---|---|---|---|
| 所在階 / 向き | 1階 / 東 | バルコニー面積 | - |
| 水道 / ガス | - | ||
| 設備 | バス・トイレ別、テレビドアホン、浴室乾燥機、追い焚き、インターネット対応、システムキッチン、エアコン、温水洗浄便座、角部屋、バルコニー、フローリング、洗髪洗面化粧台、2口コンロ、コンロ:IH、CATV、CSアンテナ、BSアンテナ、洗濯機:室内 | ||
| 当社物件ID | 159220312 | ||
建物の情報
| 建物名 | ウエストハイム豊玉 | ||
|---|---|---|---|
| 所在地 | 東京都練馬区豊玉北 | ||
| 交通 | 都営大江戸線 新江古田駅 徒歩10分 西武池袋線 桜台駅(東京) 徒歩12分 都営大江戸線 練馬駅 徒歩16分 | ||
| 階数 | 2階建 | 総戸数 | - |
| 築年月 | 2016年09月 / 築10年 | エレベーター | - |
| 駐車場 | 近隣 500m25000円 | バイク置き場 | - |
| 駐輪場 | あり | 管理人/管理会社 | - |
| 周辺環境 | その他 まいばすけっと練馬豊玉中1丁目店(スーパー)まで572m その他 東武ストア練馬豊玉店(スーパー)まで878m その他 セブンイレブン練馬豊玉中2丁目店(コンビニ)まで374m その他 ミネドラッグ桜台駅前店(ドラッグストア)まで950m その他 スギ薬局練馬豊玉店(ドラッグストア)まで890m その他 ガスト豊玉北店(飲食店)まで600m | ||
| 建物種別 | アパート | 建物構造 | 木造 |
この部屋の取扱い不動産会社
| 会社名 | (株)クリエイト池袋店(SUUMO経由) | ||
|---|---|---|---|
| 所在地 | 東京都豊島区南池袋1-21-7 10階 | 交通 | - |
| 営業時間 | 10:00~19:00 | 定休日 | 定休日なし、年末年始 |
| 免許番号 | 東京都知事102042 | 取引態様 | 仲介 |
| 不動産会社管理番号 | 100487669655 | 当社管理番号 | 89 |
| 所属団体 | (公社)東京都宅地建物取引業協会会員 | ||
| 公正取引協議会 | (公社)首都圏不動産公正取引協議会加盟 | ||
| 取扱い物件情報 | 物件詳細へ | ||
※各種情報と現状に差異がある場合は、現状優先となります。問い合わせをすることで、より詳しい条件、情報を確認する事ができます。
提供:(株)クリエイト池袋店(SUUMO経由)
この物件が気になったら掲載期限まであと11日
ウエストハイム豊玉に条件(家賃・エリア)が近い物件一覧
| 写真 | 家賃 管理費等 | 敷金 礼金 | 間取り 専有面積 | 築年数 | 最寄り駅 所在地 | キープ | 詳細 |
|---|---|---|---|---|---|---|---|
アパート COCO荻窪(1K/1階) | |||||||
![]() | 7.3万円 1万円 | なし なし | 1K 23.11m2 | 築5年 | JR中央線 荻窪駅 徒歩15分 東京都杉並区清水 | 詳細を見る | |
マンション ロイジェント志村坂上(1K/6階) | |||||||
![]() | 8.7万円 1.5万円 | 8.7万円 8.7万円 | 1K 25.84m2 | 築4年 | 都営三田線 志村坂上駅 徒歩13分 都営三田線 志村三丁目駅 徒歩13分 JR埼京線 浮間舟渡駅 徒歩17分 東京都板橋区東坂下 | 詳細を見る | |
アパート シェソワ阿佐ヶ谷(1K/1階) | |||||||
![]() | 7.9万円 5,500円 | なし 7.9万円 | 1K 22m2 | 築27年 | JR中央線 阿佐ケ谷駅 徒歩6分 JR総武線 阿佐ケ谷駅 徒歩6分 東京メトロ丸ノ内線 南阿佐ケ谷駅 徒歩11分 東京都杉並区阿佐谷南 | 詳細を見る | |
マンション COCOFLAT阿佐ヶ谷(ワンルーム/3階) | |||||||
![]() | 9.5万円 4,000円 | なし なし | ワンルーム 18.87m2 | 築6年 | 総武・中央緩行線 阿佐ケ谷駅 徒歩6分 東京地下鉄丸ノ内線 南阿佐ケ谷駅 徒歩13分 東京都杉並区阿佐谷北1丁目 | 詳細を見る | |
アパート スカイコート7(1K/2階) | |||||||
![]() | 6.5万円 1,000円 | 6.5万円 6.5万円 | 1K 19m2 | 築33年 | 西武新宿線 上井草駅 徒歩15分 JR中央線 荻窪駅 徒歩20分 JR中央線 西荻窪駅 徒歩23分 東京都杉並区今川 | 詳細を見る | |
マンション セジョリ上板橋(1K/3階) | |||||||
![]() | 7.9万円 1万円 | なし 7.9万円 | 1K 20.03m2 | 築18年 | 東武東上線 上板橋駅 徒歩5分 東武東上線 ときわ台駅(東京) 徒歩21分 都営三田線 志村三丁目駅 徒歩23分 東京都板橋区中台 | 詳細を見る | |
マンション ヴァレッシア椎名町駅前シティ(1K/3階) | |||||||
![]() | 7.8万円 1万円 | 7.8万円 7.8万円 | 1K 20.72m2 | 築19年 | 西武池袋線 椎名町駅 徒歩3分 東京メトロ有楽町線 要町駅 徒歩13分 JR山手線 目白駅 徒歩19分 東京都豊島区西池袋 | 詳細を見る | |
アパート ソフィアジェラート(ワンルーム/1階) | |||||||
![]() | 6.4万円 3,000円 | なし なし | ワンルーム 9.6m2 | 築6年 | JR中央線 西荻窪駅 徒歩7分 JR中央線 吉祥寺駅 徒歩22分 京王井の頭線 井の頭公園駅 徒歩24分 東京都杉並区西荻北 | 詳細を見る | |








