賃貸マンション
ガーラ・プレシャス川崎西口の賃貸物件情報(1DK/7階)
| 家賃 | 管理費等 | 敷金 | 礼金 | 間取り | 専有面積 |
|---|---|---|---|---|---|
| 10.6万円 | 1万円 | 10.6万円 | 21.2万円 | 1DK | 26.3m2 |
入居決定でお祝い金最大100,000円
- 保証金
- -
- 償却・敷引
- -
- 築年数
- 築3年
- 所在階
- 7階
- 向き
- -
Point
弊社専任でご紹介中の物件です。他社で募集停止と案内される場合もありますが、弊社では最新の募集状況をご案内しております。直接お問い合わせください。
提供:(株)Threeams(SUUMO経由)

詳細情報 ガーラ・プレシャス川崎西口
物件紹介
ガーラ・プレシャス川崎西口はJR京浜東北線川崎駅から徒歩8分にあり、駅近で通勤通学に便利なマンションです。
このお部屋は2階以上に位置しているので、通行人や周囲の住人からの視線が気になりにくく、防犯面でも安心。建物のエントランスはオートロックがついており、インターホンにはTVモニタもついているため、相手の顔を確認してから来客対応することができます。
人気の角部屋で周囲の居住者の生活音も気になりにくく、また、フローリングのお部屋なのでお掃除もラクラク。室内にはウォークインクローゼットがありますので、たくさんの荷物も効率的に収納ができます。キッチンはシステムキッチン仕様になっていますので、お料理好きの方にもぴったり。また、バス・トイレは別で、のんびりお風呂タイムも楽しめるでしょう。
通信設備面では、インターネットが無料で使えるので、月々の出費を抑えられるのも魅力です。また、BSアンテナ・CSアンテナもありますので、おうち時間も充実するでしょう(別途工事、BS・CSの契約料等が必要な場合あり)。
建物にはエレベーターがついているので、重い荷物があっても安心。共用部には宅配ボックスが設定されているので、不在の時にも荷物を受け取ることができます。
このお部屋は2階以上に位置しているので、通行人や周囲の住人からの視線が気になりにくく、防犯面でも安心。建物のエントランスはオートロックがついており、インターホンにはTVモニタもついているため、相手の顔を確認してから来客対応することができます。
人気の角部屋で周囲の居住者の生活音も気になりにくく、また、フローリングのお部屋なのでお掃除もラクラク。室内にはウォークインクローゼットがありますので、たくさんの荷物も効率的に収納ができます。キッチンはシステムキッチン仕様になっていますので、お料理好きの方にもぴったり。また、バス・トイレは別で、のんびりお風呂タイムも楽しめるでしょう。
通信設備面では、インターネットが無料で使えるので、月々の出費を抑えられるのも魅力です。また、BSアンテナ・CSアンテナもありますので、おうち時間も充実するでしょう(別途工事、BS・CSの契約料等が必要な場合あり)。
建物にはエレベーターがついているので、重い荷物があっても安心。共用部には宅配ボックスが設定されているので、不在の時にも荷物を受け取ることができます。
お金・契約の情報
※「-」と表示されているものは、実際は料金が発生するものもございます。詳細はお問い合わせください。
| 家賃 | 10.6万円 | 管理費・共益費 | 1万円 |
|---|---|---|---|
| 敷金 | 10.6万円 | 礼金 | 21.2万円 |
| 入居決定でお祝い金最大100,000円 | |||
| 保証金 | - | 償却・敷引 | - |
| 住宅保険料 | - | 更新料 | - |
| 保証会社利用 | 必須 | 保証会社名 | - |
| 保証会社費用 | - | 保証会社備考 | 保証会社利用必 初回保証委託料:総賃料の50% 月額:総賃料の1.2% |
| 契約形態 | - | 契約期間 | - |
| 入居・引渡期間 | - | 現況 | - |
| 契約備考 | 通勤管理/横浜市・川崎市を中心にお客様の希望にお答えし、かつ理想を超える住まいのご提供と、この会社でよかった。と思っていただけるよう、おひとりお一人のお客様に真心を込めたご対応させていただきます。弊社ホームページでも多数のお部屋を検索することができます!初期費用の支払いにご要望がある方はご相談ください!お客様のご来店を心よりお待ちしております。 合計2.31万円(内訳:鍵交換代2.31万円) 更新料 新賃料1.00ヶ月分 室内清掃費用 38500円 1DK 普通借家2年 損保【2万円2年】 バストイレ別、バルコニー、エアコン、ガスコンロ対応、クロゼット、フローリング、TVインターホン、オートロック、室内洗濯置、シューズボックス、システムキッチン、角住戸、温水洗浄便座、脱衣所、エレベーター、洗面所独立、2口コンロ、宅配ボックス、光ファイバー、外壁タイル張り、2面採光、BS・CS、防犯カメラ、照明付、分譲賃貸、グリル付、全居室洋室、ウォークインクロゼット、敷金1ヶ月、カードキー、全居室フローリング、2沿線利用可、CS、ネット使用料不要、眺望良好、24時間換気システム、築3年以内、人感照明センサー、2駅利用可、3駅以上利用可、3沿線以上利用可、駅徒歩10分以内、24時間ゴミ出し可、敷地内ごみ置き場、玄関収納、オートライト、BS、年内入居可、年度内入居可、礼金2ヶ月、通風良好 入居日:'26年2月下旬 | ||
部屋の情報
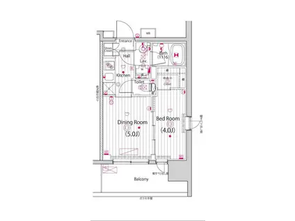
| 間取り | 1DK | 専有面積 | 26.3m2 |
|---|---|---|---|
| 所在階 / 向き | 7階 / - | バルコニー面積 | 6m2 |
| 水道 / ガス | - | ||
| 設備 | バス・トイレ別、2階以上、オートロック、テレビドアホン、宅配ボックス、ウォークインクローゼット、インターネット対応、システムキッチン、エアコン、エレベーター、温水洗浄便座、角部屋、バルコニー、フローリング、洗髪洗面化粧台、2口コンロ、コンロ:ガス、CSアンテナ、BSアンテナ、インターネット使用料無料、洗濯機:室内 | ||
| 当社物件ID | 128175969 | ||
建物の情報
| 建物名 | ガーラ・プレシャス川崎西口 | ||
|---|---|---|---|
| 所在地 | 神奈川県川崎市幸区中幸町 | ||
| 交通 | JR京浜東北線 川崎駅 徒歩8分 JR南武線 尻手駅 徒歩12分 京急本線 京急川崎駅 徒歩14分 | ||
| 階数 | 13階建 | 総戸数 | - |
| 築年月 | 2023年03月 / 築3年 | エレベーター | あり |
| 駐車場 | なし | バイク置き場 | - |
| 駐輪場 | - | 管理人/管理会社 | - |
| 周辺環境 | その他 株式会社文化堂 川崎店(スーパー)まで129m その他 スーパー文化堂川崎店(スーパー)まで131m その他 中幸マーケット(スーパー)まで286m その他 ローソン・スリーエフ 川崎南河原店(コンビニ)まで40m その他 ファミリーマート 川崎南幸町店(コンビニ)まで173m | ||
| 建物種別 | マンション | 建物構造 | RC(鉄筋コンクリート) |
この部屋の取扱い不動産会社
| 会社名 | (株)Threeams(SUUMO経由) | ||
|---|---|---|---|
| 所在地 | 神奈川県横浜市中区蓬莱町2-6-5 アルテビル205 | 交通 | - |
| 営業時間 | 10時~19時 | 定休日 | 水曜日 |
| 免許番号 | 神奈川県知事32762 | 取引態様 | 仲介 |
| 不動産会社管理番号 | 100484004382 | 当社管理番号 | 89 |
| 所属団体 | (公社)神奈川県宅地建物取引業協会会員 | ||
| 公正取引協議会 | (公社)首都圏不動産公正取引協議会加盟 | ||
| 取扱い物件情報 | 物件詳細へ | ||
※各種情報と現状に差異がある場合は、現状優先となります。問い合わせをすることで、より詳しい条件、情報を確認する事ができます。
提供:(株)Threeams(SUUMO経由)
この物件が気になったら掲載期限まであと10日
ガーラ・プレシャス川崎西口に条件(家賃・エリア)が近い物件一覧
| 写真 | 家賃 管理費等 | 敷金 礼金 | 間取り 専有面積 | 築年数 | 最寄り駅 所在地 | キープ | 詳細 |
|---|---|---|---|---|---|---|---|
マンション モナーク関内大通公園(1LDK/2階) | |||||||
![]() | 11万円 1万円 | 11万円 11万円 | 1LDK 40.4m2 | 築26年 | ブルーライン 伊勢佐木長者町駅 徒歩1分 JR京浜東北線 関内駅 徒歩6分 京急本線 日ノ出町駅 徒歩11分 神奈川県横浜市中区蓬莱町 | 詳細を見る | |
マンション グリーンヒル藤が丘C(2LDK/1階) | |||||||
![]() | 11.7万円 3,000円 | 11.7万円 11.7万円 | 2LDK 49.7m2 | 築34年 | 東急田園都市線 藤が丘駅(神奈川) 徒歩3分 東急田園都市線 青葉台駅 徒歩16分 神奈川県横浜市青葉区藤が丘2丁目 | 詳細を見る | |
アパート スカイテラス横濱反町(1K/1階) | |||||||
![]() | 7.3万円 4,000円 | 7.3万円 7.3万円 | 1K 24.57m2 | 築3年 | 横浜市ブルーライン 三ツ沢下町駅 徒歩10分 神奈川県横浜市神奈川区栗田谷 | 詳細を見る | |
マンション アーサクラスト横浜(1DK/5階) | |||||||
![]() | 11.8万円 1万円 | なし 11.8万円 | 1DK 32.16m2 | 築14年 | ブルーライン 阪東橋駅 徒歩3分 ブルーライン 吉野町駅 徒歩8分 京急本線 黄金町駅 徒歩8分 神奈川県横浜市南区白妙町 | 詳細を見る | |
マンション タウンハウス日吉T(1LDK/3階) | |||||||
![]() | 11.3万円 7,000円 | 11.3万円 11.3万円 | 1LDK 35.2m2 | 築6年 | 東急東横線 日吉駅(神奈川) 徒歩18分 グリーンライン 日吉本町駅 徒歩25分 東急東横線 元住吉駅 徒歩35分 神奈川県横浜市港北区日吉 | 詳細を見る | |
マンション ガーラ・シティ川崎(1K/9階) | |||||||
![]() | 9.6万円 9,000円 | 9.6万円 19.2万円 | 1K 21m2 | 築16年 | 京浜急行電鉄本線 京急川崎駅 徒歩5分 神奈川県川崎市川崎区本町1丁目 | 詳細を見る | |
マンション 県ドリームハイツ 11号棟(3SLDK/4階) | |||||||
![]() | 8.2万円 なし | 16.4万円 なし | 3SLDK 78.1m2 | 築53年 | 神奈川県横浜市戸塚区俣野町 | 詳細を見る | |
マンション ガーラ新横浜グランドステージ(1K/4階) | |||||||
![]() | 8.1万円 9,000円 | 8.1万円 16.2万円 | 1K 21.34m2 | 築5年 | JR横浜線 新横浜駅 徒歩10分 東急新横浜線 新横浜駅 徒歩11分 ブルーライン 岸根公園駅 徒歩15分 神奈川県横浜市港北区新横浜 | 詳細を見る | |









